Kemijoen itäpuolentie 122
96400, Ojanperä, Rovaniemi
87 000 €
9 346 m²

Tätä asuntoa myy Helmikodit Oy
Sijainti
Asuntoesittely
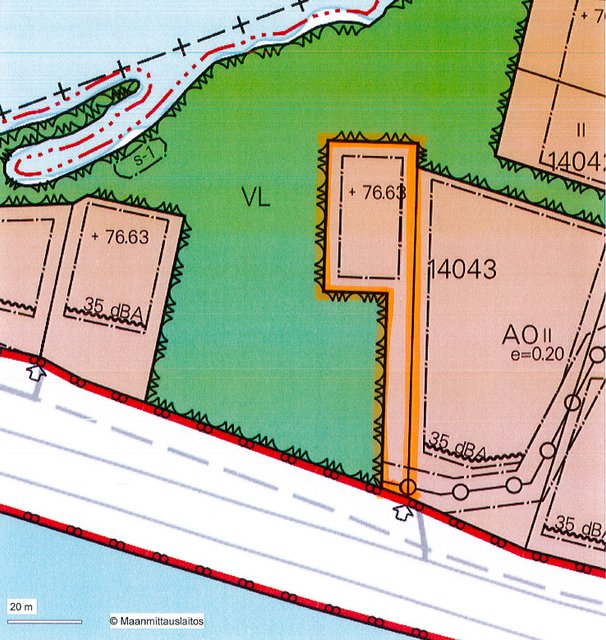
Tämä upea määräala sijaitsee Ojanperän rauhallisella alueella, Rovaniemen kaupungin läheisyydessä. Lohkottavan määräalan pinta-ala on noin 1329 m², ja se tarjoaa loistavat mahdollisuudet rakentaa unelmiesi omakotitalo.
Alueella on erinomaiset palvelut: Kaukon koulu sijaitsee vain 1,5 kilometrin päässä, ja Päiväkoti Tiitiäinen on kahden kilometrin etäisyydellä. Lähikauppa on myös mukavan lähellä, vain kahden kilometrin päässä. Näin ollen tontti sopii erityisesti perheille, jotka arvostavat helppoa arkea ja lyhyitä etäisyyksiä tärkeisiin kohteisiin.
Tämä tontti tarjoaa mahdollisuuden yhdistää luonnonläheisyys ja kaupungin mukavuudet. Kemijoen kaunis ympäristö tarjoaa upeat puitteet ulkoilulle ja vapaa-ajan viettoon.
Perustiedot
- Sijainti
- Kemijoen itäpuolentie 122, 96400, Ojanperä, Rovaniemi
- Kohteen tyyppi
- Omakotitalotontti
- Kohde myydään vuokrattuna
- Ei
- Vapautuminen
- Heti
Hinta ja kustannukset
- Velaton hinta
- 87 000 €
- Myyntihinta
- 87 000 €
Tilat ja materiaalit
Lisätiedot
Taloyhtiö ja kiinteistö
- Tontin pinta-ala
- 9 346 m²
- Tontin omistus
- Oma
- Tontin tyyppi
- Tasamaatontti
- Tontin myyntityyppi
- Määräala
- Kiinteistöön kuuluu
- Kiinteistöllä sijaitsee purkukuntoinen rakennus.
- Palvelut
- Lähikauppa 2 km
- Koulut
- Kaukon koulu 1,5 km
- Kaavatilanne
- Asemakaava
- Kaavoitustiedot
- AO II = Erillispientalojen korttelialue Rakennusoikeusluku 0,2
