Kiertokoulu 14
82220, Niittylahti, Joensuu
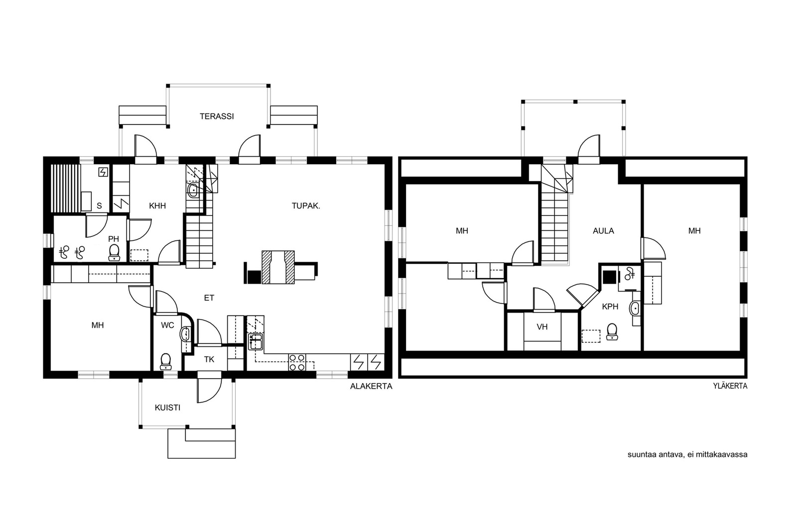
5 h, k, s, kph, khh, wc
168 000 €
146 m²

Tätä asuntoa myy Ohto Mettälä, Asuntomyyjä, KiLAT
Huoneistokeskus Oy | Joensuu

Sijainti
Asuntoesittely
Tilava ja hyvin pidetty omakotitalo rauhallisella Niittylahden alueella
Tämä vuonna 2005 rakennettu Jukkatalo tarjoaa erinomaiset puitteet isommankin perheen asumiseen. Kahteen kerrokseen jakautuvat tilat käsittävät neljä makuuhuonetta, kaksi wc:tä, saunan, autokatoksen, lämpimän autotallin sekä kaksi varastoa – kaikki käytännöllisesti ja perhe-elämää tukevasti suunniteltuna.
Tilava takapiha tarjoaa runsaasti tilaa lasten leikeille ja pihapuuhille. Talo on ollut hyvin pidetty ja huollettu vuosien varrella, joten uudet asukkaat voivat muuttaa sisään ilman kiireellisiä remonttitarpeita.
Sijainti rauhallisella ja lapsiystävällisellä Niittylahden alueella, päiväkoti ja leikkipuisto ovat kävelyetäisyydellä, hyvät julkiset yhteydet ja monipuoliset ulkoilumaastot löytyvät läheltä.
Tämä viihtyisä ja toimiva koti odottaa uutta perhettä nauttimaan tilasta ja rauhasta luonnonläheisissä maisemissa.
Pohjakuva

Perustiedot
- Sijainti
- Kiertokoulu 14, 82220, Niittylahti, Joensuu
- Huoneluku
- 5
- Asuinpinta-ala
- 146 m²
- Muu pinta-ala
- 17 m²
- Kokonaispinta-ala
- 163 m²
- Lisätiedot pinta-alasta
- Pinta-alatiedot saatu myyjältä ja rakennuspiirustuksista eikä niitä ole tarkistusmitattu.
- Kohteen tyyppi
- Omakotitalo
- Kerros
- 2
- Rakennusvuosi
- 2005
- Käyttöönottovuosi
- 2006
- Kohde myydään vuokrattuna
- Ei
- Vapautuminen
- 1-2 kk tai sopimuksen mukaan
Tilat ja materiaalit
- Keittiön kuvaus
- Puustellin kaapistot.
- Keittiön lattiat
- Laatta
- Keittiön seinät
- Maali
- Keittiön varusteet
- Astianpesukone, jääkaappi, erillinen pakastin, ja kiinteät valaisimet
- Liesi
- Keraaminen liesi
- Kylpyhuoneen seinät
- Kaakeli
- Kylpyhuoneen lattiat
- Laatta
- Kylpyhuoneen varusteet
- Suihku ja wc-istuin
- WC Lukumäärä
- 2
- Erillinen WC
- Alakerta: peilikaappi, allaskaappi Yläkerta: peili, allaskaappi
- WC:n lattiat
- Laatta
- WC:n seinät
- Lasikuitutapetti ja maali
- Makuuhuoneiden lukumäärä
- 4
- Makuuhuoneiden seinät
- Maali
- Makuuhuoneiden lattiat
- Parketti
- Olohuoneen seinät
- Maali
- Olohuoneen lattiat
- Parketti
- Kodinhoitohuoneen varusteet
- Pesukoneliitäntä, pesuallas, pyykkikaapit, pöytätaso, keskuspölynimuri, ja lattialämmitys
- Kodinhoitohuoneen seinät
- Lasikuitutapetti ja maali
- Kodinhoitohuoneen lattiat
- Laatta
- Kohteen säilytystilat
- Vaatehuone ja ulkovarasto
- Sauna
- Kyllä
- Kiuas
- Sähkökiuas
- Takka
- Takka
Lisätiedot
- Asunnon kunto
- Hyvä
- Muuta kauppaan kuuluvaa
- Lisätietoja sisältyvistä varusteista: ilmalämpöpumppu, istutukset, jätesäiliö, kaapistot, keskuspölynimuri, kiinteät valaisimet, lämminvesivaraaja, matontamppausteline, pyykinkuivausteline, sälekaihtimet/rullaverhot, verhotangot
- Kauppaan ei kuulu
- irtaimisto
Taloyhtiö ja kiinteistö
- Tontin pinta-ala
- 1 367 m²
- Tontin omistus
- Vuokra
- Tontin tyyppi
- Tasamaatontti
- Tontin myyntityyppi
- Koko tontti
- Maanvuokraaja
- Joensuun kaupunki
- Tontin vuosivuokra
- 605,26 €
- Vuokra-aika päättyy
- 21.08.2055
- Rakennusmateriaali
- Puu
- Lämmitysjärjestelmä
- Sähkö Tyyppi: sähköinen lattialämmitys, sähköpatterilämmitys Ilmalämpöpumppu Puu sähköpatterilämmitys, ilmalämmitys, sähköinen lattialämmitys
- Kattotyyppi
- harja
- Katemateriaali
- tiili
- Rakennusoikeus e-luku
- 0.2
- Tie perille
- Kyllä
- Palvelut
- Reijolan palvelut, K-market, S-market, Apteekki, kirjasto n. 6 km
- Koulut
- Niittylahden koulu 3,7 km
- Kaavatilanne
- Asemakaava
- Kaavoitustiedot
- Asuinpientalojen korttelialue.
- Lisätietoa muista rakennuksista
- Talousrakennus, jossa lämmin autotalli ja kaksi varastoa, kerrosala 48 m2.
