Kilterinkaari 8 AS
01600, Myyrmäki, Vantaa
1h+kt+alkovi
161 900 € (4 260,53 € / m²)
38 m²

Tätä asuntoa myy Jani Saartama, Asuntomyyjä
Huoneistokeskus Oy | Vantaa

Sijainti
Asuntoesittely
Tyylikäs ja avara yksiö Myyrmäessä
Tämä valoisa ja tilava 38m² yksiö, joka sijaitsee arvostetulla Kilterin alueella Myyrmäessä. Tämä koti on täydellinen yhdistelmä käytännöllisyyttä ja mukavuutta, ja se tarjoaa viihtyisän asumiskokemuksen kaikille asukkailleen.
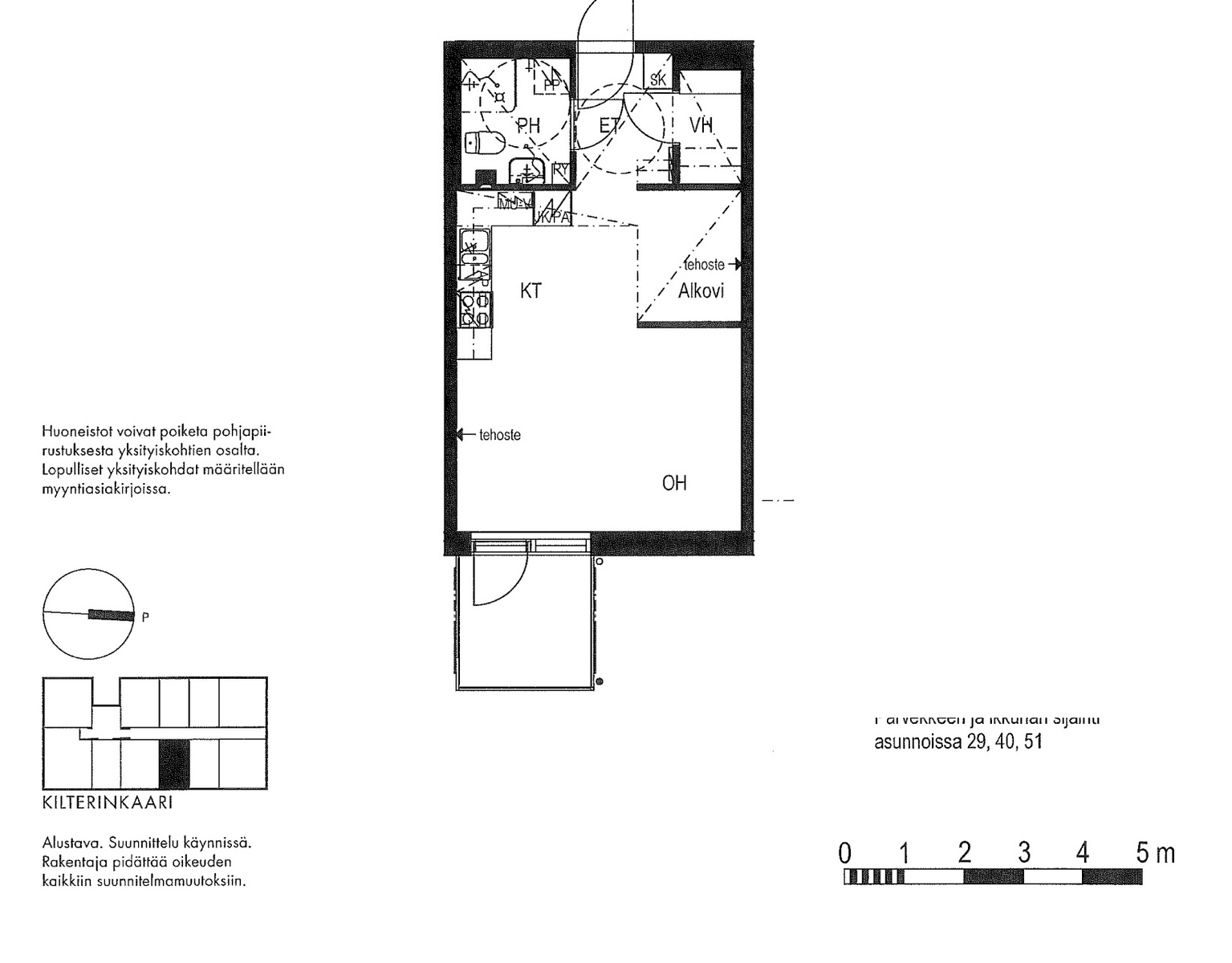
Asunnossa on harkittu pohjaratkaisu, joka sisältää erillisen alkoven, avoimen keittiön ja tilavan kylpyhuoneen. Kompakti lasitettu parveke tarjoaa upeat näkymät, mikä tuo luonnon lähelle ja luo kodikkaan tunnelman.
Myyrmäen monipuolinen palvelutarjonta, kuten kaupat, ravintolat ja harrastusmahdollisuudet, ovat aivan käden ulottuvilla. Alueelta löytyy erinomaiset julkisen liikenteen yhteydet, ja Myyrmäen juna-asema on vain lyhyen kävelymatkan päässä, mikä mahdollistaa sujuvan ja nopean liikkumisen ympäri pääkaupunkiseutua.
Tule ihastumaan tähän kauniiseen ja toimivaan kotiin - varaa esittelyaika jo tänään!
Pohjakuva

Perustiedot
- Sijainti
- Kilterinkaari 8 AS, 01600, Myyrmäki, Vantaa
- Omistusmuoto
- Omistusasunto
- Huoneluku
- 1
- Asuinpinta-ala
- 38 m²
- Muu pinta-ala
- 0 m²
- Kokonaispinta-ala
- 38 m²
- Pinta-alan peruste
- Isännöitsijäntodistuksen mukainen, Yhtiöjärjestyksen mukainen
- Kohteen tyyppi
- Kerrostalo
- Kerros
- 3 / 7
- Rakennusvuosi
- 2014
- Käyttöönottovuosi
- 2014
- Kohde myydään vuokrattuna
- Ei
- Vapautuminen
- Heti
Hinta ja kustannukset
- Velaton hinta
- 161 900 €
- Myyntihinta
- 113 805 €
- Velkaosuus
- 48 095 €
- Yhtiövastike
- Hoitovastike 171 € / kk, Rahoitusvastike 497,80 € / kk, Yhtiövastike yhteensä 668,80 € / kk
- Saunamaksu
- 20 € / kk
- Vesimaksu
- 20 € / hlö
- Neliöhinta
- 4 260,53 € / m²
- Lisätietoja maksusta
- Lisätietoja vastikkeista: Vesimaksu ennakko 20e
Tilat ja materiaalit
- Keittiön seinät
- Laatta ja maali
- Keittiön varusteet
- Astianpesukone, jääkaappipakastin, erillisuuni, ja liesituuletin
- Liesi
- integroitu erillisuuni
- Kylpyhuoneen seinät
- Kaakeli
- Kylpyhuoneen lattiat
- Laatta
- Kylpyhuoneen varusteet
- Pesukoneliitäntä, lattialämmitys, peilikaappi, wc-istuin, ja suihku
- Makuuhuoneiden seinät
- Maali
- Olohuoneen seinät
- Maali
Lisätiedot
- Asunnon kunto
- Hyvä
- Parveke
- Lasitettu parveke
- Hissi
- Kyllä
- Muuta kauppaan kuuluvaa
- Lisätietoja sisältyvistä varusteista: kiinteät valaisimet, sälekaihtimet/rullaverhot
Taloyhtiö ja kiinteistö
- Taloyhtiön nimi
- Asunto Oy Vantaan Soma Bertta
- Isännöitsijätoimisto
- Myyrmäen Huolto Oy
- Isännöitsijän sähköposti
- [email protected]
- Isännöitsijän puhelin
- 09 530 6140
- Taloyhtiön lisätiedot
- Tietoja lainojen pituuksista: Lainan nostopäivä/päättymispäivä: 1.9.2023 / 1.9.2036 Lainatyyppi: annuiteetti Selite: rahoituslaina Korko: 12kk Euribor + 0,75% Rahoitusvastike/vastikeyksikkö: 13,1000€ / m2 Lainan saldo / saldopäivä: 1413265,87€ / 31.1.2025 Varainsiirtoveron alainen: Kyllä Yhtiön pitkäaikaiset lainat yhteensä 1413265,87. Tietoja sopimuksista: Yhtiökokouksessa 16.5.2024: Päätettiin myöntää hallitukselle valtuus periä enintään kaksi ylimääräistä hoitovastiketta tai jättää perimättä kaksi hoitovastiketta taloudellisen tilanteen vaatiessa/salliessa.
- Tontin pinta-ala
- 1 906 m²
- Tontin omistus
- Oma
- Käyttö/luovutusrajoitukset
- autohallipaikkojen lunastusoikeus, yj. 8 §
- Rakennusmateriaali
- Betoni
- Lämmitysjärjestelmä
- Kaukolämpö
- Kattotyyppi
- tasakatto
- Katemateriaali
- bitumi
- Lisätietoja kiinteistönhoidosta
- Huoltoyhtiö
- Kiinteistönhoidon lisätiedot
- Myyrmäen Huolto Oy
- Taloyhtiössä on
- Väestönsuoja, urheiluvälinevarasto, ja lastenvaunuvarasto, sauna, huoneistokohtaiset varastot
- Kohteesta on energiatodistus
- Kyllä
- Energialuokka
- B2018
- Lisätietoja taloyhtiön autonsäilytyspaikoista
- Toteutettuja autopaikkoja yhtiössä on 37 kpl. Autopaikkoihin kohdistuu 35 osaketta. Yhtiön hallinnassa olevia autopaikkoja on 2 kpl.
- Taloyhtiöllä sauna
- Kyllä
- Kaavatilanne
- Asemakaava
- Lisätiedot kaavoituksesta
- Vantaan kaupunki, puh: 09 839 11
- Taloyhtiön kiinnitykset
- 7 977 360 €
Tehdyt remontit
2023 Sähköautojen latausinfran rakentaminen
, Ilmanvaihtojärjestelmän puhdistus.
Tulevat remontit
Yhtiössä on takuukorjaukset kesken. Yhtiössä on havaittu kattovuoto, jota on korjattu ja korjaukset ovat yhä kesken. Asiaa selvitellään urakoitsijan kanssa.
Yhtiökokouksessa 4.5.2023 päätettiin, että autopaikkaosakkaat voivat toteuttaa autosähköpaikkojen lataushankkeen yhtiön hankkeena. Kaikki kustannukset kohdennetaan autopaikkaosakkaille
vastikeperusteisena.