Kilterinkaari 8 as
01600, Myyrmäki, Vantaa
2h+kt
184 900 € (3 661,39 € / m²)
50,5 m²

Tätä asuntoa myy Jani Saartama, Asuntomyyjä
Huoneistokeskus Oy | Vantaa

Sijainti
Asuntoesittely
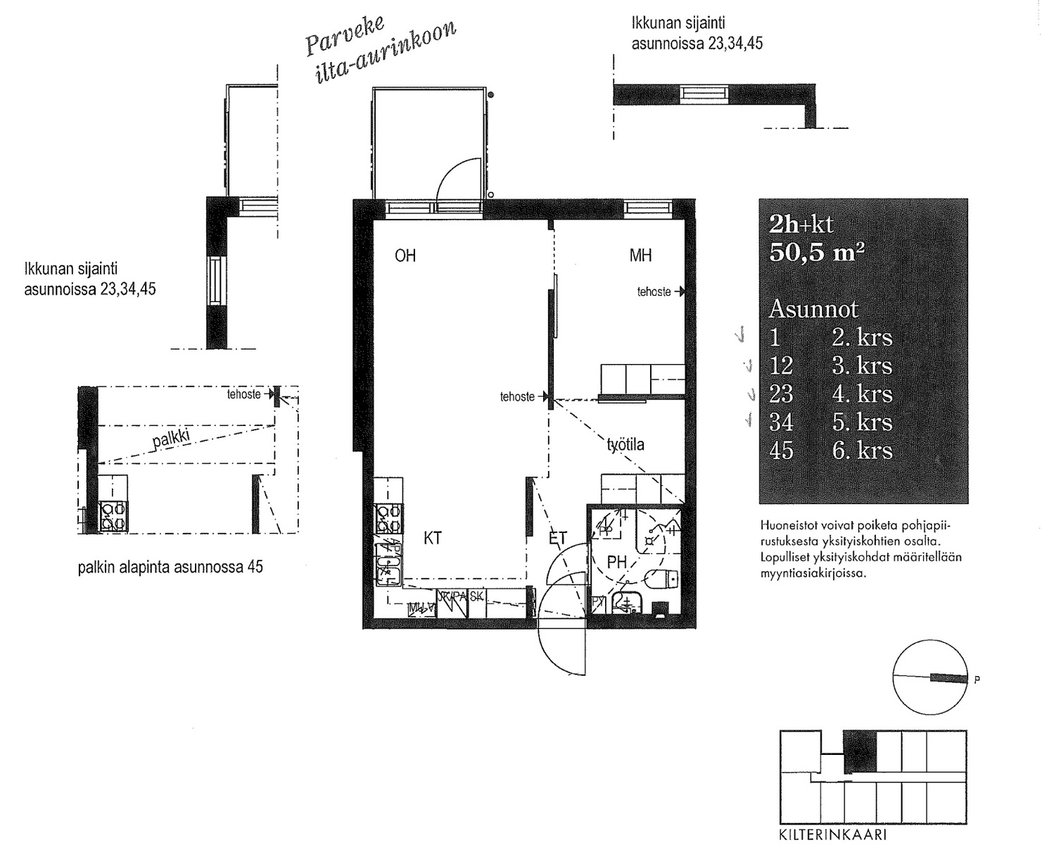
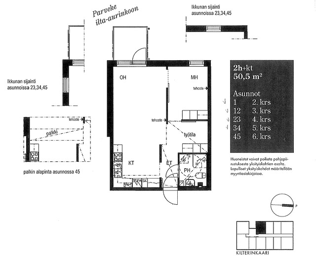
Tilava viidennen kerroksen kaksio Myyrmäessä.
Tämän kodin pohjaratkaisu tekee siitä erittäin toimivan, antaen samalla mahdollisuuden erilaisille sisustusratkaisuille.
Mainio sijainti lähellä palveluita ja hyvien liikenneyhteyksien varrella. Myymäessä on erittäin hyvä palvelutarjonta ja loistavat urheilu- ja ulkoilumahdollisuudet.
Tervetuloa tutustumaan!
Kysy lisää autopaikan ostomahdollisuudesta välittäjältäsi.
Pohjakuva

Perustiedot
- Sijainti
- Kilterinkaari 8 as, 01600, Myyrmäki, Vantaa
- Omistusmuoto
- Omistusasunto
- Huoneluku
- 2
- Asuinpinta-ala
- 50,5 m²
- Kokonaispinta-ala
- 50,5 m²
- Pinta-alan peruste
- Isännöitsijäntodistuksen mukainen, Yhtiöjärjestyksen mukainen
- Kohteen tyyppi
- Kerrostalo
- Kerros
- 5 / 7
- Rakennusvuosi
- 2014
- Käyttöönottovuosi
- 2014
- Kohde myydään vuokrattuna
- Ei
- Vapautuminen
- Heti
Hinta ja kustannukset
- Velaton hinta
- 184 900 €
- Myyntihinta
- 115 113,81 €
- Velkaosuus
- 69 786,19 €
- Yhtiövastike
- Hoitovastike 217,15 € / kk, Rahoitusvastike 595,90 € / kk, Yhtiövastike yhteensä 813,05 € / kk
- Saunamaksu
- 20 € / kk
- Vesimaksu
- 20 € / hlö
- Neliöhinta
- 3 661,39 € / m²
- Lisätietoja maksusta
- Lisätietoja vastikkeista: Varsinainen yhtiökokous 4.5.2023 antoi hallitukselle valtuudet 1-2 kuukauden ylimääräisen hoitovastikkeen keräämiseen tai perimättä jättämiseen sekä muuttaa pääomavastiketta viitekoron vaihtuessa. Päätös voidaan tehdä ilman erillistä yhtiökokoukseen koolle kutsumista sekä tehdä ylimääräisiä lyhennyksiä tilanteen niin salliessa
Tilat ja materiaalit
- Keittiön kuvaus
- Keittiön kaapeissa hieman kulumisen jälkiä.
- Keittiön lattiat
- Parketti
- Keittiön seinät
- Maali
- Keittiön varusteet
- Astianpesukone, erillisuuni, jääkaappipakastin, liesituuletin, ja kiinteät valaisimet, liesitaso
- Liesi
- erillisuuni liesitaso
- Kylpyhuoneen seinät
- Kaakeli
- Kylpyhuoneen lattiat
- Laatta
- Kylpyhuoneen varusteet
- Pesukoneliitäntä, suihkuseinä, peilikaappi, suihku, wc-istuin, ja kiinteät valaisimet
- Makuuhuoneiden lukumäärä
- 1
- Makuuhuoneiden lattiat
- Parketti
- Olohuoneen lattiat
- Parketti
- Kohteen säilytystilat
- Kellarikomero
Lisätiedot
- Asunnon kunto
- Hyvä
- Parveke
- Lasitettu parveke
- Parvekkeen ilmansuunta
- Länsi
- Hissi
- Kyllä
- Muuta kauppaan kuuluvaa
- Lisätietoja sisältyvistä varusteista: sälekaihtimet/rullaverhot
- Muut kaupan kannalta merkittävät tiedot
- Taloyhtiön osakeluettelo on siirretty huoneistotietojärjestelmään. Ostajan tulee hakea omistusoikeuden rekisteröintiä Maanmittauslaitokselta. Ostaja vastaa tällöin omistusoikeuden rekisteröintikustannuksista, mahdollisista osakekirjan mitätöinnistä aiheutuvista kustannuksista sekä mahdollisesta hakemusmaksun korotuksesta. Ostajan pankin ostajalta mahdollisesti veloittamista kaupantekoon, omistusoikeuden rekisteröintiin tai panttausmerkinnän hakemiseen liittyvistä kustannuksista ostaja saa tiedon pankiltaan.
Taloyhtiö ja kiinteistö
- Taloyhtiön nimi
- Asunto Oy Vantaan Soma Bertta
- Isännöitsijätoimisto
- Myyrmäen Huolto Oy
- Isännöitsijän sähköposti
- [email protected]
- Isännöitsijän puhelin
- 09 530 6140
- Tuotot
- 0
- Tontin pinta-ala
- 1 906 m²
- Tontin omistus
- Oma
- Rakennusmateriaali
- Betoni
- Lämmitysjärjestelmä
- Kaukolämpö
- Kattotyyppi
- tasakatto
- Katemateriaali
- bitumi
- Lisätietoja kiinteistönhoidosta
- Huoltoyhtiö
- Kiinteistönhoidon lisätiedot
- Myyrmäen Huolto Oy
- Taloyhtiössä on
- Urheiluvälinevarasto, väestönsuoja, ja lastenvaunuvarasto, huoneistokohtaiset varastot, sauna
- Kohteesta on energiatodistus
- Kyllä
- Energialuokka
- B2018
- Lisätietoja taloyhtiön autonsäilytyspaikoista
- Toteutettuja autopaikkoja yhtiössä on 37 kpl. Autopaikkoihin kohdistuu 35 osaketta. Yhtiön hallinnassa olevia autopaikkoja on 2 kpl.
- Taloyhtiöllä sauna
- Kyllä
- Kaavatilanne
- Asemakaava
- Lisätiedot kaavoituksesta
- Vantaan kaupunki, puh: 09 839 11
- Taloyhtiön kiinnitykset
- 7 977 360 €
Tulevat remontit
2023 Sähköautojen latausinfran rakentaminen, Ilmanvaihtojärjestelmän puhdistus.
Yhtiössä on takuukorjaukset kesken. Yhtiössä on havaittu kattovuoto, jota on korjattu ja korjaukset ovat yhä kesken. Asiaa selvitellään urakoitsijan kanssa.
Yhtiökokouksessa 4.5.2023 päätettiin, että autopaikkaosakkaat voivat toteuttaa autosähköpaikkojen lataushankkeen yhtiön hankkeena. Kaikki kustannukset kohdennetaan autopaikkaosakkaille
vastikeperusteisena.
