Kirjokalliontie 26 D
00430, Maununneva, Helsinki
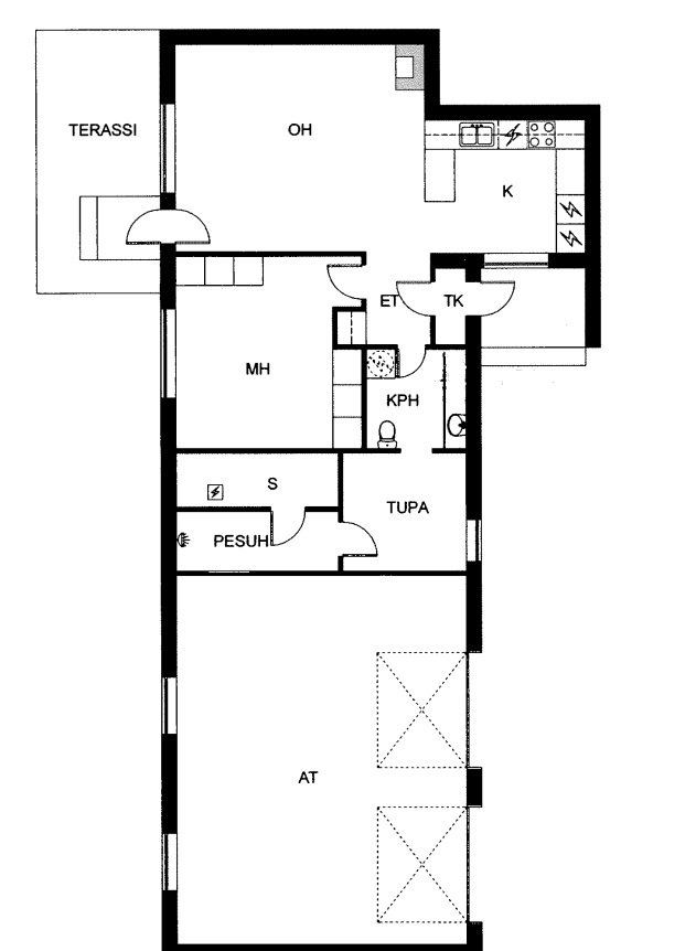
2h, avok, s, kh, wc, pukuhuone, at (Yj. 2h + avokeittiö)
129 000 € (2 866,67 € / m²)
45 m²

Tätä asuntoa myy Esa Hautamäki, Kiinteistönvälittäjä, LKV, LVV
Huoneistokeskus Oy | Helsinki, Kylänvanhimmantie

Sijainti
Asuntoesittely
Tästä ostettavaksi hieman erilainen pienen perheen paritalo arvostetulta Maununnevan pientaloalueelta! Asunnon olohuone ja keittiö ovat avonaista, avaraa tilaa. Olohuoneen vuolukivitakka luo lämpöä ja tunnelmaa talvi-iltoihin. Iso autotalli luo hienot puitteet auto- tai moottoripyöräharrastajalle. Kivan kokoiselle piha-alueelle mahtuu enemmänkin istutuslaatikoita. Velaton yhtiö sijaitsee omalla tontilla ja yhtiövastike onkin vain 84 eur/kk!
Kiinnostuitko? Varaa oma esittelyaikasi välittäjältä!
Pohjakuva

Perustiedot
- Sijainti
- Kirjokalliontie 26 D, 00430, Maununneva, Helsinki
- Omistusmuoto
- Omistusasunto
- Huoneluku
- 2
- Asuinpinta-ala
- 45 m²
- Muu pinta-ala
- 50 m²
- Kokonaispinta-ala
- 95 m²
- Pinta-alan peruste
- Yhtiöjärjestyksen mukainen, Isännöitsijäntodistuksen mukainen
- Lisätiedot pinta-alasta
- Alkujaan 50 m² autotallit, joista erotettu 11 m² suihku-, sauna- ja pukuhuonetiloiksi. Tästä muutoksesta ei ole rakennuslupa-asiakirjoja saatavilla.
- Kohteen tyyppi
- Paritalo
- Kerros
- 1 / 1
- Rakennusvuosi
- 1984
- Käyttöönottovuosi
- 1984
- Kohde myydään vuokrattuna
- Ei
- Vapautuminen
- Heti
Hinta ja kustannukset
- Velaton hinta
- 129 000 €
- Myyntihinta
- 129 000 €
- Yhtiövastike
- Hoitovastike 89 € / kk, Yhtiövastike yhteensä 89 € / kk
- Vesimaksu
- 28 € / hlö
- Sähköliittymä siirtyy
- Kyllä
- Neliöhinta
- 2 866,67 € / m²
- Lisätietoja maksusta
- Lisätietoja vastikkeista: Asunto on kuolinpesän hallinnassa eikä sähkönkulutuksesta ole tietoja
Tilat ja materiaalit
- Keittiön lattiat
- Parketti
- Keittiön seinät
- Maali
- Keittiön varusteet
- Liesituuletin, jääkaappipakastin, astianpesukone, ja erillisuuni
- Liesi
- erillisuuni integroitu
- Kylpyhuoneen seinät
- Kaakeli
- Kylpyhuoneen lattiat
- Laatta
- Kylpyhuoneen varusteet
- Suihku
- WC Lukumäärä
- 1
- Erillinen WC
- laminaattilattia, pyyhekuivain, peili.
- WC:n seinät
- Maali
- Makuuhuoneiden lukumäärä
- 1
- Makuuhuoneiden seinät
- Tapetti
- Makuuhuoneiden lattiat
- Parketti
- Olohuoneen seinät
- Maali ja tapetti
- Olohuoneen lattiat
- Parketti
- Sauna
- Kyllä
- Kiuas
- Sähkökiuas
- Takka
- Takka
Lisätiedot
- Asunnon kunto
- Tyydyttävä
- Terassi
- Kyllä
- Ranta
- Ei rantaa
- Muuta kauppaan kuuluvaa
- Lisätietoja sisältyvistä varusteista: lämminvesivaraaja
- Muut kaupan kannalta merkittävät tiedot
- Toimeksiantaja ei vastaa asunnon kodinkoneiden tai tarpeiston kunnosta. Ilmalämpöpumppu ei toimi.
Taloyhtiö ja kiinteistö
- Taloyhtiön nimi
- Asunto Oy Kirjokalliontie 26
- Isännöitsijätoimisto
- Hallituksen puheenjohtaja
- Tontin pinta-ala
- 1 628 m²
- Tontin omistus
- Oma
- Käyttö/luovutusrajoitukset
- asuinhuoneisto
- Rakennusmateriaali
- Puu
- Lämmitysjärjestelmä
- Puu Sähkö
- Kattotyyppi
- harja
- Katemateriaali
- pelti
- Lisätietoja kiinteistönhoidosta
- Asukkaat
- Taloyhtiöön kuuluu
- Asunto sijaitsee yhtiön rakennuksessa 2. Rakennus on alkujaan ollut talousrakennus, joka on muutettu asuinkäyttöön 1981. Tämä laajennusosa on valmistunut 1984. Yhtiössä on poikkeava yhtiöjärjestys, kukin asunto vastaa omista huolto- ja korjaustoimenpiteistä. Yhtiökokouksen yksimielisellä päätöksellä voidaan tehdä yhteishankintoja tai peruskorjauksia. Katso yhtiöjärjestys!
- Lisätietoja liikenneyhteyksistä
- Hämeenlinnanväylä, Kehä 1.
- Palvelut
- Lähikauppa vieressä, Kaaren palvelut lähellä.
- Koulut
- alueella
- Huoneistoon kuuluu yhtiöjärjestyksen mukaan autopaikka
- Tallipaikka
- Autotallit
- 1
- Kaavatilanne
- Asemakaava
- Lisätiedot kaavoituksesta
- Helsingin kaupunki puh 09 310 1691.
- Asbestikartoitus
- Ei
Tehdyt remontit
2024 autotallin ja pihan puolen ovet uusittu.
2022 räystäskourut, syöksytorvet ja viemärin tuuletusputki uusittu.
2020 jääkaappipakastin uusittu ja pihan koivu kaadettu.
2019 kävelytien puolen lauta-aita uusittu.
2017 peltikatto ruostesuojamaalattu (as. C), eteläpuolen ulkoseinä maalattu, keittiöön uusittu allas, taso ja hana.
2015 katon kunnon tarkastus, ikkunapuitteet öljytty, wc-istuin ja astianpesukone vaihdettu.