Kirjosiivenkierto 6
05440, Metsäkalteva, Hyvinkää
4h+avok+s+kph+2wc+khh+3vh+ kahden auton lämmin talli+varasto
475 000 €
144,5 m²
Tätä asuntoa myy Sami Paulig, Asuntomyyjä
Huoneistokeskus Oy | Helsinki, Runeberginkatu

Sijainti
Asuntoesittely
Todella hieno kolmen makuuhuoneen moderni talo suositulla paikalla.
Upea design betonilattia.
Valoisa ja tilava koti, isot ikkunat, moottoroidut rullaverhot.
Iso saarekkeellinen avokeittiö, kvartsitasot.
Maalämpö, kauttaaltaan vesikiertoinen lattialämmitys.
Sähkönkulutus vuodessa vain 19 500kwh, sisältäen myös sähköauton lataukset.
Tilava rauhallinen tontti 933m2, iso terassi, jossa poreallas.
Autotallissa sähköauton latauspiste, öljynerotuskaivo, vesikiertoinen lattialämmitys maalämmöstä ja vesipiste.
Rauhallinen sijainti uudisalueella, nopea yhteys Helsinki-Tampere tielle, keskustan palvelut 5min.
Tämänkin talon myy:
Sami Paulig
040 5332289
Autan myös sinun kotisi myynnissä.
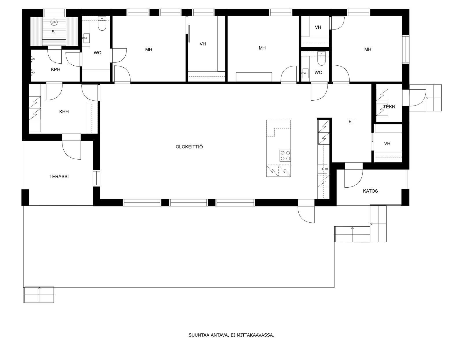
Pohjakuva

Perustiedot
- Sijainti
- Kirjosiivenkierto 6, 05440, Metsäkalteva, Hyvinkää
- Huoneluku
- 4
- Asuinpinta-ala
- 144,5 m²
- Muu pinta-ala
- 49,5 m²
- Kokonaispinta-ala
- 194 m²
- Lisätiedot pinta-alasta
- Autotalli ja varasto 49,5m2.
- Kohteen tyyppi
- Omakotitalo
- Kerros
- 1
- Rakennusvuosi
- 2021
- Käyttöönottovuosi
- 2021
- Kohde myydään vuokrattuna
- Ei
- Vapautuminen
- Sopimuksen mukaan
Tilat ja materiaalit
- Keittiön lattiat
- Betoni
- Keittiön varusteet
- Erillisuuni, liesituuletin, liesi, jääkaappi, mikroaaltouuni, astianpesukone, erillinen pakastin, ja viinikaappi
- Liesi
- Induktioliesi ja erillisuuni
- Kylpyhuoneen seinät
- Kaakeli
- Kylpyhuoneen lattiat
- Laatta
- Kylpyhuoneen varusteet
- Lattialämmitys ja suihku
- WC Lukumäärä
- 2
- WC:n lattiat
- Laatta
- WC:n seinät
- Maali
- Makuuhuoneiden lukumäärä
- 3
- Makuuhuoneiden seinät
- Maali
- Makuuhuoneiden lattiat
- Betoni
- Olohuoneen seinät
- Maali
- Olohuoneen lattiat
- Betoni
- Kodinhoitohuoneen varusteet
- Pesukoneliitäntä, pesuallas, lattiakaivo, pöytätaso, ja lattialämmitys
- Kodinhoitohuoneen seinät
- Maali
- Kodinhoitohuoneen lattiat
- Laatta
- Kohteen säilytystilat
- Vaatehuone ja muu erillinen varasto
- Sauna
- Kyllä
- Kiuas
- Sähkökiuas
- Takka
- Takkavaraus
Lisätiedot
- Asunnon kunto
- Hyvä
- Terassi
- Kyllä
- Muuta kauppaan kuuluvaa
- Lisätietoja sisältyvistä varusteista: ilmalämpöpumppu
Taloyhtiö ja kiinteistö
- Tontin pinta-ala
- 933 m²
- Tontin omistus
- Vuokra
- Tontin tyyppi
- Tasamaatontti
- Tontin myyntityyppi
- Koko tontti
- Rakennusmateriaali
- Puu
- Lämmitysjärjestelmä
- Ilmalämpöpumppu Maalämpö vesikiertoinen lattialämmitys
- Kattotyyppi
- Pulpetti
- Katemateriaali
- Konesaumattu peltikate
- Kohteesta on energiatodistus
- Kyllä
- Energialuokka
- A2018
- Lisätietoja liikenneyhteyksistä
- Erinomaiset liikenneyhteydet. Nopea yhteys Helsinki-Tampere tielle.
- Tie perille
- Kyllä
- Koulut
- Alueella
- Kaavatilanne
- Asemakaava
- Muut rakennukset
- Autotalli ja varasto