Kirkkotie 47
04310, Hyrylä, Tuusula
5h+k+khh+s
418 000 € (2 933,33 € / m²)
142,5 m²

Tätä asuntoa myy Valtteri Parikka
Roof Järvenpää | ROOF LKV Keski-Uusimaa Oy

Sijainti
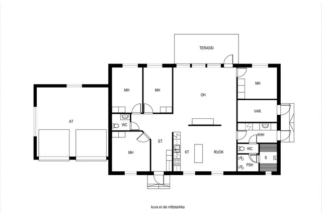
Asuntoesittely
Omakotitalo 5h, k, khh, s
Tämä tilava omakotitalo Tuusulan Kirkonkylässä tarjoaa erinomaiset puitteet perhe-elämälle. Vuonna 2018 valmistunut talo sijaitsee rauhallisella ja halutulla alueella, vain kivenheiton päässä Tuusulanjärvestä ja golfkentästä.
Asunnossa on neljä makuuhuonetta, avara olohuone ja tyylikäs keittiö, jossa on laadukkaat Puustellin materiaalit ja keittiösaareke. Lattialämmitys takaa mukavuuden ympäri vuoden ja maalämpö pitää kustannukset matalana. Sauna ja tilava kodinhoitohuone omalla uloskäynnillä tekevät arjesta sujuvaa.
Oma nurmikkopiha tarjoaa loistavat mahdollisuudet ulkoiluun ja rentoutumiseen. Hyvät liikenneyhteydet ja läheiset palvelut, kuten koulut ja päiväkoti, tekevät arjesta helppoa. Hyrylän monipuoliset palvelut ovat vain parin kilometrin päässä.
Tämä koti on ihanteellinen valinta perheelle, joka arvostaa tilaa, modernia asumista ja erinomaista sijaintia. Tartu tilaisuuteen ja tule tutustumaan tähän upeaan kotiin! Todella edulliset asumiskustannukset!
Myynti, Esittelyt ja Lisätiedot:
Valtteri Parikka
Myyntijohtaja, LKV, LVV
0401614131
[email protected]Pohjakuva

Perustiedot
- Sijainti
- Kirkkotie 47, 04310, Hyrylä, Tuusula
- Omistusmuoto
- Omistusasunto
- Huoneluku
- 5
- Asuinpinta-ala
- 142,5 m²
- Muu pinta-ala
- 7,5 m²
- Kokonaispinta-ala
- 150 m²
- Pinta-alan peruste
- Yhtiöjärjestyksen mukainen, Isännöitsijäntodistuksen mukainen, (Pinta-ala ei ole tarkistusmitattu ja todellinen pinta-ala voi olla suurempi tai pienempi, kuin ilmoitettu)
- Kohteen tyyppi
- Omakotitalo
- Kerros
- 1 / 1
- Rakennusvuosi
- 2018
- Käyttöönottovuosi
- 2018
- Kohde myydään vuokrattuna
- Ei
- Vapautuminen
- Heti
Tilat ja materiaalit
- Keittiön lattiat
- Vinyyli
- Keittiön seinät
- Maali
- Keittiön varusteet
- Jääkaappi, erillinen pakastin, erillisuuni, liesi, liesituuletin, mikroaaltouuni, astianpesukone, ja keittiösaareke
- Liesi
- Induktioliesi
- Kylpyhuoneen seinät
- Kaakeli
- Kylpyhuoneen lattiat
- Laatta
- Kylpyhuoneen varusteet
- WC-istuin, suihku, lattialämmitys, ja suihkuseinä
- WC Lukumäärä
- 1
- WC:n lattiat
- Laatta
- WC:n seinät
- Maali
- Makuuhuoneiden lukumäärä
- 4
- Makuuhuoneiden seinät
- Maali
- Makuuhuoneiden lattiat
- Vinyyli
- Olohuoneen seinät
- Maali
- Olohuoneen lattiat
- Vinyyli
- Kodinhoitohuoneen varusteet
- Pesukoneliitäntä, lattialämmitys, pesuallas, lattiakaivo, pöytätaso, pyykkikaapit, ja tila pesutornille
- Kodinhoitohuoneen seinät
- Maali
- Kodinhoitohuoneen lattiat
- Laatta
- Kohteen säilytystilat
- Lämmin ulkovarasto ja kaapistot
- Sauna
- Kyllä
- Kiuas
- Sähkökiuas
Lisätiedot
- Asunnon kunto
- Hyvä
- Parveke
- Ei parveketta
- Terassi
- Kyllä
- Piha
- Oma nurmikkopiha, Etupiha asfaltoitu
- Ranta
- Ei rantaa
- Hissi
- Ei
Taloyhtiö ja kiinteistö
- Taloyhtiön nimi
- Asunto Oy Tuusulan Kirkkotie 47
- Isännöitsijätoimisto
- Kontu Isännöinti Oy
- Isännöitsijän nimi
- Lilli Puustinen
- Isännöitsijän sähköposti
- [email protected]
- Isännöitsijän puhelin
- 0104118163
- Tontin pinta-ala
- 5 031 m²
- Tontin omistus
- Valinnainen vuokratontti
- Maanvuokraaja
- OP Tonttirahasto Ky
- Tontin vuosivuokra
- 11 814,12 €
- Vuokra-aika päättyy
- 26.03.2068
- Tontin lunastushinta
- 130 000 €
- Rakennusmateriaali
- Puu
- Lämmitysjärjestelmä
- Maalämpö Lattialämmitys
- Ilmanvaihto
- Koneellinen ilmanvaihto
- Vesijohto
- Kunnallisvesi
- Viemäröinti
- Kunnallinen viemäriverkosto
- Kattotyyppi
- Harjakatto
- Katemateriaali
- Pelti
- Lisätietoja kiinteistönhoidosta
- Asukkaat
- Taloyhtiössä on
- Kaapeli-tv
- Lunastusoikeus yhtiöllä
- Ei
- Lunastusoikeus osakkaille
- Ei
- Kohteesta on energiatodistus
- Kyllä
- Energialuokka
- C2018
- Energiatodistuksen voimassaolo
- 20.2.2028
- Liikenneyhteydet
- Bussipysäkki lähellä, sujuvat yhteydet omalla autolla, hyvät pyöräilytiet, lentokenttä ja hyvä kulkuyhteys
- Paikallistiedot
- Tuusulan järven vieressä upealla paikalla. Golf kenttä vieressä.
- Palvelut
- Hyrylän kaikki palvelut n. 2km päässä.
- Koulut
- Tuusulanjärven koulu n. 400m, Rykmentinpuiston koulu n. 2,3km, Hyrylän Lukio n. 3km
- Huoneistoon kuuluu yhtiöjärjestyksen mukaan autopaikka
- Pistokkeellinen pihapaikka ja pistokkeellinen katospaikka
- Taloyhtiön autopaikat
- Asunnolle kuuluu 1 kpl pistokkeellinen katospaikka sekä 1 kpl sähkötolppapaikka
- Autokatokset
- 6
- Sähköpistokepaikkoja
- 6 kpl
- Taloyhtiöllä sauna
- Ei
- Kaavatilanne
- Asemakaava
- Lisätietoja kunnossapitotarveselvityksestä
- - Kiinteistön huoltokirjanmukaiset toimet ja huoltokirjan ylläpitäminen - salaojien kuvaus - iv-kanavien puhdistus 2025 - julkisivumaalaus
Tehdyt remontit
- E-talon asfaltoinnin kaatojen korjaus 2021 (takuukorjaus)
- sadevesijohteiden huuhtelun ja kuvaus 2022/Drainman Oy
- Mallirakennus Oy asensi E, F autokatoksen edessä olevaan SV-kaivoon takuukorjauksena
sulanapitokaapelin /Suomen Sähköturva OY/2023
