Kirnukoskentie 36
31410, Ylöpirtti, Somero
5h+k+2*psh+s+khh+wc+et+aula
279 000 €
174 m²

Tätä asuntoa myy Samu Pohjola, Kiinteistönvälittäjä, LKV
Huoneistokeskus Oy | Forssa

Sijainti
Asuntoesittely
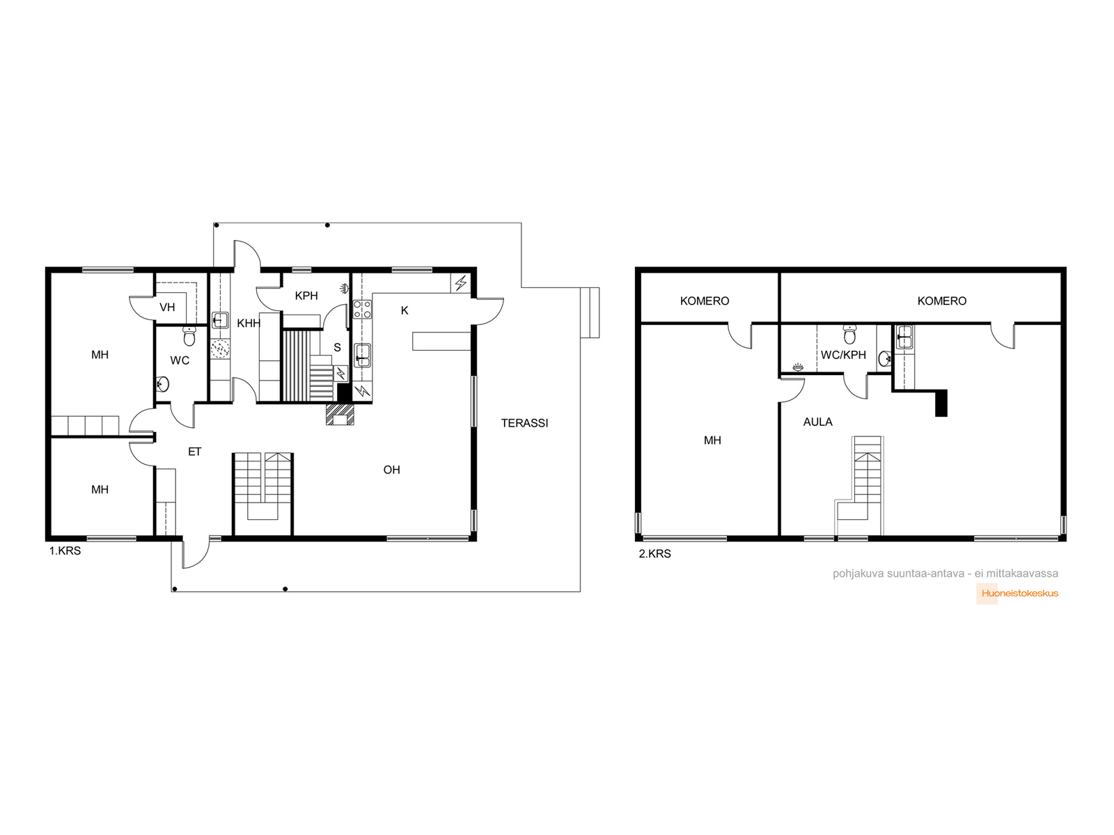
Valoisa ja tilava omakotitalo peltomaisemissa tarjoaa ihanteelliset puitteet perheasumiseen. Vuonna 2013 valmistuneessa ja 2016 lopputarkastetussa talossa tilat ovat on kahdessa kerroksessa ja sen pinta-ala on 174/212 m². Talossa on 4 makuuhuonetta, kaksi kylpyhuonetta ja erillinen wc, joten tilaa riittää isommallekin perheelle.
Avarassa olohuoneessa on varaava takka, joka tuo lämpöä ja tunnelmaa. Toimiva keittiö on varusteltu laadukkailla kodinkoneilla, ja keittiöstä on suora käynti lasitetulle ja katetulle terassille.
Yläkerrassa kylpyhuone / wc, aula, lämmin ullakkovarasto, sekä kaksi isoa makuuhuonetta, joista toisessa "mini keittiö"
Talon lämmitysjärjestelmä on energiatehokas, vuonna 2022 asennettu poistoilmalämpöpumppu. Lämmönjako kaikissa tiloissa tapahtuu lattialämmityksen kautta. Koneellinen ilmanvaihto lämmöntalteenotolla takaa raikkaan sisäilman, kaksi ilmalämpöpumppua tuo lisää asumismukavuutta.
Talon vieressä autotallirakennus, jossa autokatos, sekä reilusti lämmintä varastotilaa.
Iso 4060 m²:n tontti, kunnan vesiliittymä.
Matkaa Someron keskustaan n. 7 km ja Forssaan n. 19 km.
Tämä koti on täydellinen valinta perheelle tai pariskunnalle, joka arvostaa modernia asumista, laatua ja luonnonläheistä elämää. Tule ihastumaan paikan päälle!
Katso kohteen kuvat ja 3D esittely ja sovi oma esittelyaika.
Samu Pohjola, 050-557 6785, [email protected]
Pohjakuva

Perustiedot
- Sijainti
- Kirnukoskentie 36, 31410, Ylöpirtti, Somero
- Huoneluku
- 5
- Asuinpinta-ala
- 174 m²
- Muu pinta-ala
- 38 m²
- Kokonaispinta-ala
- 212 m²
- Lisätiedot pinta-alasta
- Pinta-alatiedot on saatu rakennuspiirustuksista, eikä niitä ole tarkistusmitattu.
- Kohteen tyyppi
- Omakotitalo
- Kerros
- 2
- Rakennusvuosi
- 2013
- Käyttöönottovuosi
- 2013
- Kohde myydään vuokrattuna
- Ei
- Vapautuminen
- Sopimuksen mukaan
Hinta ja kustannukset
- Myyntihinta
- 279 000 €
- Sähköliittymä siirtyy
- Kyllä
- Neliöhinta
- 1 603,45 € / m²
- Lisätietoja maksusta
- Tietoja kiinteistöverosta: 568,83 €. Lisätietoja vastikkeista: Varainsiirtovero 3 % kauppahinnasta. Esitetyt asumiskustannukset perustuvat nykykäyttöön ja voivat siten olla pienempiä tai suurempia, riippuen asukasmäärästä, asumistottumuksista sekä palveluntarjoajasta.
Tilat ja materiaalit
- Keittiön lattiat
- korkki
- Keittiön seinät
- Tapetti ja osalaatoitus
- Keittiön varusteet
- Astianpesukone, jääkaappipakastin, liesituuletin, ja liesi
- Liesi
- Induktioliesi
- Kylpyhuone
- Myös yläkerran wc:ssä kylpyamme / suihku
- Kylpyhuoneen seinät
- Kaakeli
- Kylpyhuoneen lattiat
- Laatta
- Kylpyhuoneen varusteet
- Suihku
- WC Lukumäärä
- 2
- WC:n lattiat
- Laatta
- WC:n seinät
- Kaakeli
- Makuuhuoneet
- Alakerran makuuhuoneissa lattiat korkkiparkettia, yläkerrassa mäntyparkettia
- Makuuhuoneiden lukumäärä
- 4
- Makuuhuoneiden seinät
- Tapetti
- Makuuhuoneiden lattiat
- Parketti ja korkki
- Olohuoneen seinät
- Tapetti
- Olohuoneen lattiat
- korkki
- Kodinhoitohuoneen varusteet
- Pesukoneliitäntä
- Kodinhoitohuoneen seinät
- Maali
- Kodinhoitohuoneen lattiat
- Laatta
- Säilytystilojen kuvaus
- Yläkerrassa pitkä, lämmin "ullakkovarasto"
- Kohteen säilytystilat
- Ullakko ja yläkerrassa pitkä lämmin "ullakkovarasto"
- Sauna
- Kyllä
- Kiuas
- Puukiuas
- Takka
- Takka
Lisätiedot
- Asunnon kunto
- Hyvä
- Terassi
- Kyllä
- Lisätietoja terassista
- Lasitettu terassi
- Muuta kauppaan kuuluvaa
- Lisätietoja sisältyvistä varusteista: ilmalämpöpumppu
Taloyhtiö ja kiinteistö
- Tontin pinta-ala
- 4 060 m²
- Tontin omistus
- Oma
- Tontin tyyppi
- Rinnetontti
- Tontin myyntityyppi
- Koko tontti
- Rakennusmateriaali
- Puu
- Lämmitysjärjestelmä
- Ilmalämpöpumppu vesikiertoinen lattialämmitys
- Lisätietoja viemäristä
- Naapurin kanssa yhteinen peinpuhdistamo järjestelmä.
- Kattotyyppi
- Pulpetti
- Katon kunto
- Hyvä
- Katemateriaali
- Pelti
- Lisätietoja energiatodistuksesta
- Laaditaan kuntotarkastuksen yhteydessä
- Tie perille
- Kyllä
- Palvelut
- Someron keskustaan n. 7 km, Forssaan n. 19 km.
- Kaavatilanne
- Kaavoittamaton
- Kaavoitustiedot
- Someron kaupunki
- Muut rakennukset
- Autotalli
- Lisätietoa muista rakennuksista
- Autotallirakennuksessa lämmin autotalli, autokatos ja varastotilaa.
