Kitiniementie 9
95230, MAKSNIEMI, Simo
5h+k
339 000 €
121,2 m²

Tätä asuntoa myy Raimo Pohjanen, Kiinteistönvälittäjä, LKV
Huoneistokeskus Oy | Kemi

Sijainti
Asuntoesittely
Loistelias , ainutlaatuinen merenranta kiinteistö tarjolla autotalleine, pihasaunoineen ym. rakennuksineen. Suuri 2 ha:n tontti, joka ulottuu merenrantaan asti, oma ruopattu veneväylä melkein pihaan asti. Eteläpuolella meri ja pohjoispuolella lampi, rakennukset ovat kauniisti veden ympäröimänä. Hoidettua pihaa riittävästi! Koti ja mökki samassa paketissa!
Varaa esittelysi!
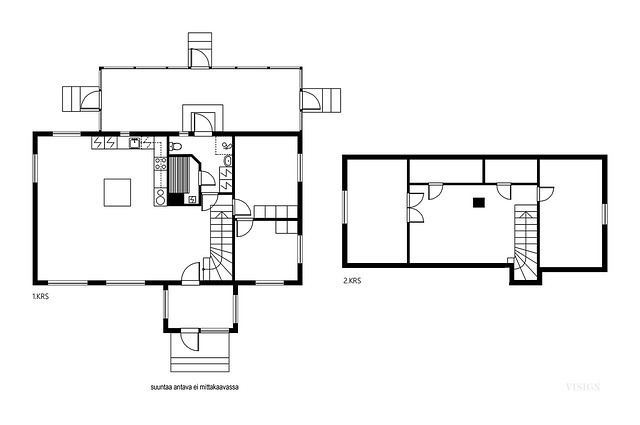
Pohjakuva

Perustiedot
- Sijainti
- Kitiniementie 9, 95230, MAKSNIEMI, Simo
- Huoneluku
- 5
- Asuinpinta-ala
- 121,2 m²
- Muu pinta-ala
- 12,9 m²
- Kokonaispinta-ala
- 134,1 m²
- Kohteen tyyppi
- Omakotitalo
- Kerros
- 2
- Rakennusvuosi
- 2000
- Lisätietoja rakennusvuodesta
- talo 2000, laajennus 2007
- Käyttöönottovuosi
- 2000
- Kohde myydään vuokrattuna
- Ei
- Vapautuminen
- Sopimuksen mukaan
Tilat ja materiaalit
- Keittiön lattiat
- Vinyyli
- Keittiön seinät
- Tapetti
- Keittiön varusteet
- Liesi, astianpesukone, jääkaappi, mikroaaltouuni, ja kiinteät valaisimet, liesituuletin / hormi
- Liesi
- Induktioliesi
- Kylpyhuoneen seinät
- Kaakeli
- Kylpyhuoneen lattiat
- Laatta
- Kylpyhuoneen varusteet
- Suihku, lattialämmitys, peilikaappi, ja wc-istuin
- WC Lukumäärä
- 2
- WC:n lattiat
- Laatta
- WC:n seinät
- Maali
- Makuuhuoneiden lukumäärä
- 4
- Makuuhuoneiden seinät
- Tapetti
- Makuuhuoneiden lattiat
- Vinyyli ja laminaatti
- Olohuoneen seinät
- Tapetti
- Olohuoneen lattiat
- Vinyyli
- Kodinhoitohuoneen varusteet
- Pesukoneliitäntä, silityspöytä/taso, lattialämmitys, pyykkikaapit, pesuallas, ja lattiakaivo
- Kodinhoitohuoneen seinät
- Maali ja kaakeli
- Kodinhoitohuoneen lattiat
- Laatta
- Sauna
- Kyllä
- Kiuas
- Puukiuas
Lisätiedot
- Asunnon kunto
- Hyvä
- Terassi
- Kyllä
- Lisätietoja terassista
- Lasitettu terassi
- Ranta
- Oma ranta
- Omaa rantaa (m)
- 80
- Vesistön nimi
- Perämeri
- Muuta kauppaan kuuluvaa
- Lisätietoja sisältyvistä varusteista: kaapistot, sälekaihtimet/rullaverhot, verhotangot
Taloyhtiö ja kiinteistö
- Tontin pinta-ala
- 2,013 ha
- Tontin omistus
- Oma
- Tontin tyyppi
- Rantatontti
- Tontin myyntityyppi
- Koko tontti
- Tontin tiedot
- Merenrantatontti, veneväylä ulottuu tontille, vesijättömaata vähän tontin etureunoilla.
- Rakennusmateriaali
- Puu
- Lämmitysjärjestelmä
- Puu Maalämpö vesikiertoinen lattialämmitys, uuni/takka
- Kattotyyppi
- harja
- Katemateriaali
- Huopa
- Tie perille
- Kyllä
- Kaavatilanne
- Yleiskaava
- Muut rakennukset
- Liiteri, autotalli, ja varasto saunarakennus