Kokkopolku 2
56100, Rautiala, Ruokolahti
5h,k,s,tkh,työh.
158 000 €
156 m²

Tätä asuntoa myy Tapani Puustinen, Asuntomyyjä, KiAT
Huoneistokeskus Oy | Imatra

Sijainti
Asuntoesittely
Kauniilla paikalla Käringin järven läheisyydessä hyvin pidetty iso omakotitalo. Kolme makuuhuonetta, takkahuone ja työhuone tarjoavat tilat isollekin perheelle. Talo sijaitsee kivasti mäen päällä. Marja ja sienimaastot alkaa talon vierestä ja järvelle matkaa vajaa kilometri. Hyvin varastotilaa ja kahden auton autotalli. Leivinuuni keittiössä ja takka takkahuoneessa luovat kivasti lämpöä. Jos kaipaat omaa rauhaa luonnon keskellä mutta kuitenkin palveluiden ja koulun lähellä niin tähän vaihtoehtoon kannatta tutustua.
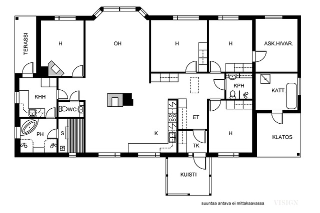
Pohjakuva

Perustiedot
- Sijainti
- Kokkopolku 2, 56100, Rautiala, Ruokolahti
- Huoneluku
- 5
- Asuinpinta-ala
- 156 m²
- Muu pinta-ala
- 21 m²
- Kokonaispinta-ala
- 177 m²
- Lisätiedot pinta-alasta
- Rakennusala: asunto 156m2, taloustilat 18m2. Pinta-alat saatu piirustuksista ja myyjältä.
- Kohteen tyyppi
- Omakotitalo
- Kerros
- 1
- Rakennusvuosi
- 1996
- Käyttöönottovuosi
- 1996
- Kohde myydään vuokrattuna
- Ei
- Vapautuminen
- Sopimuksen mukaan
Tilat ja materiaalit
- Keittiön lattiat
- Laminaatti
- Keittiön seinät
- Maali ja osalaatoitus lasikuitutapetti
- Keittiön varusteet
- Jääkaappi, uuni, liesituuletin, astianpesukone, ja kiinteät valaisimet
- Liesi
- Keraaminen liesi ja leivinuuni
- Kylpyhuoneen seinät
- Kaakeli
- Kylpyhuoneen lattiat
- Laatta
- Kylpyhuoneen varusteet
- Suihku, lattialämmitys, ja kiinteät valaisimet
- WC Lukumäärä
- 2
- WC:n lattiat
- Laatta
- WC:n seinät
- Kaakeli
- Makuuhuoneiden lukumäärä
- 3
- Makuuhuoneiden seinät
- Tapetti
- Makuuhuoneiden lattiat
- Laminaatti
- Olohuone
- olohuoneessa Karelia paneeli .
- Olohuoneen lattiat
- Laminaatti
- Kodinhoitohuoneen varusteet
- Pöytätaso, keskuspölynimuri, pyykkikaapit, pesukoneliitäntä, lattiakaivo, ja lattialämmitys
- Kodinhoitohuoneen seinät
- Kaakeli ja puu
- Kodinhoitohuoneen lattiat
- Laatta
- Kohteen säilytystilat
- Ullakko ja ulkovarasto
- Sauna
- Kyllä
- Kiuas
- Sähkökiuas
- Takka
- Takka
Lisätiedot
- Asunnon kunto
- Hyvä
- Muut tilat
- makuuhuoneissa hirsipaneeli
- Muuta kauppaan kuuluvaa
- Lisätietoja sisältyvistä varusteista: hälytys- /valvontajärjestelmä, istutukset, jätesäiliö, kaapistot, keskuspölynimuri, kiinteät valaisimet, matontamppausteline, naulakko, parveke-/terassilasitus, verhotangot
Taloyhtiö ja kiinteistö
- Tontin pinta-ala
- 1 802 m²
- Tontin omistus
- Oma
- Tontin tyyppi
- Rinnetontti
- Tontin myyntityyppi
- Koko tontti
- Rakennusmateriaali
- elementti
- Lämmitysjärjestelmä
- Öljy Puu vesikiertoinen patterilämmitys, uuni/takka
- Lisätietoja viemäristä
- muovi
- Kattotyyppi
- harja
- Katon kunto
- Hyvä
- Katemateriaali
- Pelti
- Rakennusoikeus
- 300
- Tie perille
- Kyllä
- Kaavatilanne
- Asemakaava
- Asbestikartoitus
- Ei
- Muut rakennukset
- Autotalli ja liiteri
- Lisätietoa muista rakennuksista
- kahden auton talli 45m2. Puuliiterissä 6m2 lämmin tila.
