Kontioniementie 40
80780, Kontioniemi, Kontiolahti
89 000 €
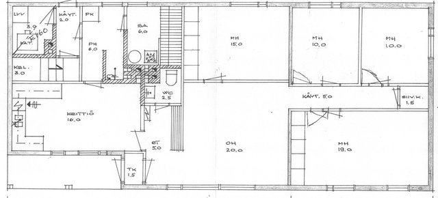
124 m²

Tätä asuntoa myy Jarmo Hyttinen, Kiinteistönvälittäjä
LKV OGZ | Jokaisen Huoneistokauppa Oy *

Sijainti
Asuntoesittely
Tilava, isommallekin perheelle sopiva koti metsäalueen vieressä!
Kontioniemessä, rauhallisella asuinalueella, sijaitsee tämä viehättävä omakotitalo, joka tarjoaa ihanteelliset puitteet perhe-elämälle. Vuonna 1965 valmistunut ja vuonna 1999 laajennettu talo tarjoaa tilavat 124 neliötä, joihin kuuluu neljä makuuhuonetta.
Tontti on reilun kokoinen, 3.330 neliömetriä, ja se rajoittuu metsäalueeseen, mikä luo rauhallisen ja luonnonläheisen ympäristön. Pihapiiristä löytyy myös autokatos kahdelle autolle sekä todella tilava aitta/varasto ja puuliiteri.
Sisätiloissa on puulattiat sekä pääosin paneeliseinäpintoja, jotka luovat lämpimän ja kodikkaan tunnelman. Keittiö on uusittu vuonna 1999. Talon lämmitysmuoto puukeskuslämmitys pitää lämmityskustannukset kohtuullisina.
Sijainti on erinomainen – Kontiolahden keskustan palvelut ovat vain 7 kilometrin päässä ja Joensuuhunkin on matkaa noin 17 kilometriä.
Tartu tilaisuuteen ja tee tästä talosta sinun kotisi!
Soita ja kysy lisää: Jarmo Hyttinen 040 541 1568.Perustiedot
- Sijainti
- Kontioniementie 40, 80780, Kontioniemi, Kontiolahti
- Huoneluku
- 5
- Asuinpinta-ala
- 124 m²
- Kokonaispinta-ala
- 124 m²
- Pinta-alan peruste
- Pinta-ala ei ole tarkistusmitattu ja todellinen pinta-ala voi olla suurempi tai pienempi, kuin ilmoitettu
- Kohteen tyyppi
- Omakotitalo
- Kerros
- 1
- Rakennusvuosi
- 1965
- Lisätietoja rakennusvuodesta
- Talo on valmistunut alun perin 1965 ja taloa on laajennettu vuonna 1999 (kolme makuuhuonetta lisää).
- Käyttöönottovuosi
- 1965
- Kohde myydään vuokrattuna
- Ei
- Vapautuminen
- Sopimuksen mukaan
Tilat ja materiaalit
- Keittiön lattiat
- Lauta
- Keittiön seinät
- Puu
- Keittiön varusteet
- Jääkaappi, erillinen pakastin, ja liesi
- Liesi
- Keraaminen liesi
- WC Lukumäärä
- 1
- WC:n lattiat
- Muovimatto
- WC:n seinät
- Maali
- Makuuhuoneiden lukumäärä
- 4
- Makuuhuoneiden seinät
- Puu
- Makuuhuoneiden lattiat
- Lauta
- Olohuoneen seinät
- Puu
- Olohuoneen lattiat
- Lauta
- Kohteen säilytystilat
- Kaapistot
- Sauna
- Kyllä
- Kiuas
- Puukiuas
Lisätiedot
- Asunnon kunto
- Tyydyttävä
- Terassi
- Kyllä
- Lisätietoja terassista
- Katettu terassi.
- Hissi
- Ei
- Muut kaupan kannalta merkittävät tiedot
- Metsäalueen vieressä.
Taloyhtiö ja kiinteistö
- Tontin pinta-ala
- 3 330 m²
- Tontin omistus
- Oma
- Tontin tyyppi
- Rinnetontti
- Tontin myyntityyppi
- Koko tontti
- Rakennusmateriaali
- Puu
- Lämmitysjärjestelmä
- Puukeskuslämmitys
- Ilmanvaihto
- Painovoimainen ilmanvaihto
- Vesijohto
- Kunnallisvesi
- Viemäröinti
- Kunnallinen viemäriverkosto
- Kattotyyppi
- Harjakatto
- Katemateriaali
- Pelti
- Kohteesta on energiatodistus
- Ei lain edellyttämää energiatodistusta
- Lisätietoja energiatodistuksesta
- Energiatodistus laaditaan.
- Liikenneyhteydet
- Sujuvat yhteydet omalla autolla
- Tie perille
- Kyllä
- Palvelut
- Kontiolahden keskustan palvelut n. 7 km. Uuron ABC/Sale kauppa n. 4,6 km. Joensuuhun n. 17 km.
- Koulut
- Lehmon koulut.
- Kaavatilanne
- Yleiskaava
- Rakennusvaihe
- Valmis
- Asbestikartoitus
- Ei
- Lisätietoa muista rakennuksista
- Autokatos kahdelle autolle, aitta/varasto, puuliiteri ja varasto.
Tehdyt remontit
Laajennus v. 1999. keittiö uusittu v. 1999.
