Korkalonkatu 4
96100, Keskusta, Rovaniemi
200 000 €

Tätä asuntoa myy Markus Torvinen, Myyntineuvottelija
Sp-Koti Rovaniemi | Kiinteistönvälitys Rovaniemen Tähelliset LKV Oy

Sijainti
Asuntoesittely
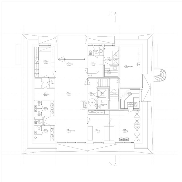
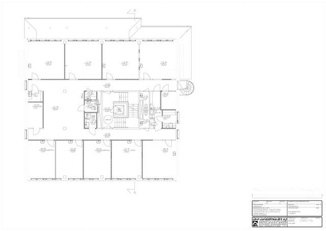
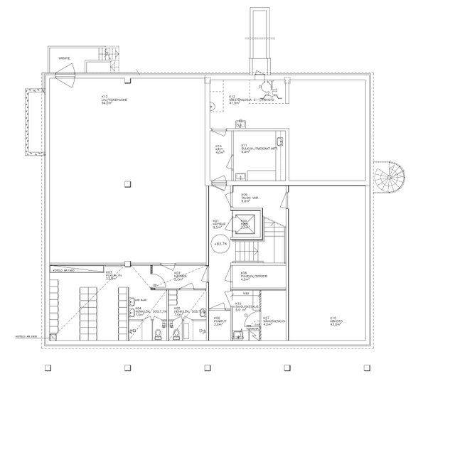
Myynnissä on toimistotila kerrostalo Rovaniemen keskustassa, osoitteessa Korkalonkatu 4. Tämä 1983 valmistunut viisi kerroksinen kokonaisuus toimii tällä hetkellä toimistotilana ja avoimena päiväkotina.
Rovaniemen Kaupunki käynnistää alueella asemakaavamuutoksen jolla voidaan tarkentaa alueen käyttötarkoitusta ja rakennusoikeutta yhteistyössä uuden omistajan kanssa. Tämän hetkiset vuokratulot kuukaudessa ovat yhteensä 29 938,88€ alv 0% (+ voimassaoleva arvonlisävero), tämä antaa erinomaisen pohjan kiinteistön kehittämiselle. Rakennuksen myynnin yhteydessä Rovaniemen kaupunki vuokraa tontin, lunastus mahdollisuutta ei ole. Tontin vuosivuokra on 8173,00 €/ vuosi nykyisellä YS-kaavalla.
Tämä on erinomainen mahdollisuus sijoittajalle tai yritykselle, joka etsii tilaa keskeiseltä paikalta ja haluaa hyödyntää Rovaniemen keskustan tarjoamat mahdollisuudet!
Huutokaupan lähtöhinta 200 000 EUR
Huutokauppa päättyy huutokaupat.com - sivustolla keskiviikkona 22.10.2025 klo 15 tai kolme minuuttia
korkeimman tarjouksen jälkeen. Rovaniemen kaupunki pidättää oikeuden hyväksyä tai hylätä korkeimman tarjouksen.
Lisätietoja kohteesta ja myyntiehdoista kts. huutokaupat.com kohdenumero: 5742595
Perustiedot
- Sijainti
- Korkalonkatu 4, 96100, Keskusta, Rovaniemi
- Kokonaispinta-ala
- 2 359 m²
- Pinta-alan peruste
- Pinta-ala ei ole tarkistusmitattu ja todellinen pinta-ala voi olla suurempi tai pienempi, kuin ilmoitettu
- Lisätiedot pinta-alasta
- Digi- ja väestötietoviraston otteen mukaan rakennuksen kokonaisala on 2359m2 ja kerrosala 1984m2.
- Kohteen tyyppi
- Kerrostalo
- Kerros
- 5
- Rakennusvuosi
- 1983
- Kohde myydään vuokrattuna
- Kyllä
- Vapautuminen
- Sopimuksen mukaan
Tilat ja materiaalit
Lisätiedot
- Asunnon kunto
- Tyydyttävä
- Ranta
- Ei rantaa
- Hissi
- Kyllä
Taloyhtiö ja kiinteistö
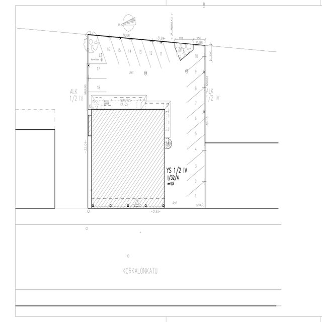
- Tontin pinta-ala
- 991 m²
- Tontin omistus
- Vuokra
- Tontin tyyppi
- Tasamaatontti
- Tontin myyntityyppi
- Koko tontti
- Maanvuokraaja
- Rovaniemen Kaupunki
- Tontin tiedot
- Rovaniemen kaupunki tekee maanvuokrasopimuksen uuden omistajan kanssa. Vuokra-aika on maapoliittisen ohjelman ja kaupungin maanvuokrasopimusten yleisesti käyttämien ehtojen mukaisesti 60 vuotta. Vuokrahinnat sidotaan elinkustannusindeksin pistelukuun 2332 (2024). Maanvuokrasopimuksessa noudatetaan maanvuokralain (258/66) 5 luvun mukaisia ehtoja. Muilta osin käytetään kaupunginhallituksen hyväksymiä yleisiä ehtoja. Tontin lunastusmahdollisuutta ei ole.
- Tontin vuosivuokra
- 8 173 €
- Rakennusmateriaali
- Betoni
- Lämmitysjärjestelmä
- Kaukolämpö
- Vesijohto
- Kunnallisvesi
- Viemäröinti
- Kunnallinen viemäriverkosto
- Katemateriaali
- Bitumikermi ja pelti
- Rakennusoikeus
- 1486
- Lisätietoa rakennusoikeudesta
- Kaupunki käynnistää alueella asemakaavamuutoksen jolla voidaan tarkentaa alueen käyttötarkoitusta ja rakennusoikeutta. Kaupunki pidättää itsellään oikeuden maanvuokraehtojen ja vuokran tarkistamiseen mahdollisen asemakaavamuutoksen saatua lainvoiman.
- Kohteesta on energiatodistus
- Ei lain edellyttämää energiatodistusta
- Kaavatilanne
- Asemakaava
- Kaavoitustiedot
- YS
- Kuntotarkastus tehty
- 05.09.2022
- Asbestikartoitus
- Ei