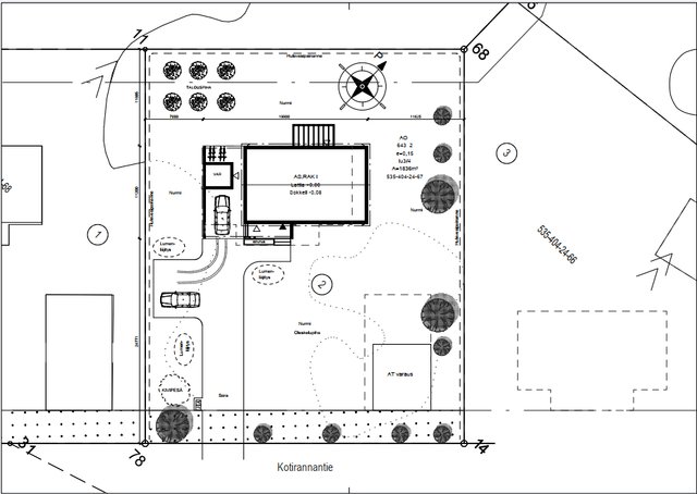
Kotirannantie 4
85500, Pirttiranta, Nivala
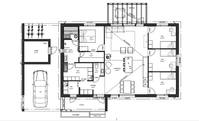
4mh+oh/k+khh+ph+s+et+ark.et+wc+vh+ak+var.
256 000 €
124,5 m²

Tätä asuntoa myy Sakari Myllyneva, Kiinteistönvälittäjä, LKV, LVV, KiLAT
Kiinteistönvälitys Keidas Lkv Oy

Sijainti
Asuntoesittely
Ennakkomarkkinoinnissa oleva omakotitalo tarjoaa modernia asumismukavuutta Pirttirannan halutulla asuin alueella. Talo sijaitsee Nivalan kaupungin vuokratontilla.
Tämä näyttävä ja laadukkaasti rakennettava muuttovalmis koti on järkevästi suunniteltu, joka mahdollistaa toimivan arjen monenlaisissa elämäntilanteissa. Neljän makuhuoneen kokonaisuudessa yhdistyvät käytännöllisyys sekä tilan tehokas käyttö. Kohteessa on reilun kokoinen olohuone/keittiö, jonka isot ikkunat ja vino sisäkatto tekevät tilasta valoisan ja avaran. Saarekkeellinen keittiö on varusteltu laadukkaasti ja sieltä löytyy kaikki tarvittava arjen sujuvuuteen. Myös erillinen arkieteinen lisää arjen mukavuutta. Taloa täydentää katettu etuterassi, pergolamallinen takaterassi, ulkovarasto, sekä auto- ja pyöräkatokset.
Talon lämmitysjärjestelmä koostuu kaukolämmöstä ja vesikiertoisesta lattialämmityksestä, mikä takaakin miellyttävän asumislämpötilan. Lisäksi talossa on varaava takka, jolla saa luotua lisälämpö ja tunnelmaa talvisiin iltoihin.
Sijainti on erinomainen perheille, sillä lähistöltä löytyy päiväkoti, koulut ja kattavat urheilu / harrastusmahdollisuudet. Nivalan keskustan palvelut ovat myös kätevästi saavutettavissa.
Tämä talo on loistava valinta perheelle, joka arvostaa modernia asumista rauhallisella ja lapsiystävällisellä alueella. Tartu tilaisuuteen, ostamalla kohteen nyt ennakkomyynnistä pääset halutessasi vaikuttamaan mm. kohteen toteutukseen ja sisustusmateriaaleihin.
Kohteen myyntikuvat ovat havainne kuvia eivätkä vastaa kaikilta osin lopullista toteutusta.
Kysy rohkeasti lisätietoja!
Sinua palvelee: Sakari p.044 5045840, [email protected]
tai
Heidi p.044 5282013, [email protected]
Pohjakuva

Perustiedot
- Sijainti
- Kotirannantie 4, 85500, Pirttiranta, Nivala
- Huoneluku
- 5
- Asuinpinta-ala
- 124,5 m²
- Kokonaispinta-ala
- 124,5 m²
- Lisätiedot pinta-alasta
- Asuinpinta-ala 124,5 m2. Kerrosala 148 m2.
- Kohteen tyyppi
- Omakotitalo
- Kerros
- 1
- Rakennusvuosi
- 2026
- Lisätietoja rakennusvuodesta
- Arvioitu rakentamisen aloitusvuosi 2025-2026. Valmistumisvuosi tarkentuu rakentamisen aloitusajan mukaan.
- Kohde myydään vuokrattuna
- Ei
- Vapautuminen
- Sopimuksen mukaan
Tilat ja materiaalit
- Keittiön kuvaus
- Keittiössä korotettu / vino sisäkatto. Ostaja pääsee vaikuttamaan materiaali valintoihin, ennalta valitun laadukkaan toimitus sisällön mukaan. Muutoksista johtuvat lisäkustannukset sovitaan muutos hinnan mukaan.
- Keittiön lattiat
- Vinyyli
- Keittiön seinät
- Maali
- Keittiön varusteet
- Jääkaappi, erillinen pakastin, uuni, liesi, liesituuletin, astianpesukone, ja keittiösaareke
- Kylpyhuoneen seinät
- Kaakeli
- Kylpyhuoneen lattiat
- Laatta
- Kylpyhuoneen varusteet
- WC-istuin, suihku, pesuallas, ja lattialämmitys
- WC Lukumäärä
- 1
- WC:n lattiat
- Laatta
- WC:n seinät
- Maali
- Makuuhuoneiden lukumäärä
- 3
- Makuuhuoneiden seinät
- Maali
- Makuuhuoneiden lattiat
- Vinyyli
- Olohuone
- Olohuoneessa korotettu / vino sisäkatto.
- Olohuoneen seinät
- Maali
- Olohuoneen lattiat
- Vinyyli
- Kodinhoitohuoneen varusteet
- Pesukoneliitäntä, lattialämmitys, pyykkikaapit, pöytätaso, ja tila pesutornille
- Kodinhoitohuoneen seinät
- Maali
- Kodinhoitohuoneen lattiat
- Laatta
- Säilytystilojen kuvaus
- Autokatoksen yhteydessä varastohuone.
- Kohteen säilytystilat
- Vaatehuone, autokatos, pyöräkatos, kaapistot ja kylmä ulkovarasto
- Sauna
- Kyllä
- Kiuas
- Sähkökiuas
- Takka
- Varaava takka
Lisätiedot
- Asunnon kunto
- Uusi
- Lisätietoja kunnosta
- Ennakkomarkkinoinnissa / uusi / muuttovalmis.
- Terassi
- Kyllä
- Lisätietoja terassista
- Sisääntulossa katettu terassi. Takana pergolamallinen avo-terassi.
- Muut tilat
- Eteisessä ja arkieteisessä laatta lattia, maalatut seinät ja mdf-paneeli katossa.
- Lisätietoa seinien pintamateriaaleista
- Pääasiassa maalattu kipsilevy, kosteissa tiloissa kaakeli. Ostaja pääsee vaikuttamaan materiaali valintoihin. Muutoksista johtuvat lisäkustannukset sovitaan muutos hinnan mukaan.
- Lisätietoa lattioiden pintamateriaaleista
- Vinyyli ja laatta. Kosteissa tiloissa laatta. Ostaja pääsee vaikuttamaan materiaali valintoihin. Muutoksista johtuvat lisäkustannukset sovitaan muutos hinnan mukaan.
- Lisätietoa katon pintamateriaaleista
- Pääasiallinen kattomateriaali Mdf-paneeli. Saunassa ja pesuhuoneessa puu-paneeli. Ostaja pääsee vaikuttamaan materiaali valintoihin. Muutoksista johtuvat lisäkustannukset sovitaan muutos hinnan mukaan.
- Kauppaan ei kuulu
- Pihatyöt.
Taloyhtiö ja kiinteistö
- Tontin pinta-ala
- 0,1836 ha
- Tontin omistus
- Vuokra
- Tontin tyyppi
- Tasamaatontti
- Tontin myyntityyppi
- Koko tontti
- Maanvuokraaja
- Nivalan kaupunki
- Tontin tiedot
- Tontti on vuokrattavissa tai lunastettavissa Nivalan kaupungilta. Kaupungin 10/2025 tonttihinnaston mukaan tontin vuosivuokra 600,80€ ja myyntihinta 12 016€.
- Tontin vuosivuokra
- 600 €
- Rakennusmateriaali
- Puu
- Lämmitysjärjestelmä
- Kaukolämpö Vesikiertoinen lattialämmitys
- Ilmanvaihto
- Koneellinen ilmanvaihto
- Vesijohto
- Kunnallisvesi
- Viemäröinti
- Kunnallinen viemäriverkosto
- Kattotyyppi
- Harjakatto
- Katemateriaali
- Pelti
- Tie perille
- Kyllä
- Kaavatilanne
- Asemakaava ja yleiskaava
- Rakennusvaihe
- Ennakkomarkkinoinnissa
