Koukkukatu 10
70820, Litmanen, Kuopio
Oh+th+rt+3mh+k+khh+ph+s
315 000 €
163 m²

Tätä asuntoa myy Jari LKV Heikkinen, Myyntijohtaja, kaupanvahvistaja, insinööri
Huoneistokeskus Oy | Kuopio

Sijainti
Asuntoesittely
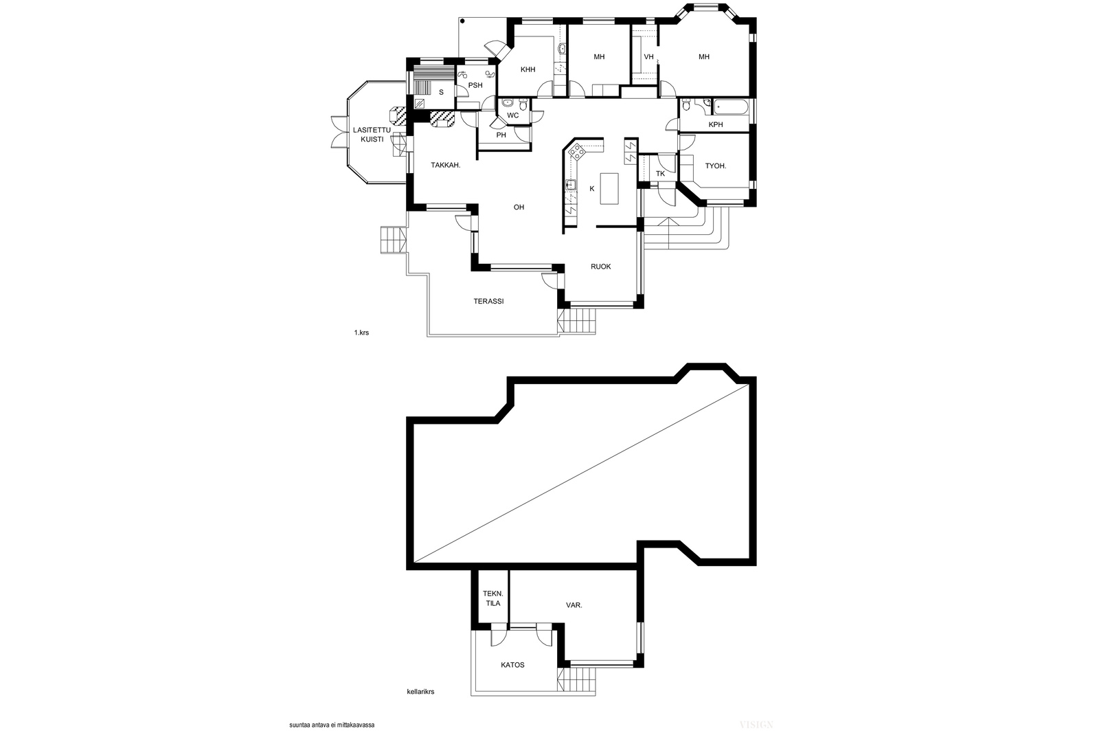
Tervetuloa tutustumaan tähän hyvin pidettyyn, vuonna 1994 valmistuneeseen omakotitaloon, joka sijaitsee aurinkoisella omalla tontilla suositulla Litmasen alueella!
Talo tarjoaa erinomaiset puitteet isommankin perheen arkeen: kolme tilavaa makuuhuonetta, avara olohuone sekä viihtyisä takkahuone luovat mukavat ja toimivat asuintilat. Vuonna 2014 uusittu, tyylikäs keittiö ruokailutiloineen on kokkaajan unelma; laadukkaat Scavolinin kaapistot ja Gaggenaun uuni nostavat ruoanlaiton uudelle tasolle.
Sisustus hurmaa kauniilla parkettilattioilla ja siisteillä, ajattomilla pinnoilla. Arjen sujuvuutta lisäävät erillinen wc suihkun kera, kylpyhuone ja tunnelmallinen saunaosasto. Tilavasta kodinhoitohuoneesta on käynti suoraan ulos. Takkahuoneesta ja olohuoneesta avautuvat käynnit kahdelle terassille, joista toinen on lasitettu. Näin saat lisäneliöitä käyttöön keväästä pitkälle syksyyn. Helppohoitoinen pihapiiri tarjoaa viihtyisän ympäristön niin oleskeluun kuin lasten leikkeihinkin.
Lisätilaa tarjoaa talosta erillään oleva huonetila kellarikerroksessa omalla sisäänkäynnillä, joka on loistava ratkaisu työhuoneeksi, harrastekäyttöön tai vaikka teinin omaksi rauhaisaksi tilaksi. Vuonna 2024 valmistunut autokatos ja tilava varasto tuovat arkeen käytännöllisyyttä ja säilytystilaa.
Taloa on huollettu ja päivitetty vuosien varrella huolella: remontoitu on mm. kodinhoitohuone ja toinen wc, uusittu terassit, pinnoitettu katto, sekä vaihdettu ilmastointikone ja lämmönvaihdin.
Varaathan yksityisesittelysi, niin lähdetään tutustumaan yhdessä tähän kauniiseen kotiin!
Pohjakuva

Perustiedot
- Sijainti
- Koukkukatu 10, 70820, Litmanen, Kuopio
- Huoneluku
- 6
- Asuinpinta-ala
- 163 m²
- Muu pinta-ala
- 73 m²
- Kokonaispinta-ala
- 236 m²
- Lisätiedot pinta-alasta
- Pinta-alatiedot on saatu Kuopion kaupungin rakennus ja huoneistorekisteriotteesta, eikä niitä ole tarkistusmitattu, joten ne saattavat poiketa olennaisestikin nykymääräysten mukaan mitattavista pinta-aloista.
- Kohteen tyyppi
- Omakotitalo
- Kerros
- 1
- Rakennusvuosi
- 1994
- Käyttöönottovuosi
- 1994
- Kohde myydään vuokrattuna
- Ei
- Vapautuminen
- Sopimuksen mukaan
Hinta ja kustannukset
Tilat ja materiaalit
- Keittiön kuvaus
- Scavolinin kaapistot
- Keittiön lattiat
- Laatta
- Keittiön seinät
- Maali
- Keittiön varusteet
- Jääkaappipakastin, erillisuuni, jääkaappi, erillinen pakastin, liesi, mikroaaltouuni, astianpesukone, ja kiinteät valaisimet, liesituuletin / hormi
- Liesi
- Induktioliesi ja erillisuuni
- Kylpyhuoneen seinät
- Kaakeli
- Kylpyhuoneen lattiat
- Laatta
- Kylpyhuoneen varusteet
- Lattialämmitys, peili, suihkuseinä, suihku, wc-istuin, allaskaappi, ja kiinteät valaisimet
- WC Lukumäärä
- 3
- WC:n lattiat
- Laatta
- WC:n seinät
- Kaakeli
- Makuuhuoneiden lukumäärä
- 3
- Makuuhuoneiden seinät
- Maali ja tapetti
- Makuuhuoneiden lattiat
- Parketti
- Olohuoneen seinät
- Maali
- Olohuoneen lattiat
- Parketti
- Kodinhoitohuoneen varusteet
- Lattialämmitys, pyykkikaapit, kurapiste, pöytätaso, keskuspölynimuri, pesukoneliitäntä, ja pesuallas
- Kodinhoitohuoneen seinät
- Kaakeli
- Kodinhoitohuoneen lattiat
- Laatta
- Kohteen säilytystilat
- Ullakko, ulkovarasto, vaatehuone ja muu erillinen varasto
- Sauna
- Kyllä
- Kiuas
- Puukiuas
- Takka
- Takka
Lisätiedot
- Asunnon kunto
- Hyvä
- Ranta
- Ei rantaa
- Muut tilat
- Erillisellä sisäänkäynnillä harrastetila/työhuone ja wc
- Muuta kauppaan kuuluvaa
- Lisätietoja sisältyvistä varusteista: hälytys- /valvontajärjestelmä, ilmalämpöpumppu, istutukset, jätesäiliö, kaapistot, keskuspölynimuri, kiinteät valaisimet, parveke-/terassilasitus, satelliittiantenni, sälekaihtimet/rullaverhot, verhotangot
Taloyhtiö ja kiinteistö
- Tontin pinta-ala
- 1 268 m²
- Tontin omistus
- Oma
- Tontin tyyppi
- Rinnetontti
- Tontin myyntityyppi
- Koko tontti
- Rakennusmateriaali
- Tiili
- Lämmitysjärjestelmä
- Ilmalämpöpumppu Kaukolämpö vesikiertoinen patterilämmitys, vesikiertoinen lattialämmitys
- Kattotyyppi
- Harjakatto
- Katemateriaali
- Tiilikatto
- Rakennusoikeus e-luku
- 0.3
- Lisätietoja energiatodistuksesta
- Energiatodistus tilataan
- Tie perille
- Kyllä
- Kaavatilanne
- Asemakaava
- Kaavoitustiedot
- Kuopion kaupunki
- Muut rakennukset
- Autokatos ja varasto
- Lisätietoa muista rakennuksista
- Autokatos/varasto rakennettu 2024, sähkötyöt kesken, tarkastamatta
