Koukkuniementie 16 A
02230, Koukkuniemi, Matinkylä, Espoo
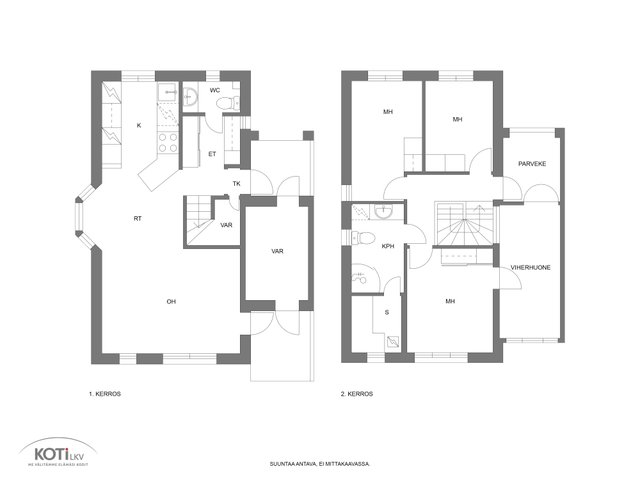
4h, k, s, kph, wc+ viherhuone+ lämmin varasto
489 000 € (5 494,38 € / m²)
89 m²

Tätä asuntoa myy Eija Rouvali, Kiinteistönvälittäjä LKV
KOTI LKV | Uudenmaan Laatuvälitys Oy

Sijainti
Asuntoesittely
HYVÄKUNTOINEN KOTI- OMA TERASSIPIHA- KETJUTALO- YHTIÖLLÄ OMA VENELAITURI- JA- UIMARANTA- ASUNNOLLE KUULUU AUTOKATOSPAIKKA, JOSSA SÄHKÖAUTONLATAUS- UPEAT ULKOILUMAASTOT
Arvostetulla Koukkuniemen asuin alueella Espoossa sijaitseva kompakti ja viehättävä "ketjutalo".= Huoneistossa ei ole yhteistä asuinseinää naapurihuoneiston kanssa, sillä asuntojen välissä sijaitsevat varastotilat.
Merenranta asumista parhaimmillaan sillä, taloyhtiöllä on käytössä oma venelaituri ja uimaranta. Taloyhtiön pihapiiri on myös kaunis ja hyvin hoidettu. Huoneistolle kuuluu autokatospaikka, jossa on valmius sähköautonlataukseen.
Hyvän pohjaratkaisun ansioista ei asunnossa ole hukkaneliöitä, keittiö avautuu luontevasti ruokailutilan kautta valoisaan olohuoneeseen, josta käynti huoneiston omalle terassi piha-alueelle. Oma sauna tarjoaa rentouttavia hetkiä arjen kiireiden keskellä. Tämän asunnon erikoisuutena on n. 10 m² viherhuone, joka tuo lisätilaa ja mahdollisuuksia harrastuksille tai rentoutumiselle. Säilytystilaa on hyvin ja huoneistokohtainen n. 6m² lämmin varasto sijaitsee kätevästi huoneiston sisäänkäynnin vieressä. Kahden makuuhuoneen ikkunoista osittainen merinäköala.
Tartu tilaisuuteen ja tule tutustumaan tähän upeaan kotiin, joka tarjoaa rauhallista asumista meren läheisyydessä ja Kauppakeskus Ison Omenan ja Matinkylän tarjoamien hyvien palveluiden äärellä. Alueella myös koulut ja päiväkodit. Esittelyt sopimuksen mukaan. Soita ja varaa oma esittelysi.
Myyntiä hoitaa Eija Rouvali 044 -770-7-770
Perustiedot
- Sijainti
- Koukkuniementie 16 A, 02230, Koukkuniemi, Matinkylä, Espoo
- Omistusmuoto
- Omistusasunto
- Huoneluku
- 4
- Asuinpinta-ala
- 89 m²
- Kokonaispinta-ala
- 89 m²
- Pinta-alan peruste
- (Pinta-ala ei ole tarkistusmitattu ja todellinen pinta-ala voi olla suurempi tai pienempi, kuin ilmoitettu)
- Lisätiedot pinta-alasta
- Ei tarkistusmitattu. Pinta-alat saattavat tämän ikäisissä kohteissa (yhtiö rekisteröity ennen 01.01.1992) poiketa olennaisestikin asuinrakennusten nykyisten mittaustapojen ja standardien (SFS 5139) mukaan laskettavasta asuintilojen pinta-alasta. Pinta-ala voi siis olla edellä mainittua pienempi tai suurempi.
- Kohteen tyyppi
- Rivitalo
- Kerros
- 1 / 2
- Rakennusvuosi
- 1985
- Käyttöönottovuosi
- 1985
- Kohde myydään vuokrattuna
- Ei
- Vapautuminen
- 3 kk kaupanteosta tai sopimuksen mukaan
Hinta ja kustannukset
- Velaton hinta
- 489 000 €
- Myyntihinta
- 475 593,84 €
- Velkaosuus
- 13 406,16 €
- Yhtiövastike
- Hoitovastike 467,25 € / kk (5,25 € / os.), Rahoitusvastike 276,22 € / kk (3,10 € / os.), Yhtiövastike yhteensä 743,47 € / kk
- Autopaikkamaksu
- 5 € / kk
- Vesimaksu
- 25 / kk
- Neliöhinta
- 5 494,38 € / m²
- Lisätietoja maksusta
- Sähköautonlatauksesta suoritetaan kulutukseen perustuva maksu.
Tilat ja materiaalit
- Keittiön kuvaus
- Kaapistot, jääkaappi / pakastinyhdistelmä, induktioliesi, kiertoilmauuni, aktiivihiilisuodatin, astianpesukone, seinät maalattu, lattia laatoitettu.
- Kylpyhuone
- Ikkunalla varustettu kylpyhuone, suihku, kääntyvät Svedberg lasiset kääntyvät suihkuseinät (sävy: savunharmaa), wc-istuin, peilikaapit, allaskaapit, pesukoneliitäntä, pesuallas, vesikiertoinen lattialämmitys, seinät laatoitettu, lattia laatoitettu.
- Erillinen WC
- Kahdella ikkunalla varustettu wc, peili, allaskaappi, wc-istuin, seinät paneloitu, lattia laatoitettu.
- Makuuhuoneet
- Makuuhuoneiden seinät maalattu, lattiat parkettia.
- Olohuone
- Valoisa olohuone, josta käynti huoneiston terassi piha-alueelle. Seinät maalattu, lattia parkettia.
- Säilytystilojen kuvaus
- Huoneistossa vaatekaappeja, sekä huoneiston sisäänkäynnin vieressä noin 6,5m² lämmin varasto. Varaston lämmitys on sähkölämmitys ja on liitetty huoneiston sähköön.
- Sauna
- Kyllä
- Saunan kuvaus
- Ikkunalla varustettu sauna, seinät paneloitu, lattia laatoitettu.
Lisätiedot
- Asunnon kunto
- Hyvä
- Piha
- Taloyhtiöllä on todella siisti, hyvin hoidettu ja kaunis piha-alue. Yhtiön venepaikka on ainoastaan taloyhtiön osakkaiden käytössä, sitä ei saa lainata tai vuokrata eteenpäin.
- Muut tilat
- Eteisen ja tuulikaapin seinät maalattu, lattiat laatoitettu. (mukavuuslattialämmitys)
- Muuta kauppaan kuuluvaa
- Ikkunoiden sälekaihtimet (siellä, minne asennettu). Portaikon ikkunoissa puiset Design sälekaihtimet, Olohuoneen ja makuuhuoneiden seinähyllylevyt. Lämpimän varaston kiinteät hyllyt sekä iso vaatekaappi jäävät. Portaiden alla sijaitsevat kaapistot on kiinnitetty seinään ja jäävät paikoilleen.
Taloyhtiö ja kiinteistö
- Taloyhtiön nimi
- Asunto Oy Koukkunokka
- Isännöitsijätoimisto
- Oiva Isännöinti Oy
- Isännöitsijän nimi
- Juha Juntunen
- Isännöitsijän puhelin
- 010 755 6533
- Tontin pinta-ala
- 4 375 m²
- Tontin omistus
- Oma
- Rakennusmateriaali
- Tiili ja puu
- Lämmitysjärjestelmä
- Kaukolämpö
- Ilmanvaihto
- Koneellinen poisto
- Kattotyyppi
- Harjakatto
- Katemateriaali
- Tiili
- Lisätietoja kiinteistönhoidosta
- Huoltoyhtiö
- Kiinteistönhoidon lisätiedot
- Selco Oy
- Lunastusoikeus yhtiöllä
- Ei
- Lunastusoikeus osakkaille
- Ei
- Kohteesta on energiatodistus
- Kyllä
- Energialuokka
- D2018
- Energiatodistuksen voimassaolo
- 12.7.2032
- Taloyhtiöön kuuluu
- Huolto- ja autokatosrakennus sekä venelaituri. Antennijärjestelmä: satelliitti-tv (DVB-S)
- Paikallistiedot
- Kauppakeskus Ison Omenan kattavat palvelut lähellä, Matinkylän palvelut lähellä.
- Koulut
- Matinlahdenkoulu 1-6 luokka. Mattlidens skola ruotsinkielinen koulu 1-9 luokkaa Matinkylän lukio
- Huoneistoon kuuluu yhtiöjärjestyksen mukaan autopaikka
- Pistokkeellinen katospaikka
- Lisätietoja huoneiston autopaikasta
- Autokatospaikassa on sähköautonlataus mahdollisuus.
- Autokatokset
- 12
- Piha-autopaikkoja
- 6 kpl
- Kaavatilanne
- Asemakaava
- Lisätiedot kaavoituksesta
- Espoon kaupunki 09-816 21
- Asbestikartoitus
- Ei
Tehdyt remontit
2025- putkiston kuntokartoitus
2024- pihan asfalttikorjaukset
2023-2024- ilmanvaihtokanavien nuohous ja tasapainotus
2023- lämmitys- ja käyttövesiverkoston säätöurakka, sis termostaattiventtiilien vaihto
2023- B8 ikkunaerkkerin korjaus
2022- A1 ikkunaerkkerin korjaus
2022- sähköautojen latauspaikkojen suunnittelu ja toteutus
2022- kiinteistön kuntoarvio, märkätilojen kosteuskartoitus
2022- energiaselvitys, maalämpöön siirtymiseksi
2021- lukituksen uudistaminen
2021- viherhuoneiden kattojen pesu
2020- ikkunoiden ulkopuolinen huoltomaalaus ja kittauskorjaukset
2018- C-talon maanvastaisten seinärakenteiden kuntotutkimuksia ja korjauksia
2018- aidat uusittu
2017- A-B-talojen ulkoseinärakenteiden kuntotutkimuksia j
2017- huoneistoissa paikallisesti todettujen kosteusvaurioiden korjaaminen
2017- A-B-taloissa ilmavuotojen tiivistyksiä ja ikkunapellityksien uusimista
2016- yläpohjarakenteen eristekerroksen lisääminen (puhallusvilla)
2016- A-, B- ja C-talojen tiilikatteiden uusiminen
2015- A-ja B-talojen kattoremontti
2014- viherhuoneiden / parvekkeiden valokatteiden uusimistyö
2012-2013- IV-kanavien nuohous
2013- A- ja B- talojen räystäskourujen uusimistyö
2011- autolämmitysrasioiden uusiminen
2009- C-talon vesikattosaneeraus (huopakate)
2009- lämmönvaihtimen sekä asuntokohtaisten sulkuventtiilien uusiminen
2008- ikkunoiden ulkopuitteiden huoltomaalaus
2001- A-, B- sekä C- talon tiiliverhouksen uusiminen
Tulevat remontit
Kunnossapitotarveselvitys vuosille 2025-2029
2026- vesikattojen kartoitus ja perushuolto
2025-2027- ulkovalaistuksen uudistaminen
2025-2027- Halkosatamantielle vievien portaiden ja kulkukäytävän korjaus
2027-2028- autokatoksen korjaus
Viherhuoneiden katot pesetetään 2-3 vuoden välein (viimeksi vuonna 2021)
