Kruunutilankatu 2
21110, Naantali
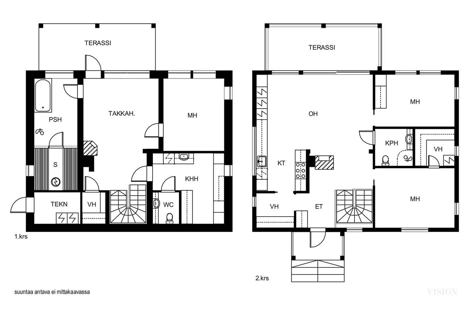
3 mh, oh, k, kh, s, khh
450 000 €
146 m²

Tätä asuntoa myy Nina Vehviläinen, Kiinteistönvälittäjä, LKV
Huoneistokeskus Oy | Turku

Sijainti
Asuntoesittely
Moderni ja energiatehokas hirsitalo Tammistossa – tunnelmaa, tilaa ja laatua omalla tontilla
Tämä vuonna 2021 valmistunut A-energialuokan hirsitalo tarjoaa harvinaisen yhdistelmän kodikkuutta, laatua, nykyaikaisuutta ja edullisia asumiskustannuksia. Hirsitalon luonnollinen hengittävyys ja miellyttävä sisäilma tekevät asumisesta terveellistä ja viihtyisää.
Koti sijaitsee omalla tontilla rauhallisen päättyvän tien varrella, missä yksityisyys ja hiljaisuus ovat osa arkea. Huolella suunniteltu pohjaratkaisu palvelee sekä arjen sujuvuutta että yhteisiä hetkiä, ja tilaratkaisut vastaavat vaativankin asujan toiveisiin.
Kohteen kohokohdat:
•Energiatehokas A-luokan hirsitalo – matalat asumiskustannukset ja miellyttävä sisäilma
•Oma tontti rauhallisella päättyvällä tiellä
•Avara ja valoisa pohjaratkaisu, tilava keittiö runsaalla säilytystilalla
•Kolme makuuhuonetta, joista yksi alakerrassa – päämakuuhuoneessa oma vaatehuone
•Sauna pitkine lauteineen ja kylpyamme kylpyhuoneessa tuovat arkeen ripauksen luksusta
•Etelään avautuva katettu parveke sekä suojaisa oleskeluterassi alakerrassa
Toimiva arki ja erinomainen sijainti: arjen sujuvuus on huomioitu kaikessa. Erillinen vuonna 2024 valmistunut piharakennus, jossa kahden auton katos ja tilava varasto, tarjoaa runsaasti säilytystilaa ja käytännöllisyyttä esimerkiksi harrastusvälineille tai kausitavaroille. Kodinhoitohuone on poikkeuksellisen tilava ja hyvin varusteltu, mikä helpottaa perheen arkea ja pitää kodin järjestyksessä. Helppohoitoinen piha tekee ulkotilojen ylläpidosta vaivatonta ja vapauttaa aikaa nauttimiseen.
Kesähelteillä asumismukavuutta lisää ilmalämpöpumppu, joka viilentää tilat tehokkaasti ja miellyttävästi. Talvella puolestaan takat molemmissa kerroksissa tarjoavat tunnelmallista ja kustannustehokasta lisälämpöä.
Tammiston päiväkoti sekä Lietsalan ja Karvetin alakoulut sijaitsevat kävelyetäisyydellä, samoin lähikaupat. Lähin linja-autopysäkki on noin kilometrin päässä, ja alueelta on sujuvat yhteydet Turkuun sekä valtatie 8:lle – liikkuminen on helppoa niin arjessa kuin vapaa-ajalla.
Tämä koti ei ole vain paikka asua – se on paikka viihtyä. Tule tutustumaan ja ihastu!
Pohjakuva

Perustiedot
- Sijainti
- Kruunutilankatu 2, 21110, Naantali
- Huoneluku
- 4
- Asuinpinta-ala
- 146 m²
- Kokonaispinta-ala
- 146 m²
- Lisätiedot pinta-alasta
- Kokonaispinta-ala 181 m². Pinta-alatietoja ei ole tarkistusmitattu.
- Kohteen tyyppi
- Omakotitalo
- Kerros
- 2
- Rakennusvuosi
- 2021
- Käyttöönottovuosi
- 2021
- Kohde myydään vuokrattuna
- Ei
- Vapautuminen
- Sopimuksen mukaan
Hinta ja kustannukset
- Myyntihinta
- 450 000 €
- Puhtaanapito (€/kk)
- 8,63 €
- Sähköliittymä siirtyy
- Kyllä
- Neliöhinta
- 3 082,19 € / m²
- Lisätietoja maksusta
- Tietoja kiinteistöverosta: 645,59 €. Lisätietoja vastikkeista: Kaupanvahvistajan kulu erääntyy puoliksi ostajan ja myyjän maksettavaksi. Varainsiirtovero 3% kauppahinnasta. Lainhuutokustannukset erääntyvät ostajan maksettavaksi.
Tilat ja materiaalit
- Keittiön kuvaus
- Puustelli. Keittiön ja olohuoneen välinen seinä leca-väliseinäharkko, maalattu molemmin puolin. Keittiö seinät hirsi, kipsilevy maalattu, leca-väliseinäharkko maalattu, katto hirsipaneeli, lattia kaakeli ja vesieristetty.
- Keittiön lattiat
- Laatta
- Keittiön varusteet
- Liesi, mikroaaltouuni, jääkaappi, erillisuuni, liesituuletin, erillinen pakastin, astianpesukone, ja kiinteät valaisimet
- Liesi
- Induktioliesi ja erillisuuni
- Kylpyhuone
- PH alakerta kaakeli seinät ja lattia, seinät ja lattia vesieristetty, katto lehmus paneeli. Pesuhuoneessa kylpyamme, kalusteet Stark.
- Kylpyhuoneen varusteet
- Suihku, lattialämmitys, ja kiinteät valaisimet
- WC Lukumäärä
- 2
- Erillinen WC
- Yläkerta PH lattia ja seinät kaakeli, lattia ja seinät vesieristetty, katto Tervaleppä paneeli, kalusteet Stark, seinä- WC. Alakerran WC laatta seinät ja lattia, seinät ja lattia vesieristetty, katto terveleppäpaneeli, seinä-WC. WC-kalusteet alakerrassa puustelli.
- WC:n lattiat
- Laatta
- WC:n seinät
- Kaakeli
- Makuuhuoneet
- Yläkerran makuuhuoneet: seinät hirsi, hirsipaneeli, maali (rapattu/tasoitettu leca-väliseinäharkko), katto hirsipaneeli. Alakerta MH seinät leca-lämpöharkko maalattu. Katto paneeli. Alakerran kaikki seinät sisältä verkotettu lasikuitverkolla tasoituksen yhteydessä. Pohjatasoite sementti / pintatasoite kipsi. Maalit Tikkurilan Harmony / Tunto hieno.
- Makuuhuoneiden lukumäärä
- 3
- Makuuhuoneiden lattiat
- Laatta
- Olohuone
- Yläkerran oleskelutila: seinät hirsi/hirsipaneeli, katto hirsipaneeli. Alakerran OH/takkahuone lattia laatta, seinät maalattu harkko, katto paneeli.
- Olohuoneen lattiat
- Laatta
- Kodinhoitohuoneen varusteet
- Pöytätaso, pesuallas, pyykkikaapit, pesukoneliitäntä, lattiakaivo, ja lattialämmitys
- Kodinhoitohuoneen seinät
- Maali
- Kodinhoitohuoneen lattiat
- Laatta
- Kodinhoitohuone
- KHH seinät leca-lämpöharkko maalattu (Tikkurila luja, kestää roiskevettä), lattia laatta ja vesieristetty, katto tervaleppä-paneeli. Kalusteet Puustelli.
- Säilytystilojen kuvaus
- 2 kpl vaatehuonetta (yläkerta ja alakerta)
- Kohteen säilytystilat
- 2 kpl vaatehuonetta (yläkerta ja alakerta)
- Sauna
- Kyllä
- Kiuas
- Sähkökiuas
- Saunan kuvaus
- Sauna seinät hirsipaneeli, katto mänty sormipaneeli, lattia laatta vesieristetty Lauteet lämpökäsitelty haapa. Kiuas sähkö 9 kW Harvia Cilindro teräs, digitaalinen ohjaus.
- Takka
- Takka
Lisätiedot
- Asunnon kunto
- Hyvä
- Lisätietoja kunnosta
- Talossa menee laatan alla radon putkitus, joka on tuuletettu katolle. Putki menee sisällä teknisen tilan ja arkieteisen nurkasta katolle. Perustuksissa on myös bituminen radon-sulku.
- Muut tilat
- Vesieristetty: kh, s, alakerran wc (lattia ja seinät), khh (lattia), keittiö, arkieteinen, eteinen (lattia). Arkieteinen seinät hirsi, hirsipaneeli, Kipsilevy maalattu, katto valkolakattu paneeli, lattia laatta ja vesieristetty. Portaat koivu/maalattu runko, portaissa integroitu valaistus. Alakerran kaikki seinät sisältä verkotettu lasikuitverkolla tasoituksen yhteydessä. Pohjatasoite sementti / pintatasoite kipsi. Maalit Tikkurilan Harmony / Tunto hieno. Terassit kestopuuta. Ulkoa sokkeli verkotettu lasikuituverkolla rappauksen yhteydessä. Ulkomaali Virtasen 4-öljyn maali. Maalattu kertaalleen. Suojattu homesuojalla ennen maalausta. Ulkoa sokkeli verkotettu lasikuituverkolla rappauksen yhteydessä. Talo ja autokatos/varasto on perustettu irtilouhitun kallion varaan anturoille ja maanvaraiselle laatalle. Talossa menee laatan alla radon putkitus, joka on tuuletettu katolle. Putki menee sisällä teknisen tilan ja arkieteisen nurkasta katolle. Perustuksissa on myös bituminen radon sulku. Anturat on bitumoitu n. 20 cm sokkeliin ylös. Maan puolella on tuplasalaoja. Salaojiin ja sadevesiin on joka nurkalla oikea 315 cm kaivo ei vain tarkastusputkea. Ulkomaali Virtasen 4-öljyn maali. Maalattu kertaalleen. Suojattu homesuojalla ennen maalausta.
- Muuta kauppaan kuuluvaa
- Lisätietoja sisältyvistä varusteista: ilmalämpöpumppu, kaapistot, kiinteät valaisimet, sälekaihtimet/rullaverhot, verhotangot
- Kauppaan ei kuulu
- irtain
Taloyhtiö ja kiinteistö
- Tontin pinta-ala
- 727 m²
- Tontin omistus
- Oma
- Tontin tyyppi
- Rinnetontti
- Tontin myyntityyppi
- Koko tontti
- Rakennusmateriaali
- Hirsi ja lämpöharkko, painumaton hirsi muu
- Lämmitysjärjestelmä
- Ilmalämpöpumppu vesikiertoinen lattialämmitys
- Kattotyyppi
- harja
- Katon kunto
- hyvä
- Katemateriaali
- tiili Ormax Evo
- Rakennusoikeus
- 250
- Lisätietoa rakennusoikeudesta
- rakennusoikeus 250+50m2
- Kohteesta on energiatodistus
- Kyllä
- Energialuokka
- A2018
- Lisätietoja energiatodistuksesta
- Viimeinen voimassaolopäivä 25.2.2035
- Tie perille
- Kyllä
- Kaavatilanne
- Asemakaava
- Kaavoitustiedot
- erillinen sitova tonttijako, Naantalin kaupunki
- Muut rakennukset
- varasto
- Lisätietoa muista rakennuksista
- Varastossa puurunko, hirsipaneeliverhous, eristeet, sähköpatterilämmitys.