Kumlankatu 27
10300, Karjaa, Raasepori
5h + k + s
75 000 €
116 m²

Tätä asuntoa myy Niko Kujala, Myyntijohtaja, LKV
Huoneistokeskus Oy | Lohja

Sijainti
Asuntoesittely
Tervetuloa tutustumaan tähän hyvin perinteiseen rintamamiestaloon, joka tarjoaa paljon potentiaalia remonttitaitoiselle uudelle omistajalle. Talo vaatii päivitystä, mutta pohjaratkaisu ja sijainti tarjoavat loistavan pohjan luoda toimiva ja kodikas koti.
Tässä talossa on erikoisuutena se, että esteetön arki on otettu huomioon. Talo on varustettu liikuntarajoitteiselle soveltuvilla ratkaisuilla kuten invahissi alakerrasta kellarin pesutiloihin ja saunaan sekä autotalliin, tilava inva-WC sekä invaramppi sisäänkäynnissä.
Taloa on saanut myös uuttakin vuosina 2017-2024 kuten uudet käyttövesiputket, keittiötä ja saunaa päivitetty, alakerran lattiat uusittu, sähköjä osittain päivitetty sekä pihalle perustettu kivipengerretty autopaikka.
Jos kiinnostuit, niin ota yhteyttä ja mennään yhdessä katsomaan, olisiko tämä sinun uusi kotisi.
Perustiedot
- Sijainti
- Kumlankatu 27, 10300, Karjaa, Raasepori
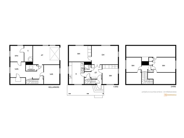
- Huoneluku
- 5
- Asuinpinta-ala
- 116 m²
- Muu pinta-ala
- 48 m²
- Kokonaispinta-ala
- 164 m²
- Lisätiedot pinta-alasta
- Pinta-alatiedot saatu myyjältä ja edellisen omistajan myyntiesitteestä eikä niitä ole tarkastusmitattu. muut tilat ovat kellari, autotalli, vinttitilat sekä muut ei asuintiloihin kuuluvat tilat. Pinta-alat saattavat poiketa olennaisestikin nykyisten standardien mukaan laskettavista ja esitteellä mainituista pinta-aloista. Ostajan halutessa varmistua pinta-alasta, suosittelemme SFS-standardin 5139 mukaista pinta-alamittausta.
- Kohteen tyyppi
- Omakotitalo
- Kerros
- 3
- Rakennusvuosi
- 1960
- Lisätietoja rakennusvuodesta
- Kohteen rakennuslupa- tai lopputarkastusdokumentteja ei ole myyjällä eikä Raaseporin rakennusvalvonnalla.
- Käyttöönottovuosi
- 1960
- Kohde myydään vuokrattuna
- Ei
- Vapautuminen
- n.2kk/sopimuksen mukaan
Hinta ja kustannukset
- Myyntihinta
- 75 000 €
- Sähköliittymä siirtyy
- Kyllä
- Neliöhinta
- 646,55 € / m²
- Lisätietoja maksusta
- Tietoja kiinteistöverosta: 171,97 (2024). Lisätietoja vastikkeista: Öljynkulutus n. 3000 l/v. Käyttösähkö ja lämmitysöljyn kulutus perhekoon ja kulutustottumusten mukaan. Lisäksi nuohous, jätehuolto, vesimaksu ja vakuutukset sekä varainsiirtovero 3%.
Tilat ja materiaalit
- Keittiön lattiat
- Laminaatti
- Keittiön seinät
- Maali
- Keittiön varusteet
- Astianpesukone, jääkaappipakastin, erillisuuni, ja liesituuletin
- Liesi
- Keraaminen liesi ja erillisuuni
- Kylpyhuoneen seinät
- Kaakeli
- Kylpyhuoneen lattiat
- Laatta
- Kylpyhuoneen varusteet
- Suihku
- WC Lukumäärä
- 2
- Erillinen WC
- WC yläkerta: muovimatto, seinät maalattu. peili WC alakerta: laattalattia, lattialämmitys, bidee suihku.
- Makuuhuoneet
- yläkerran makuuhuoneissa muovimatto ja maalatut seinät. alakerran makuuhuoneissa laminaattilattiat ja maalatut seinät.
- Makuuhuoneiden lukumäärä
- 4
- Olohuoneen seinät
- Tapetti
- Olohuoneen lattiat
- Laminaatti
- Kodinhoitohuoneen varusteet
- Pesukone, lattiakaivo, ja pesukoneliitäntä
- Kodinhoitohuone
- kodinhoitotilat kellarin pukuhuoneen yhteydessä
- Kohteen säilytystilat
- Ullakko
- Sauna
- Kyllä
- Kiuas
- Puukiuas
Lisätiedot
- Asunnon kunto
- Tyydyttävä
- Lisätietoja kunnosta
- Asunnon kunnon voi tarkemmin määritellä kuntotarkastuksella
- Muuta kauppaan kuuluvaa
- kiinteät kalusteet ja -valaisimet. istutukset
- Kauppaan ei kuulu
- irtaimisto
Taloyhtiö ja kiinteistö
- Tontin pinta-ala
- 1 387 m²
- Tontin omistus
- Oma
- Tontin tyyppi
- Tasamaatontti
- Tontin myyntityyppi
- Koko tontti
- Tontin tiedot
- Kaunis puutarhatontti, jossa pieni metsä ja istutuksia ja omenapuita
- Rakennusmateriaali
- Puu
- Lämmitysjärjestelmä
- Öljy Sähkö Tyyppi: sähköinen lattialämmitys vesikiertoinen patterilämmitys, sähköinen lattialämmitys
- Kattotyyppi
- harja
- Katemateriaali
- Huopa
- Rakennusoikeus
- 136
- Lisätietoa rakennusoikeudesta
- Rakennusoikeuden määrä tarkastettava aina luvan myöntävältä viranomaiselta
- Lisätietoja liikenneyhteyksistä
- Rautatieasema n.1,4 km. Kantatie 25:lle n.1 km.
- Tie perille
- Kyllä
- Palvelut
- Karjaan keskustan palvelut n.1,5 km.
- Kaavatilanne
- Asemakaava
- Kaavoitustiedot
- 1) Asemakaava (220-26-100) Vahvistamispvm: 18.3.1953 2) Sitova tonttijako (220-337-102) Hyväksymispvm: 24.2.1956 Ti-45-107 3) Asemakaava (220-84-100) Vahvistamispvm: 12.5.1970 Lisätietoja: Raaseporin kaupunki [email protected], 019-289 2000
- Asbestikartoitus
- Ei
- Muut rakennukset
- vaja