Kuortaneentie 611
62160, Karhunkylä, Lapua
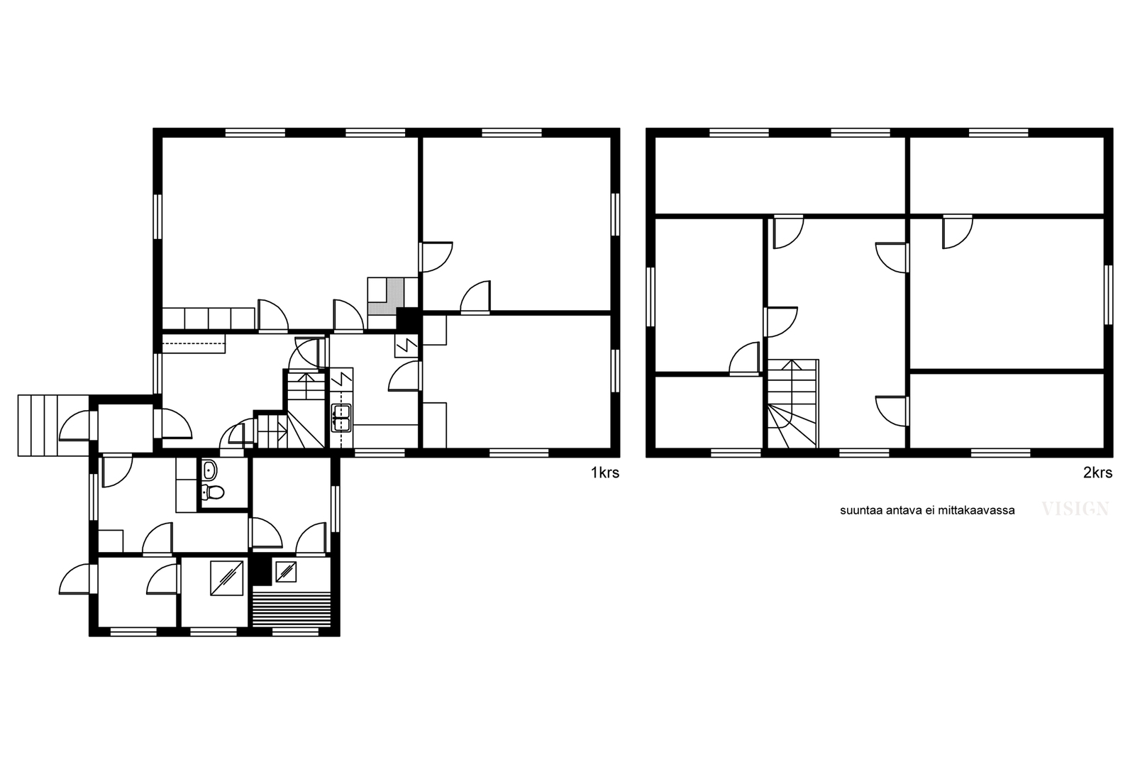
5h,vh/th,k,khh,psh,s,wc,yläkerran aula,ph,varasto,sivukkaat, kellari
45 000 €
166 m²

Tätä asuntoa myy Jaakko Alasaari, Myyntipäällikkö, LKV, YKV, KiAT, kaupanvahvistaja
Huoneistokeskus Oy | Seinäjoki

Sijainti
Asuntoesittely
Nyt olisi tarjolla isolla lähes 7000m2 tilalla -54 rakennettu ja -78 laajennettu osittain hirsirunkoinen 2-kerroksinen hyvin pidetty kodikas omakotitalo Lapuan Karhunkylässä. Taloon on vastikään tehty kuntokartoitus. Tehdyistä remonteista mainittakoon, että alakerran ikkunat on uusittu -00 ja julkisivu 2010 luvun alussa. Talo ja ulkorakennus maalattu -23. Vapautuu nopeasti. Haapakosken koulu n. 1 km ja Lapuan keskustan palvelut n. 6 km. Pihamarkilta saat hedelmäisiä luonnonantimia kuten omenoita, viinimarjoja, luumuja ja vadelmia. Tervetuloa tutustumaan.
Pohjakuva

Perustiedot
- Sijainti
- Kuortaneentie 611, 62160, Karhunkylä, Lapua
- Huoneluku
- 5
- Asuinpinta-ala
- 166 m²
- Muu pinta-ala
- 0 m²
- Kokonaispinta-ala
- 166 m²
- Lisätiedot pinta-alasta
- Pinta-alatieto saatu Rakennus- ja huoneistorekisteriotteesta. Pinta-alaa ei ole tarkistusmitattu. Tämän ikäisissä Mainittu pinta-ala saattaa tämän ikäisessä kohteessa poiketa olennaisesti nykyisten standardien mukaan laskettavasta asuinpinta-alasta. Todellinen asuinpinta-ala voi olla esitteessä mainittua pienempi tai suurempi.
- Kohteen tyyppi
- Omakotitalo
- Kerros
- 2
- Rakennusvuosi
- 1956
- Lisätietoja rakennusvuodesta
- Tieto talon valmistumisvuodesta on otettu Rakennus- ja huoneistorekisteriotteesta. Talon alkuperäistä rakennuslupaa ei ole saatavilla, eikä alkuperäisen rakennuksen loppukatselmuksesta ole tietoa. Taloa on laajennettu -77/-78.
- Käyttöönottovuosi
- 1956
- Kohde myydään vuokrattuna
- Ei
- Vapautuminen
- 3 viikkoa kaupanteosta
Hinta ja kustannukset
- Myyntihinta
- 45 000 €
- Sähköliittymä siirtyy
- Kyllä
- Neliöhinta
- 271,08 € / m²
- Lisätietoja maksusta
- Tietoja kiinteistöverosta: 203,63 euroa. Lisätietoja vastikkeista: Lämmityskustannukset on ollut n. 2000 euroa/v (pidetty peruslämmöllä). Talo on ollut asumattomana n. 4 vuotta. Kulutustietoja ei ole sen vuoksi saatavilla.
Tilat ja materiaalit
- Keittiön kuvaus
- Katto maalattu.
- Keittiön lattiat
- Muovimatto
- Keittiön seinät
- Maali ja laatta
- Keittiön varusteet
- Uuni, jääkaappipakastin, liesi, astianpesukone, ja liesituuletin / hormi, kiinteät valaisimet
- Liesi
- sähköliesi leivinuuni
- Kylpyhuone
- Kylpyhuone rakennettu -70 luvun lopulla lisäsiiven rakentamisen yhteydessä. Katossa puupaneeli. Varustuksena kaareva suihkuverhotanko. Pesuhuoneessa tuuletusikkuna.
- Kylpyhuoneen seinät
- Kaakeli
- Kylpyhuoneen lattiat
- Laatta
- Kylpyhuoneen varusteet
- Suihku, pesukoneliitäntä, lattialämmitys, ja kiinteät valaisimet
- WC Lukumäärä
- 1
- Erillinen WC
- Lisäsiiven yhteydessä rakennettu wc -70 luvun lopulla. Wc-istuin uusittu n. 10 vuotta sitten. Wc:ssä käsienpesulavuaari.
- WC:n lattiat
- Muovimatto
- WC:n seinät
- Maali
- Makuuhuoneet
- Alakerran huoneissa mäntylautalattia ja yläkerran huoneissa muovimatto. Alakerran huoneiden katot Haltexia ja yläkerrassa toisen huoneen katossa Haltexia ja toisen huoneen katto valkoiseksi maalattu puupaneeli.
- Makuuhuoneiden lukumäärä
- 4
- Makuuhuoneiden seinät
- Tapetti
- Makuuhuoneiden lattiat
- Muovimatto
- Olohuone
- Olohuoneessa mäntylautalattia. Katto valkoiseksi maalattu puupaneeli. Tupakeittiötä muistuttava Iso olohuone jonka yhteydessä suoravetoinen takka ja leivinuuni.
- Olohuoneen seinät
- Maali
- Kodinhoitohuoneen varusteet
- Pyykkikaapit
- Kodinhoitohuoneen seinät
- Maali
- Kodinhoitohuoneen lattiat
- Muovimatto
- Kodinhoitohuone
- Kodinhoitohuone rakennettu lisäsiiven rakentamisen yhteydessä -70 luvun lopulla.
- Säilytystilojen kuvaus
- kellari, sivukkaat
- Kohteen säilytystilat
- Ulkovarasto ja kellari sivukkaat
- Sauna
- Kyllä
- Kiuas
- Puukiuas
- Saunan kuvaus
- Sauna rakennettu jälkikäteen -70 luvun lopussa. Saunassa tuuletusikkuna. Katossa puupaneeli. Vesikiertoinen lattialämmitys teknisen käyttöiän päässä.
- Takka
- Takka
Lisätiedot
- Asunnon kunto
- Tyydyttävä
- Ranta
- Ei rantaa
- Muut tilat
- Yläkerran sivukkaasta tehty huone, joka voisi hyvin toimia työhuoneena / vierashuoneena, kyseisen huoneen lattiassa muovimatto, seinät tapetoitu ja katto maalattu. Yläkerran aulassa puulattia, seinät maalattu ja katossa puupaneeli. alakerran eteisessä muovimatto, seinät ja katto maalattu.
- Muuta kauppaan kuuluvaa
- Talossa sijaitseva irtain sop. mukaan. Lisätietoja sisältyvistä varusteista: istutukset, jätesäiliö, kaapistot, kiinteät valaisimet, matontamppausteline, naulakko, sälekaihtimet/rullaverhot, verhotangot.
- Muut kaupan kannalta merkittävät tiedot
- Kaupungilla on etuosto-oikeus nyt tehtävässä kiinteistönkaupassa. Valtiolla on etuosto-oikeus kiinteistön kaupassa, jos kiinteistön hankkiminen on tarpeen maanpuolustuksen, rajavalvonnan tai rajaturvallisuuden varmistamiseksi taikka alueellisen koskemattomuuden valvonnan ja turvaamisen takia.
Taloyhtiö ja kiinteistö
- Tontin pinta-ala
- 0,6960000000000001 ha
- Tontin omistus
- Oma
- Tontin tyyppi
- Tasamaatontti
- Tontin myyntityyppi
- Koko tontti
- Rakennusmateriaali
- Hirsi
- Lämmitysjärjestelmä
- Öljy Puu Sähkö vesikiertoinen patterilämmitys
- Lisätietoja vesiputkesta
- Kangasluoman vesiosuuskunta
- Lisätietoja viemäristä
- 2 kpl. saostuskaivoja. Varauduttava siihen, että jatkossa pitää liittyä kaupungin viemäriverkostoon.
- Kattotyyppi
- harjakatto
- Katemateriaali
- tiilikate ja osittain myös peltikate (myöhemmin rakennetun lisäsiiven osalta)
- Lisätietoja liikenneyhteyksistä
- Bussiliikenne Kuortaneentien varrelta. Lähin pysäkki 50 m.
- Tie perille
- Kyllä
- Palvelut
- Lapuan keskustan palvelut n. 6 km. Lapuan Sote-keskus n. 4,4 km.
- Koulut
- Haapakosken koulu n. 1 km.
- Kaavatilanne
- Kaavoittamaton
- Kaavoitustiedot
- Lapuan kaupunki p. 06 438 4111
- Kuntotutkimus tehty
- 01.01.2024
- Asbestikartoitus
- Ei
- Muut rakennukset
- talousrakennus
- Lisätietoa muista rakennuksista
- Ulkorakennuksessa on autotalli ja varasto sekä autokatos. Ulkorakennus rakennettu jälkikäteen -82. Loppukatselmus on tehty -82.