Kuumoonmäentie 8
29200, Hiittenkiuas, Harjavalta
4h+k+khh+s
135 000 €
103 m²

Tätä asuntoa myy Katri Kuivakoski, KiAT, LKV, julkinen kaupanvahvistaja
Kiinteistökeskus Satakunta Oy LKV

Sijainti
Asuntoesittely
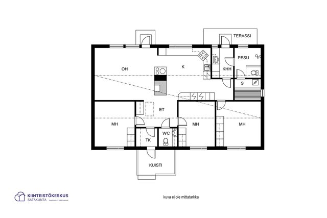
2000-luvun omakotitalo isoine ryhdikkäine piharakennuksineen maaseudun rauhassa n. 1,5 ha:n tontilla. Tontin reunalla reilusti puustoa, josta riittää hyvin polttopuuta ym. omiin tarpeisiin. Siistikuntoiseen taloon on tehty jo muutamia päivityksiä; mm. ulkomaalaus, terassin rakentaminen sekä pesutila- ja pintaremonttia. Myös kuntotarkastus on jo tehty. Lämmitysmuotona sähköpatterit, varaava takka ja uudehko sekä viilentävä että lämmittävä ilmalämpöpumppu. Kaupungin vesiliittymä. Tilavan takaterassin yhteydessä myös huvimaja, terassilta avautuvat kauniit peltomaisemat. Isot korkeat piharakennukset mahdollistavat monenlaisen harrastamisen, kauppaan voidaan sisällyttää myös työkaluja- ja koneita. Monipuolinen kattava kokonaisuus!
Perustiedot
- Sijainti
- Kuumoonmäentie 8, 29200, Hiittenkiuas, Harjavalta
- Huoneluku
- 4
- Asuinpinta-ala
- 103 m²
- Muu pinta-ala
- 13 m²
- Kokonaispinta-ala
- 116 m²
- Kohteen tyyppi
- Omakotitalo
- Rakennusvuosi
- 2000
- Kohde myydään vuokrattuna
- Ei
- Vapautuminen
- Sopimuksen mukaan
Tilat ja materiaalit
- Keittiön lattiat
- Vinyyli
- Keittiön seinät
- Tapetti
- Keittiön varusteet
- Jääkaappipakastin, liesi, liesituuletin, ja puuhella
- Liesi
- Sähköhella
- Kylpyhuone
- Kylpyhuone remontoitu 2025; mm. seinä- ja lattialaatoitus, vesieristys ja wc-istuin. Tilassa suihkuseinällä erotettu wc-tila, jonka seinät paneloitu.
- Kylpyhuoneen seinät
- Kaakeli ja paneeli
- Kylpyhuoneen lattiat
- Laatta
- Kylpyhuoneen varusteet
- Lattialämmitys, wc-istuin, suihku, ja suihkuseinä
- WC Lukumäärä
- 2
- Erillinen WC
- Kylpyhuoneen yhteydessä myös wc-istuin.
- Makuuhuoneiden lukumäärä
- 3
- Makuuhuoneiden seinät
- Tapetti
- Makuuhuoneiden lattiat
- Vinyyli
- Olohuone
- Olohuoneesta käynti takaterassille. Olohuoneessa varaava takka.
- Olohuoneen seinät
- Tapetti
- Olohuoneen lattiat
- Vinyyli
- Kodinhoitohuoneen varusteet
- Pesukoneliitäntä, pesuallas, lattialämmitys, pyykkikaapit, ja pöytätaso
- Kodinhoitohuoneen seinät
- Tapetti
- Kodinhoitohuoneen lattiat
- Laatta
- Sauna
- Kyllä
- Kiuas
- Sähkökiuas
- Saunan kuvaus
- Saunan lauteet ja lattialaatoitus uusittu 2025. Lauteiden alla lämminvesivaraaja, joka myös uusittu 2025.
- Takka
- Varaava takka
Lisätiedot
- Terassi
- Kyllä
- Lisätietoja terassista
- Tehty n. 2015, terassin yhteydessä myös huvimaja.
Taloyhtiö ja kiinteistö
- Tontin pinta-ala
- 1,581 ha
- Tontin omistus
- Oma
- Tontin myyntityyppi
- Koko tontti
- Lisätiedot rakennusmateriaaleista
- Ulkomaalaus -15, huoltomaalauksia myöhemmin.
- Rakennusmateriaali
- Puu
- Lämmitysjärjestelmä
- Sähkö Tyyppi: Patterit, ilmalämpöpumppu Kustannukset: 8000 kWh / vuosi Puu Ilmalämpöpumppu
- Ilmanvaihto
- Koneellinen ilmanvaihto
- Vesijohto
- Kunnallisvesi
- Viemäröinti
- Saostussäiliö ja imeytyskenttä
- Lisätietoja viemäristä
- 3 kpl saostuskaivoja + imeytyskenttä.
- Kattotyyppi
- Harjakatto
- Katemateriaali
- Pelti
- Tie perille
- Kyllä
- Palvelut
- Harjavallan keskustan palvelut n. 10 km päässä.
- Kaavatilanne
- Kaavoittamaton ja haja-asutusalue
- Lisätietoa muista rakennuksista
- Konehalli, varasto/hallirakennus, autokatos. Terassin yhteydessä huvimaja.