Kyöstinkuja 5 A
00570, Kulosaari, Helsinki
3-4 h, k, kph/s, 2 wc, khh, 2 vh (yht. järj. muk 3-4 h+k+saunaos.)
695 000 € (5 582,33 € / m²)
124,5 m²

Tätä asuntoa myy Risto Savolainen, Kiinteistönvälittäjä, LKV, LVV
Huoneistokeskus Oy | Helsinki, Runeberginkatu

Sijainti
Asuntoesittely
Kulosaaren korkeimmilla kohdilla mainio perheasunto!
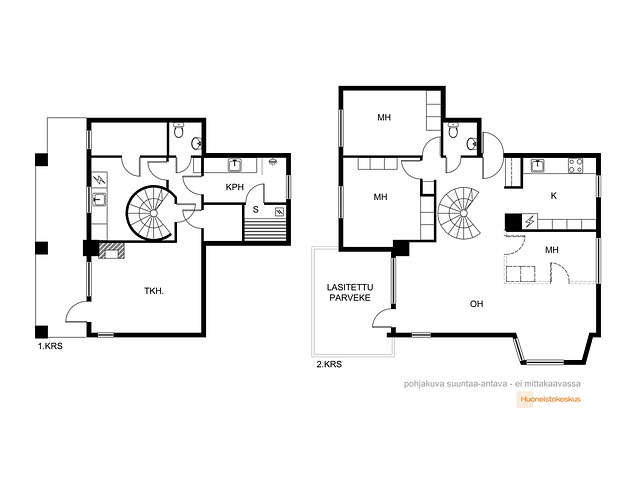
Tule nauttimaan ensilöylyistä juuri remontoidussa saunassa ja pesuille uusittuun kylpyhuoneeseen. Valoisa, heti vapaa pienkerrostalon päätyhuoneisto. Rauhallinen sijainti päättyvän kadun perällä. Ensimmäisessä kerroksessa todella iso olohuone, josta pääset ihailemaan lasitetulle parvekkeelle avaria, merellisiä näkymiä. Kahdesta makuuhuoneesta on myös samat mainiot näkymät. On myös mahdollisuus kolmanteen makuuhuoneeseen (katkoviivoin pohjakuvassa). Lisäksi tässä kerroksessa on erillinen keittiö ja wc.
Alakerrassa on takkahuone, josta pääset vilvoittelemaan saunan jälkeen laatoitetulle terassille. Saunaosasto, erillinen wc, kodinhoitohuone ja kaksi vaatehuonetta on myös tässä kerroksessa. Jos tuntuu, että alakerran laatoitettu terassi ei riitä kesäiseen oleskeluun, niin taloyhtiöltä voi vuokrata piha-aluetta omaan käyttöön.
Pieni viihtyisä taloyhtiö, rakennusvuosi 1985 ja talot omalla tontilla.
Vehreä, merellinen Kulosaari on Helsingin arvostetuimpia asuinalueita, joka on tunnettu mm. upeista vanhoista huviloistaan ja suurlähetystöistään. Alueelta löytyvät niin suomen-, kuin ruotsinkieliset päiväkodit ja koulut sekä myös englanninkieliset luokat niin ala- ja yläasteella, kuin lukiossa. Lähikauppa ja muita palveluita on alle 500 metrin päässä Kulosaaren kauppakeskuksessa. Kätevästi pääsee myös Kalasataman Redin ja Herttoniemen Hertsin palveluihin. Molempiin pääset hetkessä valintasi mukaan bussilla, metrolla tai omalla autolla.
Pyydä virallinen myyntiesite välittäjältä, koska nettiportaalien tiedot ovat rajalliset.
Kiinnostuitko? Ota yhteyttä, niin keskustellaan tarkemmin.
Pohjakuva

Perustiedot
- Sijainti
- Kyöstinkuja 5 A, 00570, Kulosaari, Helsinki
- Omistusmuoto
- Omistusasunto
- Huoneluku
- 4
- Asuinpinta-ala
- 124,5 m²
- Muu pinta-ala
- 0 m²
- Kokonaispinta-ala
- 124,5 m²
- Pinta-alan peruste
- Yhtiöjärjestyksen mukainen, Isännöitsijäntodistuksen mukainen
- Kohteen tyyppi
- Kerrostalo
- Kerros
- 1 / 2
- Rakennusvuosi
- 1985
- Käyttöönottovuosi
- 1985
- Kohde myydään vuokrattuna
- Ei
- Vapautuminen
- Heti
Hinta ja kustannukset
- Velaton hinta
- 695 000 €
- Myyntihinta
- 695 000 €
- Yhtiövastike
- Hoitovastike 647,40 € / kk, Yhtiövastike yhteensä 647,40 € / kk
- Vesimaksu
- 24 € / hlö
- Sähköliittymä siirtyy
- Kyllä
- Neliöhinta
- 5 582,33 € / m²
- Lisätietoja maksusta
- Lisätietoja vastikkeista: Autokatospaikka 34,00 €/kk, autopaikka kattamaton 21,00 €/kk, sähkötön autopaikka 10,00 €/kk. Piha-alueen vuokra 2,25 €/m²
Tilat ja materiaalit
- Keittiön lattiat
- Muovimatto
- Keittiön seinät
- Maali
- Keittiön varusteet
- Jääkaappipakastin, astianpesukone, liesi, ja liesituuletin / hormi
- Liesi
- sähköliesi
- Kylpyhuone
- Kylpyhuone uusittu 2025 (taloyhtiö remontoi sattuneen vesivahingon vuoksi)
- Kylpyhuoneen seinät
- Kaakeli
- Kylpyhuoneen lattiat
- Laatta
- Kylpyhuoneen varusteet
- Lattialämmitys, peilikaappi, suihku, suihkuseinä, ja kiinteät valaisimet
- Erillinen WC
- 2 x wc
- WC:n lattiat
- Laatta
- WC:n seinät
- Kaakeli
- Makuuhuoneiden lukumäärä
- 2
- Makuuhuoneiden seinät
- Maali
- Makuuhuoneiden lattiat
- Muovimatto ja laminaatti
- Olohuoneen seinät
- Maali
- Olohuoneen lattiat
- Parketti
- Kodinhoitohuoneen varusteet
- Lattiakaivo, pesukoneliitäntä, pesukone, pöytätaso, pyykkikaapit, ja pesuallas
- Kodinhoitohuoneen seinät
- Maali ja kaakeli
- Kodinhoitohuoneen lattiat
- Laatta
- Sauna
- Kyllä
- Kiuas
- Sähkökiuas
- Saunan kuvaus
- Sauna uusittu 2025 (taloyhtiö remontoi sattuneen vesivahingon vuoksi)
- Takka
- Takka
Lisätiedot
- Asunnon kunto
- Tyydyttävä
- Näkymät
- avarat, vehreät näkymät merelle päin
- Parveke
- Lasitettu parveke
- Parvekkeen ilmansuunta
- Pohjoinen, etelä ja itä
- Terassi
- Kyllä
- Muut tilat
- 2 vaatehuonetta
- Muuta kauppaan kuuluvaa
- Lisätietoja sisältyvistä varusteista: kiinteät valaisimet, naulakko, pyykinpesukone, sälekaihtimet/rullaverhot, verhotangot
Taloyhtiö ja kiinteistö
- Taloyhtiön nimi
- Asunto Oy Simonpuisto
- Isännöitsijätoimisto
- Retta Isännöinti Oy
- Isännöitsijän nimi
- Pauli Virtanen
- Isännöitsijän puhelin
- 010 228 2000
- Tuotot
- 3462.2000000000003
- Taloyhtiön lisätiedot
- Tietoja lainojen pituuksista: HL 3 A2 (hoitolaina) kosteusvaurio, 35 000,00 €, päättyy 28.06.2033, 12 kk Euribor+0,87 %, RL4, saldo 33 158,65 €, päättyy 28.12.2029, 6kk Euribor+0,75%. RL5 sähköautojen latausjärjestelmä, 6 167,37 €, päättyy 28.06.2029, 12k Eurobor+0,75% Yhtiön päättämät nostamattomat lainat: HL 3 A2 kosteusvaurio, 15 000,00 €, päättyy 28.06.2033, 12kk Euribor+0,87%
- Tontin pinta-ala
- 3 549 m²
- Tontin omistus
- Oma
- Rakennusmateriaali
- Betoni
- Lämmitysjärjestelmä
- Kaukolämpö
- Kattotyyppi
- aumakatto
- Katemateriaali
- peltikate, huopakate
- Lisätietoja kiinteistönhoidosta
- Huoltoyhtiö
- Kiinteistönhoidon lisätiedot
- Kiinteistöhuolto Saavalainen & Salesvuo Oy, 0400 409 510
- Taloyhtiössä on
- Kellarikomero ja urheiluvälinevarasto
- Kohteesta on energiatodistus
- Kyllä
- Energialuokka
- D2018
- Lisätietoja liikenneyhteyksistä
- bussit, metro (jalkaisin n. 900 m)
- Palvelut
- alueella
- Koulut
- alueella
- Lisätietoja taloyhtiön autonsäilytyspaikoista
- Autotalleja 3 kpl osakkeina. Autokatospaikkoja 7. Kaksi lämpötolpallista paikkaa ja yksi kylmäpaikka. Kaikki paikat varattu, 1 henkilö jonossa.
- Kaavatilanne
- Asemakaava
- Lisätiedot kaavoituksesta
- Helsingin kaupunki, 09 310 22111
- Asbestikartoitus
- Ei
- Taloyhtiön kiinnitykset
- 526 658 €
Tehdyt remontit
2005 Rakennettu autokatos, jätekatos ja pyörävarasto, 2006 Rakennustekninen kuntoarvio, 2007 Pihan kunnostustöitä, 2007 Julkisivun saumauksia, 2008 Kattojen maalaus, 2010 Lukituksen uusinta, 2010 Ikkunoiden, parveke- ja pihaovien uusinta, 2011 Ilmanvaihtokanavien nuohous ja ilmanvaihdon perussäätö, 2011 Lämmönvaihtimen uusinta ja perussäätö, 2012 Leikkialueen kunnostus sekä parvekkeiden ja sokkeleiden kuntotutkimus, 2013 Jätekatoksen valaistus, pylväsvalaisimien uusiminen, 2014 Ekonor-lämpövahti, 2015 Parvekkeiden peruskunnostus, hulevesiremontti, katon paikkamaalaus, 2015 Märkätilojen kuntokartoitus, ulkovalaisimien uusiminen ja määrän lisääminen, 2016 Sokkelien kunnostus ja maalaus, 2016 Pihan asfaltoinnin uusiminen, 2016 Yhtiön pääulko-ovien metalliosien maalaus ulkopuolelta ja ovipaneelien uusinta, 2016 Jätevesipumppaamon kunnostus, 2017 Varasto-ovien kunnostus, 2017-2018 B6 asunnon kylpyhuoneen kosteusvaurion aih.,toimenpiteet (lattiakaivo, kuivatus yms), 2017 A1 asunnon alakerran WC:n ja kylpyhuoneen kosteusvaurioiden korjaus, 2017 Pääovien yläpuolisten ikkunoiden metalliosien maalaus, 2017 Pysäköintipaikkojen sähköpistokkeiden tarkastus ja korjaus, 2017 Autotalliovien uusiminen, 2018 Alkuperäisten wc-istuimien uusinnat, 2020 Viemärijärjestelmän pumput 2 kpl, 2021 Ilmanvaihtokanavien nuohous ja ilmanvaihdon perussäätö, 2021 Viemäreiden pesu- ja kuvaus, 2022 B 5 asunnon kosteusvaurioiden korjaus, 2022 Tulisijojen tarkastus ja osan nuohous, 2022 Sähköautojen latausinfran selvitys, 2023 Akuutit korjaukset katolla, 2023 Maalauksia; C-talon muurin maalaus, parkkiruutujen maalaus, 2023 C11 asunnon kph korjausremontti (lattialämmitys rikkoutunut, kosteusvaurioita), 2023 Autokatoksen maalaus, 2023 C 11 asunnon kph korjausremontti (lattialämmitys rikkoutunut, kosteusvaurioita), 2024 sähköautojen latausjärjestelmän rakentaminen autopaikoille, 2024 kattojen pesu ja paikkamaalaus, 2025 A2 saunan kosteusvaurion korjaus (50 000,00 euron laina 10 vuoden maksuajalla)
Tulevat remontit
Palovaroitinpalvelun käyttöönotto, päätös tehty2025
Julkisivun kuntotutkimus, suositeltu 2025
Salaojien kuvaaminen, suositeltu 2025
Julkisivuelementtien elastisten saumojen uusiminen, suositeltu 2026
Julkisivujen elementtien betonirakenteiden kunnostaminen, suositeltu 2026
Erkkereiden ja ulko-ovien bitumikermikatteiden uusiminen, suositeltu 2026
Räystäskourujen pinnoittaminen ja syöksytorvien uusiminen, suositeltu 2026
Sokkelipinnoitteiden paikkauskorjausta,suositeltu 2026
Salaojien huoltokorjaus tarvittaessa, suositeltu2026
Sokkeleiden elastisten liikuntasaumojen uusiminen, suositeltu2026
Viemäreiden kuntotutkimus, suositeltu2027
Kuntoarvion päivitys, suositettu 2028