Länsikukkurantie 5
45360, Valkeala/Jokela, Valkeala, Kouvola
5h+k
339 000 €
145 m²

Tätä asuntoa myy Heidi Eskelinen, Myyntineuvottelija, KiLAT
Huoneistokeskus Oy | Kouvola

Sijainti
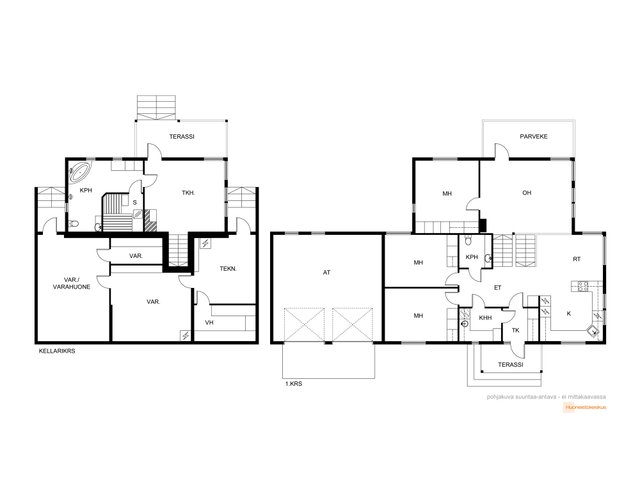
Asuntoesittely
Upea kokonaisuus Kukkuranmäen huipulla – Modernia asumista ja energiatehokkuutta!
Nyt myynnissä halutulta Kukkuranmäen alueelta Valkealan Jokelasta moderni ja tilava
145 m² rinnetalo. Tämä kolmessa tasossa oleva koti tarjoaa tilaa, mukavuutta ja erittäin edulliset asumiskustannukset.
Ensimmäisessä kerroksessa on kaksi makuuhuonetta, moderni avokeittiö, wc sekä kodinhoitohuone. Muutama rappunen ylös päin on yksi makuuhuone jossa oma ilmalämpöpumppu joka mukavasti viilentää kuumina kesäpäivinä samassa kerroksessa olohuone josta näkymä keittiöön ja pääsy parvekkeelle.
Ensimmäisestä kerroksesta, kun astuu muutaman rappusen alaspäin tule tunnelmalliseen takkahuoneeseen josta pääsee myös kylpyhuoneeseen jossa suihku, wc sekä poreamme jossa päivän päätteeksi on mukava rentoutua. Kylpyhuone tiloissa on myös puulämmitteinen sauna joka aidot löylyt, ja suojaisalla terassilla johon pääsee suoraan takkahuoneesta odottaa poreamme tähtitaivaan alla.
Talon alimmassa kerroksessa on valtava lämmin kellaritila, joka muuntautuu tarpeesi mukaan esimerkiksi elokuvateatteriksi, kuntosaliksi tai työtilaksi.
Talon yhteydessä on myös tilava kahden autontalli.
Kaiken kruunaa talon lämmitysjärjestelmä joka on energiatehokas ilmavesilämpöpumppu vesikiertoisella lattialämmityksellä. Vuonna 2024 asennetut 18 aurinkopaneelia pitävät sähkölaskut kurissa.
Pihapiiri on suojaisa ja tarjoaa yksityisyyttä oleskeluun. Tervetuloa ihastumaan tähän monien mahdollisuuksien kotiin!Perustiedot
- Sijainti
- Länsikukkurantie 5, 45360, Valkeala/Jokela, Valkeala, Kouvola
- Huoneluku
- 5
- Asuinpinta-ala
- 145 m²
- Muu pinta-ala
- 109 m²
- Kokonaispinta-ala
- 254 m²
- Pinta-alan peruste
- Pinta-ala ei ole tarkistusmitattu ja todellinen pinta-ala voi olla suurempi tai pienempi, kuin ilmoitettu
- Lisätiedot pinta-alasta
- Asuintilojen pinta-ala on otettu myyjän papereista. Pinta-alatietoa ei ole tarkistusmitattu joten se saattaa poiketa olennaisestikin nykystandardein mitattavasta pinta-alasta. Muita tiloja on: Kellari 72 m2 ja kahden autontalli 37m2.
- Kohteen tyyppi
- Omakotitalo
- Kerros
- 3
- Rakennusvuosi
- 2010
- Käyttöönottovuosi
- 2010
- Kohde myydään vuokrattuna
- Ei
- Vapautuminen
- Sopimuksen mukaan
Tilat ja materiaalit
- Keittiön lattiat
- Laminaatti
- Keittiön seinät
- Laatta ja kaakeli
- Keittiön varusteet
- Jääkaappi, erillinen pakastin, erillisuuni, liesi, liesituuletin, keittiösaareke, ja astianpesukone (Uusittu (2022 Miele))
- Liesi
- Induktioliesi
- Kylpyhuoneen seinät
- Kaakeli
- Kylpyhuoneen lattiat
- Laatta
- Kylpyhuoneen varusteet
- WC-istuin, suihku, poreamme, pesuallas, bidee-suihku, allaskaappi, ja peili
- WC:n lattiat
- Laatta
- WC:n seinät
- Tapetti
- Makuuhuoneiden lukumäärä
- 3
- Makuuhuoneiden seinät
- Tapetti
- Makuuhuoneiden lattiat
- Laminaatti
- Olohuoneen seinät
- Tapetti
- Olohuoneen lattiat
- Laminaatti
- Kodinhoitohuoneen varusteet
- Pesukoneliitäntä, lattiakaivo, pöytätaso, tila pesutornille, lattialämmitys, pesuallas, ja pyykkikaapit
- Kodinhoitohuoneen seinät
- Kaakeli ja maali
- Kodinhoitohuoneen lattiat
- Laatta
- Kohteen säilytystilat
- Vaatehuone, kaapistot ja lämmin kellaritila 75 m2
- Sauna
- Kyllä
- Kiuas
- Puukiuas
- Takka
- Varaava takka
Lisätiedot
- Asunnon kunto
- Hyvä
- Parveke
- Ulostyönnetty parveke
- Terassi
- Kyllä
Taloyhtiö ja kiinteistö
- Tontin pinta-ala
- 1 011 m²
- Tontin omistus
- Oma
- Tontin tyyppi
- Rinnetontti
- Tontin myyntityyppi
- Koko tontti
- Rakennusmateriaali
- Elementtitalo ja puu
- Lämmitysjärjestelmä
- Ilmavesilämpöpumppu Vesikiertoinen lattialämmitys Ilmalämpöpumppu Aurinkolämpö
- Ilmanvaihto
- Koneellinen ilmanvaihto ja lämmöntalteenotto.
- Vesijohto
- Kunnallisvesi
- Viemäröinti
- Kunnallinen viemäriverkosto
- Kattotyyppi
- Harjakatto
- Katemateriaali
- Tiili
- Rakennusoikeus
- 202.2
- Lisätietoa rakennusoikeudesta
- Kouvolan Kaupunki p: 020 615 11
- Rakennusoikeus e-luku
- 0.2
- Kohteesta on energiatodistus
- Ei lain edellyttämää energiatodistusta
- Liikenneyhteydet
- Bussipysäkki lähellä
- Tie perille
- Kyllä
- Paikallistiedot
- Valkealan uimahalli n. 3,8 km Valkealan Jäähalli n. 4,1 km
- Palvelut
- Jokelan S-market n. 1,9 km ABC Valkeala n. 3,1 km Apteekki n. 3,4 km Terveysasema n. 2,7 km
- Koulut
- Valkealan Yhtenäiskoulu n. 3,7 km
- Kaavatilanne
- Asemakaava
- Rakennusvaihe
- Valmis
- Asbestikartoitus
- Ei
- Muut rakennukset
- Autotalli
- Lisätietoa muista rakennuksista
- Talon yhteydessä kahden auton talli.
Tehdyt remontit
2012 Ilmalämpöpumput, toinen asennettu/siirretty 2025.
2020 Poreamme ulos, Kellarin väliseinämuutos, pinnat uusiksi (12/2020)
2022 Valokuituliittymä (9/2022), Astianpesukone (Miele)
2023 Takapihan kivetys (9/2023)
2024 Aurinkopaneelit, 18 kpl. (9/2024) Kokonaistuotto n. 6000kWh/V.
