Lönnhammarintie 475
10300, Karjaa, Raasepori
2h, k, kph/wc, parvi, majakkatalo, autotalli
165 000 €
55,5 m²

Tätä asuntoa myy Johan Grönqvist, Kiinteistönvälittäjä, LKV, LVV
Roof Karjaa | ROOF LKV Etelä/Syd Oy Ab

Sijainti
Asuntoesittely
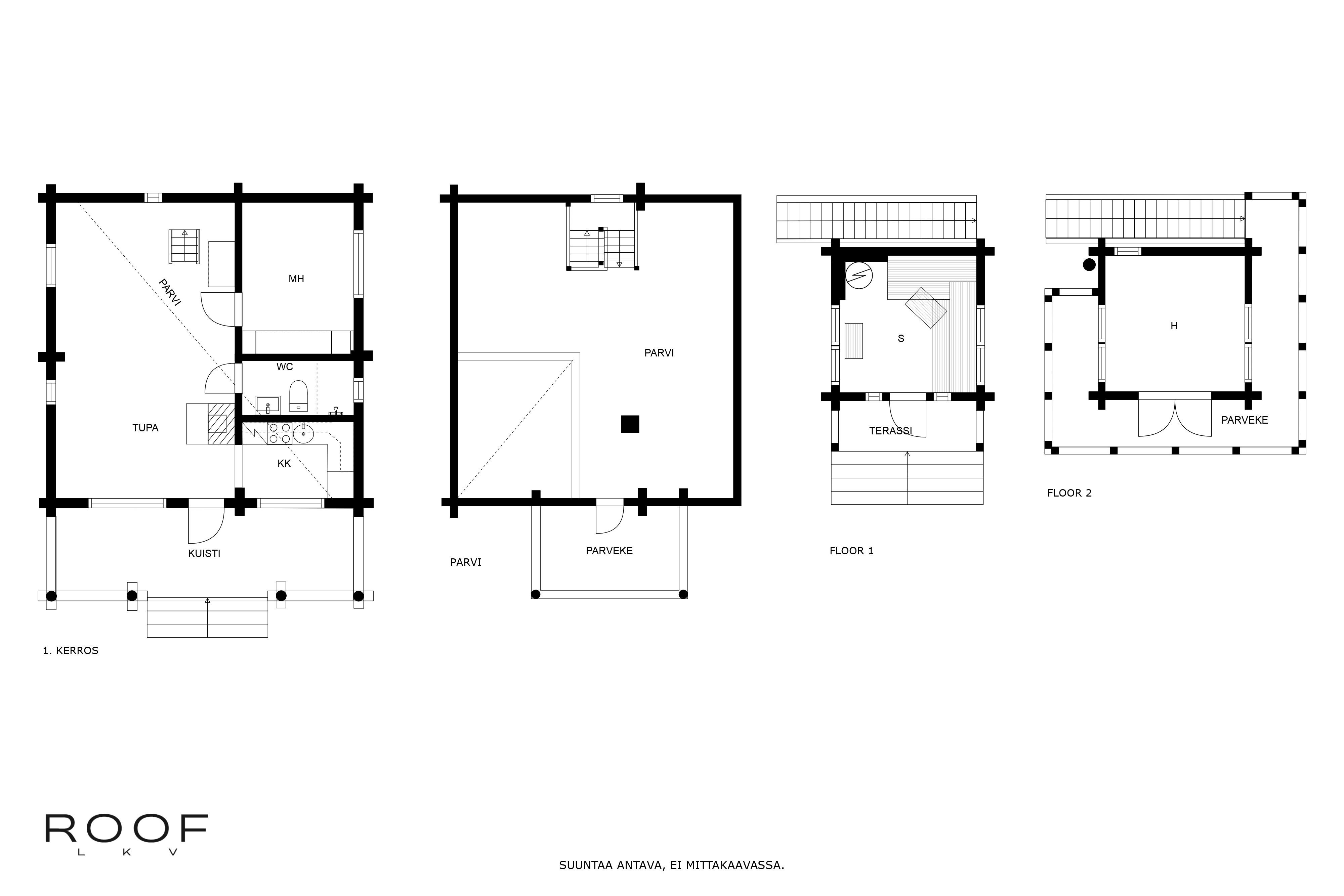
KARJAA LÖNNHAMMAR Maaseudun rauhassa, omalla pienellä peltojen ympäröimällä kukkulalla on tämä upea vapaa-ajanviettopaikka. Rakennukset ovat Honkarakenteen pyöröhirrestä rakennettu, päämökissä on kaikki mukavuudet sisä wc:stä astianpesukoneeseen. Erikoisuutena on upea saunarakennus "Majakka", itse saunaan mahtuu hyvin vaikka seitsemän veljestä ja saunan yläkerrassa on upea huone. Lisäksi löytyy huvimaja, autotalli, puuliiteri, varasto sekä ulkohuussi.
Fiskarsiin vain n. 11 km ja Anskuun vain puolet siitä!
KARIS LÖNNHAMMAR I landsbygdens lugn och ro, på sin egna lilla kulle omringad av åkrar befinner sig detta härliga fritidsställe. Byggnaderna är byggda av Honkarakenne rundstock, stugan har alla bekvämligheter från inne wc till diskmaskin. Som specialitet den fina fyraktiga bastubyggnaden, vars bastu rymmer bra fast de sju bröderna och i övre våningen finns ett härligt rum. Därtill finns lusthus, garage, vedlider, förråd och utedass.
Endast 11 km till Fiskars och till Antskog inte ens hälften av det!
Pohjakuva

Perustiedot
- Sijainti
- Lönnhammarintie 475, 10300, Karjaa, Raasepori
- Huoneluku
- 2
- Asuinpinta-ala
- 55,5 m²
- Kokonaispinta-ala
- 60 m²
- Pinta-alan peruste
- Pinta-ala ei ole tarkistusmitattu ja todellinen pinta-ala voi olla suurempi tai pienempi, kuin ilmoitettu
- Lisätiedot pinta-alasta
- Ilmoitetut pinta-alat piirustusten mukaisia, ei tarkistusmitattuja.
- Kohteen tyyppi
- Mökki tai huvila
- Kerros
- 2
- Rakennusvuosi
- 2005
- Lisätietoja rakennusvuodesta
- Honkarakenteiden pyöröhirrestä tehdyt rakennukset. Saunarakennus "Majakka" rakennettu v. 2013. Huoneistoala 20m2, kerrosala 24 m2. Autotalli rakennettu v. 2005, n. 20 m2. Huvimaja rakennettu v. 2006, n. 10 m2 Puuliiteri rakennettu v. 2006 Ulkohuussi. Peltinen puutarhavarasto.
- Käyttöönottovuosi
- 2005
- Kohde myydään vuokrattuna
- Ei
- Vapautuminen
- Sopimuksen mukaan
- Lisätietoja vapautumisesta
- Vapautuu tarvittaessa nopeastikin.
Hinta ja kustannukset
- Velaton hinta
- 165 000 €
- Myyntihinta
- 165 000 €
- Sähköliittymä siirtyy
- Kyllä
- Neliöhinta
- 2 972,97 € / m²
- Lisätietoja maksusta
- Kiinteistövero n. 800€/v.2025
Tilat ja materiaalit
- Keittiön lattiat
- Lauta
- Keittiön seinät
- Hirsi
- Keittiön varusteet
- Jääkaappipakastin, astianpesukone, mikroaaltouuni, erillisuuni, liesi, ja liesituuletin (Hormiin)
- Liesi
- Keraaminen liesi
- Kylpyhuoneen seinät
- Kaakeli
- Kylpyhuoneen lattiat
- Laatta
- Kylpyhuoneen varusteet
- WC-istuin, suihku, pesukone, lattialämmitys, peilikaappi, ja pesukoneliitäntä
- Makuuhuoneet
- Mökin alakerrassa yksi makuuhuone, parvella makuutiloja ja majakkatalossa vierashuone.
- Olohuoneen seinät
- Hirsi
- Olohuoneen lattiat
- Lauta
- Sauna
- Kyllä
- Kiuas
- Puukiuas
- Saunan kuvaus
- Erillinen saunarakennus "Majakka"
- Takka
- Takka
Lisätiedot
- Asunnon kunto
- Hyvä
- Parveke
- On parveke
- Muuta kauppaan kuuluvaa
- Kiinteistö myydään lähtökohtaisesti irtaimistoineen. Polttopuut kuuluvat kauppaan
Taloyhtiö ja kiinteistö
- Tontin pinta-ala
- 0,6036 ha
- Tontin omistus
- Oma
- Tontin myyntityyppi
- Koko tontti
- Rakennusmateriaali
- Hirsi
- Lämmitysjärjestelmä
- Sähkö Puu Ilmalämpöpumppu
- Ilmanvaihto
- Painovoimainen ilmanvaihto
- Vesijohto
- Porakaivo
- Viemäröinti
- Saostussäiliö ja imeytyskenttä
- Kattotyyppi
- Harjakatto
- Katemateriaali
- Huopa
- Kohteesta on energiatodistus
- Kohteella ei energiatodistuslain nojalla tarvitse olla energiatodistusta
- Tie perille
- Kyllä
- Palvelut
- Karjaan keskustaan n. 14 km. Fiskarsiin n. 11 km.
- Kaavatilanne
- Kaavoittamaton ja haja-asutusalue
- Kaavoitustiedot
- Rakentamista ohjaa Raaseporin rakennusjärjestys.
