Lasikuja 8 A
80170, Utra, Joensuu
2h, k, kph, s
117 000 € (2 600 € / m²)
45 m²

Tätä asuntoa myy Miro Turunen, Yrittäjä, Kiinteistönvälittäjä, LKV, LVV, KiLAT
Huoneistokeskus Joensuu | Karelia Kiinteistönvälitys Oy

Sijainti
Asuntoesittely
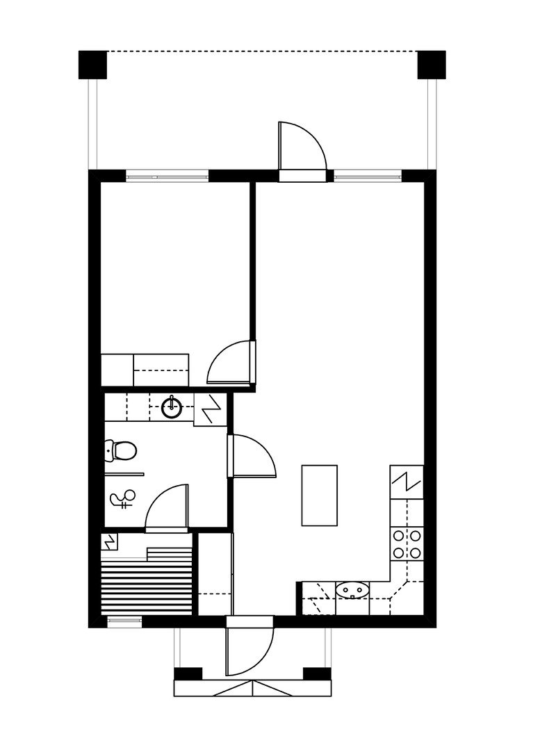
Utrasta Pielisjoen tuntumasta nyt tarjolla siististi pidetty saunallinen kaksio. Eteistilan yhteydessä säilytystila, vierestä avautuu keittiö riittävin laskutiloin, erillinen saareke helpottamassa arjen askareita. Olohuoneesta käynti takapihan terassille ja makuuhuoneesta löydät kiintokaapistot kodintekstiileille ja vaatteille.
Kylpyhuone varustettu kaakelipinnoin, tämän tilan yhteydessä kodinhoitohuonetila pesukoneliitäntöine sekä käynti ikkunalliseen saunaan. Lattiamateriaalina asuintiloissa parkettialattiat. Tästä muuttovalmis koti pariskunnalle, yksinmuuttavalle tai miksei myös asuntosijoittajalle taloyhtiölainan vähennysoikeuden kautta.
Asunto heti vapaana uuden omistajan käyttöön ja huoneistolle kuuluu autokatospaikka (2) yhtiöjärjestyksen mukaisesti.
Asunto Oy Joensuun Empunkulma on rakennettu v.2016 omalle tontille Joensuun Utraan. Asuntoja taloyhtiössä on yhteensä 12 kappaletta ja lämmitysmuotona toimii kaukolämpö.
Varaa oma esittelysi ja tehdään Sinunkin asuntounelmistasi totta!
Pohjakuva

Perustiedot
- Sijainti
- Lasikuja 8 A, 80170, Utra, Joensuu
- Omistusmuoto
- Omistusasunto
- Huoneluku
- 2
- Asuinpinta-ala
- 45 m²
- Kokonaispinta-ala
- 45 m²
- Pinta-alan peruste
- Yhtiöjärjestyksen mukainen, Isännöitsijäntodistuksen mukainen, (Pinta-ala ei ole tarkistusmitattu ja todellinen pinta-ala voi olla suurempi tai pienempi, kuin ilmoitettu)
- Kohteen tyyppi
- Rivitalo
- Kerros
- 1 / 1
- Rakennusvuosi
- 2016
- Käyttöönottovuosi
- 2016
- Kohde myydään vuokrattuna
- Ei
- Vapautuminen
- Heti
Hinta ja kustannukset
Tilat ja materiaalit
- Keittiön lattiat
- Parketti
- Keittiön seinät
- Maali
- Keittiön varusteet
- Jääkaappipakastin, uuni, astianpesukone, liesituuletin, ja erillisuuni
- Liesi
- Keraaminen liesi
- Kylpyhuone
- Kodinhoitohuonetila kylpyhuoneen yhteydessä.
- Kylpyhuoneen seinät
- Kaakeli
- Kylpyhuoneen lattiat
- Laatta
- Kylpyhuoneen varusteet
- WC-istuin, bidee-suihku, lattialämmitys, peilikaappi, pesukoneliitäntä, pesuallas, ja allaskaappi
- Makuuhuoneet
- Makuuhuoneessa kiintokaapistot.
- Makuuhuoneiden lukumäärä
- 1
- Makuuhuoneiden seinät
- Maali ja tapetti
- Makuuhuoneiden lattiat
- Parketti
- Olohuoneen seinät
- Maali
- Olohuoneen lattiat
- Parketti
- Kohteen säilytystilat
- Kaapistot ja lämmin ulkovarasto
- Sauna
- Kyllä
- Kiuas
- Sähkökiuas
Lisätiedot
- Asunnon kunto
- Hyvä
- Terassi
- Kyllä
- Muut tilat
- Eteisessä liukuovellinen peilikaapisto
Taloyhtiö ja kiinteistö
- Taloyhtiön nimi
- Asunto Oy Joensuun Empunkulma
- Isännöitsijätoimisto
- Kontu Oy
- Isännöitsijän nimi
- Heikki Tiitinen
- Isännöitsijän sähköposti
- [email protected]
- Isännöitsijän puhelin
- 010 830 4126
- Tontin pinta-ala
- 2 551 m²
- Tontin omistus
- Oma
- Rakennusmateriaali
- Tiili
- Lämmitysjärjestelmä
- Kaukolämpö Lattialämmitys
- Ilmanvaihto
- Koneellinen tulo-/poisto LTO
- Vesijohto
- Kunnallisvesi
- Viemäröinti
- Kunnallinen viemäriverkosto
- Kattotyyppi
- Harjakatto
- Katemateriaali
- Pelti
- Lisätietoja kiinteistönhoidosta
- Huoltoyhtiö
- Kiinteistönhoidon lisätiedot
- JKP Talohuoltopalvelut Oy / ulkoalueet
- Taloyhtiössä on
- Kaapeli-tv ja urheiluvälinevarasto
- Lunastusoikeus yhtiöllä
- Ei
- Lunastusoikeus osakkaille
- Ei
- Kohteesta on energiatodistus
- Ei lain edellyttämää energiatodistusta
- Lisätietoja energiatodistuksesta
- Vanhentunut 31.7.2025 (C2013)
- Huoneistoon kuuluu yhtiöjärjestyksen mukaan autopaikka
- Katospaikka
- Lisätietoja huoneiston autopaikasta
- Autokatospaikka (2) siirtyy yhtiöjärjestyksen mukaisesti uuden omistajan käyttöön.
- Taloyhtiön autopaikat
- Taloyhtiöllä on 6 kpl kylmiä paikkoja. Osa vieraspaikkoina.
- Autokatokset
- 12
- Kaavatilanne
- Asemakaava
- Lisätiedot kaavoituksesta
- Joensuun kaupunki
- Taloyhtiön kiinnitykset
- 1 000 000 €
- Taloyhtiön kiinnitysten päivämäärä
- Isännöitsijäntodistuksen päivämäärän mukainen
Tehdyt remontit
- Rakennukset uudehkoja (valmistuneet v. 2016), tiedossa ei laajempia korjaustarpeita.
- 2022 Vesikaton yläpuolisten Iv-kanavien ja - hormien pellitysten rajakohtien tiivistykset.
- 2021 Ulkoalueiden puurakenteiden huoltomaalaukset ja - käsittelyt.
Tulevat remontit
Kunnossapitotarveselvitys 2025-2029
- Piha-alueen asfaltointia suunniteltu yhteistyössä naapuritaloyhtiön kanssa.
Toteutusajankohta ei vielä tiedossa (hanke lykätty toistaiseksi tulevaisuuteen).
- Yhtiön ulkoalueiden ja kulkuväylien kunnostusten / parannusten suunnittelu ja toteutus
2025-2029.
- IV-kanavien nuohous/ puhdistus (suositus n. 10 vuoden välein) 2025-2026
- Vesikaton toimintakunnon jatkuva seuranta ja akuutit korjaukset. 2025-2029
- Asuinhuoneistojen seinärakenteiden halkeamien korjaustavan selvittäminen taloyhtiön
parhaan edun mukaisesti 2025-2029.
