Lasimestarinkatu 12 A
80170, Utra, Joensuu
2h, k, kph, s, akp (yj. 2h+k-s)
78 000 € (1 122,30 € / m²)
69,5 m²

Tätä asuntoa myy Alessandro La Russa, Kiinteistönvälittäjä, LKV, LVV, KiLAT
Huoneistokeskus Oy | Joensuu

Sijainti
Asuntoesittely
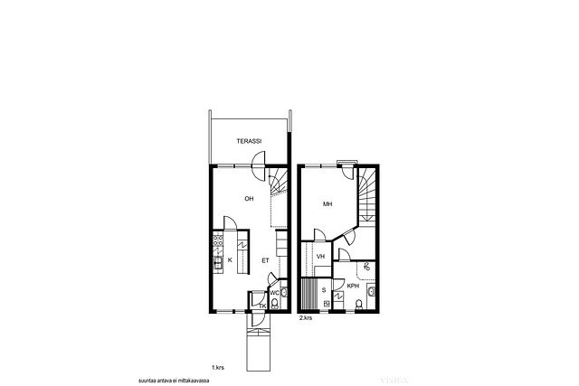
Utrasta rauhalliselta sijainnilta kaksikerroksinen kaksio omalla saunalla ja autokatospaikalla. Maantasakerroksesta löytyy olohuone, ruokailutila, erillinen vessa ja keittiö sekä eteinen. Keittiössä laadukkaat ja ajattomat kivitasot. Olohuoneesta käynti takapihalle. Takapihan terassi tarjoaa hyvät puitteet päivien viettoon.
Yläkerrasta löytyy makuuhuone, jonka yhteydessä myös tilava vaatehuone. Makuuhuoneessa ranskalainen parveke. Aulasta käynti myös sauna- ja pesutiloihin, josta löytyy asunnon toinen vessa. Pesuhuoneen pöytätaso on myös kiveä. Asunto on kytketty miellyttävään ja helppoon kaukolämpöön. Lisäksi taloyhtiössä on valokuituverkko, joka mahdollistaa nopeat ja nykyaikaiset internet-liittymät. Huoneiston vieressä on kylmävarasto.
Asunto on vuokrattu toistaiseksi voimassa olevalla sopimuksella 700€/kk, joka tarjoaa tällä hetkellä 6,22% vuokratuoton.
Ota yhteyttä ja tule katsomaan sekä ihastumaan!
Pohjakuva

Perustiedot
- Sijainti
- Lasimestarinkatu 12 A, 80170, Utra, Joensuu
- Omistusmuoto
- Omistusasunto
- Huoneluku
- 2
- Asuinpinta-ala
- 69,5 m²
- Muu pinta-ala
- 0 m²
- Kokonaispinta-ala
- 69,5 m²
- Pinta-alan peruste
- Isännöitsijäntodistuksen mukainen, Yhtiöjärjestyksen mukainen
- Kohteen tyyppi
- Rivitalo
- Kerros
- 1-2 / 2
- Rakennusvuosi
- 1993
- Käyttöönottovuosi
- 1993
- Kohde myydään vuokrattuna
- Kyllä
- Vapautuminen
- Vuokrattu
Hinta ja kustannukset
- Velaton hinta
- 78 000 €
- Myyntihinta
- 78 000 €
- Yhtiövastike
- Hoitovastike 259 € / kk, Yhtiövastike yhteensä 259 € / kk
- Vesimaksu
- 28 € / hlö
- Sähköliittymä siirtyy
- Kyllä
- Neliöhinta
- 1 122,30 € / m²
- Lisätietoja maksusta
- Lisätietoja vastikkeista: Autokatospaikkamaksu 4,00 €/kk. Sähköauton lataus 0,14 €/kWh. Varainsiirtovero 1,5 % velattomasta kauppahinnasta
Tilat ja materiaalit
- Keittiön lattiat
- Laminaatti
- Keittiön seinät
- Laatta ja maali
- Keittiön varusteet
- Jääkaappipakastin, liesi, astianpesukone, ja kiinteät valaisimet, liesituuletin / hormi
- Liesi
- muu
- Kylpyhuoneen seinät
- Kaakeli
- Kylpyhuoneen lattiat
- Laatta
- Kylpyhuoneen varusteet
- Lattialämmitys, peili, suihkuseinä, suihku, wc-istuin, pesukoneliitäntä, ja asennettuja erikoisvarusteita, kiinteät valaisimet
- WC:n lattiat
- Laatta
- WC:n seinät
- Maali
- Makuuhuoneiden seinät
- Maali ja tapetti
- Makuuhuoneiden lattiat
- Lauta
- Olohuoneen seinät
- Maali
- Olohuoneen lattiat
- Laminaatti
- Säilytystilojen kuvaus
- Kylmävarasto asunnon vieressä.
- Kohteen säilytystilat
- Ulkovarasto ja kylmävarasto asunnon vieressä.
- Sauna
- Kyllä
- Kiuas
- Sähkökiuas
- Saunan kuvaus
- Kiuas uusittu v. 2022.
Lisätiedot
- Asunnon kunto
- Hyvä
- Lisätietoja kunnosta
- Yläkerrassa ja rappusissa koiran kynsistä tullut lattiaan jälkiä.
- Muut tilat
- Eteisessä maalatut seinät ja laminaattilattia. Tuulikaapissa maalatut seinät ja muovimatto. Vaatehuoneessa maalatut seinät ja lautalattia. Yläkerrassa ranskalainen parveke.
- Muuta kauppaan kuuluvaa
- Lisätietoja sisältyvistä varusteista: kaapistot, kiinteät valaisimet, naulakko, sälekaihtimet/rullaverhot, verhotangot
- Kauppaan ei kuulu
- Irtaimisto
Taloyhtiö ja kiinteistö
- Taloyhtiön nimi
- As. Oy Lasimestarinkatu 12, Joensuu
- Isännöitsijätoimisto
- Karjalan Tilipalvelu Oy
- Isännöitsijän nimi
- Päivi Justander
- Isännöitsijän puhelin
- 010 423 8447
- Tontin pinta-ala
- 3 878 m²
- Tontin omistus
- Oma
- Rakennusmateriaali
- Puu
- Lämmitysjärjestelmä
- Kaukolämpö
- Kattotyyppi
- harja
- Katemateriaali
- palahuopa
- Lisätietoja kiinteistönhoidosta
- Huoltoyhtiö
- Kiinteistönhoidon lisätiedot
- JKP Talohuoltopalvelut Oy
- Taloyhtiössä on
- Huoneistokohtaiset varastot
- Kohteesta on energiatodistus
- Kyllä
- Energialuokka
- D2018
- Lisätietoja energiatodistuksesta
- Laadittu 15.7.2024, voimassa 15.7.2034 asti.
- Taloyhtiöön kuuluu
- Teknilliseen toimintaan tarvittavat varastot sekä yhteiskäyttöön kuuluva väestönsuoja. Ilmanvaihtojärjestelmä koneellinen poisto. Kaapeli-Tv, valokuitu.
- Huoneistoon kuuluu yhtiöjärjestyksen mukaan autopaikka
- Katospaikka
- Lisätietoja huoneiston autopaikasta
- Autokatospaikka numero 3 kuuluu huoneistolle.
- Lisätietoja taloyhtiön autonsäilytyspaikoista
- Kaavoitetut autopaikat 12 kpl, toteutetut autopaikat 12 kpl, 2 kpl vieraspaikkaa. Kaikkiin huoneistoihin kuuluu varasto ja samalla tontilla oleva autopaikka.
- Kaavatilanne
- Asemakaava
- Lisätiedot kaavoituksesta
- Joensuun kaupunki, kaavoitus
- Kuntotutkimus tehty
- 01.01.2011
- Asbestikartoitus
- Ei
- Taloyhtiön kiinnitykset
- 100 000 €
Tehdyt remontit
2009 Ilmanvaihtokanavien puhdistus ja säätö
2010 Julkisivumaalaus
2011 Huoneistojen kosteisteiden tilojen pinta-kosteusmittaukset
2012 Raja-aidan uusiminen
2015 Vesikatteen sammalpesu
2017 Grillikatoksen grillin korjaus
2019 IV-kanavien puhdistus ja säätö, A2 huoneiston kosteusvauriokorjaus
2020 A4 huoneiston kattovuotokorjaus
2021 Huoneistojen kylpyhuoneiden kosteuskartoituksia tehty osalta
2021 Katon kuntotutkimus
2022 Katon korjauksia
2023 Käyttöveden säätöventtiili ja venttiilimoottori uusittu
2023 Lämmönjakokeskuksen säädin uusittu
Tulevat remontit
Hallituksen selvitys tulevista korjaustarpeista
Raja-aidan uusinta
Jätekatoksen ja grillikatoksen maalaus
Julkisivujen huoltopesu ja maalaus
Pyörävaraston ulkopuolinen maalaus
IV-kanavien puhdistus ja säätö
Käyttövesiputkisto (korjausaika yli 10v.)
Vuosikorjauksissa huomioitavaa:
On huomioitava, että kuitenkin tässä, kuten kaikissa muissakin kiinteistöissä, kiinteistön rakenteet yms. täytyy kunnostaa tai uusia määräajoin. Vaikka yhtiön hallitus tai yhtiökokous ei olisikaan tehnyt päätöksiä korjauksista, tulevat tämänkin kiinteistön osalta korjaukset tehtäviksi keskimäärin KH-kortin nro 90-00159 mukaisin ajoituksin laskettuna kiinteistön rakennusvuodesta tai edellisestä peruskorjauksesta.