Lasitehtaanniemi 12
08800, Lasitehtaanniemi, Lohja
6h,k,s,vh,3xwc,2x2kph,lasitettu parveke,parveke, terassi
1 200 000 €
230 m²

Tätä asuntoa myy Anna-Maija Aarni, Kiinteistönvälittäjä, LKV, LVV, KED
Huoneistokeskus Oy | Lohja

Sijainti
Asuntoesittely
Nyt myynnissä upea huippuarkkitehti Pet Michaelin suunnittelema uniikki omakotitalo omalla yksityisellä rannalla Lohjanjärvellä. Tämä hulppea omakotitalo on valmistunut vuonna 2021 ja kaikki huoneet sekä yksityiskohdat ovat huolella mietitty ja toteutettu.
Talo lämpenee maalämmöllä ja näinollen hoitokustannukset ovat varsin maltilliset.
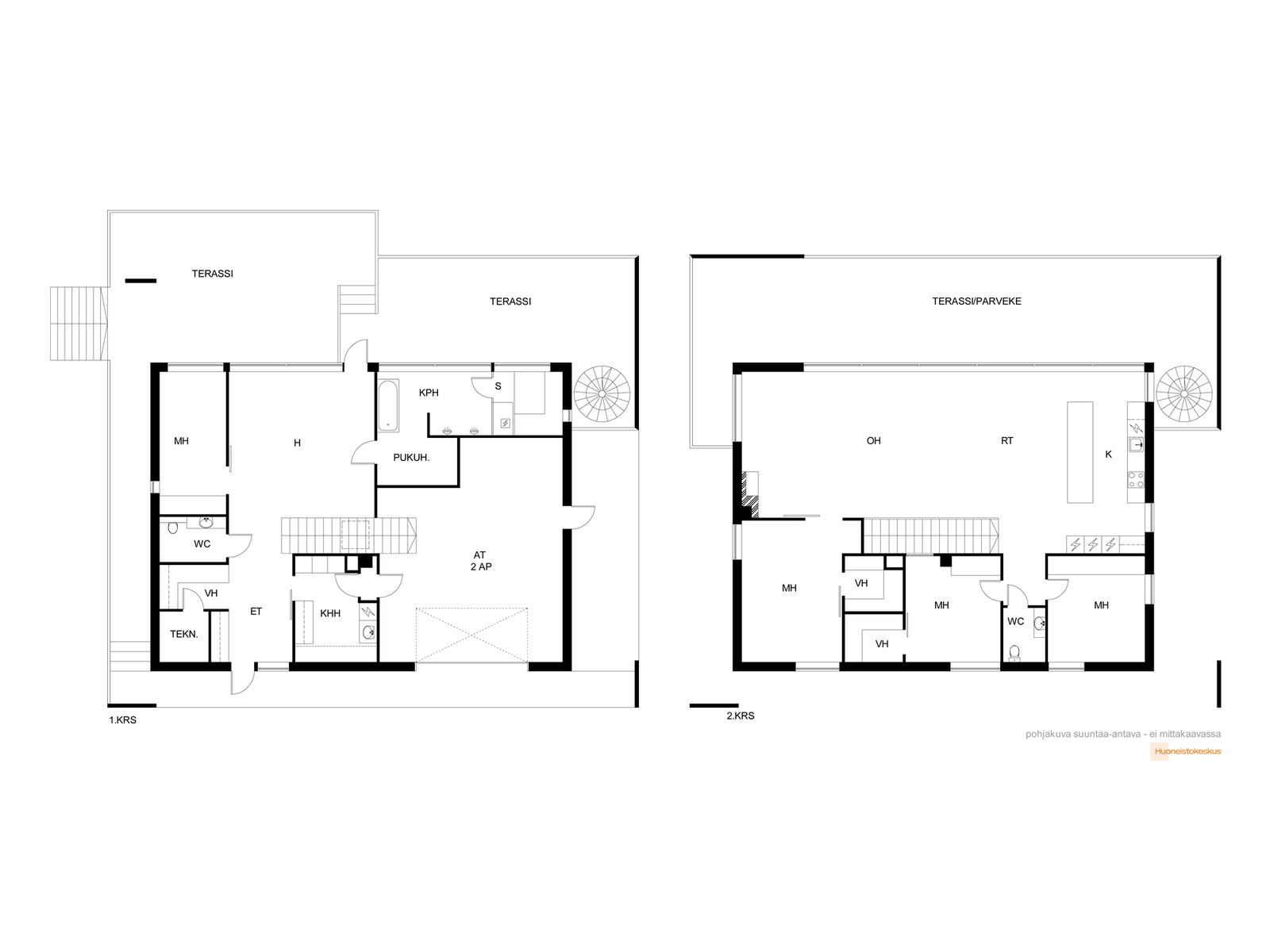
Jo astuessasi pihaan aistit tasokkaan kokonaisuuden ja astuessasi taloon sisälle vaikutut näkemästäsi. Sisääntulokerroksessa on ns. toinen olohuone hienolla näkymällä suurelle järvelle. Lisäksi täältä löytyy tilava kodinhoitohuone, erillinen wc, makuuhuone, vaatehuone ja tietenkin upea kylpyhuone-saunaosasto.
Leveät vaalein lattialaatoin päällystetyt portaat johdattavat Sinut yläkertaan, josta aukeaa silmiähivelevän kauniit näkymät järvelle kauas. Olohuone-keittiötila on yhtä hulppeankokoista tilaa ja täältä pääset vielä mahtavankokoiselle terassiparvekkeelle, josta osa on kokonaan lasitettua ja osassa kaidelasitus. Tällaista upeaa terassiparveketta, jossa näin upeat järvimaisemat ja tilat löytänetkö muualta?
Noblessan vaikuttava ja tasokas keittiö kalusteineen yhdistyy hienosti olohuoneeseen.
Tästä kerroksesta löydät lisäksi kolme hienoa makuuhuonetta ja kaksi vaatehuonetta sekä erillisen wc:n.
Sisääntulokerroksen 2. olohuoneesta (aivan saunaosaston vierestä) pääset terassille ja siitä omalle pihalle ja portaat johdattavat Sinut paljun kautta suurelle laiturille, josta voit pulahtaa järveen tai lähteä veneilemään. Oi miten kaunista ja rentouttavaa!
Talon suunnittelussa on erityisesti kiinnitetty huomiota yksityisyyteen suhteessa naapureihin sekä suuriin ikkunapintoihin, joista avautuu hurmaavat näkymät järvelle.
Talon yhteydessä on lämmin autotalli, jonne pääset sisätiloista sekä lisäksi pihalla on kahden auton autokatos. Etupiha on asfaltoitu. Tontin koko on lähes 2500 m2, joten se on todella hyvänkokoinen asemakaavatontti!
Tervetuloa esittelyyn. Tämä kiinteistö esitellään vain yksityisesittelyin, joten otathan yhteyttä sopivan esittelyajan varaamiseksi.
Pohjakuva

Perustiedot
- Sijainti
- Lasitehtaanniemi 12, 08800, Lasitehtaanniemi, Lohja
- Huoneluku
- 6
- Asuinpinta-ala
- 230 m²
- Muu pinta-ala
- 94 m²
- Kokonaispinta-ala
- 324 m²
- Lisätiedot pinta-alasta
- 324 m2 on talon kokonaisala rakennusluvan ja DVV-kortin mukaan. Omistajan mukaan huoneistoala on 230 m2.
- Kohteen tyyppi
- Omakotitalo
- Kerros
- 2
- Rakennusvuosi
- 2021
- Käyttöönottovuosi
- 2021
- Kohde myydään vuokrattuna
- Ei
- Vapautuminen
- Sopimuksen mukaan
Tilat ja materiaalit
- Keittiön kuvaus
- Upea Noblessan keittiö, jossa paljon kaappitilaa sekä vetolaatikoita. Suuri saareke. Kaikki kodinkoneet ovat integroidut ja sis. mikroaaltouuni, uuni, induktiotaso tuulettimella, astianpesukone, jääkaappi, pakastinkaappi.
- Kylpyhuone
- Upeat pesutilat, joissa lattia ja seinät laatoitettu. Kylpyhuoneessa 3 suihkua.
- WC Lukumäärä
- 2
- Erillinen WC
- Talossa kaksi erillistä wc:tä tasokkain materiaalein.
- Makuuhuoneiden lukumäärä
- 4
- Olohuone
- Olohuoneessa varaava takka. Seinät maalattuja ja sormipaneelia tehosteena.
- Kodinhoitohuone
- Tilava tasokas kodinhoitohuone, jonne pääset talon eteisestä sekä autotallista.
- Säilytystilojen kuvaus
- Vaatehuone x 3, kaapit sekä autotallissa ja autokatoksessa hyllyt.
- Kohteen säilytystilat
- Vaatehuone x 3 kaapit sekä autotallissa ja autokatoksessa hyllyt.
- Sauna
- Kyllä
- Saunan kuvaus
- Saunassa laattaseinät, lattia laatoitettu. Sähkökiuas. Laattaseinät antavat todella miellyttävän saunakokemuksen.
- Takka
- Takka
Lisätiedot
- Asunnon kunto
- Hyvä
- Ranta
- Oma ranta
- Vesistön nimi
- Lohjanjärvi
- Muut tilat
- Makuuhuoneiden seinät maalattuja, lattiat laatoitettu. Yhden makuuhuoneen sijainti sisääntulokerroksessa ja kolme yläkerrassa.
- Lisätietoa seinien pintamateriaaleista
- Seinät maalattuja, sormipaneelia.
- Lisätietoa lattioiden pintamateriaaleista
- Lattiat laatoitettu samalla laatalla, ilman kynnyksiä.
- Lisätietoa katon pintamateriaaleista
- Katto haltex. k-ja u-arvo.
- Muuta kauppaan kuuluvaa
- Pesutorni jää, palju. Lisätietoja sisältyvistä varusteista: istutukset, kaapistot, kiinteät valaisimet, lämminvesivaraaja, parveke-/terassilasitus.
- Kauppaan ei kuulu
- Omistajan irtaimisto.
Taloyhtiö ja kiinteistö
- Tontin pinta-ala
- 2 230 m²
- Tontin omistus
- Oma
- Tontin tyyppi
- Rantatontti
- Tontin myyntityyppi
- Koko tontti
- Tontin tiedot
- Lisäksi on lunastettu vesijättöä tontin edestä 152 m2. Eli kokonaisuus on omarantainen.
- Rakennusmateriaali
- kivi, muu Siporex Aerox
- Lämmitysjärjestelmä
- Maalämpö vesikiertoinen lattialämmitys
- Kattotyyppi
- Pulpetti
- Katemateriaali
- Huopakate
- Rakennusoikeus
- 300
- Lisätietoa rakennusoikeudesta
- Rakennusoikeus 300 m2 + 50 m2. Rakennusoikeus on kokonaan käytetty.
- Kohteesta on energiatodistus
- Kyllä
- Energialuokka
- B2018
- Tie perille
- Kyllä
- Palvelut
- Virkkalaan n. 3 km, jossa hyvät peruspalvelut mm. kauppa. Enemmän palveluita lisäksi Lohjan keskustassa, jonne matkaa n. 12 km.
- Koulut
- Virkkala ja Lohjan keskusta.
- Kaavatilanne
- Asemakaava
- Kaavoitustiedot
- Lohjan kaupunki.
- Muut rakennukset
- Autokatos
- Lisätietoa muista rakennuksista
- Autokatoksen pinta-ala 50 m2 rakennusluvan mukaan.
