Laurinkatu 6
32800, Krootila, Kokemäki
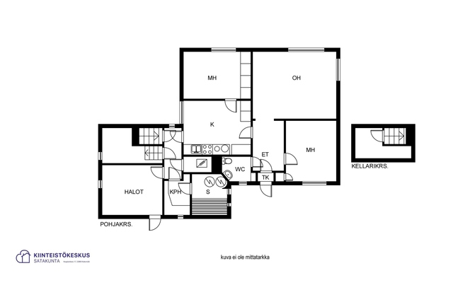
3h+k+kh+s+wc
49 500 €
85 m²
Tätä asuntoa myy Aleksi Forsberg
Kiinteistökeskus Satakunta Oy LKV

Sijainti
Asuntoesittely
Pienelle perheelle sopiva -63 valm. ok-talo, jossa vesikiertoinen puulämmitys sähkövastuksella. Puustellin keittiö uusittu 2006, pesuhuone ja sauna 2006, käyttövesiputket 2006, varaaja ja kattila 2007 ja ikkunat 2017. Iso valoisa olohuone, josta on ikkunat kahteen eri ilmansuuntaan. Kaupungin vesi- ja viemäriliittymät. Pihassa varastorakennus. Tasainen kulmatontti n. 1500 m², joka rajoittuu peltoon. Hyvä sijainti rauhallisella asuinalueella päättyvän kadun varressa keskustan kupeessa. Lasten leikkikenttä aivan kivenheiton päässä ja keskustaan matkaa vain muutama kilometri.
Perustiedot
- Sijainti
- Laurinkatu 6, 32800, Krootila, Kokemäki
- Huoneluku
- 3
- Asuinpinta-ala
- 85 m²
- Muu pinta-ala
- 15 m²
- Kokonaispinta-ala
- 100 m²
- Pinta-alan peruste
- Pinta-ala ei ole tarkistusmitattu ja todellinen pinta-ala voi olla suurempi tai pienempi, kuin ilmoitettu
- Lisätiedot pinta-alasta
- Ei tarkistusmitattu. Pinta-alat saattavat tämän ikäisissä kohteissa (rekisteröity ennen 01.01.1992) poiketa olennaisestikin asuinrakennusten nykyisten mittaustapojen ja standardien (SFS 5139) mukaan laskettavasta asuintilojen pinta-alasta. Pinta-ala voi siis olla edellä mainittua pienempi tai suurempi.
- Kohteen tyyppi
- Omakotitalo
- Kerros
- 1
- Rakennusvuosi
- 1963
- Kohde myydään vuokrattuna
- Ei
- Vapautuminen
- Heti
Tilat ja materiaalit
- Keittiön kuvaus
- Varustus: jääkaappi, erillisuuni, liesitaso, liesituuletin ja integroitu astianpesukone. Lattiassa muovimatto ja seinät tapetoitu/maalattu.
- Kylpyhuone
- Varustus: suihku, pesukoneliitäntä ja lattialämmitys. Laattalattiat ja kaakeli seinät.
- WC Lukumäärä
- 1
- Erillinen WC
- Varustus: wc-istuin, peili, pesuallas ja allaskaappi. Lattiassa muovimatto ja seinät maalattu.
- Makuuhuoneet
- Lattiassa muovimatto ja seinät maalattu.
- Makuuhuoneiden lukumäärä
- 2
- Olohuone
- Lattiassa muovimatto ja seinät maalattu.
- Sauna
- Kyllä
- Saunan kuvaus
- Varustus: puukiuas. Laattalattia ja seinät puuta.
Lisätiedot
- Terassi
- Kyllä
- Muut tilat
- Kellari, pannuhuone, varasto ja askarteluhuone.
Taloyhtiö ja kiinteistö
- Tontin pinta-ala
- 1 500 m²
- Tontin omistus
- Oma
- Tontin tyyppi
- Tasamaatontti
- Tontin myyntityyppi
- Koko tontti
- Rakennusmateriaali
- Puu, tiili ja rapattu
- Lämmitysjärjestelmä
- Puu Sähkö Kustannukset: 3680 kWh / vuosi
- Ilmanvaihto
- Painovoimainen
- Vesijohto
- Kaupungin
- Viemäröinti
- Kaupungin
- Kattotyyppi
- Harjakatto
- Katemateriaali
- Pelti
- Rakennusoikeus
- 300
- Lisätietoa rakennusoikeudesta
- Uuden rakennusluvan saaminen edellyttää tontiksi mittaamista, jonka kustannuksista vastaa ostaja.
- Rakennusoikeus e-luku
- 0.2
- Kohteesta on energiatodistus
- Ei lain edellyttämää energiatodistusta
- Tie perille
- Kyllä
- Kaavatilanne
- Asemakaava
- Asbestikartoitus
- Ei
