Lauritsankatu 17
20740, Koivula, Turku
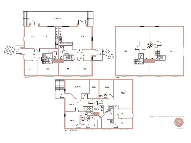
3mh+o+k+askartelutila.+aula+khh+pk+ph+s+2xwc+kph/wc
349 000 €
104,5 m²

Tätä asuntoa myy Tanja Lautkankare, Asuntomyyjä, KiLAT
Kiinteistönvälitys Etta LKV Oy

Sijainti
Asuntoesittely
Tyylillä remontoitu paritalo Koivulassa juuri valmistumassa
Tyylillä remontoitu paritalo Koivulassa juuri valmistumassa
Tämä upea paritalokaksikko valmistuu nyt marraskuun aikana. Sisätöitä tehdään hyvää vauhtia ja pihatöitä on aloitettu. Molemmat asunnot ovat myynnissä.
Tämä upea paritalo Turun Koivulassa tarjoaa ihanteellisen kodin perheelle, joka arvostaa tilaa, valoa ja rauhallista ympäristöä. Kolmikerroksinen koti on laajasti saneerattu, ja se huokuu modernia tyyliä yhdistettynä 1950-luvun viehätykseen.
Asunnon avarat ja valoisat tilat luovat viihtyisän ilmapiirin. Olohuoneesta avautuvat pariovet johtavat terassille, josta avautuu kaunis näkymä metsäiselle takapihalle – täydellinen paikka rentoutua ja nauttia luonnon rauhasta. Keittiö on varustettu nykyaikaisesti ja sen käytännöllisyys ilahduttaa niin arjen kiireissä kuin viikonlopun kokkailuhetkissä.
Kolme makuuhuonetta tarjoavat runsaasti tilaa perheelle, ja jokaisessa kerroksessa on oma wc, mikä lisää arjen mukavuutta. Yläkerran wc:n yhteydessä on myös suihku, mikä tuo lisää käytännöllisyyttä. Kellarikerroksessa sijaitseva askartelu/harrastetila tarjoaa monipuoliset mahdollisuudet harrastuksiin tai työtilaksi.
Kodin sijainti on erinomainen: rauhallinen asuinalue, joka on kuitenkin lähellä kaupungin palveluita ja hyviä liikenneyhteyksiä. Koivula on arvostettu alue, joka tarjoaa erinomaiset puitteet perhe-elämälle.
Tartu tilaisuuteen ja tee tästä kauniista kodista oma perheesi uusi tukikohta!
Varaa pian oma esittelyaikasi ja tule ihastumaan.
___________________________________________
TANJA LAUTKANKARE
Asuntomyyjä, KiLAT 040 809 2722 / [email protected]
Kutsu minut maksuttomalle arviokäynnille sinun kotiisi ja ota askel kohti uusia kotiunelmia.Perustiedot
- Sijainti
- Lauritsankatu 17, 20740, Koivula, Turku
- Huoneluku
- 3
- Asuinpinta-ala
- 104,5 m²
- Kokonaispinta-ala
- 104,5 m²
- Pinta-alan peruste
- Pinta-ala ei ole tarkistusmitattu ja todellinen pinta-ala voi olla suurempi tai pienempi, kuin ilmoitettu
- Lisätiedot pinta-alasta
- Asuinhuoneiston pinta-ala on saatu rakennuspiirustuksista. Piirustuksen mukaan yhden asunnon huoneistola on 104,5m2 ja kerrosala 120,1m2 kokonaisala 196,10m2 Koko rakennuksen: kellarin huoneistoala 0m2 kerrosala 0m2 kokonaisala 145,7m2 Koko rakennuksen: 1.krs huoneistoala 128m2 kerrosala 152,6m2 kokonaisala 152,6m2 Koko rakennuksen: ullakko huoneistoala 81m2 kerrosala 87,6m2 kokonaisala 93,9m2 Koko rakennuksen kerrosala sisältäen molemmat asunnot on laajennuksen jälkeen 240,2m2 Ja huoneistoala sisältäen molemmat asunnot on laajennuksen jälkeen 209m2.
- Kohteen tyyppi
- Paritalo
- Kerros
- 3
- Rakennusvuosi
- 1952
- Käyttöönottovuosi
- 1952
- Kohde myydään vuokrattuna
- Ei
- Vapautuminen
- Sopimuksen mukaan
Hinta ja kustannukset
- Velaton hinta
- 349 000 €
- Myyntihinta
- 349 000 €
- Lisätietoja vastikkeista
- Paritalossa on hallinnanjakosopimus joka määrittelee kustannusten jaon. Molemmat puolet vastaavat omista kustannuksista. Molemmilla on omat vesi- ja sähkömittarit ja molemmilla oma jätesopimus. Yhteisesti maksetaan kiinteistön kulut.
- Sähköliittymä siirtyy
- Kyllä
- Neliöhinta
- 3 339,71 € / m²
- Lisätietoja maksusta
- Paritalossa on hallinnanjakosopimus joka määrittelee kustannusten jaon. Molemmat puolet maksavat omat kulut. Molemmilla on oma vesi- ja sähkömittari. Oma jätehuolto. Kiinteistön yhteiset kulut maksetaan puoliksi. Asuntojen sähkönkulutusta ei voida arvioida, kun asunnoissa ei ole asuttu saneeraukseen jälkeen.
Tilat ja materiaalit
- Keittiön lattiat
- Vinyyli
- Keittiön seinät
- Maali
- Keittiön varusteet
- Erillisuuni, liesituuletin, astianpesukone, liesi, jääkaappi, erillinen pakastin, ja mikroaaltouuni
- Liesi
- Induktioliesi
- Kylpyhuoneen seinät
- Kaakeli
- Kylpyhuoneen lattiat
- Laatta
- Kylpyhuoneen varusteet
- Suihku
- Erillinen WC
- Asunnossa on jokaisessa kerroksessa wc. Yläkerran wc:n yhteydessä on myös suihku, käsienpesuallas ja allaskaappi, peili, Tilat laatoitettu. Keskikerroksen wc:n lattia laattaa ja seinät maalattu. Käsienpesuallas ja allaskaappi ja peili. Kellarikerroksen wc:n lattia laattaa ja seinät maalattu. Käsienpesuallas ja allaskaappi ja peili.
- Makuuhuoneet
- Asunnossa on 3 kpl makuuhuoneita. Lattiat vinyyliä ja seinät maalattu.
- Olohuoneen seinät
- Maali
- Olohuoneen lattiat
- Vinyyli
- Kodinhoitohuone
- Kodinhoitohuoneessa on kaapistot, pesuallas sekä hana ja pesukoneliitäntä. Lattia laattaa ja seinät maalattu.
- Sauna
- Kyllä
- Kiuas
- Sähkökiuas
Lisätiedot
- Asunnon kunto
- Erinomainen
- Terassi
- Kyllä
- Lisätietoja terassista
- Olohuoneesta avautuu pariovien takaa terassi metsäiselle takapihalle.
- Muut tilat
- Askartelu/harrastetila lattia laattaa ja seinät maalattu.
Taloyhtiö ja kiinteistö
- Tontin pinta-ala
- 979 m²
- Tontin omistus
- Oma
- Tontin tyyppi
- Rinnetontti
- Tontin myyntityyppi
- Määräosa
- Käyttö/luovutusrajoitukset
- Lunastus on hallinnanjakosopimuksella.
- Rakennusmateriaali
- Puu, betoni ja rappaus
- Lämmitysjärjestelmä
- Vesi-ilmalämpöpumppu
- Ilmanvaihto
- Painovoimainen ilmanvaihto
- Vesijohto
- Kunnallisvesi
- Viemäröinti
- Kunnallinen viemäriverkosto
- Kattotyyppi
- Harjakatto
- Katon kunto
- Uusi
- Katemateriaali
- Pelti
- Lisätietoa rakennusoikeudesta
- Kiinteistön rakennusoikeus on kaikki käytetty. Saneerauksen jälkeen vähäinen ylitys joka hyväksytty. Koko kiinteistön osalta 12,2m2 ja asuinrakennuksen osalta 48,2m2.
- Kohteesta on energiatodistus
- Ei lain edellyttämää energiatodistusta
- Lisätietoja energiatodistuksesta
- Myyjä hoitaa energiatodistuksen ennen kaupantekoa.
- Lisätietoja taloyhtiön autonsäilytyspaikoista
- Molemmille asunnoille tulee kaksi autopaikkaa pihalle.
- Kaavatilanne
- Asemakaava
- Kaavoitustiedot
- Turun kaupunki https://www.turku.fi/sites/default/files/document/kaavoitusohjelma-2025-2028.pdf
- Asbestikartoitus
- Ei
Tehdyt remontit
Kohde on laajasti saneerattu. Rakennus on valmistunut vuonna 1952 ja nyt saneerattu.
Uusittu katto, julkisivu, LVIS, lämmönlähde, uudet ovet ja ikkunat, terassit, sisältä uusittu kaikki.
