Lehtikorventie 16
05440, Metsäkalteva, Hyvinkää
4h+k+kph+s+khh
419 000 €
123 m²

Tätä asuntoa myy Can Zhang, Myyntineuvottelija
Roof Hyvinkää | ROOF Group Oy

Sijainti
Asuntoesittely
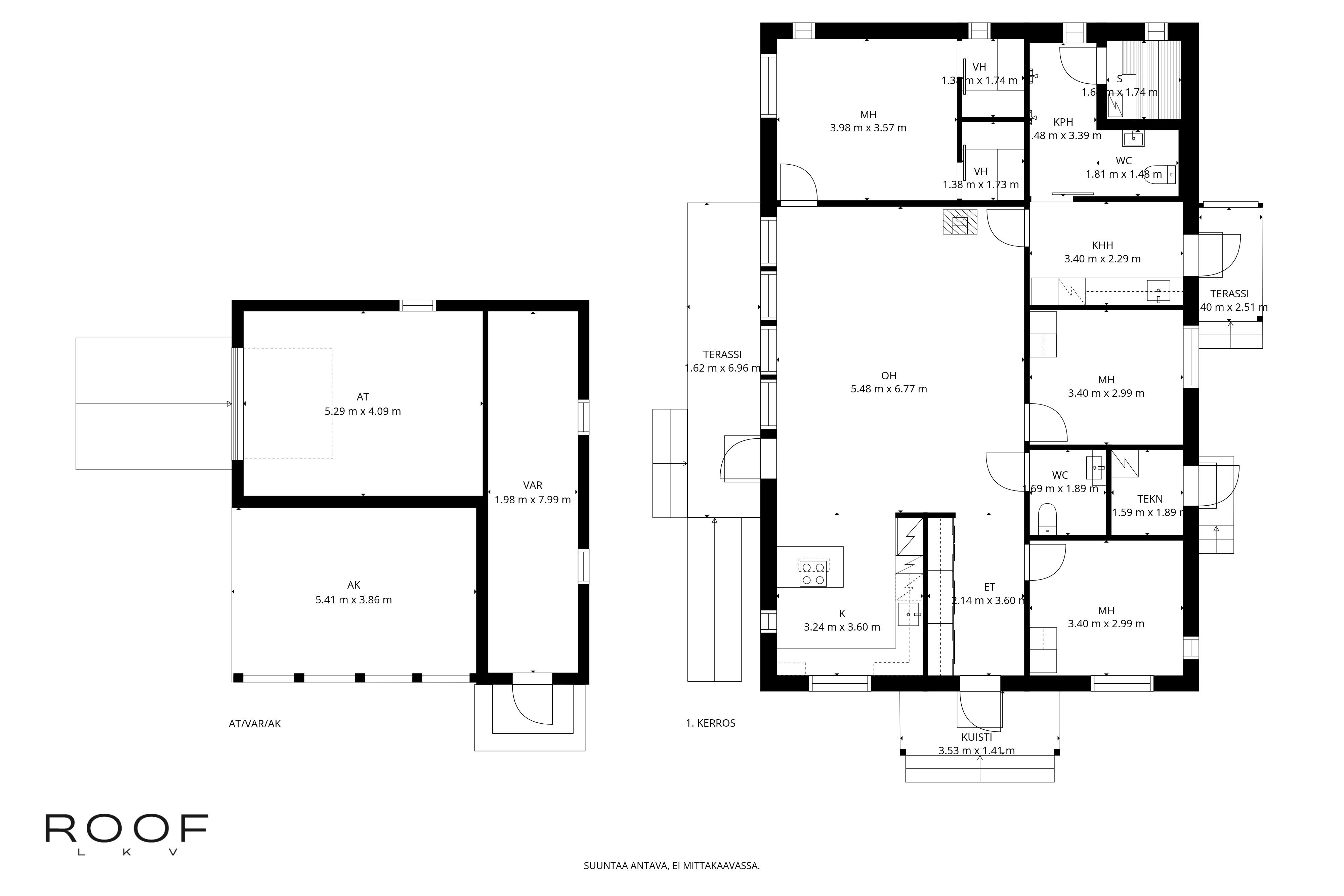
Valoisa kolmen makuuhuoneen koti Metsäkaltevassa
Tämä vuonna 2014 valmistunut yksitasoinen koti sijaitsee rauhallisella ja viihtyisällä Metsäkaltevan alueella omalla tontilla. Lämmitysmuotona on energiatehokas ilmavesilämpöpumppu.
Olohuone ja keittiö muodostavat avaran ja valoisan kokonaisuuden, jossa on tilaa sekä ruokailulle että oleskelulle. Keittiössä on runsaasti työ- ja säilytystilaa sekä saareke arkea helpottamaan.
Kodinhoitohuoneessa on käytännöllinen arkieteinen, josta on käynti pihalle. Kylpyhuoneessa on kaksi suihkua, wc ja sauna. Lisäksi talossa on erillinen wc. Kolme makuuhuonetta tarjoavat toimivat tilat perheen käyttöön, ja päämakuuhuoneessa on vaatehuone.
Pihapiirissä on tilava terassi, autokatos sekä iso autotalli ja varasto.
Metsäkalteva on perheystävällinen ja rauhallinen asuinalue, jossa luonto ja ulkoilumahdollisuudet ovat lähellä. Lähikoulut, päiväkodit ja palvelut löytyvät kävelyetäisyydeltä, ja keskustaan on hyvät kulkuyhteydet.
Palvelut Suomeksi, service in English and in Chinese!
ESITTELY & MYYNTI:
Can (Kani) Zhang
050 571 3471
[email protected]Pohjakuva


Perustiedot
- Sijainti
- Lehtikorventie 16, 05440, Metsäkalteva, Hyvinkää
- Huoneluku
- 4
- Asuinpinta-ala
- 123 m²
- Muu pinta-ala
- 46 m²
- Kokonaispinta-ala
- 169 m²
- Pinta-alan peruste
- Pinta-ala ei ole tarkistusmitattu ja todellinen pinta-ala voi olla suurempi tai pienempi, kuin ilmoitettu
- Lisätiedot pinta-alasta
- Pääpiirustuksen (pohja) mukaan huoneistoala on 123 m2 ja kerrosala 143 m2. Pääpiitustuksen (pohja) mukaan autotallin ja varaston kerrosala on 46 m2.
- Kohteen tyyppi
- Omakotitalo
- Kerros
- 1
- Rakennusvuosi
- 2015
- Käyttöönottovuosi
- 2015
- Kohde myydään vuokrattuna
- Ei
- Vapautuminen
- Sopimuksen mukaan
Hinta ja kustannukset
- Myyntihinta
- 419 000 €
- Keskimääräinen lämmityskustannus
- 20 € / kk
- Vesi ja jätevesi (€/kk)
- 50 €
- Kiinteistövero (€/vuosi)
- 710 €
- Sähköliittymä siirtyy
- Kyllä
- Neliöhinta
- 3 406,50 € / m²
- Lisätietoja maksusta
- Sähkönkulutus 2025 1.8.2024 - 1.12. 2024 ajalta kokonaiskustannus 828 € 1.1.2025-31.10.2025 ajalta kokonaiskustannus 1369,56 € yht 2200 € n. 185 € /kk Kokonaissähkönkulutus on ollut noin 10.000-15.000 kWh/v. VILPin ulkoyksikön hajoamisen jälkeen sähkönkulutus nousi. Vuonna 2025 VILPin ulkoyksikkö uusittiin ja sähkönkulutus on palautumassa normaalille tasolle, noin 13.000 kWh/v Lukijan on hyvä huomioida, että sähkön hinta voi vaihdella suurestikin edellä mainitusta riippuen sähkön tarjoajasta, tehdystä sopimuksesta sekä sähkön vallitsevasta markkinatilanteesta. Kulutusperusteiset kustannukset voivat vaihdella merkittävästikin riippuen mm. sopimuksista, kulutustottumuksista ja henkilömääristä. Todelliset kustannukset voivat siis olla ilmoitettua suuremmat tai pienemmät. Kiinteistöverotus tarkistetaan vuosittain ja muutokset veroon ovat mahdollisia. Roska-astioiden tyhjennys Hyvinkään hinnaston mukaisesti, laskutus kulutuksen mukaan. Esimerkkihintoja: 120 L sekajäteastia: n. 2,56 euroa / tyhjennys 240 L sekajäteastia: n. 5,11 euroa / tyhjennys 600 L sekajäteastia: n. 12,78 euroa / tyhjennys
Tilat ja materiaalit
- Keittiön kuvaus
- Varustus: Induktioliesi, Liesituuletin, Uuni, Hana, Kaapisto, Allas, Astianpesukone, Jääkaappi, Pakastin, Sähköliesi Lisätietoa: Ylämaan kivikomposiitti tasot Seinämateriaali: Maali Lattiamateriaali: Laatta
- Kylpyhuone
- Varustus: Suihku, Wc istuin, Hana, Allas, Allaskaapisto, Lattialämmitys Seinämateriaali: Laatta Lattiamateriaali: Laatta
- Erillinen WC
- Varustus: Wc istuin, Hana, Allas, Allaskaapisto, Lattialämmitys Seinämateriaali: Maali Lattiamateriaali: Laatta
- Makuuhuoneet
- Makuuhuone 1 Varustus: Vaatehuone x2 Seinämateriaali: Maali Lattiamateriaali: Laminaatti Makuuhuone 2 Varustus: Kaapisto Seinämateriaali: Maali Lattiamateriaali: Laminaatti Makuuhuone 3 Varustus: Kaapisto Seinämateriaali: Maali Lattiamateriaali: Laminaatti
- Olohuone
- Varustus: Takka, Ilmalämpöpumppu Seinämateriaali: Maali, Tapetti Lattiamateriaali: Laminaatti Lisätietoa: Takka on nuohottu viimeksi 14.11.2024.
- Sauna
- Kyllä
- Saunan kuvaus
- Varustus: Kiuas, Lauteet Seinät: Paneeli Lattia: Laatta
- Takka
- Takka
Lisätiedot
- Asunnon kunto
- Hyvä
- Muut kaupan kannalta merkittävät tiedot
- Kohteen markkinoinnissa käytetään mittatiedoilla varustettua pohjapiirrosta. Pohjapiirroksen tarkoitus on helpottaa ostajan ostopäätöstä ja selvittää asunnon nykyinen huonejako. Lukija on tietoinen, että pohjakuva on suuntaa antava, ei mittakaavassa, eikä perustu virallisiin piirustuksiin. Pohjapiirroksessa näkyvät mitat on luotu automaattisesti 3D-skannauksesta (leveys x pituus), eikä niiden oikeellisuutta ole tarkistettu. Pohjapiirroksessa näkyvät mitat ovat suuntaa antavia ja ne voivat näin ollen poiketa todellisista mitoista. Mitat tulee tarkistaa esimerkiksi remonttia suunniteltaessa. Mittauskohdat on merkitty kuvaan pienillä kolmioilla. Välitysliike, myyjä, eikä pohjakuvan laatija ole vastuussa, mikäli pohjakuvan mittasuhteet eivät todellisuudessa vastaa pohjakuvassa mainittuja mittasuhteita. Lukijan on tärkeää ymmärtää, että mittasuhteet voivat heittää kuvassa mainitusta enemmän tai vähemmän. Myytävän kohteen pinta-alatiedot selviävät myyntiesitteestä, eikä pohjakuvan mittatietojen pohjalta voida laskea/olettaa muita pinta-alatietoja.
Taloyhtiö ja kiinteistö
- Tontin pinta-ala
- 805 m²
- Tontin omistus
- Oma
- Tontin myyntityyppi
- Koko tontti
- Lisätiedot rakennusmateriaaleista
- Rakennus on puurunkoinen, ulkoverhous puupaneelia. Julkisivussa vaalea vaakapaneeli ja tiilenpunainen peltikate. Perustus teräsbetonilaatta. Sokkeli harmaa. Ikkunat ja ulko-ovet valkoiset.
- Rakennusmateriaali
- Puu
- Lämmitysjärjestelmä
- Ilmavesilämpöpumppu
- Ilmanvaihto
- Koneellinen ilmanvaihto
- Vesijohto
- Kunnallisvesi
- Viemäröinti
- Kunnallinen viemäriverkosto
- Kattotyyppi
- Harjakatto
- Katemateriaali
- Pelti
- Rakennusoikeus
- 201.25
- Lisätietoa rakennusoikeudesta
- Rakennusoikeutta jää:: 201,25m2- 181m2 =20,25m2
- Rakennusoikeus e-luku
- 0.25
- Kohteesta on energiatodistus
- Ei lain edellyttämää energiatodistusta
- Lisätietoja energiatodistuksesta
- Energiatodistus on mennyt vanhaksi 02.04.2024. Nykyinen omistaja tilaa uuden energiatodistuksen.
- Tie perille
- Kyllä
- Paikallistiedot
- Lähikauppa, koulu ja päiväkoti sijaitsevat kävelyetäisyydellä, ja Hyvinkään keskustan palvelut ovat nopeasti saavutettavissa. Alueella on hyvät ulkoilu- ja liikuntamahdollisuudet. Liikenneyhteydet ovat sujuvat sekä autolla että bussilla - pysäkit sijaitsevat lähellä, ja keskustaan pääsee alle 10-15 minuutissa liikennetilanteesta riippuen.
- Kaavatilanne
- Asemakaava
- Kaavoitustiedot
- Lisätietoa kaavoituksesta Hyvinkään kaupungilta 019 459 11 (vaihde) Lukijan tulee tutustua lähialueen kaavoitushankkeisiin ja muihin alueen tietoihin ja palveluihin huolellisesti Hyvinkään kaupungin karttapalvelun kautta: kartta.hyvinkaa.fi Lähistöllä valmisteilla olevat asemakaavat per. 27.10.2025: 1. Metsäkallio Alue rajautuu pohjoisessa Hangonväylään, lännessä asemakaavoitettuun alueeseen, idässä Jokelantiehen ja etelän suunnalla Metsäkaltevan keskuspuistoon. Suunnittelualueen pinta-ala on noin 45 ha. 2. Metsäkaltevan keskustan alue Asemakaavamuutoksen yleisenä tavoitteena on tehostaa alueen maankäyttöä tiiviin kerrostalorakentamisen suuntaan. Nykyisen Aamutuulen päiväkodin tilat ovat käyneet ahtaaksi ja sitä on tarkoitus laajentaa noin 300 k-m2 suuruisella laajennuksella. 3. Kravunlaakso II Metsäkaltevan asuinalueen laajentaminen mm. Keskustaajaman osayleiskaavan periaatteiden mukaisesti. Tavoitteena on suunnitella Kravunlaakson alueesta tonttitarjonnaltaan monipuolinen ja viihtyisä pientaloalue. 4. Auroranpolku, asemakaavan muutos Asemakaavamuutoksen laatiminen koskee 28. kaupunginosan, Metsäkalteva, korttelia 2765 ja kortteleiden 2761 ja 2766 osia sekä katualueita Tavoitteena on tutkia mahdollisuutta muuttaa Kravunlaakso I alueen rakentumattomassa keskiosassa yhtiömuotoisen asumisen ja julkisten lähipalvelurakennusten korttelialuetta pientalotonteiksi ja mahdollistaa samalla viereisten yhtiömuotoisten korttelialueiden rakentuminen pienempinä kokonaisuuksina kortteleiden toteuttamisen edellytysten parantamiseksi. Lukijan on hyvä huomioida, että tässä ilmoitetut lähialueen merkittävimmät asemakaavatiedot perustuvat tilanteeseen 27.10.2025. Asemakaavat voivat päivittyä, eikä välitysliike vastaa mahdollisista muutoksista. Lukijan tulee tutustua vireillä oleviin asemakaavoihin ja muihin suunnitelmiin ennen ostotarjouksen jättämistä. Tarvittaessa välittäjä antaa lisätietoa ajankohtaisista kaavamuutoksista.
- Rakennusvaihe
- Valmis
