Leivonpolku 4
15540, Villähde, Lahti
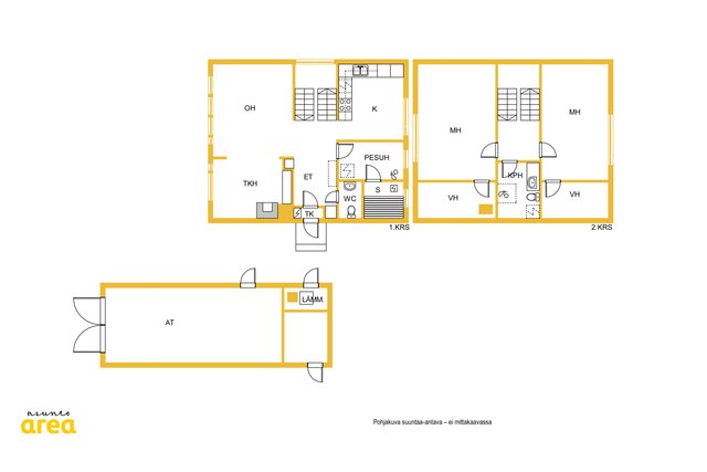
3h, k, kph, s, 2x wc, vh, at
112 500 €
106 m²

Tätä asuntoa myy Tuomo Riihilahti, Yrittäjä, kiinteistönvälittäjä LKV, kaupanvahvistaja
AsuntoArea Oy

Sijainti
Asuntoesittely
Ryhdikäs, ja paljon remontoitu peukalopotti viihtyisällä alueella Nastolan Villähteellä.
Tästä heti vapaa remontoitu perhekoti edullisesti. Ilmasta veteen -lämmitysjärjestelmä asennettu 2024, lisäksi talossa ilmalämpöpumppu viilennykseen ja avotakka luo tunnelmaa. Uusitut kosteat tilat ja keittiö koneineen mahdollistavat sen, että pääset vaikka heti muuttamaan. Oma, lämmin autotalli kruunaa asumismukavuuden. Tule ja ihastu! Esittelyt ja lisätiedot antaa; Tuomo Riihilahti, puh. 0400-682431Perustiedot
- Sijainti
- Leivonpolku 4, 15540, Villähde, Lahti
- Huoneluku
- 3
- Asuinpinta-ala
- 106 m²
- Muu pinta-ala
- 30 m²
- Kokonaispinta-ala
- 136 m²
- Pinta-alan peruste
- Pinta-ala ei ole tarkistusmitattu ja todellinen pinta-ala voi olla suurempi tai pienempi, kuin ilmoitettu
- Kohteen tyyppi
- Omakotitalo
- Kerros
- 2
- Rakennusvuosi
- 1976
- Kohde myydään vuokrattuna
- Ei
- Vapautuminen
- Heti
Tilat ja materiaalit
- Keittiön kuvaus
- Keittiön kaapistot uusittu vuonna 2016. Upon keraaminen liesi -24 (5 -vuoden takuu)Gram jää-viileäkaappi-23, Electrolux apk
- Keittiön lattiat
- Laminaatti
- Keittiön seinät
- Maali
- Keittiön varusteet
- Viileäkaappi, liesi, ja astianpesukone
- Liesi
- Induktioliesi
- Kylpyhuone
- Kylpyhuone remontoitu vesieristeitä myöden vuonna 2006. Lattialämmitys sähköllä.
- Kylpyhuoneen seinät
- Kaakeli
- Kylpyhuoneen lattiat
- Laatta
- Kylpyhuoneen varusteet
- Suihku, pesukoneliitäntä, ja lattialämmitys
- WC Lukumäärä
- 2
- WC:n lattiat
- Muovimatto
- WC:n seinät
- Tapetti
- Makuuhuoneiden lukumäärä
- 2
- Makuuhuoneiden seinät
- Tapetti
- Makuuhuoneiden lattiat
- Laminaatti
- Olohuone
- Iso ja avara olohuone, jossa myös avotakka.
- Olohuoneen seinät
- Tapetti
- Olohuoneen lattiat
- Laminaatti
- Säilytystilojen kuvaus
- Kaksi vaatehuonetta, ja runsaasti säilytystilaa esim. autotallin yhteydessä.
- Kohteen säilytystilat
- Vaatehuone
- Sauna
- Kyllä
- Kiuas
- Sähkökiuas
- Takka
- Takka
Lisätiedot
- Asunnon kunto
- Hyvä
- Lisätietoja kunnosta
- Kuntotarkastus teetetty 9/2025, raportin saa välittäjältä.
- Parveke
- Sisäänvedetty parveke
- Parvekkeen ilmansuunta
- Etelä
- Parvekkeen (tai parvekkeiden) kokonaispinta-ala
- 10 m²
- Terassi
- Kyllä
- Kauppaan ei kuulu
- Polttopuut eivät kuulu kauppaan
Taloyhtiö ja kiinteistö
- Tontin pinta-ala
- 665 m²
- Tontin omistus
- Oma
- Tontin tyyppi
- Tasamaatontti
- Tontin myyntityyppi
- Koko tontti
- Rakennusmateriaali
- Betoni ja puu
- Lämmitysjärjestelmä
- Ilmavesilämpöpumppu
- Ilmanvaihto
- Koneellinen ilmanvaihto ja lämmöntalteenottojärjestelmä
- Vesijohto
- Kunnallisvesi
- Viemäröinti
- Kunnallinen viemäriverkosto
- Kattotyyppi
- Harjakatto
- Katon kunto
- hyvä
- Katemateriaali
- Pelti
- Kohteesta on energiatodistus
- Kyllä
- Energialuokka
- B2018
- Liikenneyhteydet
- Bussipysäkki lähellä, sujuvat yhteydet omalla autolla ja hyvät pyöräilytiet
- Tie perille
- Kyllä
- Kaavatilanne
- Asemakaava
- Kuntotarkastus tehty
- 15.09.2025
- Asbestikartoitus
- Ei
