Lentiläntie 45
37800, Toijala, Lentilä, Akaa
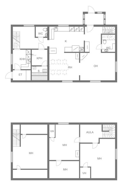
4mh,oh,k,rh,ph,s,
210 000 €
150 m²

Tätä asuntoa myy Tuukka Hakkarainen, Ylempi Kiinteistönvälittäjä, LKV, YKV
LKV OGZ | Tuukka Hakkarainen LKV

Sijainti
Asuntoesittely
Akaan Lentilässä sijaitseva viehättävä omakotitalo tarjoaa tilaa ja mukavuutta perheelle, joka arvostaa rauhallista asuinaluetta. Tämä vuonna 1948 rakennettu puutalo on kokenut mittavia remontteja, jotka tekevät siitä modernin ja viihtyisän kodin. Talon asuinpinta-ala on 150 m², ja se käsittää neljä makuuhuonetta, olohuoneen, keittiön, pesutilat ja saunan.
Kodissa on lämpöä varaava takka, joka luo tunnelmaa olohuoneeseen. Keittiössä on ruuan valmistukseen ja lämmön lähteenä puuhella.
Taloa ympäröi oma 1133 m² tontti, jossa on tilaa lasten leikeille ja puutarhanhoidolle. Vuonna 2015 rakennettu terassi tarjoaa oivan paikan kesäpäivien viettoon. Lisäksi autotalli ja varastotilat tuovat käytännöllisyyttä arkeen.
Rakennuksen peruskorjaukset, kuten alapohjan ja vesikaton uusiminen, on tehty huolella, ja viimeisimpänä autotallin ulkovuori ja sisätilat on remontoitu vuonna 2024. Tämä talo on valmis vastaanottamaan uuden perheen, joka etsii kodikasta ja toimivaa asuinpaikkaa.
Sijainti on ihanteellinen perheelle, joka arvostaa rauhallista ja turvallista ympäristöä, mutta haluaa silti olla kohtuullisen matkan päässä palveluista. Tartu tilaisuuteen ja tule tutustumaan tähän viehättävään kotiin!
--------------------------
Tuukka Hakkarainen
Ylempi Kiinteistönvälittäjä YKV LKV
LKV Organization
[email protected]
www.ogz.fi
Haluatko myydä oman asuntosi ennen uuden ostamista?
Soita ja pyydä minut ilmaiselle arviokäynnille!
Pohjakuva

Perustiedot
- Sijainti
- Lentiläntie 45, 37800, Toijala, Lentilä, Akaa
- Huoneluku
- 6
- Asuinpinta-ala
- 150 m²
- Muu pinta-ala
- 40 m²
- Kokonaispinta-ala
- 190 m²
- Pinta-alan peruste
- Pinta-ala ei ole tarkistusmitattu ja todellinen pinta-ala voi olla suurempi tai pienempi, kuin ilmoitettu
- Lisätiedot pinta-alasta
- Asuinpinta-ala 150m², kerrosala 190m², autotalli+varasto 64 m².
- Kohteen tyyppi
- Omakotitalo
- Kerros
- 2
- Rakennusvuosi
- 1948
- Lisätietoja rakennusvuodesta
- Päärakennus rakennettu 1948. Autotalli 1986.
- Kohde myydään vuokrattuna
- Ei
- Vapautuminen
- Sopimuksen mukaan
Tilat ja materiaalit
- Keittiön lattiat
- Vinyylikorkki
- Keittiön seinät
- Maali ja tapetti
- Keittiön varusteet
- Jääkaappi, liesi, liesituuletin, astianpesukone, puuhella, erillisuuni, ja erillinen pakastin
- Kylpyhuoneen seinät
- Kaakeli
- Kylpyhuoneen lattiat
- Laatta
- Kylpyhuoneen varusteet
- Suihku ja lattialämmitys
- WC Lukumäärä
- 2
- WC:n lattiat
- Laatta ja vinyyli
- WC:n seinät
- Maali, kaakeli ja paneeli
- Makuuhuoneiden lukumäärä
- 4
- Makuuhuoneiden seinät
- Maali ja tapetti
- Makuuhuoneiden lattiat
- Parketti ja laminaatti
- Olohuoneen seinät
- Maali ja tapetti
- Olohuoneen lattiat
- Vinyylikorkki
- Kodinhoitohuoneen varusteet
- Pesukoneliitäntä
- Kodinhoitohuoneen seinät
- Kaakeli ja maali
- Kodinhoitohuoneen lattiat
- Epoksi
- Sauna
- Kyllä
- Kiuas
- Sähkökiuas
- Takka
- Varaava takka
Lisätiedot
- Asunnon kunto
- Hyvä
- Parveke
- Ei parveketta
- Terassi
- Kyllä
Taloyhtiö ja kiinteistö
- Tontin pinta-ala
- 1 133 m²
- Tontin omistus
- Oma
- Tontin tyyppi
- Tasamaatontti
- Tontin myyntityyppi
- Koko tontti
- Rakennusmateriaali
- Puu
- Lämmitysjärjestelmä
- Sähkö Kustannukset: 20000 kWh / vuosi Varaava takka, lattialämmity ph,wc ja tk,
- Ilmanvaihto
- Painovoimainen ilmanvaihto ja huippu imuri
- Vesijohto
- Kunnallisvesi
- Viemäröinti
- Kunnallinen viemäriverkosto
- Kattotyyppi
- Harjakatto
- Katemateriaali
- Pelti
- Kohteesta on energiatodistus
- Ei lain edellyttämää energiatodistusta
- Kaavatilanne
- Asemakaava
- Kaavoitustiedot
- Akaan Kaupunki
- Asbestikartoitus
- Ei
Tehdyt remontit
Laajennus ja kattoerkkeri n. 1991.
Keittiö ja takka 2006
Kylppäri 2009
2013: Alapohjan uudelleen rakennus, ryömintätilan maa-aineksen poisto ja leca-soran puhallus, sokkelin eristys, seinien purueristeiden vaihto selluvillaan, ulkovuori, yläpohjan purujen vaihto selluvillaan ja vesikatto.
2015 Salaojat, runkovesijohto, sadevesijärjestelmä ja terassi.
2019 Ulkovuoren maalaus.
2024 Autotallin ulkovuori ja sisäremontti.
Putkista osa uusittu 2013 ja 2020, vanhimmat n. 1991.