Lindankuja 4
02780, Kauklahti, Espoo
3 h, kt, s, ransk. parveke
264 000 € (4 157,48 € / m²)
63,5 m²

Tätä asuntoa myy Harto Pasonen, Myyntineuvottelija, BBA
Roof Espoo | ROOF LKV Espoo Oy

Sijainti
Asuntoesittely
Valoisa ja moderni, muuttovalmis rivitalokoti luonnon ja palveluiden äärellä
Vuonna 2016 valmistuneessa Asunto Oy Espoon Luotsissa sijaitseva 63,5 m²:n rivitalokolmio tarjoaa hyvin suunnitellut ja käytännölliset tilat kahdessa kerroksessa. Tämä valoisa ja erittäin siistissä kunnossa pidetty läpitalon koti sopii loistavasti niin pienelle perheelle kuin pariskunnallekin.
Kodin sydän on yläkerran avara ja valoisa oleskelutila, jossa moderni AEG-kodinkonein varustettu keittiö yhdistyy saumattomasti olohuoneeseen. Suuret ikkunat tuovat luonnonvaloa kahdesta suunnasta. Sisääntuloaulan ja portaikon korkea huonekorkeus tuo avaruuden tunnetta ja käytännöllinen tila portaiden alla soveltuu esimerkiksi etätyöpisteeksi tai säilytystilaksi.
Yläkerrasta löytyvät myös kaksi makuuhuonetta, jotka sopivat erinomaisesti sekä lasten että vanhempien käyttöön. Vaatesäilytykselle on myös hyvin tilaa. Asunnon viilennykseen on asennettu ilmalämpöpumppu, joka tuo mukavuutta erityisesti kesähelteillä.
Yläkerrassa sijaitsee tilava kylpyhuone, jonka yhteyteen on rakennettu reilunkokoinen sauna. Pesutiloissa on kätevät tilat myös pyykkihuollolle. Sisäänkäynnin yhteydessä sijaitsee asunnolle kuuluva kylmä ulkovarasto ja yhtiön erillisrakennuksessa on asunnolla vielä toinen, lämmin varastotila.
Kodin oma piha avautuu etelään ja tarjoaa sopivan kokoisen ulkotilan oleskeluun tai lasten leikkeihin. Pihan lisäksi lähiluonto on vahvasti läsnä - aivan vieressä avautuvat Espoon keskuspuiston ulkoilureitit, peltoaukeat ja ratsastustallit, jotka tekevät Kauklahdesta ainutlaatuisen kaupunginosan luonnonläheisyyttä arvostavalle.
Arjen sujuvuus on täällä kohdallaan. Koulut ja päiväkodit ovat kävelyetäisyydellä, ja lähikauppaan on matkaa vain noin 600 metriä. Suositut K-Supermarket Lasihytti, Maxin Kala ja Emil Halmen leipomo löytyvät reilun kilometrin säteeltä, ja herkuttelijan keidas Edvin Pizza Napoletana sijaitsee vain 1,8 km:n etäisyydeltä.
Julkiset liikenneyhteydet ovat erinomaiset: Kauklahden juna-asemalta pääsee Helsinkiin reilussa puolessa tunnissa ja bussipysäkki sijaitsee kävelymatkan päässä. Autolla liikkuminen on myös sujuvaa – Kehä III ja Länsiväylä ovat helposti saavutettavissa.
Asunto myydään lunastetulla omatonttiosuudella. Autolle on mahdollista ostaa sähköpistokkeellinen katospaikka erillisosakkeena hintaan 6 000 €.
WHY YOU’LL LOVE THIS HOME
• Bright and modern layout with natural light from two directions
• South-facing private yard perfect for relaxing or gardening
• High ceilings and a functional space under the stairs
• Air source heat pump for summer comfort
• Excellent storage solutions, including two separate storages
• Peaceful yet central location close to services and nature
• Great public transport and car connections (train, buses, Kehä III, Länsiväylä)
• Nearby parks, forests, and horse stables for outdoor lovers
• Ready to move in – no renovations needed
Onko nykyinen asuntosi vielä myymättä? Kutsu minut veloituksettomalle arviokäynnille, saat kilpailukykyisen välitystarjouksen ja asiallesi omistautuneen välittäjän, joka toimii täysipainoisesti jokaisen asiakkaansa myyntitavoitteen toteutumiseksi.
Ota yhteyttä ja varaa oma yksityinen esittelyaikasi jo tänään ennen asunnon virallista ensiesittelyä:
Harto Pasonen
myyntineuvottelija, BBA
ROOF LKV Espoo Oy
050 529 9768
[email protected]
Get a roof.
www.roof.fiPerustiedot
- Sijainti
- Lindankuja 4, 02780, Kauklahti, Espoo
- Omistusmuoto
- Omistusasunto
- Huoneluku
- 3
- Asuinpinta-ala
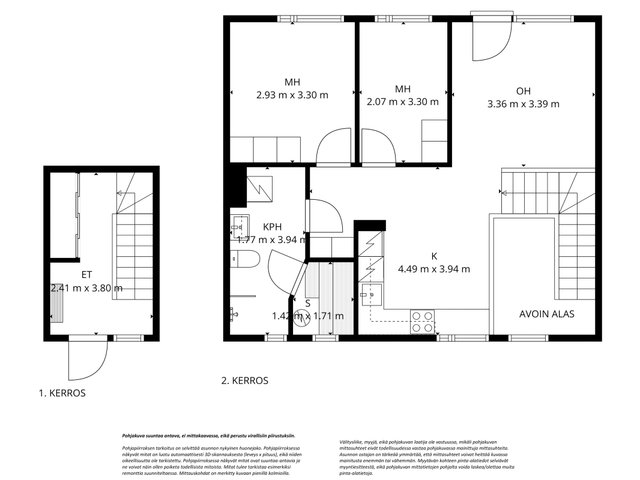
- 63,5 m²
- Muu pinta-ala
- 0 m²
- Kokonaispinta-ala
- 63,5 m²
- Pinta-alan peruste
- Yhtiöjärjestyksen mukainen, Isännöitsijäntodistuksen mukainen, (Pinta-ala ei ole tarkistusmitattu ja todellinen pinta-ala voi olla suurempi tai pienempi, kuin ilmoitettu)
- Lisätiedot pinta-alasta
- Huoneiston pinta-ala on yhtiöjärjestyksen, isännöitsijäntodistuksen ja myyjän ilmoituksen mukaan 63,5 m2. Kohteen markkinoinnissa käytetään mittatiedoilla varustettua pohjapiirrosta. Pohjapiirroksen tarkoitus on helpottaa ostajan ostopäätöstä ja selvittää asunnon nykyinen huonejako. Välitysliike, myyjä, eikä pohjakuvan laatija ole vastuussa, mikäli pohjakuvan mittasuhteet eivät todellisuudessa vastaa pohjakuvassa mainittuja mittasuhteita. Lukijan on tärkeää ymmärtää, että mittasuhteet voivat heittää kuvassa mainitusta enemmän tai vähemmän. Myytävän kohteen pinta-alatiedot selviävät myyntiesitteestä, eikä pohjakuvan mittatietojen pohjalta voida laskea/olettaa muita pinta-alatietoja.
- Kohteen tyyppi
- Rivitalo
- Kerros
- 2 / 2
- Rakennusvuosi
- 2016
- Käyttöönottovuosi
- 2016
- Kohde myydään vuokrattuna
- Ei
- Vapautuminen
- Sopimuksen mukaan
- Lisätietoja vapautumisesta
- Sopimuksen mukaan.
Hinta ja kustannukset
- Velaton hinta
- 264 000 €
- Myyntihinta
- 261 832,77 €
- Velkaosuus
- 2 167,23 €
- Yhtiövastike
- Hoitovastike 314,33 € / kk (4,95 € / m²), Rahoitusvastike 30,48 € / kk (0,48 € / m²), Yhtiövastike yhteensä 344,81 € / kk
- Lisätietoja vastikkeista
- Yhtiössä on huoneistokohtaiset vesimittarit, vesimaksuennakko 19 €/hlö maksetaan kuukausittain. Vedenkulutuksen tasauslasku tehdään vuosittain (kylmävesi 4,45 €/dm3, lämmin vesi 9,40 €/dm3) . Mahdollisten ylimääräisten tasauslaskujen osalta mm. osakasmuutosten yhteydessä, tulee osakkaan erikseen pyytää tasauslaskutusta. Pääomavastike 3 Maalausurakka 0,48 €/m2/kk.
- Autopaikkamaksu
- 22 € / kk
- Vesimaksu
- 19 € / hlö / kk
- Neliöhinta
- 4 157,48 € / m²
- Lisätietoja maksusta
- Autokatosvastike 22,00 €/kk. Autopaikkavastike 11,00 €/kk. Autopaikkavuokra, Inva 0,00 €/kk. Autopaikkavuokrat 18,00 €/kk. Taloyhtiön hallitukselle on annettu valtuutus periä (tai olla perimättä) ylimääräistä vastiketta yhtiön taloudellisen aseman tai maksuvalmiuden sitä vaatiessa
Tilat ja materiaalit
- Keittiön kuvaus
- Vaaleasävyinen keittiö laadukkain AEG-kodinkonein. Laminaattitaso, välitila kaakeloitu, seinät maalattu, lattia laminaattia.
- Keittiön lattiat
- Laminaatti
- Keittiön seinät
- Maali ja kaakeli
- Keittiön varusteet
- Jääkaappipakastin (AEG), astianpesukone (AEG), erillisuuni (AEG), liesi (AEG), ja liesituuletin (Iloxair)
- Liesi
- Keraaminen liesi
- Kylpyhuone
- Moderni kylpyhuone/WC-tila, josta käynti omaan saunaan.
- Kylpyhuoneen seinät
- Kaakeli
- Kylpyhuoneen lattiat
- Laatta
- Kylpyhuoneen varusteet
- Peilikaappi, allaskaappi, wc-istuin, suihku, suihkuseinä, pesukoneliitäntä, ja lattialämmitys
- Makuuhuoneet
- Makuuhuoneet, joissa komerotilat vaatesäilytystä varten. Maalatut seinät, lattia laminaattia.
- Makuuhuoneiden lukumäärä
- 2
- Makuuhuoneiden seinät
- Maali
- Makuuhuoneiden lattiat
- Laminaatti
- Olohuone
- Tilava ja valoisa keittiöön yhdistyvä olohuonetila, josta avarat näkymät viereisen urheilukentän suuntaan. Maalatut seinät, lattia laminaattia.
- Olohuoneen seinät
- Maali
- Olohuoneen lattiat
- Laminaatti
- Säilytystilojen kuvaus
- Jokaisella asunnolla kylmä ulkovarasto sekä lämpimät huoneistokohtaiset varastot erillisrakennuksessa.
- Kohteen säilytystilat
- Kylmä ulkovarasto ja kellarikomero
- Sauna
- Kyllä
- Kiuas
- Sähkökiuas
- Saunan kuvaus
- Tilava ikkunallinen sauna useammallekin kylpijälle. Uusittu Harvia Cilindro PC 66 -sähkökiuas (2021).
Lisätiedot
- Asunnon kunto
- Hyvä
- Lisätietoja kunnosta
- Siistikuntoinen, muuttovalmis asunto.
- Näkymät
- Näkymät huoneistosta taloyhtiön puistomaiselle piha-alueelle.
- Parveke
- Ranskalainen parveke
- Parvekkeen ilmansuunta
- Pohjoinen
- Terassi
- Kyllä
- Lisätietoja terassista
- Terassi asunnon sisääntulon edustalla.
- Piha
- Taloyhtiöllä vehreä puistomainen piha-alue, jolla lasten leikkipaikkoja.
- Ranta
- Ei rantaa
- Hissi
- Ei
- Kohde on saaressa
- Ei
- Muuta kauppaan kuuluvaa
- Sälekaihtimet. Ilmalämpöpumppu.
- Kauppaan ei kuulu
- Irtain.
- Muut kaupan kannalta merkittävät tiedot
- Avarapohjainen ja valoisa, neliömääräänsä huomattavasti tilavamman tuntuinen perheasunto hyvien palvelujen ja liikenneyhteyksien äärellä kauniin luonnon ympäröimänä. Alue on lapsiperheystävällinen. Kauppa, bussipysäkki, juna-asema, päiväkoti ja koulu ovat kävelyetäisyydellä.
Taloyhtiö ja kiinteistö
- Taloyhtiön nimi
- Asunto Oy Espoon Luotsi
- Isännöitsijätoimisto
- Kiinteistö-Tahkola Helsinki Oy
- Isännöitsijän nimi
- Christian Boman
- Isännöitsijän sähköposti
- [email protected]
- Isännöitsijän puhelin
- 020 7488 249
- Taloyhtiön lisätiedot
- Jokaisen asuinhuoneiston hallintaan kuuluu huoneiston yhteydessä sijaitseva terassi ja yhtiöjärjestyksen liitekuvassa esitetty huoneistokohtainen piha-alue sekä huoneistopihan yhteydessä sijaitseva lämmityksetön varastokoppi. Huoneiston hallinnassa olevan piha-alueen nurmikon, istutusten ja piharakenteiden sekä terassin korjaus-, kunnossapito-, huolto-, hoito-, vahinko-ja muu vastuu kuuluu kyseiselle huoneistolle. Kuitenkin huoneistopihoja rajaavien pensaiden ja aitarakenteiden sekä pihojen rajoilla ja huoneiston B16 pihan alueella sijaitsevien, yhtiön alkuperäiseen istutussuunnitelmaan kuuluvien puiden korjaus-, kunnossapito-, huolto-, hoito-, vahinko- ja muu vastuu kuuluu yhtiölle. Lisäksi kunkin asuinhuoneiston käyttöön kuuluu erillisessä rakennuksessa, väestönsuojatilan yhteydessä sijaitsevat huoneistokohtaiset irtaimistovarastokopit.
- Tontin pinta-ala
- 4 887 m²
- Tontin omistus
- Oma
- Tontin tiedot
- Yhtiö on lunastanut tontin kokonaisuudessaan. Tonttiosuus on tämän asunnon osalta lunastettu ja sisältyy myyntihintaan.
- Käyttö/luovutusrajoitukset
- Jos kattamattoman autopaikan tai autokatospaikan hallintaan oikeuttava osake (osakkeet 15126-15154) siirtyy millä tahansa saannolla muulta kuin perustajaosakkaalta yhtiön ulkopuoliselle uudelle omistajalle eikä samassa yhteydessä siirretä tämän yhtiön osakkeita, jotka oikeuttavat yhtiön jonkin asuinhuoneiston hallintaan, on siirronsaajan ilmoitettava siirrosta hallitukselle viipymättä, ja on yhtiön osakkeenomistajilla oikeus lunastaan siirron kohteena olevat osakkeet. Lunastusmenettelyssä noudatetaan edellä olevan lisäksi kaikilta muilta osin kulloinkin voimassa olevan asunto-osakeyhtiölain säännöksiä. Autokatospaikka myydään asunto-osakkeen yhteydessä erillisosakkeena (osakenumerot 15143-15144) hintaan 6 000 €.
- Rakennusmateriaali
- Puu ja kivi
- Lämmitysjärjestelmä
- Kaukolämpö
- Ilmanvaihto
- Koneellinen ilmanvaihto
- Vesijohto
- Kunnallisvesi
- Viemäröinti
- Kunnallinen viemäriverkosto
- Kattotyyppi
- Harjakatto
- Katemateriaali
- Tiili/pelti
- Lisätietoja kiinteistönhoidosta
- Huoltoyhtiö
- Kiinteistönhoidon lisätiedot
- Huoltia Espoo Oy.
- Taloyhtiössä on
- Ulkovarasto, väestönsuoja, ja vinttikomero
- Lunastusoikeus yhtiöllä
- Ei
- Lunastusoikeus osakkaille
- Ei
- Kohteesta on energiatodistus
- Kyllä
- Energialuokka
- C2013
- Energiatodistuksen voimassaolo
- 2.12.2026
- Lisätietoja energiatodistuksesta
- Tuomo Koskimaa, LVI-CAD Oy, 02.12.2016.
- Taloyhtiöön kuuluu
- Yhtiön välittömässä hallinnassa ovat piha-alueet lukuun ottamatta huoneistokohtaisia pihoja; piha-alueilla sijaitsevat 7 kattamatonta autopaikkaa, joista yksi on tarkoitettu ensisijaisesti liikuntaesteisten käyttöön; ja erillisessä rakennuksessa sijaitsevat talovarasto, tekniset tilat ja väestönsuoja/irtaimistovarastotila.
- Liikenneyhteydet
- Bussipysäkki lähellä, juna-asema lähellä, sujuvat yhteydet omalla autolla, taksitolppa lähellä, hyvät pyöräilytiet ja hyvä kulkuyhteys
- Lisätietoja liikenneyhteyksistä
- Kauklahden rautatieasemalle 1,5 km, josta junalla reilussa puolessa tunnissa Helsingin keskustaan. Sujuvat bussiyhteydet Espoonlahteen (6,6 km), josta metrolla Helsinkiin n. 25 min.
- Paikallistiedot
- Lähikaupat kävelyetäisyydellä, kattavammat palvelut lähiseudun kauppakeskuksissa Espoon keskuksessa (Entresse, Espoontori) ja Espoonlahdessa (Lippulaiva). Pääkaupunkiseudun kattavimmat palvelut kauppakeskuksissa Matinkylässä (Iso Omena), Tapiolassa (Ainoa) ja Leppävaarassa (Sello).
- Palvelut
- Lähikauppa Lidl alle 200 m kävelymatkan päässä. K-Supermarket Lasihyttiin ja maineikkaaseen Maxin Kalaan 1,3 km. Kauppakeskus Lippulaivan kattavat lähipalvelut Espoonlahdessa (6,6 km). Kauppakeskus Iso Omena Matinkylässä (11,3 km).
- Koulut
- Hansakallion koulu (1.-6. lk) 0,9 km, Kauklahden koulu (7.-9. lk) 1 km.
- Lisätietoja huoneiston autopaikasta
- Asuinhuoneiston yhteydessä myynnissä erillisosakkeena (osakenumerot 15143-15144) sähköistetty autokatospaikka hintaan 6 000 €.
- Taloyhtiön autopaikat
- Autokatospaikka myydään asunto-osakkeen yhteydessä erillisosakkeena (osakenumerot 15143-15144) hintaan 6 000 €. Taloyhtiön hallinnassa olevat autopihapaikat ovat vuokrattavissa taloyhtiöltä jonotusperiaatteella.
- Lisätietoja taloyhtiön autonsäilytyspaikoista
- Tienvarsipysäköinti pysäköintikiekoilla.
- Autokatokset
- 9
- Piha-autopaikkoja
- 18 kpl
- Taloyhtiöllä sauna
- Ei
- Kaavatilanne
- Asemakaava
- Lisätiedot kaavoituksesta
- Espoon kaupunki.
- Asbestikartoitus
- Ei
- Taloyhtiön kiinnitykset
- 5 294 502 €
- Taloyhtiön kiinnitysten päivämäärä
- Isännöitsijäntodistuksen päivämäärän mukainen
Tehdyt remontit
Yhtiön rakennukset ovat valmistuneet 12/2016 eikä tarvetta huomattaville kunnossapito- ja muutostöille ole ollut.
2024 yhtiön puuosien huoltomaalaus.
Tulevat remontit
Ei päätettyjä tai käynnissä olevia korjauksia.
Talot on valmistuneet 2016 ja hallitus katsoo, ettei yhtiöllä ole normaalin vuosittaisen kunnossapidon lisäksi sellaisia tarpeita yhtiön rakennusten ja kiinteistön kunnossapitoon yhtiökokousta seuraavien viiden vuoden aikana, jotka vaikuttaisivat olennaisesti osakehuoneistojen käyttämiseen, yhtiövastikkeeseen tai muihin osakehuoneiston käytöstä aiheutuviin kustannuksiin.
2025 Suunniteltu 10-vuotistarkastukset. Suunniteltu PTS-päivitys 10-vuotistarkastusten yhteydessä.