Linnankatu 8
90100, Keskusta, OULU, Oulu
580 000 €

Tätä asuntoa myy Aarno Annola
Asumaan.com Oy

Sijainti
Asuntoesittely
Kiinteistö Oy Pohjolanlinna Myydään
Oulussa keskeisellä sijainnilla oleva iso omakotitalo
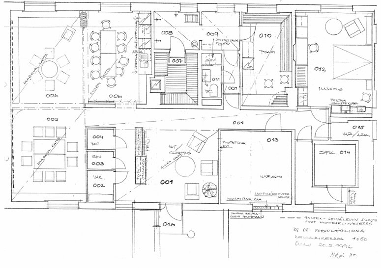
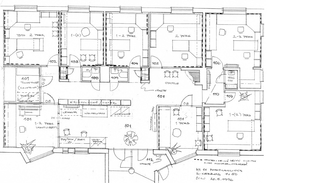
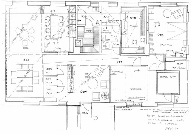
1. kerros: 7 huonetta, keittiötilat, 3 wc:tä( joista 1 inva wc) sekä aulatilaa yht. 198m2
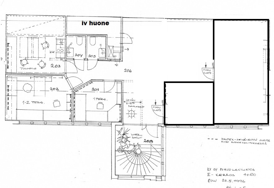
2. kerros: 4 huonetta, keittiötilat, 2 wc:tä, aulatilat yht 114m2
pohjakerros: sauna- ja neuvottelutilat, sekä tekniset tilat 185m2
Yhteensä 497m2
Oma tontti 638 m2
1.kerroksen tiloihin on esteetön kulku.
Pohjakerros on ollut aikaisemmin vuokrattuna kokous- ja saunatiloiksi.
Omaa aidattu ja suojainen sisäpiha.
Valmistumisvuosi 1952.
Porrashuone ja toinen kerros rakennettu 1991.
Pohjakerros peruskorjattu 1996
Kaavamerkintä AL mahdollistaa kaavamääräysten mukaan asuin-, liike- ja toimistorakennuksen.
Huoneisto on aikoinaan rakennettu asunnoksi ja on sen jälkeen on käyttäjinä olleet mm. Nuorten Ystävät ja OETK.
Kiinnostuitko?
lisätietoja annan mielelläni ja katsomaankin pääsee joustavasti
040 176 9909 / [email protected]Pohjakuva



Perustiedot
- Sijainti
- Linnankatu 8, 90100, Keskusta, OULU, Oulu
- Kokonaispinta-ala
- 497 m²
- Pinta-alan peruste
- Pinta-ala ei ole tarkistusmitattu ja todellinen pinta-ala voi olla suurempi tai pienempi, kuin ilmoitettu
- Lisätiedot pinta-alasta
- Liiketilaa 1.kerros 198m2 Liiketilaa 2.kerros 114m2 Neuvottelu- ja varasto- ja saunatilat pohjakerroksessa 185m2 Yhteensä n. 497m2 Omalla pihalla lämmitettyjä autopaikkoja n. 10 autolle
- Kohteen tyyppi
- Omakotitalo
- Kerros
- 2
- Rakennusvuosi
- 1952
- Lisätietoja rakennusvuodesta
- Valmistumisvuosi 1952. Porrashuone ja toinen kerros rakennettu 1991. Pohjakerros peruskorjattu 1996
- Käyttöönottovuosi
- 1952
- Kohde myydään vuokrattuna
- Ei
- Vapautuminen
- Heti
Tilat ja materiaalit
Lisätiedot
- Asunnon kunto
- Hyvä
Taloyhtiö ja kiinteistö
- Tontin pinta-ala
- 638 m²
- Tontin omistus
- Oma
- Tontin tyyppi
- Tasamaatontti
- Tontin myyntityyppi
- Koko tontti
- Rakennusmateriaali
- Betoni
- Lämmitysjärjestelmä
- Kaukolämpö
- Kattotyyppi
- Harjakatto
- Katemateriaali
- Pelti
- Tie perille
- Kyllä
- Kaavatilanne
- Asemakaava
- Rakennusvaihe
- Valmis
- Asbestikartoitus
- Ei
