Mäntyrinne 29
90240, Patamäki, Oulu
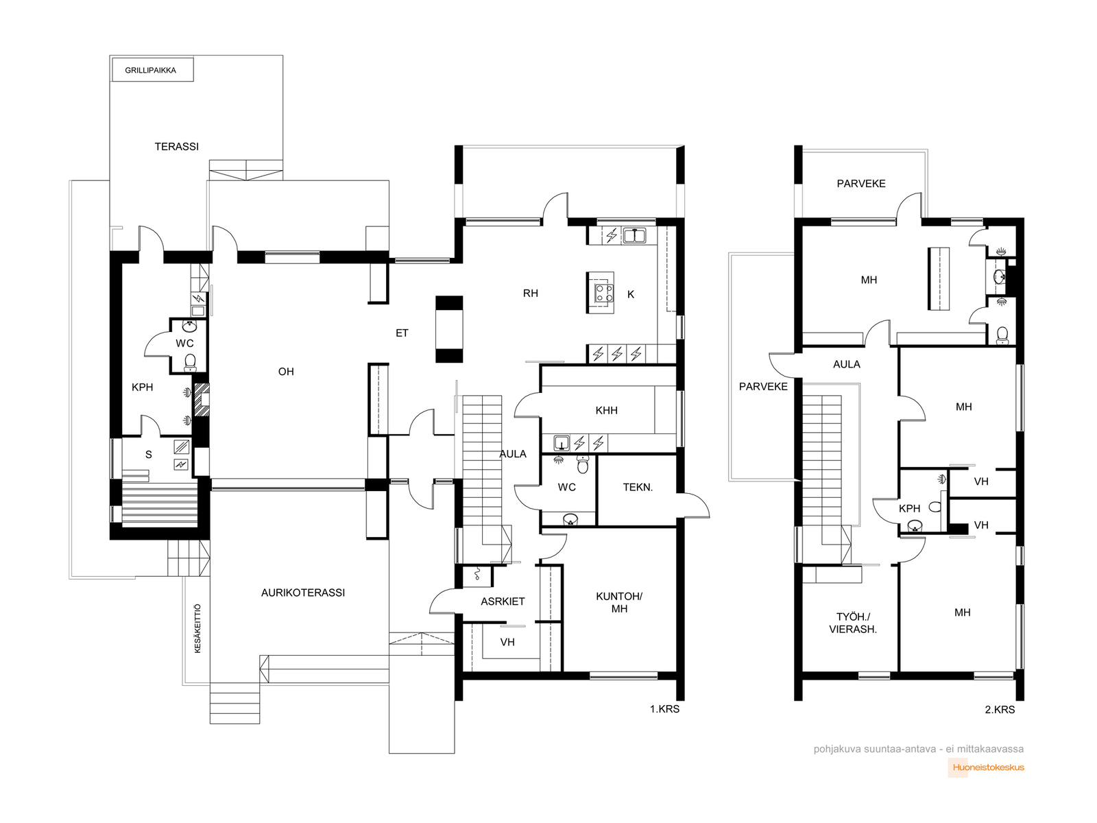
alakerta: k/rt,oh,mh,vh,khh,2wc,kph/s, yläk.3mh,työh.,aula,wc/kph,2vh
1 225 000 €
268 m²

Tätä asuntoa myy Eija Tyybäkinoja, Ylenpi kiinteistönvälittäjä, YKV, LKV, kaupanvahvistaja
Huoneistokeskus Oy | Oulu

Sijainti
Asuntoesittely
Myynnissä ainutlaatuinen koti Oulujoen varrelta - rauhaa ja vehreyttä vanhan puuston keskellä.
Tämä moderni, arkkitehti Pave Mikkosen suunnittelema puutalo tarjoaa täydellisen yhdistelmän luonnonläheisyyttä ja kaupunkielämän mukavuutta.
Kodin suurista ikkunoista avautuu näkymä ympäröivään vanhaan puustoon - vihreys tulee sisälle asti ja yläkerran makuuhuoneessa voi tuntea olonsa kuin puumajassa nukkuisi.
Kodin sijainti on ihanteellinen: rauhallinen ja vehreä asuinalue Oulujoen varrella, jossa jokimaisema hurmaa vuodenajasta riippumatta.
Läheltä löytyvät niin Mäntyrinteen päiväkoti, uudet leikkikentät kuin monipuoliset liikuntamahdollisuudet.
Alueen rakennuskanta on monipuolinen ja arvostettu - ympärillä historiallisia huviloita, rintamamiestaloja sekä Paven suunnittelemia moderneja kivitaloja.
Tässä kodissa yhdistyvät ajaton arkkitehtuuri, kodikkuus ja rauhallisuus. Talo on rakennettu kestämään aikaa ja henkii suomalaista puutaloperinnettä modernilla otteella.
Naapurustossa vallitsee lämmin ja yhteisöllinen henki - täällä viihtyy niin lapsiperhe kuin rauhaa ja tilaa arvostava asukas.
Keskeiset edut:
•Moderni ja persoonallinen puutalo, arkkitehti Pave Mikkosen suunnittelema
•Suuret ikkunat, upeat näkymät vanhaan puustoon ja Oulujoen maisemiin
•Rauhallinen sijainti, mutta silti lähellä kaupunkia
•Monipuoliset urheilu- ja ulkoilumahdollisuudet aivan vieressä
•Mäntyrinteen päiväkoti sekä koulu- ja harrastusmahdollisuudet lähellä
•Arvostettu, monipuolinen ja tunnelmallinen asuinalue
Tämä koti on todellinen salainen paratiisi mäntyjen keskellä - helmi Oulujoen varrella.
Sovi esittely ja ihastu!
Pohjakuva

Perustiedot
- Sijainti
- Mäntyrinne 29, 90240, Patamäki, Oulu
- Huoneluku
- 6
- Asuinpinta-ala
- 268 m²
- Muu pinta-ala
- 28 m²
- Kokonaispinta-ala
- 296 m²
- Lisätiedot pinta-alasta
- Pinta-alatiedot on saatu rakennuspiirustuksista, eikä niitä ole tarkistusmitattu. Asuinrakennus: kerrosala 305,5m², (rak.oikeus ka 286m²) Autotalli: kerrosala 33,5 m², (rak.oikeus ka 33,5m² Yhteensä: Ka 339 m² ja rak.oikeus ka 319,5 m² Huoneistoala yht. 296 m²
- Kohteen tyyppi
- Omakotitalo
- Kerros
- 2
- Käyttöönottovuosi
- 2011
- Kohde myydään vuokrattuna
- Ei
- Vapautuminen
- Sopimuksen mukaan
Tilat ja materiaalit
- Keittiön kuvaus
- Keittiössä saareke ja aamiaiskaappi. Koneet integroidut. Ruokailutilan yhteydessä myös takka. Kaapistot Puustelli. Keittiön tasot on kvartsia.
- Keittiön lattiat
- Parketti
- Keittiön seinät
- Puu
- Keittiön varusteet
- Astianpesukone, keittiösaareke, erillinen pakastin, liesi, liesituuletin, jääkaappi, ja kiinteät valaisimet
- Liesi
- Induktioliesi
- Kylpyhuone
- Pukuhuoneen yhteydessä myös vesipiste ja jääkaappi. Pukuhuoneesta käynti terassille.
- Kylpyhuoneen seinät
- Kaakeli ja puu
- Kylpyhuoneen lattiat
- Laatta
- Kylpyhuoneen varusteet
- Lattialämmitys, wc-istuin, suihku, ja kiinteät valaisimet
- WC Lukumäärä
- 4
- Erillinen WC
- alakerran wc laatta/kaakeli/puu yläkerran wc:ssä suihku, lattiat laattaa, seinät kaakelia. Yläkerran wc:n puuosat korvattu kvartsilla. Päämakuuhuoneen yhteydessä on oma suihku ja erillinen wc. Yhteensä 4 wc:tä Alakerrassa kaksi, saunan yhteydessä yksi ja yläkerrassa kaksi.
- WC:n lattiat
- Laatta
- WC:n seinät
- Kaakeli
- Makuuhuoneet
- Lattiat tammiparkettia ja seinät puuta.
- Makuuhuoneiden lukumäärä
- 5
- Makuuhuoneiden seinät
- Puu
- Makuuhuoneiden lattiat
- Parketti
- Olohuone
- Olohuoneessa takka. Lattiat tammiparkettia, seinät tiiltä ja osin puuta. Katot puuta. Yläkerran ison makuuhuoneen yhteydessä pukeutumistila.
- Olohuoneen seinät
- Puu ja kivi
- Olohuoneen lattiat
- Parketti
- Kodinhoitohuoneen varusteet
- Lattialämmitys ja pesukoneliitäntä
- Kodinhoitohuoneen seinät
- Maali
- Kodinhoitohuoneen lattiat
- Laatta
- Kodinhoitohuone
- Tilava khh jossa paljon säilytystilaa.
- Säilytystilojen kuvaus
- vaatehuoneita 3 kpl
- Kohteen säilytystilat
- Vaatehuone ja vaatehuoneita 3 kpl
- Sauna
- Kyllä
- Kiuas
- Heti valmis -sähkökiuas
- Saunan kuvaus
- Heti valmis kiuas Saunatonttu.
- Takka
- Takka
Lisätiedot
- Asunnon kunto
- Hyvä
- Muuta kauppaan kuuluvaa
- Hälytyslaitteet Verisuren. Lisätietoja sisältyvistä varusteista: ilmalämpöpumppu, kaapistot, kiinteät valaisimet, lämminvesivaraaja, naulakko, verhotangot.
Taloyhtiö ja kiinteistö
- Tontin pinta-ala
- 1 307 m²
- Tontin omistus
- Oma
- Tontin tyyppi
- Rinnetontti
- Tontin myyntityyppi
- Koko tontti
- Tontin tiedot
- Kaunis rinnetontti Oulujoen läheisyydestä.
- Käyttö/luovutusrajoitukset
- asuin
- Rakennusmateriaali
- Tiili ja puu
- Lämmitysjärjestelmä
- Puu Maalämpö Ilmalämpöpumppu vesikiertoinen lattialämmitys, uuni/takka
- Kattotyyppi
- harjakatto
- Katemateriaali
- pelti/tiili/huopa
- Rakennusoikeus
- 300
- Lisätietoa rakennusoikeudesta
- AO I-II 1 ap/as
- Lisätietoja energiatodistuksesta
- Energiatodistus on vanhentunut ja uusi on tekeillä.
- Lisätietoja liikenneyhteyksistä
- Bussit Kajaanintieltä.
- Tie perille
- Kyllä
- Palvelut
- Knuutilankankaan K-Supermarket Sale
- Koulut
- Knuutilankankaan ala-aste Maikkulan ala- ja yläaste Kastellin lukio
- Kaavatilanne
- Yleiskaava ja asemakaava
- Kaavoitustiedot
- Asemakaava (sitova tonttijako) Kaavoitus: puh. 0503166850
- Kuntotutkimus tehty
- 01.01.2025
- Muut rakennukset
- Autotalli
- Lisätietoa muista rakennuksista
- Autotalli