Maariankatu 12
20100, Keskusta, Turku
4h+k
480 000 € (3 966,94 € / m²)
121 m²

Tätä asuntoa myy Jari Otsola, Kiinteistönvälittäjä LKV, Auktorisoitu kiinteistöarvioija (AKA), asunnot, Kaupanvahvistaja
Huoneistokeskus Oy | Turku

Sijainti
Asuntoesittely
Maariankadulla, Turun keskustassa, odottaa upea asunto sinua. Tämä 1920-luvun rakennuksessa sijaitseva koti tarjoaa täydellisen yhdistelmän historiallista charmia ja modernia mukavuutta. Asunnon avarat ja valoisat huoneet sekä korkeat katot luovat tilan tuntua ja tekevät siitä ihanteellisen perheasunnon.
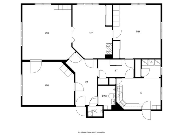
Asunnossa on kolme makuuhuonetta, tilava olohuone ja hyvin varusteltu keittiö.. Kylpyhuoneessa on lattialämmitys, joka tuo lisämukavuutta arkeen. Luonnollinen ilmanvaihto ja kaukolämpö huolehtivat miellyttävästä sisäilmasta ympäri vuoden.
Taloyhtiössä on tehty merkittäviä remontteja, kuten hissin kunnostus ja julkisivujen valojen korjaukset. Tammikuussa 2026 on suunnitteilla uuden pääoven asennus, mikä lisää rakennuksen viihtyisyyttä ja turvallisuutta.
Sijainti on erinomainen: kaikki keskustan palvelut, koulut ja erinomaiset liikenneyhteydet ovat aivan lähellä. Tämä asunto tarjoaa ainutlaatuisen mahdollisuuden nauttia kaupunkielämästä historiallisessa ympäristössä. Tartu tilaisuuteen ja tee tästä asunnosta oma kotisi!
Pohjakuva

Perustiedot
- Sijainti
- Maariankatu 12, 20100, Keskusta, Turku
- Omistusmuoto
- Omistusasunto
- Huoneluku
- 4
- Asuinpinta-ala
- 121 m²
- Kokonaispinta-ala
- 121 m²
- Pinta-alan peruste
- Yhtiöjärjestyksen mukainen, Isännöitsijäntodistuksen mukainen
- Lisätiedot pinta-alasta
- Huoneiston asuinpinta-ala on yhtiöjärjestyksen mukaan 121 m². Edellä mainittu pinta-ala saattaa tämän ikäisessä kohteessa poiketa olennaisestikin huoneiston nykyisten mittaustapojen ja standardien mukaan laskettavasta pinta-alasta. Huoneiston todellinen asuinpinta-ala voi siis olla yhtiöjärjestyksessä, isännöitsijäntodistuksessa ja esitteessä mainittua pienempi tai suurempi.
- Kohteen tyyppi
- Kerrostalo
- Kerros
- 3 / 4
- Rakennusvuosi
- 1920
- Käyttöönottovuosi
- 1920
- Kohde myydään vuokrattuna
- Ei
- Vapautuminen
- Sopimuksen mukaan
Hinta ja kustannukset
- Velaton hinta
- 480 000 €
- Myyntihinta
- 480 000 €
- Velkaosuus
- 0 €
- Yhtiövastike
- Hoitovastike 663,40 € / kk (10,70 € / os.), Yhtiövastike yhteensä 663,40 € / kk
- Lisätietoja vastikkeista
- Yhtiöjärjestyksessä vastikkeet määritellään osakkeiden lukumäärän mukaan. Huoneiston osakkeiden lukumäärä on 62 kpl. Yhtiökokouksessa on annettu valtuutus ylimääräisen vastikkeen perimiselle, mutta hallitus ei ole sitä käyttänyt.
- Neliöhinta
- 3 966,94 € / m²
- Lisätietoja maksusta
- Vesiennakko 20 € / hlö /kk. Lopullinen maksu todellisen kulutuksen mukaan. Sähkö kulutuksen mukaan. Varainsiirtovero 1,5 % erääntyy maksettavaksi kaupanteossa. Taloyhtiön osakeluettelo on siirretty huoneistotietojärjestelmään. Ostajan tulee hakea omistusoikeuden rekisteröintiä Maanmittauslaitokselta. Ostaja vastaa tällöin omistusoikeuden rekisteröintikustannuksista, mahdollisista osakekirjan mitätöinnistä aiheutuvista kustannuksista sekä mahdollisesta hakemusmaksun korotuksesta. Ostajan pankin ostajalta mahdollisesti veloittamista kaupantekoon, omistusoikeuden rekisteröintiin tai panttausmerkinnän hakemiseen liittyvistä kustannuksista ostaja saa tiedon pankiltaan. Taloyhtiön hallitukselle on annettu valtuutus periä (tai olla perimättä) ylimääräistä vastiketta yhtiön taloudellisen aseman tai maksuvalmiuden sitä vaatiessa
Tilat ja materiaalit
- Keittiön lattiat
- Laminaatti
- Keittiön seinät
- Maali
- Keittiön varusteet
- Erillisuuni, jää-viileäkaappi, jääkaappipakastin, astianpesukone, liesi, ja liesituuletin
- Liesi
- Keraaminen liesi
- Kylpyhuoneen seinät
- Kaakeli
- Kylpyhuoneen lattiat
- Laatta
- Kylpyhuoneen varusteet
- Suihku, suihkuseinä, pesuallas, allaskaappi, peili, ja lattialämmitys
- WC Lukumäärä
- 1
- WC:n lattiat
- Laatta
- WC:n seinät
- Kaakeli
- Makuuhuoneiden lukumäärä
- 3
- Makuuhuoneiden seinät
- Maali
- Makuuhuoneiden lattiat
- Laminaatti
- Olohuoneen seinät
- Maali
- Olohuoneen lattiat
- Laminaatti
- Kohteen säilytystilat
- Kellarikomero, vinttikomero ja kaapistot
- Sauna
- Ei
- Takka
- Kakluuni
Lisätiedot
- Asunnon kunto
- Hyvä
- Hissi
- Kyllä
- Muuta kauppaan kuuluvaa
- Asunnossa olevat Tv:t
- Kauppaan ei kuulu
- Irtain
Taloyhtiö ja kiinteistö
- Taloyhtiön nimi
- Asunto-osakeyhtiö Maariankatu 12
- Isännöitsijän nimi
- Kai Johansson
- Isännöitsijän sähköposti
- [email protected]
- Isännöitsijän puhelin
- 040-5456962
- Tuotot
- 10935
- Taloyhtiön lisätiedot
- Yhtiöjärjestyksessä on asunto-osakeyhtiölaista poikkeavia määräyksiä. Yhtiön ja osakkeenomistajan kunnossapitovastuusta on laista poikkeavia määräyksiä.
- Tontin pinta-ala
- 1 061 m²
- Tontin omistus
- Oma
- Rakennusmateriaali
- Tapanilaatta
- Lämmitysjärjestelmä
- Kaukolämpö
- Ilmanvaihto
- Painovoimainen ilmanvaihto
- Vesijohto
- Kunnallisvesi
- Viemäröinti
- Kunnallinen viemäriverkosto
- Katemateriaali
- Pelti
- Lisätietoja kiinteistönhoidosta
- Huoltoyhtiö
- Kiinteistönhoidon lisätiedot
- Huoltoyhtiö Turun Taloteam Oy.
- Taloyhtiössä on
- Kellarikomero, vinttikomero, kaapeli-tv, ja telia laajakaista 10 mbits
- Lunastusoikeus yhtiöllä
- Ei
- Lunastusoikeus osakkaille
- Ei
- Kohteesta on energiatodistus
- Kyllä
- Energialuokka
- D2018
- Energiatodistuksen voimassaolo
- 20.10.2033
- Liikenneyhteydet
- Bussipysäkki lähellä, taksitolppa lähellä ja kaupunkiliikenneyhteys
- Taloyhtiön autopaikat
- Autopaikkoja on käytössä 17 kpl. Autopaikkajonossa on kaksi.
- Piha-autopaikkoja
- 20 kpl
- Taloyhtiöllä sauna
- Kyllä
- Kaavatilanne
- Asemakaava
- Lisätiedot kaavoituksesta
- Turun kaupunki (02) 330 000
- Asbestikartoitus
- Kyllä
- Lisätietoa asbestikartoituksesta
- Asunnon kuivien tilojen seinien asbestikartoitus. Komeron seinistä otettiin näyte tasotteista otanta menetelmällä useista kohdista. Näyte ei sisällä asbestia.
- Taloyhtiön kiinnitykset
- 972 355,40 €
- Taloyhtiön kiinnitysten päivämäärä
- Isännöitsijäntodistuksen päivämäärän mukainen
Tehdyt remontit
1985 peltikate, 1994 julkisivumaalauksia, 1999 hissin kunnostus, 1996-2010 pääportaan maaluksia, 2001 keittiöportaan maalaus, 2005 kaukolämpöliittymä, 2005 parvekkeen korjaus, 2007 pihanpuoleisten ikkunoiden maalaus, 2009 rakennuksen ulko-ovet uusittu, 2012 Abloy Sento lukitus, 2015 ilmanvaihtokanavien nuohous, 2016 pihaportin parannuksia, ikkunoiden kuntotutkimus, 2017 julkisivujen, putkistojen ja sähköverkon kuntotutkimukset, 2018 sähkö-, vesijohtoverkoston ja viemärien korjausten hankesuunnittelu, 2019 sähkö- ja televerkon sekä vesijohtojen uusiminen, viemärien sukitus, tonttijohdon ja hulevesiviemärin uusiminen, painovoimaisen ilmanvaihdon parantamistoimet, ilmanvaihtokanavien nuohous, 2020 peltikaton pesu ja pinnoitus, kulkusiltojen asennus, 2021 uudet pihaportit ja kauko-ohjattava avauslaite, 2022 talosaunan peruskorjaus, ikkunoiden uusiminen, julkisivujen kunnostus, pääporraskäytävän ikkunoiden ja rakennuksen pikkuikkunoiden kunnostus, 2025 julkisivujen valojen korjaukset, palovaroittimet kaikkiin asuntoihin.
Tulevat remontit
Uusi pääovi on tilattu ja asennus ilmeisesti tammikuussa 2026. Yhtiön varojen pitäisi riittää sen maksamiseen.
Lisäksi on tulossa uudet avaimet-ajankohdasta ei ole tarkkaa tietoa. Siihen voidaan tarvita ylimääräinen vastike, joka ei välttämättä ole yhden kuukauden hoitovastike, vaan se voi olla pienempikin.
