Malminiityntie 28 A
01350, Malminiitty, Vantaa
2h+kt
176 900 € (3 275,93 € / m²)
54 m²

Tätä asuntoa myy Janika Lind, Asuntomyyjä
Huoneistokeskus Oy | Vantaa

Sijainti
Asuntoesittely
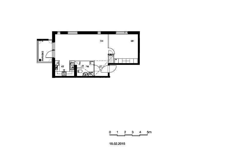
Vantaan Malminiityssä toisen kerroksen tilava kaksio. Asunnossa mainio pohjaratkaisu, jossa selvä sisäänkäynti, makuuhuone ja keittiötila. Olohuone on asunnon keskiössä. Huoneisto on avara ja valoisa.
Yhtiö valmistunut vuonna 2016 ja se sijaitsee omalla tontilla.
Alueelta löytyy myös loistavia ulkoilualueita ja hyvät liikenneyhteydet eri puolille Vantaata ja pääkaupunkiseutua.
Mahdollisuus ostaa autopaikka
Tervetuloa uuteen kotiin!
Pohjakuva

Perustiedot
- Sijainti
- Malminiityntie 28 A, 01350, Malminiitty, Vantaa
- Omistusmuoto
- Omistusasunto
- Huoneluku
- 2
- Asuinpinta-ala
- 54 m²
- Kokonaispinta-ala
- 54 m²
- Pinta-alan peruste
- Isännöitsijäntodistuksen mukainen, Yhtiöjärjestyksen mukainen
- Lisätiedot pinta-alasta
- Pinta-alaa ei ole mitattu SFS 5139 standardin mukaisesti
- Kohteen tyyppi
- Kerrostalo
- Kerros
- 2 / 4
- Rakennusvuosi
- 2016
- Käyttöönottovuosi
- 2016
- Kohde myydään vuokrattuna
- Ei
- Vapautuminen
- Heti
Hinta ja kustannukset
- Velaton hinta
- 176 900 €
- Myyntihinta
- 62 382,21 €
- Velkaosuus
- 114 517,79 €
- Yhtiövastike
- Hoitovastike 226,80 € / kk, Rahoitusvastike 875,16 € / kk, Yhtiövastike yhteensä 1 101,96 € / kk
- Saunamaksu
- 20 € / kk
- Vesimaksu
- 20 € / hlö
- Neliöhinta
- 3 275,93 € / m²
- Lisätietoja maksusta
- Lisätietoja vastikkeista: Vedestä peritään vesiennakko ja tasataan kerran vuodessa mittarilukeman mukaan. Osakaslyhennykset: Halutessanne maksaa lainaosuutenne ilmoittakaa siitä kirjanpitäjälle viimeistään edellisen kuun puoleen väliin mennessä, joko sähköpostitse tai puhelimitse. YJ 6 § Yhtiövastike ja muut maksut: Huoneistossa ja parvekkeilla kuluttamansa sähkön maksaa kukin osakkeenomistaja suoraan sähköntoimittajalle tekemänsä sähkösopimuksen mukaisesti. Huoneistojen pesuhuoneiden ja saunojen laattalattioissa on sähköinen lattialämmitys. Lattialämmitykset edellä lueteltujen tilojen osalta on kytketty asuntojen sähkönmittaukseen
Tilat ja materiaalit
- Keittiön lattiat
- Parketti
- Keittiön varusteet
- Astianpesukone, jääkaappipakastin, liesituuletin, ja kiinteät valaisimet
- Liesi
- Keraaminen liesi
- Kylpyhuoneen seinät
- Kaakeli
- Kylpyhuoneen lattiat
- Laatta
- Kylpyhuoneen varusteet
- Pesukoneliitäntä, suihkuseinä, wc-istuin, peilikaappi, ja suihku
- Makuuhuoneiden lukumäärä
- 1
- Makuuhuoneiden seinät
- Maali
- Makuuhuoneiden lattiat
- Parketti
- Olohuoneen seinät
- Maali
- Olohuoneen lattiat
- Parketti
- Saunan kuvaus
- As Oy Vantaan Sokerikoivulla ja As Oy Vantaan Kivikoivulla on yhteinen sauna.
Lisätiedot
- Asunnon kunto
- Hyvä
- Lisätietoja kunnosta
- Myyjä ei vastaa huoneiston kodinkoneiden toimintakunnosta.
- Parveke
- Lasitettu parveke
- Muut kaupan kannalta merkittävät tiedot
- As Oy Vantaan Sokerikoivulla ja As Oy Vantaan Kivikoivulla on yhteinen sauna. Osakkeenomistajat vastaavat kukin oman parvekkeensa hoidosta ja puhtaanapidosta. Panttikirjat on kiinnitetty Vantaan kaupungissa 65. kaupunginosassa korttelissa 102 tonttiin nro 8. Yhtiötä sitoo kiinteistöjen 92-65-102-3, 92-65-102-7 ja 92-65-102-9 omistajien kanssa allekirjoitettu rasitesopimus ja niissä sovitut oikeudet ja velvollisuudet.
Taloyhtiö ja kiinteistö
- Taloyhtiön nimi
- Asunto Oy Vantaan Sokerikoivu
- Isännöitsijätoimisto
- Koivu Isännöinti Oy
- Isännöitsijän nimi
- Kirsi Salmenranta
- Taloyhtiön lisätiedot
- Tietoja lainojen pituuksista: Lainan päättymispäivä 30.08.2040/ Euribor 12 kk 1,10
- Tontin pinta-ala
- 3 743 m²
- Tontin omistus
- Oma
- Käyttö/luovutusrajoitukset
- 8 § Lunastusoikeus Jos autopaikkojen hallintaan oikeuttavat osakkeet (osakeryhmät 37- 59) siirtyy millä tahansa saannolla muulta kuin yhtiön perustajaosakkaalta yhtiön ulkopuoliselle uudelle omistajalle eikä samassa yhteydessä siirretä tämän yhtiön tai Asunto Oy Vantaan Kivikoivun osakkeita, jotka oikeuttavat yhtiöiden jonkin asuinhuoneiston hallintaan, on siirronsaajan ilmoitettava siirrosta hallitukselle viipymättä, ja on yhtiön osakkeenomistajilla oikeus lunastaa siirron kohteena oleva osake. Lunastusmenettelyssä noudatetaan edellä olevan lisäksi kaikilta muilta osin kulloinkin voimassa olevan asunto-osakeyhtiölain säännöksiä.
- Rakennusmateriaali
- Betoni
- Lämmitysjärjestelmä
- Kaukolämpö
- Kattotyyppi
- tasakatto
- Katemateriaali
- bitumi
- Lisätietoja kiinteistönhoidosta
- Huoltoyhtiö
- Kiinteistönhoidon lisätiedot
- Vantaan Kiinteistöpalvelu oy
- Taloyhtiössä on
- Urheiluvälinevarasto, väestönsuoja, ja sauna
- Kohteesta on energiatodistus
- Kyllä
- Energialuokka
- C2013
- Lisätietoja energiatodistuksesta
- voimassa 4.1.2025
- Taloyhtiöön kuuluu
- Lisäksi yhtiön välittömään hallintaan jäävät autopaikka nro 1,väestönsuoja/irtaimistovarasto, irtaimistovarasto, ulkoiluvälinevarastot, lastenvaunuvarasto, kuivaushuone, lämmönjakohuone, sähköpääkeskus, talovarasto ja porrashuone sekä luhtikäytävät. Asunto Oy Vantaan Sokerikoivulla ja Asunto Oy Vantaan Kivikoivulla on yhteinen sauna, väestönsuoja, Molokit jätekeräyspiste sekä pihakalusteet. Niistä Kivikoivun tiloissa sijaitsee sauna. Taloyhtiön ensimmäisessä kerroksessa on myös kerhohuone, joka on tarkoitettu yhteiskäyttöön Asunto Oy Vantaan Kivikoivun kanssa.
- Lisätietoja liikenneyhteyksistä
- Bussit, Juna Leinelä tai Koivukylä
- Palvelut
- Koivukylässä Citymarket, S-Market, Lidl, Leinelän Alepa
- Lisätietoja huoneiston autopaikasta
- 8 § Lunastusoikeus Jos autopaikkojen hallintaan oikeuttavat osakkeet (osakeryhmät 37-59) siirtyy millä tahansa saannolla muulta kuin yhtiön perustajaosakkaalta yhtiön ulkopuoliselle uudelle omistajalle eikä samassa yhteydessä siirretä tämän yhtiön tai Asunto Oy Vantaan Kivikoivun osakkeita, jotka oikeuttavat yhtiöiden jonkin asuinhuoneiston hallintaan, on siirronsaajan ilmoitettava siirrosta hallitukselle viipymättä, ja on yhtiön osakkeenomistajilla oikeus lunastaa siirron kohteena oleva osake. Lunastusmenettelyssä noudatetaan edellä olevan lisäksi kaikilta muilta osin kulloinkin voimassa olevan asunto-osakeyhtiölain säännöksiä. Autopaikoilla ei saa varastoida ajoneuvojen lisäksi muuta irtainta, pestä ajoneuvoja eikä paikkojen sähköpistokkeista saa ladata sähköautoja.
- Lisätietoja taloyhtiön autonsäilytyspaikoista
- 23, sähköpistokkeellisia pihapaikkoja. Yhtiön välittömään hallintaan jäävät autopaikka nro 1. Autopaikkojen sijainnista kiinteistöllä on yhtiöjärjestyksessä karttaliite. Autopaikoilla ei saa varastoida ajoneuvojen lisäksi muuta irtainta, pestä ajoneuvoja eikä paikkojen sähköpistokkeista saa ladata sähköautoja.
- Taloyhtiöllä sauna
- Kyllä
- Kaavatilanne
- Asemakaava
- Lisätiedot kaavoituksesta
- Asemakaava Vantaan kaupunki 09 839 11
- Taloyhtiön kiinnitykset
- 6 650 000 €
Tehdyt remontit
Yhtiössä tehdyt huomattavat kunnossapito- ja muutostyöt
- parvekelasien tarkastus ja huolto 2022-2023
Takuu- ja vuosikorjausten lisäksi ei ole suoritettu merkittäviä kunnossapito- ja
muutostöitä
Tulevat remontit
Kunnossapitotarpeet vuosille 2023-2027
Normaalien vuosittaisten kunnossapito- ja korjaustöiden lisäksi
seuraavat;
Taloyhtiö on valmistunut vuonna 2016
-ilmanvaihtokanavien nuohous sekä ilmavirtojen säätö 2022-2023
- palovaroittimien uusinta 2026
