Markulantie 145
20320, Länsikeskus, Turku
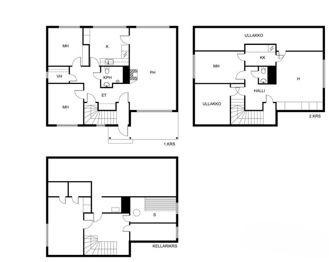
5h+k+vh+ullakko+kellari
173 000 €
141 m²

Tätä asuntoa myy Ari Patama, Myyntijohtaja,Kiinteistönvälittäjä, LKV, LVV, KiAT
Roof Salo | ROOF LKV Varsinais-Suomi Oy

Sijainti
Asuntoesittely
Huippupaikalla sijaitseva viehättävä omakotitalo tarjoaa tilaa ja mahdollisuuksia perheellesi. Tämä vuonna 1963 rakennettu puutalo seisoo omalla 785 m² tontillaan Länsikeskuksen rauhallisella alueella, vain lyhyen kävelymatkan päässä palveluista ja kouluista.
Talon pohjaratkaisu on käytännöllinen, ja se kattaa kaksi kerrosta, joissa on yhteensä neljä makuuhuonetta. Alakerrassa on kaksi makuuhuonetta, kun taas yläkerrassa sijaitsee kaksi lisää, tarjoten tilaa niin perheenjäsenille kuin vieraillekin. Keittiö on remontoitu vuonna 2021 ja varustettu nykyaikaisilla integroiduilla kodinkoneilla, mikä tekee ruoanlaitosta nautinnollista.
Olohuoneessa on kaunis parkettilattia ja lämpöä varaava takka, joka luo kodikkuutta ja säästää lämmityskustannuksissa. Talon öljylämmitysjärjestelmä on päivitetty, ja julkisivun puuverhous on maalattu vuonna 2022, mikä lisää rakennuksen viehättävyyttä ja kestävyyttä.
Kellarikerroksessa on tapahtunut vesivahinko, mutta tila on puhdistettu ja jätetty odottamaan uusia ideoita. Tämä tarjoaa mahdollisuuden luoda unelmiesi tila esimerkiksi harrastuksille tai varastointiin. Talossa on myös sauna, joka kaipaa viimeistelyä, mutta tarjoaa mahdollisuuden toteuttaa omia visioita.
Sijainti on erinomainen: lähellä on niin Hepokullan koulu kuin Länsikeskuksen monipuoliset palvelutkin. Hyvät liikenneyhteydet takaavat helpon pääsyn Turun keskustaan ja muualle kaupunkiin. Tartu tilaisuuteen ja tee tästä talosta perheellesi uusi koti Länsikeskuksen suositulla alueella!
Tiedustelut ja esittelyt: Roof LKV Varsinais-Suomi
Ari Patama Myyntijohtaja, Kiinteistönvälittäjä LKV, KiAT
0400401113 [email protected]
Perustiedot
- Sijainti
- Markulantie 145, 20320, Länsikeskus, Turku
- Huoneluku
- 5
- Asuinpinta-ala
- 141 m²
- Kokonaispinta-ala
- 204,8 m²
- Pinta-alan peruste
- Pinta-ala ei ole tarkistusmitattu ja todellinen pinta-ala voi olla suurempi tai pienempi, kuin ilmoitettu
- Lisätiedot pinta-alasta
- Ei tarkistusmitattu. Pinta-alat saattavat tämän ikäisissä kohteissa (rekisteröity ennen 01.01.1992) poiketa olennaisestikin asuinrakennusten nykyisten mittaustapojen ja standardien (SFS 5139) mukaan laskettavasta asuintilojen pinta-alasta. Pinta-ala voi siis olla edellä mainittua pienempi tai suurempi. Pinta-alatiedot ovat verottajan tietokannasta. Kerrosala = 204,8m².
- Kohteen tyyppi
- Omakotitalo
- Kerros
- 2
- Rakennusvuosi
- 1963
- Käyttöönottovuosi
- 1963
- Kohde myydään vuokrattuna
- Ei
- Vapautuminen
- Heti
Tilat ja materiaalit
- Keittiön kuvaus
- Keittiö remontoitu 2021
- Keittiön lattiat
- Vinyyli
- Keittiön seinät
- Maali
- Keittiön varusteet
- Jääkaappi (Integroitu), liesituuletin, mikroaaltouuni (Integroitu), erillisuuni, ja liesi
- Liesi
- Induktioliesi
- WC:n lattiat
- Muovimatto
- Makuuhuoneet
- Kaksi alakerrassa ja kaksi yläkerrassa
- Makuuhuoneiden lukumäärä
- 4
- Makuuhuoneiden seinät
- Maali ja tapetti
- Makuuhuoneiden lattiat
- Muovimatto
- Olohuoneen seinät
- Maali ja tapetti
- Olohuoneen lattiat
- Parketti
- Sauna
- Kyllä
- Saunan kuvaus
- Paneloitu, mutta pitää rakentaa valmiiksi.
- Takka
- Varaava takka
Lisätiedot
- Asunnon kunto
- Tyydyttävä
- Terassi
- Kyllä
- Hissi
- Ei
Taloyhtiö ja kiinteistö
- Tontin pinta-ala
- 785 m²
- Tontin omistus
- Oma
- Tontin tyyppi
- Tasamaatontti
- Tontin myyntityyppi
- Koko tontti
- Lisätiedot rakennusmateriaaleista
- Puurunko ja lautaverhoilu
- Rakennusmateriaali
- Puu
- Lämmitysjärjestelmä
- Öljy
- Ilmanvaihto
- Painovoimainen ilmanvaihto
- Vesijohto
- Kunnallisvesi
- Viemäröinti
- Kunnallinen viemäriverkosto
- Kattotyyppi
- Harjakatto
- Katemateriaali
- Pelti
- Rakennusoikeus
- 120
- Lisätietoa rakennusoikeudesta
- Rakennusala yksikerroksista vähintään palonarkaa ( PL. 4 pykälän D I ) enintään kahden perheen omakotirakennusta varten jonka korkeus katonrajaan saa olla 5.5 m ja jonka katonkaltevuuden tulee olla 30 astetta. Rakennuksen ullakosta 3/5 saadaan sisustaa asuinhuoneiksi, käytäviksi, säiliöiksi t.m.s. 120 m2 suuremmasta rakennusalasta saa rakentaa 120 m2. Pienemmän saa rakentaa kokonaan. Rakennusala palonarkaa ( PL. 4 D 11 ) talousrakennusta varten jonka korkeus katonrajaan saa olla enintään 3.5 m ja jonka katonkaltevuuden tulee olla 30 astetta.
- Kohteesta on energiatodistus
- Kyllä
- Energialuokka
- D2018
- Energiatodistuksen voimassaolo
- 20.5.2035
- Liikenneyhteydet
- Bussipysäkki lähellä
- Palvelut
- Länsikeskus n. 500m
- Koulut
- Hepokullan koulu n. 500m
- Kaavatilanne
- Asemakaava
- Kaavoitustiedot
- Turun kaupunki kaavoitus. Asemakaava (853-24/1952) Vahvistamispvm: 12.8.1953 Sitova tonttijako (853-76:21) Hyväksymispvm: 15.10.1957
- Kuntotarkastus tehty
- 21.05.2025
- Rakennusvaihe
- Valmis
- Asbestikartoitus
- Kyllä
- Lisätietoa asbestikartoituksesta
- Asbestikartoitus on tehty kellarista.
- Muut rakennukset
- Liiteri
Tehdyt remontit
Rakennukseen on tehty paljon korjauksia/laitteiston päivityksiä vuosien varrella. Mm.
öljykattila ja poltin on uusittu v. 1990. Öljysäiliö on tarkastettu 06/2014. Pääsisäänkäynnin
ulko-ovi on uusittu 1990-luvulla. Rakennuksen tonttiviemäri on uusittu kunnan
jätevesiverkosta sokkelin sisäpuolelle asti ns. sujuttamalla muoviputkeksi v. 2004.
Käyttövesiputket on uusittu v. 2015, samaan aikaan on rakennuksen sisäpuoliset
viemärit sukitettu. Katon pelti- ja aluskate on uusittu v. 2007, rännit ja syöksytorvet
v. 2015. Ilmalämpöpumppu on asennettu v. 2008. Ikkunat on uusittu kolmessa vaiheessa
v. 2014-2019 (paitsi kellarikerroksen ikkunat). Keittiö on uusittu v. 2021. Olohuoneen
varaava takka on muurattu v. 2021. Julkisivujen puuvuoraus on maalattu viimeksi 2022.
