Meriniitynkatu 10
24100, Meriniitty, Salo
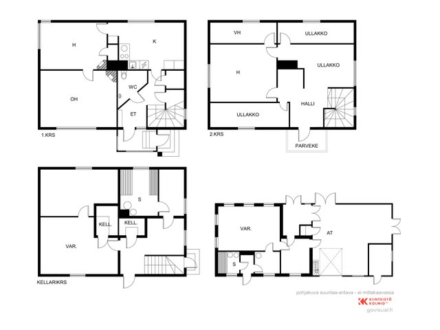
2H+K+WC/ suihku+eteinen, 2krs huone / ullakkotila, kellarikrs. S+PH+Varasto koppeja.
95 000 €

Tätä asuntoa myy Esa Mattila, Kiinteistömyyjä, KiAT
Kiinteistökolmio Oy

Sijainti
Asuntoesittely
Meriniityssä, Salossa, sijaitsee tämä 1948 rakennettu omakotitalo, joka tarjoaa monipuolisia mahdollisuuksia. Teollisuus- ja varastorakennusten korttelialue kaavassa mahdollistaa myös asumisen alueella. Näitä kiinteistöjä on harvoin myynnissä. Talo on tyydyttävässä kunnossa ja sen tilat jakautuvat kolmeen kerrokseen, kokonaisala 174 m2 kellarikerros 66 m2 jossa on muun muassa puulämmitteinen sauna ja suihku.
Talossa lämpöä antaa varaava takka ja puuliesi, sähköpatterit sekä wc/suihkutilassa lattialämmitys. Kaakeloitu suihku/wc tila tehty viimeiseksi keskimmäiseen asuinkerrokseen.
Iso 2827 m² tontti tarjoaa runsaasti tilaa. Isossa ryhdikkäässä peltikatollisessa ulkorakennuksessa on isoa katonalustilaa ja pienempiä tiloja, lisäksi toinen sauna. Sijainti on erinomainen – kaikki keskustan palvelut ja koulut ovat noin kilometrin päässä, ja hyvät kulkuyhteydet takaavat vaivattoman liikkumisen.
Tartu tilaisuuteen ja tee tästä talosta oma kotisi, ja yrityksesi tukikohta jossa voit nauttia sekä rauhasta että kaupungin läheisyydestä.
Perustiedot
- Sijainti
- Meriniitynkatu 10, 24100, Meriniitty, Salo
- Huoneluku
- 3
- Pinta-alan peruste
- Pinta-ala ei ole tarkistusmitattu ja todellinen pinta-ala voi olla suurempi tai pienempi, kuin ilmoitettu
- Lisätiedot pinta-alasta
- Asuinrakennuksen kerrosala on 118 m2 ja kokonaisala 174 m2, kellarin pinta-ala on 66 m2. Ei tarkistusmitattu. Pinta-alat saattavat tämän ikäisissä kohteissa (rekisteröity ennen 01.01.1992) poiketa olennaisestikin asuinrakennusten nykyisten mittaustapojen ja standardien (SFS 5139) mukaan laskettavasta asuintilojen pinta-alasta. Pinta-ala voi siis olla edellä mainittua pienempi tai suurempi.
- Kohteen tyyppi
- Omakotitalo
- Rakennusvuosi
- 1948
- Kohde myydään vuokrattuna
- Ei
- Vapautuminen
- Sopimuksen mukaan
Tilat ja materiaalit
- Keittiön lattiat
- Muovimatto
- Keittiön varusteet
- Liesi ja uuni
- Liesi
- Sähköhella ja puuhella
- Kylpyhuoneen seinät
- Kaakeli
- Kylpyhuoneen lattiat
- Betoni ja laatta
- Kylpyhuoneen varusteet
- Suihku, wc-istuin, pesukoneliitäntä (Alakerran pesuhuoneessa), ja lattialämmitys (Sekä wc / suihkutila asunkerroksessa että alakerran pesutilassa)
- Erillinen WC
- Wc ja suihku samassa tilassa, asuinkerroksessa.
- WC:n lattiat
- Laatta
- WC:n seinät
- Kaakeli
- Olohuoneen seinät
- Tapetti
- Olohuoneen lattiat
- Muovimatto
- Kohteen säilytystilat
- Kellarikomero, kylmä ulkovarasto, vinttikomero ja ullakko
- Sauna
- Kyllä
- Kiuas
- Puukiuas
- Saunan kuvaus
- Talossa alakerrassa puulämmitteisellä kiukaalla sauna Ulkorakennuksessa myös sauna puukiukaalla
- Takka
- Varaava takka
Lisätiedot
- Asunnon kunto
- Tyydyttävä
Taloyhtiö ja kiinteistö
- Tontin pinta-ala
- 2 827 m²
- Tontin omistus
- Oma
- Tontin myyntityyppi
- Koko tontti
- Tontin tiedot
- Kaavassa T-11 : Teollisuus- ja varastorakennusten korttelialue. Alueelle voidaan rakentaa teollisuus- ja varastorakennuksia, korjaamoja, auto- ja maatalouskonemyymälöitä sekä ratakauppatiloja. Muita myymälätiloja, toimistoja ja asuntoja saa rakentaa vain toimipaikan omaa tarvetta varten. Rakennusta ei saa sijoittaa 6 m lähemmäksi naapuritontin rajaa ja siten muodostuvalle vapaalle alueelle, jota ei saa käyttää varastoimiseen, on istutettava lehtipuita. Kullakin tontilla on varattava vähintään seuravat autopaikat: 1) asunnot: yksi autopaikka asuinhuoneistoa kohti 2) toimistot, liikehuoneistot tai niihin verrattavat: yksi autopaikka kutakin huoneistoalan 50 neliömetriä kohti 3) teollisuuslaitokset: yksi autopaikka viittä työntekijää kohti, kuitenkin vähintään yksi autopaikka huoneistoalan 75 neliömetriä kohti.
- Rakennusmateriaali
- Puu
- Lämmitysjärjestelmä
- Sähkö Tyyppi: Sähköpatterit kiinteät ja irtopatteri Uuni Lattialämmitys
- Ilmanvaihto
- Painovoimainen ilmanvaihto
- Vesijohto
- Kunnallisvesi
- Viemäröinti
- Kolme sakokaivoa
- Lisätietoja viemäristä
- Viemäröinti oma, kolme sakokaivoa.
- Kattotyyppi
- Harjakatto
- Katemateriaali
- Tiili
- Kohteesta on energiatodistus
- Ei lain edellyttämää energiatodistusta
- Kiinteistöön kuuluu
- Omakotitalo ja talousrakennus jossa toiminut myös joskus navetta
- Tie perille
- Kyllä
- Paikallistiedot
- Kaikki keskustan palvelut, koulut n. 1km
- Kaavatilanne
- Asemakaava
- Kaavoitustiedot
- Teollisuus- ja varastorakennusten korttelialue. Alueelle voidaan rakentaa teollisuus- ja varastorakennuksia, korjaamoja, auto- ja maatalouskonemyymälöitä sekä ratakauppatiloja. Muita myymälätiloja, toimistoja ja asuntoja saa rakentaa vain toimipaikan omaa tarvetta varten. Rakennusta ei saa sijoittaa 6 m lähemmäksi naapuritontin rajaa ja siten muodostuvalle vapaalle alueelle, jota ei saa käyttää varastoimiseen, on istutettava lehtipuita. Kullakin tontilla on varattava vähintään seuravat autopaikat: 1) asunnot: yksi autopaikka asuinhuoneistoa kohti 2) toimistot, liikehuoneistot tai niihin verrattavat: yksi autopaikka kutakin huoneistoalan 50 neliömetriä kohti 3) teollisuuslaitokset: yksi autopaikka viittä työntekijää kohti, kuitenkin vähintään yksi autopaikka huoneistoalan 75 neliömetriä kohti.
- Asbestikartoitus
- Ei
- Muut rakennukset
- Isohko ulkorakennus jossa peltikatto 98 m2+ ns. lato osa rakennettu 1952. Yksittäinen isompi tila piha sauna ja entinen navetta ja muita pieniä tiloja. Pihalla myös hirsinen lasitettu kesähuone.
Tehdyt remontit
Asuinkerrokseen tehty wc / suihku kaakeloitu tila lattialämmityksellä.
