Messurinki 27
98530, Kiimaselkä, Pyhätunturi, Pelkosenniemi
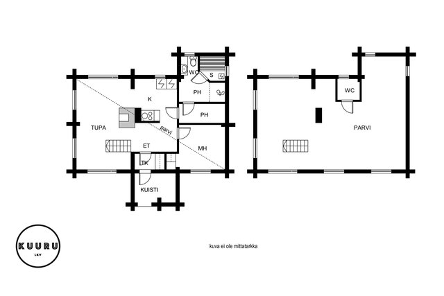
Tupakeittiö, mh, pesuhuone+ wc+ sauna, kodinhoitohuone, parvi + mt
159 000 €
92 m²

Tätä asuntoa myy Kimmo Virtasalo
Kuuru LKV Oy

Sijainti
Asuntoesittely
Tämä upea mökki sijaitsee Pyhätunturin Kiimaselän kauniilla mökkialueella, jossa luonto, rauha ja monipuoliset aktiviteetit kohtaavat. Vuonna 2004 valmistunut ja hyväkuntoinen hirsimökki on varustettu kaikilla mukavuuksilla, jotta lomasi olisi sekä huoleton että unohtumattoman elämyksellinen.
Mökin sydämenä toimii tunnelmallinen ja avaraolohuone, jossa varaava vuolukivitakka luo lämpöä ja viihtyisyyttä. Keittiö on suunniteltu lomakokin tarpeisiin, ja siellä on runsaasti tilaa ruoanlaittoon. Pesutiloista löytyy arkea helpottava pukuhuone sekä kylpyhuone Wc:llä ja saunalla, jossa voit nauttia rentouttavista löylyistä luonnonvalon tulviessa sisään ikkunasta.
Lämpimän sävyinen makuuhuone sijaitsee alakerrassa, ja yläkerran parvella on reilusti lisätilaa majoittua. Yläkerta tarjoaa rauhallisen lepopaikan yhdellä erillisellä makuuhuoneella sekä mahdollisuuden lisäsänkyjen tai vuodesohvan käyttöön, jos tarvitset enemmän majoitustilaa.
Autotallin suojassa onnistuu niin moottorikelkan kuin muidenkin harrastusvälineiden säilyttäminen kätevästi. Mökin takapihalla on viehättävä tulistelupaikka, josta avautuvat upeat näkymät ympäröivään luontoon. Tämä on täydellinen paikka viettää iltaa ystävien tai perheen kanssa nuotion äärellä.
Pyhätunturin monipuoliset ulkoilumahdollisuudet ovat lähellä – hiihtoladut alkavat vain 200 metrin päässä mökistä. Alueelle on helppo saapua eri kulkuvälineillä, ja lähin lentokenttä sijaitsee Rovaniemellä. Keskustan palvelut ovat vain kahdeksan kilometrin päässä, joten kaikki tarpeellinen on käden ulottuvilla.
Tartu tilaisuuteen ja tee tästä mökistä oma lomaparatiisisi Pyhän kauniissa maisemissa!
Pohjakuva

Perustiedot
- Sijainti
- Messurinki 27, 98530, Kiimaselkä, Pyhätunturi, Pelkosenniemi
- Huoneluku
- 3
- Asuinpinta-ala
- 92 m²
- Kokonaispinta-ala
- 92 m²
- Pinta-alan peruste
- Pinta-ala ei ole tarkistusmitattu ja todellinen pinta-ala voi olla suurempi tai pienempi, kuin ilmoitettu
- Lisätiedot pinta-alasta
- Ei tarkistusmitattu. Pinta-ala voi siis olla edellä mainittua pienempi tai suurempi.
- Kohteen tyyppi
- Mökki tai huvila
- Kerros
- 2
- Rakennusvuosi
- 2004
- Käyttöönottovuosi
- 2004
- Kohde myydään vuokrattuna
- Ei
- Vapautuminen
- Heti
Hinta ja kustannukset
- Velaton hinta
- 159 000 €
- Myyntihinta
- 159 000 €
- Kokonaissähkön kulutustiedot
- 12920 kWh / vuosi
- Sähköliittymä siirtyy
- Kyllä
- Neliöhinta
- 1 728,26 € / m²
- Lisätietoja maksusta
- Kulutustiedot 2024 • Kiinteistövero 520,52 e • Lumenauraus 306 e • Sähkönkulutus 12 920 kwh • Jätemaksu 71,5 e
Tilat ja materiaalit
- Keittiön kuvaus
- Tässä mökissä on mukavan käytännöllinen keittiö, jossa lomakokki loihtii helposti herkulliset appeet isommallekin lomaseurueelle. Lasku- sekä kaappitilaa on riittävästi.
- Keittiön lattiat
- Muovimatto
- Keittiön seinät
- Hirsi
- Keittiön varusteet
- Jääkaappipakastin, uuni, liesi, mikroaaltouuni, ja astianpesukone
- Liesi
- Valurautaliesi
- Kylpyhuone
- Alakerrasta löytyy pesutila - sauna - wc yhdistelmä, jossa onkin oikein mukavan väljät tilat. Täältä löytyy mökin toinen wc, jossa on myös allasvarustus. Suihkutilaan on laitettu suihkukaappi, joten itse pesutila pysyy kuivana ja siistinä kuin itsestään.
- Kylpyhuoneen seinät
- Hirsi ja kaakeli
- Kylpyhuoneen lattiat
- Laatta
- Kylpyhuoneen varusteet
- WC-istuin, suihkukaappi, pesuallas, allaskaappi, ja peilikaappi
- Erillinen WC
- Mökin toinen wc sijaitsee yläkerrassa.
- WC:n lattiat
- Muovimatto
- WC:n seinät
- Paneeli
- Makuuhuoneet
- Päämakuuhuone löytyy mökin alakerrasta ja lisää majoitustilaa on yläkerrassa. Alakerran makuuhuoneessa on myös kaappitilaa, jossa matkatavarat ja petivaatteet voi säilyttää. Yläkerrassa on oma makuutila, joka sijaitsee ihan yläkerran päädyssä tarjoten rauhallisen lepopaikan. Yläkerrassa on myös tilaa lisäsängyille ja/tai vuodesohvalle, mikäli on tarvetta majoittaa suurempia henkilömääriä.
- Makuuhuoneiden lukumäärä
- 1
- Makuuhuoneiden seinät
- Hirsi ja paneeli
- Makuuhuoneiden lattiat
- Muovimatto
- Olohuone
- Olohuone ja ruokailutila muodostavat kauniin ja tunnelmallisen oleskelutilan, jossa suurempikin seurue mahtuu mainiosti viettämään yhteistä aikaa. Kaiken keskellä on upea, varaava vuolukivitakka, joka tuo lämpöä sekä tunnelmaa pimeisiin talvi-iltoihin.
- Olohuoneen seinät
- Hirsi
- Olohuoneen lattiat
- Muovimatto
- Kodinhoitohuoneen varusteet
- Pesukone
- Kodinhoitohuoneen seinät
- Paneeli ja hirsi
- Kodinhoitohuoneen lattiat
- Laatta
- Kodinhoitohuone
- Kodinhoitohuone sijaitsee alakerrassa ja toimii myös pukuhuoneena pesutiloihin mentäessä. Tilaa on hyvin kumpaankin tarkoitukseen.
- Säilytystilojen kuvaus
- Pihalta löytyy autotalli, jonka yhteydessä on tilaa myös polttopuille sekä harrastusvälineille. Todella käytännöllinen ja tarpeellinen tila.
- Kohteen säilytystilat
- Kylmä ulkovarasto
- Sauna
- Kyllä
- Kiuas
- Sähkökiuas
- Saunan kuvaus
- Mökin saunatilat on varustettu sähköisellä kiukaalla ja tila on muutenkin mukavan kokoinen. Kiukaan hiljalleen napsutellessa kelpaa kipakoista löylyistä nautiskella. Saunaan tulvii luonnonvaloa ikkunan kautta.
- Takka
- Varaava takka ja vuolukivitakka
Lisätiedot
- Asunnon kunto
- Hyvä
- Terassi
- Ei
- Piha
- Takapihalle on rakennettu mukava tulistelupaikka, jossa kauniit maisemat ympäröivään luontoon.
- Ranta
- Ei rantaa
- Hissi
- Ei
Taloyhtiö ja kiinteistö
- Tontin pinta-ala
- 1 450 m²
- Tontin omistus
- Oma
- Tontin tyyppi
- Rinnetontti
- Tontin myyntityyppi
- Koko tontti
- Rakennusmateriaali
- Hirsi
- Lämmitysjärjestelmä
- Sähkö Tyyppi: Alakerrassa lattialämmitys, yläkerrassa patterit Kustannukset: 12920 kWh / vuosi Lattialämmitys Koko alakerrassa lattialämmitys. Ilmalämpöpumppu alakerrassa, etäohjattava. Ilmalämpöpumppu
- Ilmanvaihto
- Koneellinen ilmanvaihto ja koneellinen poisto tuloilmaventtiileillä
- Vesijohto
- Kunnallisvesi
- Viemäröinti
- Kunnallinen viemäriverkosto
- Kattotyyppi
- Harjakatto
- Katemateriaali
- Huopa
- Kohteesta on energiatodistus
- Kohteella ei energiatodistuslain nojalla tarvitse olla energiatodistusta
- Lisätietoja liikenneyhteyksistä
- Pyhälle voit saapua useilla eri tavoilla. Junalla pääsee Rovaniemelle tai Kemijärvelle, josta loppumatka taittuu vaikka vuokra-autolla tai julkisella liikenteellä. Rovaniemellä on lähin lentokenttä, joten helposti kuljet myös lentäen tunturiin. Omalla autolla kulkeminen onnistuu tietysti myös.
- Tie perille
- Kyllä
- Paikallistiedot
- Mökki sijaitsee Kiimaselän kauniilla mökkialueella. Keskustan palveluihin alueelta on matkaa noin kahdeksan kilometriä. Hiihtoladut löytyvät mukavasti noin 200 metrin päästä.
- Kaavatilanne
- Asemakaava ja yleiskaava
- Rakennusvaihe
- Valmis
- Muut rakennukset
- Autotalli
