Mika Waltarin katu 7
06100, Hornhattula, Porvoo
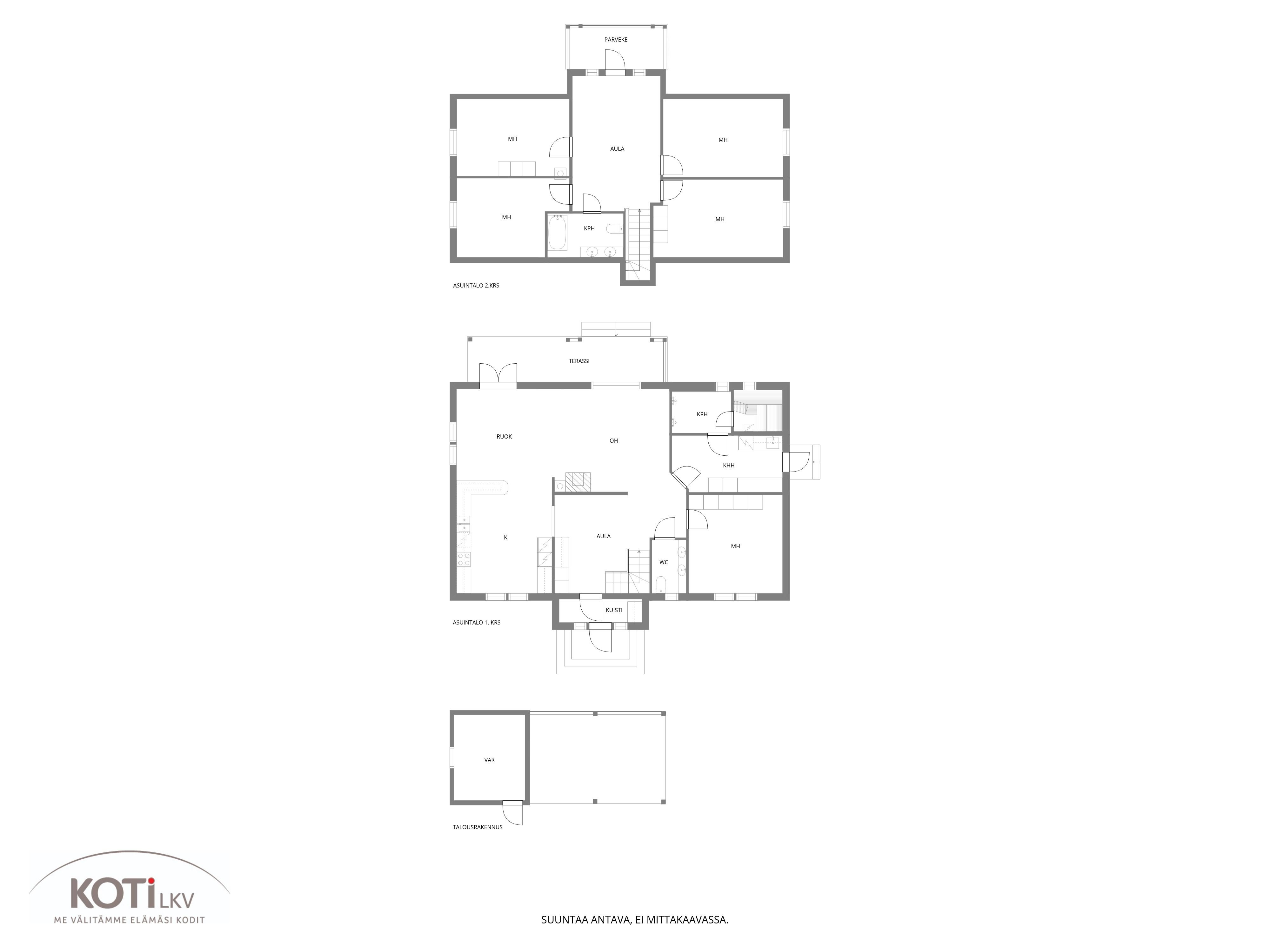
oh + avokeittiö, 5 mh, + khh + kph/s + erillis-wc + yläaula + kph/wc + parveke + maaterassi
395 000 €
201 m²

Tätä asuntoa myy Sara Karlsson, Kiinteistönvälittäjä LKV, LVV
KOTI LKV | Uudenmaan Laatuvälitys Oy

Sijainti
Asuntoesittely
Nyt myynnissä kaunis omakotitalokokonaisuus Porvoon Hornhattulassa, joka tarjoaa erinomaiset puitteet perhe-elämälle. Vuonna 2003 valmistunut talo sijaitsee rauhallisella ja suositulla asuinalueella, josta on hyvät kulkuyhteydet sekä Porvoon keskustaan että Helsingin suuntaan.
Tämä kahdessa kerroksessa sijaitseva koti on tilava ja käytännöllinen. Alakerran avokeittiö ja olohuone muodostavat viihtyisän oleskelukokonaisuuden, josta on suora kulku suojaisan sisäpihan maaterasseille. Talon alakerrassa on yksi makuuhuone. Yläkerrassa on neljä makuuhuonetta joiden keskellä on väljä oleskelutila-arkiolohuone. Kylpyhuoneita on molemmissa kerroksissa, ja alakerrasta löytyy lisäksi erillinen wc.
Pihassa on autokatos ja kylmä varasto. Kiinteistö lämpeää kaukolämmöllä ja lämmönjakotapa on vesikiertoinen lattialämmitys molemmissa kerroksissa.
Tartu tilaisuuteen ja tule tutustumaan tähän perheystävälliseen kotiin, jossa yhdistyvät tilavuus, käytännöllisyys ja erinomainen sijainti. Lähistöllä sijaitsee alueen oma päiväkoti. Kiinteistöllä on valoikuituliittymä.
Pohjakuva

Perustiedot
- Sijainti
- Mika Waltarin katu 7, 06100, Hornhattula, Porvoo
- Huoneluku
- 6
- Asuinpinta-ala
- 201 m²
- Kokonaispinta-ala
- 222 m²
- Pinta-alan peruste
- Pinta-ala ei ole tarkistusmitattu ja todellinen pinta-ala voi olla suurempi tai pienempi, kuin ilmoitettu
- Lisätiedot pinta-alasta
- Porvoon kaupungin rakennusvalvonnan Rakennusten tiedot -otteen mukaan huoneistoala on 201 m² ja kerrosala sekä kokonaisala 222 m². Pinta-aloja ei ole tarkistusmitattu, kauppahinta ei ole pinta-alaperusteinen.
- Kohteen tyyppi
- Omakotitalo
- Kerros
- 2
- Rakennusvuosi
- 2003
- Lisätietoja rakennusvuodesta
- Rakennuslupa hyväksytty 29.01.2003. Rakennusluvalle 2003-19 (Uudisrakennus) on käyttöönottokatselmus pidetty 30.06.2003 ja loppukatselmus on pidetty 29.12.2008. Toimenpideluvalle 638-2022-441 (Julkisivuvärin muutos) on loppukatselmus pidetty 17.08.2023.
- Käyttöönottovuosi
- 2003
- Kohde myydään vuokrattuna
- Ei
- Vapautuminen
- 2 kk kaupanteosta tai sopimuksen mukaan
Hinta ja kustannukset
- Myyntihinta
- 395 000 €
- Puhtaanapito (€/kk)
- 20 €
- Kiinteistövero (€/vuosi)
- 571,39 €
- Sähköliittymä siirtyy
- Kyllä
- Neliöhinta
- 1 965,17 € / m²
- Lisätietoja maksusta
- Kaukolämmön kulutus on 12 kk aikana 2023-2024 ollut noin 17 MWh ja 2270,39 €. Valokuitunen 7,95 €/kk ensimmäinen vuosi (15,90/kk neljä seuraavaa vuotta). Jätevesi-, vesi- ja hulevesimaksujen arvio vuodelle 2025 on 121 m³/ 1011,88 €. Sähkönkulutus ollut noin 8200 kWh/vuosi.
Tilat ja materiaalit
- Keittiön lattiat
- Laminaatti
- Keittiön seinät
- Maali
- Keittiön varusteet
- Jääkaappipakastin (2 kpl), erillisuuni (luukku rikki), liesi, liesituuletin, ja astianpesukone
- Liesi
- Keraaminen liesi
- Kylpyhuone
- 1. krs: 2 kpl suihkuja, lattialämmitys. 2. krs: wc-istuin, pesuallas, peili, suihku, kylpyamme, lattialämmitys.
- Kylpyhuoneen seinät
- Kaakeli
- Kylpyhuoneen lattiat
- Laatta
- Kylpyhuoneen varusteet
- Suihku ja lattialämmitys
- WC Lukumäärä
- 2
- Erillinen WC
- Alakerrassa.
- WC:n lattiat
- Laatta
- WC:n seinät
- Kaakeli
- Makuuhuoneiden lukumäärä
- 5
- Makuuhuoneiden seinät
- Maali
- Makuuhuoneiden lattiat
- Laminaatti ja alakerran mh:ssa laatta
- Olohuoneen seinät
- Maali ja kivi
- Olohuoneen lattiat
- Laminaatti
- Kodinhoitohuoneen varusteet
- Pesukoneliitäntä, pesuallas, kurapiste, tila pesutornille, keskuspölynimuri, lattialämmitys, pyykkikaapit, ja siivouskaappi
- Kodinhoitohuoneen seinät
- Kaakeli
- Kodinhoitohuoneen lattiat
- Laatta
- Säilytystilojen kuvaus
- Makuuhuoneiden vaatekaapit jäävät.
- Kohteen säilytystilat
- Kylmä ulkovarasto ja seinäkaapit
- Sauna
- Kyllä
- Kiuas
- Sähkökiuas ja kiuas uusittu 2024
- Takka
- Varaava takka
Lisätiedot
- Asunnon kunto
- Hyvä
- Parveke
- Ulostyönnetty parveke
- Parvekkeen ilmansuunta
- Pohjoinen
- Terassi
- Kyllä
- Hissi
- Ei
Taloyhtiö ja kiinteistö
- Tontin pinta-ala
- 756 m²
- Tontin omistus
- Vuokra
- Tontin tyyppi
- Tasamaatontti
- Tontin myyntityyppi
- Koko tontti
- Maanvuokraaja
- Porvoon kaupunki
- Tontin vuosivuokra
- 1 510 €
- Vuokra-aika päättyy
- 31.12.2053
- Lisätiedot rakennusmateriaaleista
- Alapohjarakenteet: maanvastainen betonilaatta alapuolisella lämmöneristyksellä. Välipohja: puurakenteinen. Yläpohja: puurakenteinen. Ulkoseinärakenteet: puurakenteiset. Väliseinät: puu- sekä kiviainesrakenteiset.
- Rakennusmateriaali
- Puu
- Lämmitysjärjestelmä
- Kaukolämpö vesikiertoinen lattialämmitys
- Ilmanvaihto
- Koneellinen tulo-poistoilmanvaihto lämmöntalteenotolla
- Vesijohto
- Kunnallisvesi
- Viemäröinti
- Kunnallinen viemäriverkosto
- Kattotyyppi
- Harjakatto
- Katon kunto
- Puhdistettu ja pinnoitettu 08/2022
- Katemateriaali
- Tiili
- Rakennusoikeus
- 290
- Lisätietoa rakennusoikeudesta
- Asuinrakennus 250 k-m² (1. krs 140 k-m² + 2. krs 110 m²) + autotalli 40 k-m². Rakentaminen 2 kerrokseen sallittu.
- Kohteesta on energiatodistus
- Kyllä
- Energialuokka
- C2018
- Energiatodistuksen voimassaolo
- 3.10.2034
- Lisätietoja liikenneyhteyksistä
- Hornhattulantien bussipysäkit n. 400 m, Läntisen Mannerheiminväylän bussipysäkit n. 800 m-1 km, Porvoonväylä n. 1-1,3 km, linja-autoasema torilla n. 3 km.
- Tie perille
- Kyllä
- Palvelut
- Shell Porvoo Kuninkaanportti n. 2,1 km (kävellen n. 1,5 km), S-Market Näsi (jonka yhteydessä mm. Alko, apteekki) n. 2,3 km, Näsin terveyskeskus n. 2,6 km, K-Citymarket n. 2,7 km, Porvoon keskusta (tori) n. 3 km, uimahalli ja urheiluhalli n. 3,8 km.
- Koulut
- Albert Edelfeltin koulu n. 2,2 km, Strömborgska skolan n. 2,3 km, Lyceiparkens skola n. 3,4 km, Kvarnbackens skola n. 3,6 km, Keskuskoulu n. 3,7 km. Lukiot: Linnankosken lukio n. 3,2 km, Borgå Gymnasium n. 3,3 km.
- Kaavatilanne
- Asemakaava
- Kaavoitustiedot
- Kaavamerkintä AO-25 (Omakotirakennusten ja muiden enintään kahden perheen talojen korttelialue). Lisätietoja: Porvoon kaupunki, puh. (019) 520 211, https://kartta.porvoo.fi
- Kosteusmittaus tehty
- 04.11.2024
- Kuntotarkastus tehty
- 04.11.2024
- Rakennusvaihe
- Valmis
- Muut rakennukset
- Autokatos
- Lisätietoa muista rakennuksista
- Puurakenteinen talousrakennus (autokatos/kylmä varasto), joka Porvoon kaupungin Rakennusten tiedot -otteen mukaan on kerros- ja kokonaisalaltaan 13 m². Rakennusluvalle 2003-20 (Autokatos/varasto) on loppukatselmus pidetty 29.12.2008.
Tehdyt remontit
Alakerran laminaatti vaihdettu vaaleaksi ja kaikki alakerran seinät maalattu 2021, julkisivu maalattu ja vesikatto pinnoitettu 08/2022, ilmanvaihdon puhdistus ja säätö 2024