Mirjankuja 3 B
02230, Matinkylä, Espoo
Mh + Oh + K + Kph + Las.Parv.
179 000 € (3 008,40 € / m²)
59,5 m²

Tätä asuntoa myy Axel Dressell, Myyntineuvottelija
Roof Espoo | ROOF LKV Espoo Oy

Sijainti
Asuntoesittely
Vuonna 2016 kauttaaltaan remontoitu, ensimmäisen asuin kerroksen valoisa kaksio lasitetulla parvekkeella.
Tämä tyylikäs ja valoisa kaksio on remontoitu kokonaisuudessaan vuonna 2016. Remontin yhteydessä uusittiin keittiö, kylpyhuone, sähköt sekä kaikki pinnat. Tilavasta olohuoneesta on kulku omalle lasitetulle parvekkeelle, ja makuuhuoneesta sekä keittiöstä avautuvat rauhalliset, metsäiset näkymät viereiseen Matinmetsään. Eteisessä on runsaasti säilytystilaa, ja kaapistoja löytyy myös makuuhuoneesta.
Vuonna 1976 omalle tontille valmistunut Asunto Oy Mirjankuja 3 koostuu 42 asunnosta. Taloyhtiössä on hissi ja 25 autopaikkaa, jotka jaetaan jonotusperiaatteella. Lämmitysmuotona on kaukolämpö.
Espoon Matinkylä on elinvoimainen ja kehittyvä kaupunginosa, joka tunnetaan erinomaisista palveluistaan ja loistavista liikenneyhteyksistään. Alueen sydämessä sijaitsee kauppakeskus Iso Omena, joka tarjoaa monipuoliset ostos-, ravintola- ja vapaa-ajanpalvelut. Meren läheisyys, vehreät puistoalueet ja kattavat liikuntamahdollisuudet tekevät Matinkylästä houkuttelevan asuinpaikan kaikenikäisille.
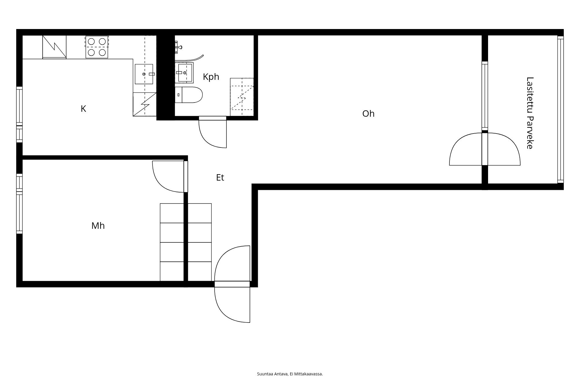
Pohjakuva

Perustiedot
- Sijainti
- Mirjankuja 3 B, 02230, Matinkylä, Espoo
- Omistusmuoto
- Omistusasunto
- Huoneluku
- 2
- Asuinpinta-ala
- 59,5 m²
- Kokonaispinta-ala
- 59,5 m²
- Pinta-alan peruste
- Yhtiöjärjestyksen mukainen, Isännöitsijäntodistuksen mukainen, (Pinta-ala ei ole tarkistusmitattu ja todellinen pinta-ala voi olla suurempi tai pienempi, kuin ilmoitettu)
- Lisätiedot pinta-alasta
- Ei tarkistusmitattu. Pinta-alat saattavat tämän ikäisissä kohteissa (yhtiö rekisteröity ennen 01.01.1992) poiketa olennaisestikin asuinrakennusten nykyisten mittaustapojen ja standardien (SFS 5139) mukaan laskettavasta asuintilojen pinta-alasta. Pinta-ala voi siis olla edellä mainittua pienempi tai suurempi.
- Kohteen tyyppi
- Kerrostalo
- Kerros
- 1 / 6
- Rakennusvuosi
- 1976
- Käyttöönottovuosi
- 1976
- Kohde myydään vuokrattuna
- Ei
- Vapautuminen
- Sopimuksen mukaan
Hinta ja kustannukset
- Velaton hinta
- 179 000 €
- Myyntihinta
- 179 000 €
- Velkaosuus
- 0 €
- Yhtiövastike
- Hoitovastike 368,90 € / kk (6,20 € / m²), Yhtiövastike yhteensä 368,90 € / kk
- Autopaikkamaksu
- 15 € / kk
- Saunamaksu
- 10 € / kk
- Neliöhinta
- 3 008,40 € / m²
- Lisätietoja maksusta
- Vesimaksu kuuluu vastikkeeseen. Taloyhtiön hallitukselle on annettu valtuutus periä (tai olla perimättä) ylimääräistä vastiketta yhtiön taloudellisen aseman tai maksuvalmiuden sitä vaatiessa
Tilat ja materiaalit
- Keittiön lattiat
- Laminaatti
- Keittiön seinät
- Maali
- Keittiön varusteet
- Jääkaappipakastin, liesituuletin, erillisuuni (Integroitu), liesi (Induktio), ja astianpesukone
- Liesi
- Induktioliesi
- Kylpyhuoneen seinät
- Kaakeli
- Kylpyhuoneen lattiat
- Laatta
- Kylpyhuoneen varusteet
- WC-istuin, suihkuseinä, pesukoneliitäntä, lattialämmitys (Vesikiertoinen), peilikaappi, pesuallas, bidee-suihku, ja allaskaappi
- Makuuhuoneiden lukumäärä
- 1
- Makuuhuoneiden seinät
- Maali
- Makuuhuoneiden lattiat
- Laminaatti
- Olohuoneen seinät
- Maali
- Olohuoneen lattiat
- Laminaatti
- Sauna
- Ei
Lisätiedot
- Asunnon kunto
- Hyvä
- Parveke
- Lasitettu parveke
- Hissi
- Kyllä
Taloyhtiö ja kiinteistö
- Taloyhtiön nimi
- Asunto Oy Mirjankuja 3
- Isännöitsijätoimisto
- Priman oy
- Isännöitsijän nimi
- Henri Jokela
- Isännöitsijän sähköposti
- [email protected]
- Isännöitsijän puhelin
- 0207614430
- Tuotot
- 2288
- Tontin pinta-ala
- 1 829 m²
- Tontin omistus
- Oma
- Rakennusmateriaali
- Betonielementti
- Lämmitysjärjestelmä
- Kaukolämpö
- Ilmanvaihto
- Koneellinen poisto
- Vesijohto
- Kunnallisvesi
- Viemäröinti
- Kunnallinen viemäriverkosto
- Kattotyyppi
- Tasakatto
- Katemateriaali
- Kumibitumi
- Lisätietoja kiinteistönhoidosta
- Huoltoyhtiö
- Kiinteistönhoidon lisätiedot
- Huoltia Oy
- Taloyhtiössä on
- Kaapeli-tv, väestönsuoja, mankeli, urheiluvälinevarasto, kuivaushuone, ja irtaimiston säilytystilat, lastenvaunutila
- Lunastusoikeus yhtiöllä
- Ei
- Lunastusoikeus osakkaille
- Ei
- Kohteesta on energiatodistus
- Kyllä
- Energialuokka
- D2018
- Energiatodistuksen voimassaolo
- 5.3.2034
- Lisätietoja liikenneyhteyksistä
- Linja-autopysäkki: Mirjankuja 1-3 noin 10 m Metroasema: Matinkylän metroasema A noin 540 m
- Palvelut
- K-Market noin 160 m Alepa Joosepinkuja noin 280 m Alepa Matinkylä noin 300 m Iso omenan lukuisat palvelut noin 790 m
- Koulut
- Lukio: Matinkylän lukioi noin 650 m Peruskoulu: Espoon kristillinen koulu noin 910 m Peruskoulu: Laajasalon peruskoulu noin 1900 m Peruskoulu: Haukilahden koulu noin 1910 m Lukio: Etelä-Tapiolan lukio noin 4010 m
- Taloyhtiön autopaikat
- Autopaikat luovutetaan jonotusjärjestyksessä.
- Piha-autopaikkoja
- 25 kpl
- Taloyhtiöllä sauna
- Kyllä
- Kaavatilanne
- Asemakaava
- Asbestikartoitus
- Ei
- Taloyhtiön kiinnitykset
- 976 400 €
- Taloyhtiön kiinnitysten päivämäärä
- Isännöitsijäntodistuksen päivämäärän mukainen
Tehdyt remontit
2025 Palovaroittimet asennettu kaikkiin huoneistoihin (uusinta viimeistään 2035)
2024 Kujanpuoleinen sokkeleiden mukulakivetys, parkkiviivojen maalaus
2023 Kujanpuoleisten sisääntulo lippojen korjaus
2022 Julkisivun pesu (ei parvekeseiniä)
2021 Ilmanvaihdon nuohous ja säätö (seuraava huolto 2027), palovaroittimien uusinta
2020 Parvekelasitusten huolto (seuraava huolto 2025)
2018 viemäreiden ja sadevesiputkien huuhtelu ja kuvaus, rättipattereiden tiivisteiden uusiminen, kylpyhuoneiden silikonisaumojen uusiminen
2016 Julkisivujen pesu (ei parvekeseiniä), porrashuoneiden, välikäytävän ja kuivaushuoneen saneeraus, hissien uusinta
2015 Lipputangon uusiminen, sähkölukot ja koodilaitteet pääulko-oviin
2014 Porrashuoneiden ulko-ovien uusminen, huippuimureiden uusiminen, vesikattojen uusiminen, kiinteistöautomaation uusiminen, lämmönvaihtimen uusiminen
2012 Salaojien korjaus kartoituksen mukaan, patteriventtiilienvaihto ja lämmityksen tasapainotus, kylmäkellarin muuttaminen ulkoiluvälinevarastoksi, ilmastoinnin nuohous ja säätö
2011 Palovaroittimien uusinta, salaojien huuhtelu ja tarkistus, alapohjan tuuletuksen parantaminen
2008 Ikkunoiden ja parvekeovien uusiminen
2006 Käyttöveden nousulinjojen uusiminen, kylpyhuoneiden uusiminen
2004 Jäteaseman maalaaminen, lukituksen uusinta
2003 Julkisivun maalaus ja parvekelinjojen kunnostus, piha-alueen asfaltointi
1999 Portaiden rakentaminen pysäköintialueelle
1995 Käyttöveden linjasulku- ja linjasäätöventtiilien uusiminen, jäteaseman uusiminen
1993 Porrashuoneiden maalaus, saunaosaston kunnostus
Yhtiön kaikkiin huoneistoihin asennetaan palovaroittimet 16.01.2025. Asennuksen jälkeen palovaroittimet ovat yhtiön kunnossapitovastuulla. Asukkaan vastuulla on edelleen palovaroittimien testaus sekä puutteiden ilmoittaminen isännöititoimistoon.
Tulevat remontit
2025: palovaroittimet, parvekelasien huolto.
2026-2027: Ilmanvaihdon nuohous ja säätö, Roskakatosten laajentaminen/uusiminen, Yhden kylpyhuoneen saneeraus tarvittaessa. Sähköautojen latauspisteet. Selvitys aurinkopaneelien kannattavuudesta. Kuntoarvion päivitys.
2028-2029: Saunaosaston saneeraus, sähköautojen lataus-pisteet. Lukituksen uusinta.
Lukijan on huomattava, että hallituksen Korjaustarveselvitys ja PTS 2025 on hallituksen näkemys kunnossapitotarpeista viiden vuoden aikana. Päätökset mahdollisesti käynnistettävien kunnossapitotöiden ja muutostöiden suunnittelusta, toteutuksesta sekä rahoituksesta tehdään yhtiökokouksessa erikseen. Selvityksellä mainitut toimenpiteet saattavat aikaistua tai myöhentyä. Myyjä ei vastaa taloyhtiön myöhemmin päättämistä kunnossapitotoimenpiteistä ja niistä aiheutuvista huoneistolle tulevista kustannuksista.