Miskensvägen 19
65450, Sulva, Korsholm, Mustasaari
6h+k+s+khh+2 auton autotalli+varasto+lasitettu terassi+2 erillinen wc
469 000 €
210 m²

Tätä asuntoa myy Nicklas Sjöblom, Myyntineuvottelija
LKV Muhonen AFM Oy

Sijainti
Asuntoesittely
Unikt och modernt egnahemshus i Solf!
Välkommen till detta rymliga och välplanerade hem på ett lugnt och eftertraktat läge i Solf!
Detta tvåvåningshus byggt 2010 erbjuder hela 4800 m² tomt och bekvämligheter som gör vardagen enkel och bekymmersfri.
På nedre våningen möts du av en ljus och öppen planlösning med ett stort vardagsrum och kök, perfekt för umgänge och familjeliv. Här finns dessutom två sovrum, walk-in closet, badrum, bastu, separat WC och ett praktiskt hjälpkök.
Ett varmt dubbelgarage ger gott om plats för bilar och förvaring. Från vardagsrummet når du den generösa terrassen på 78,5 m², varav 28,5 m² är inglasad, perfekta platsen för sommarkvällar eller middagar året runt.
På övre våningen finns ytterligare två sovrum, en rymlig hall samt ett fullt utrustat badrum med dusch.
Huset värms upp med jordvärme och har maskinell ventilation för energieffektiv och hälsosam inomhusluft. Dessutom finns kameraövervakning som ger extra trygghet.
Den stora och vackra tomten erbjuder gott om plats för lek, odling och avkoppling. På tomten finns också ett uteförråd.
Läget är utmärkt nära daghem, skola, butik och övrig service i Solf centrum, med smidiga förbindelser till både Vasa och andra närliggande områden.
Ett modernt hem med allt du behöver här trivs både familj och vänner!
.
Uniikki ja moderni omakotitalo Sulvalla!
Tervetuloa tutustumaan tähän tilavaan ja huolellisesti suunniteltuun kotiin, joka sijaitsee rauhallisella ja arvostetulla alueella Sulvalla.
Vuonna 2010 rakennettu kaksikerroksinen talo seisoo suurella, 4800 m² tontilla, ja tarjoaa kaikki mukavuudet helppoon ja huolettomaan arkeen.
Alakerrassa on valoisa ja avara pohjaratkaisu, jossa suuri olohuone ja keittiö muodostavat viihtyisän kokonaisuuden, täydellinen paikka yhdessäoloon ja perhe-elämään. Lisäksi löytyy kaksi makuuhuonetta, vaatehuone (walk-in closet), kylpyhuone, sauna, erillinen WC sekä käytännöllinen kodinhoitohuone.
Lämmin kahden auton autotalli tarjoaa runsaasti säilytystilaa. Olohuoneesta on käynti suurella, 78,5 m²:n terassille, josta 28,5 m² on lasitettu, täydellinen paikka kesäiltoihin tai ympärivuotiseen oleskeluun.
Yläkerrassa on kaksi lisämakuuhuonetta, tilava aula sekä täysin varusteltu kylpyhuone suihkulla.
Lämmitysmuotona on maalämpö, ja talossa on koneellinen ilmanvaihto, joka takaa energiatehokkuuden ja miellyttävän sisäilman. Kameravalvonta lisää asumisen turvallisuutta.
Suuri ja kaunis piha tarjoaa runsaasti tilaa leikeille, viljelylle ja rentoutumiselle. Tontill sijaitsee myös ulkovarasto.
Sijainti on erinomainen päiväkoti, koulu, kauppa ja muut palvelut löytyvät läheltä, ja hyvät liikenneyhteydet takaavat sujuvan arjen Vaasaan ja lähialueille.
Moderni koti, jossa on kaikki kohdallaan täällä viihtyy koko perhe ja ystävät!
Bara privatvisningar / Vain yksityisnäytöt
Nicklas Sjöblom
LKV MUHONEN AFM OY
0503687772
[email protected]
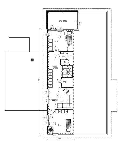
Pohjakuva

Perustiedot
- Sijainti
- Miskensvägen 19, 65450, Sulva, Korsholm, Mustasaari
- Huoneluku
- 6
- Asuinpinta-ala
- 210 m²
- Muu pinta-ala
- 60 m²
- Kokonaispinta-ala
- 270 m²
- Kohteen tyyppi
- Omakotitalo
- Kerros
- 2
- Rakennusvuosi
- 2010
- Käyttöönottovuosi
- 2010
- Kohde myydään vuokrattuna
- Ei
- Vapautuminen
- Sopimuksen mukaan
Tilat ja materiaalit
- Keittiön lattiat
- Laminaatti
- Keittiön seinät
- Maali ja tapetti
- Keittiön varusteet
- Jääkaappi, erillinen pakastin, mikroaaltouuni, astianpesukone, keittiösaareke, liesi, liesituuletin, uuni, ja viinikaappi
- Kylpyhuoneen seinät
- Kaakeli
- Kylpyhuoneen lattiat
- Laatta
- Kylpyhuoneen varusteet
- Suihku, pesuallas, peili, lattialämmitys, allaskaappi, ja wc-istuin
- WC Lukumäärä
- 2
- WC:n lattiat
- Laatta ja laminaatti
- WC:n seinät
- Kaakeli
- Makuuhuoneiden lukumäärä
- 4
- Makuuhuoneiden seinät
- Maali ja tapetti
- Makuuhuoneiden lattiat
- Laminaatti
- Olohuoneen seinät
- Maali ja tapetti
- Olohuoneen lattiat
- Laminaatti
- Kodinhoitohuoneen varusteet
- Pesukoneliitäntä, pesukone, kuivauskaappi, pesuallas, kurapiste, pöytätaso, lattiakaivo, keskuspölynimuri, ja pyykkikaapit
- Kodinhoitohuoneen seinät
- Maali, tapetti ja kaakeli
- Kodinhoitohuoneen lattiat
- Laatta
- Kohteen säilytystilat
- Kylmä ulkovarasto, vaatehuone ja kaapistot
- Sauna
- Kyllä
- Kiuas
- Sähkökiuas
- Takka
- Varaava takka
Lisätiedot
- Asunnon kunto
- Hyvä
- Parveke
- Ulostyönnetty parveke
- Terassi
- Kyllä
Taloyhtiö ja kiinteistö
- Tontin pinta-ala
- 4 820 m²
- Tontin omistus
- Oma
- Tontin tyyppi
- Tasamaatontti
- Tontin myyntityyppi
- Koko tontti
- Rakennusmateriaali
- Puu
- Lämmitysjärjestelmä
- Maalämpö
- Ilmanvaihto
- Ilmanvaihtokone
- Vesijohto
- Kunnallisvesi
- Viemäröinti
- Pienpuhdistamo
- Kattotyyppi
- Pulpettikatto
- Katemateriaali
- Pelti
- Kohteesta on energiatodistus
- Kyllä
- Energialuokka
- C2007
- Liikenneyhteydet
- Sujuvat yhteydet omalla autolla, bussipysäkki lähellä ja hyvä kulkuyhteys
- Tie perille
- Kyllä
- Kaavatilanne
- Yleiskaava
