Moberginkatu 2 B
80170, Utra, Joensuu
2h, k, kph, s
69 000 € (1 140,50 € / m²)
60,5 m²

Tätä asuntoa myy Miro Turunen, Kiinteistönvälittäjä, LKV, LVV, KiLAT
Huoneistokeskus Oy | Joensuu

Sijainti
Asuntoesittely
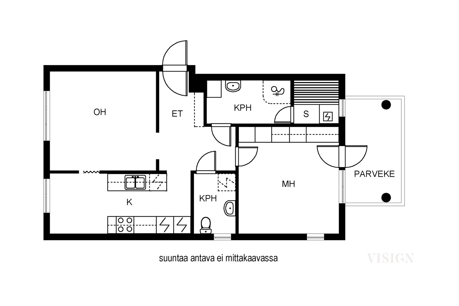
Utran palveluiden välittömästä läheisyydestä heti kaupasta vapautuva pienkerrostalon saunallinen kaksio. Huoneisto sijaitsee toisessa asuinkerroksessa. Pohjaratkaisultaan toimiva pariskunnan tarpeisiin tai miksei myös sinkkutaloudelle. Kaakelipinnoin varustettu kylpyhuone pesukoneliitäntöineen sekä oma sauna kruunaavat tämän kokonaisuuden. Makuuhuoneessa kiintokaapistot kodintekstiileille sekä vaatteille sekä käynti takapihan parvekkeelle. Keittiöstä löydät valkoiset kaapistot kodinkoneineen, ruokailuryhmä istuu tähän tilaan vaivattomasti.
Taloyhtiö liitetty kaukolämpöön ja kohde sijaitsee omalla tontilla. Taloyhtiö rakennettu v. 1992 ja huoneistoja on yhteensä 17 kappaletta. Utran S-market lähietäisyydellä (500 metriä), julkinen liikenne kulkee myös vierestä. Joensuun keskustaan (n. 7km) sekä Utransaaren upeat lenkkeilymaastot laavuineen tarjoavat ulkoaktiviteeteista nauttivalle oivan ympäristön.
Varaa oma esittelysi ja tehdään Sinunkin asuntounelmistasi totta!
Pohjakuva

Perustiedot
- Sijainti
- Moberginkatu 2 B, 80170, Utra, Joensuu
- Omistusmuoto
- Omistusasunto
- Huoneluku
- 2
- Asuinpinta-ala
- 60,5 m²
- Kokonaispinta-ala
- 60,5 m²
- Pinta-alan peruste
- Isännöitsijäntodistuksen mukainen, Yhtiöjärjestyksen mukainen
- Lisätiedot pinta-alasta
- Mainittu pinta-ala saattaa tämän ikäisessä kohteessa poiketa olennaisesti nykyisten standardien mukaan laskettavasta asuinpinta-alasta. Todellinen asuinpinta-ala voi olla yhtiöjärjestyksessä, isännöitsijäntodistuksessa ja esitteessä mainittua pienempi tai suurempi.
- Kohteen tyyppi
- Kerrostalo
- Kerros
- 2 / 2
- Rakennusvuosi
- 1992
- Käyttöönottovuosi
- 1992
- Kohde myydään vuokrattuna
- Ei
- Vapautuminen
- Heti
Hinta ja kustannukset
- Velaton hinta
- 69 000 €
- Myyntihinta
- 69 000 €
- Yhtiövastike
- Hoitovastike 310,05 € / kk (0,53 € / os.), Yhtiövastike yhteensä 310,05 € / kk
- Autopaikkamaksu
- 9 € / kk
- Vesimaksu
- 18 Kulutuksen mukaan
- Sähköliittymä siirtyy
- Kyllä
- Neliöhinta
- 1 140,50 € / m²
- Lisätietoja maksusta
- Lisätietoja vastikkeista: Kylmä vesi 5,20€/m3 Lämmin vesi 10,35€/m3 Taloyhtiön hallitukselle on annettu valtuutus periä (tai olla perimättä) ylimääräistä vastiketta yhtiön taloudellisen aseman tai maksuvalmiuden sitä vaatiessa
Tilat ja materiaalit
- Keittiön kuvaus
- Valkoiset kaapistot sekä kodinkoneet.
- Keittiön lattiat
- Laminaatti
- Keittiön seinät
- Maali
- Keittiön varusteet
- Astianpesukone, jääkaappipakastin, liesituuletin, ja kiinteät valaisimet
- Liesi
- Keraaminen liesi
- Kylpyhuoneen seinät
- Kaakeli
- Kylpyhuoneen lattiat
- Laatta
- Kylpyhuoneen varusteet
- WC-istuin, peili, suihku, ja kiinteät valaisimet
- WC Lukumäärä
- 1
- Erillinen WC
- Pesukoneliitäntä WC:ssä.
- WC:n lattiat
- Muovimatto
- WC:n seinät
- Maali
- Makuuhuoneet
- Makuuhuoneessa kiintokaapistot molemmin puolin ikkunaa sekä käynti parvekkeelle.
- Makuuhuoneiden lukumäärä
- 1
- Makuuhuoneiden seinät
- Maali
- Makuuhuoneiden lattiat
- Laminaatti
- Olohuone
- Olohuoneesta käynti keittiötilaan.
- Olohuoneen seinät
- Maali
- Olohuoneen lattiat
- Laminaatti
- Kohteen säilytystilat
- muu erillinen varasto
- Sauna
- Kyllä
- Kiuas
- Sähkökiuas
Lisätiedot
- Asunnon kunto
- Hyvä
- Lisätietoja kunnosta
- hyvä/tyydyttävä. Asunto on ollut vuokrattuna eikä myyjä ole asunut asunnossa, eikä siitä johtuen tiedä kohteen kuntoa eikä varusteita.
- Parveke
- Ulostyönnetty parveke
- Hissi
- Ei
- Muut tilat
- Eteisessä naulakko.
- Muuta kauppaan kuuluvaa
- Lisätietoja sisältyvistä varusteista: kaapistot, kiinteät valaisimet, sälekaihtimet/rullaverhot
Taloyhtiö ja kiinteistö
- Taloyhtiön nimi
- Asunto Oy Utran Sahalinna
- Isännöitsijätoimisto
- Retta Isännöinti Oy Joensuu
- Isännöitsijän nimi
- Juha Ahtonen
- Isännöitsijän sähköposti
- [email protected]
- Isännöitsijän puhelin
- 010 228 8300
- Tuotot
- 1744
- Taloyhtiön lisätiedot
- Tietoja lainojen pituuksista: 28.08.2029 12kk Euribor+0,95%
- Tontin pinta-ala
- 4 521 m²
- Tontin omistus
- Oma
- Rakennusmateriaali
- Puu
- Lämmitysjärjestelmä
- Kaukolämpö
- Vesijohto
- Kunnallisvesi
- Viemäröinti
- Kunnallinen viemäriverkosto
- Kattotyyppi
- Harjakatto
- Katemateriaali
- Kumibitumi/huopa
- Lisätietoja kiinteistönhoidosta
- Huoltoyhtiö
- Kiinteistönhoidon lisätiedot
- JKP Talohuoltopalvelut Oy Alasintie 1, 80130 Joensuu 040 455 8305/kaupungin puol. talot
- Taloyhtiössä on
- Urheiluvälinevarasto, kaapeli-tv, kuivaushuone, ja huoneistokohtaiset varastot
- Kohteesta on energiatodistus
- Kyllä
- Energialuokka
- C2018
- Lisätietoja energiatodistuksesta
- Energiatodistus on voimassa 31.12.2034 saakka.
- Taloyhtiöön kuuluu
- huoneistokohtainen ilmanvaihto
- Lisätietoja huoneiston autopaikasta
- Selvitetään autopaikkatilanne taloyhtiön isännöitsijältä.
- Lisätietoja taloyhtiön autonsäilytyspaikoista
- Autopaikat 18 kpl.
- Kaavatilanne
- Asemakaava
- Lisätiedot kaavoituksesta
- Joensuun kaupunki
- Asbestikartoitus
- Ei
- Lisätietoa asbestikartoituksesta
- Kohde valmistunut ennen vuotta 1994, joten asbestikartoituksia ei ole tehty.
- Taloyhtiön kiinnitykset
- 200 000 €
Tehdyt remontit
- 1997 piha-alueen asfaltointi
- 2005 julkisivujen huoltomaalaustyö
- 2013 roskakatoksen ja puisten ulko-ovien maalaus
- 2016 autolämmityspistokkeiden uusinta
- 2017 ilmanvaihtokanavien nuohous, rakennusten huoltomaalaus
- 2020 Ulkoseinien ja parvekkeiden kunnostus
- 2022 Lukitusten uusinta ja parvekesivujen maalaus
- 2023 Vesikaton kunnostus PTS kartoituksen pohjalta
- 2024 Vesikaton sekä kattoturvatuotteiden uusinta
Tulevat remontit
- 2026 Porrashuoneiden kunnostus, lämmönvaihtimen uusinta sekä käyttövesiputkisto-remontin suunnittelu
- 2027 Ilmanvaihtokanavien nuohous
- 2028 Käyttövesiputkiston uusiminen
