Moosentie 4
12400, Tervakoski, Janakkala
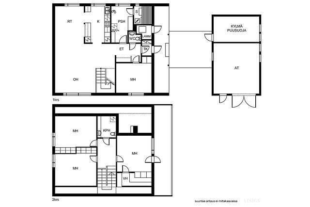
oh, k, rt, 4 mh, 2 wc, psh, s, autotalli, varasto
84 000 €
119,5 m²

Tätä asuntoa myy Timo Purkunen, Kiinteistönvälittäjä, LKV
Huoneistokeskus Oy | Hämeenlinna

Sijainti
Asuntoesittely
Tervetuloa tutustumaan tähän tiilivuorattuun omakotitaloon, joka sijaitsee rauhallisella asuinalueella Tervakoskella.
Kiinteistöllä on erillinen autotalli/varastorakennus, mikä tuo käytännöllisyyttä ja varastotilaa. Tontti rajoittuu metsään, mikä tarjoaa rauhoittavan ympäristön ja mahdollisuuden nauttia luonnosta. Sijainti on hyvä perheille, sillä koulujen ja päiväkodin läheisyys takaa sujuvat arkipäivät. Lisäksi peruspalvelut ovat lähellä.
Ota yhteyttä ja varaa oma esittelyaikasi!
Pohjakuva

Perustiedot
- Sijainti
- Moosentie 4, 12400, Tervakoski, Janakkala
- Huoneluku
- 6
- Asuinpinta-ala
- 119,5 m²
- Muu pinta-ala
- 15,5 m²
- Kokonaispinta-ala
- 135 m²
- Pinta-alan peruste
- Pinta-ala ei ole tarkistusmitattu ja todellinen pinta-ala voi olla suurempi tai pienempi, kuin ilmoitettu
- Lisätiedot pinta-alasta
- Asuinrakennuksen kerrosala 135 m² ja talousrakennuksen (autotalli/varasto) kerrosala 39 m². Pinta-alatiedot on saatu rakennuspiirustuksista eikä niitä ole tarkistusmitattu. Pinta-alat ovat suuntaa antavia ja voivat poiketa olennaisestikin nykystandardien mukaan mitattavista pinta-aloista.
- Kohteen tyyppi
- Omakotitalo
- Kerros
- 2
- Rakennusvuosi
- 1981
- Lisätietoja rakennusvuodesta
- Janakkalan kunnan rakennusvalvonnan tiedoista ei löydy lopputarkastusmerkintää. Rakennustarkastajalta saadun tiedon mukaan kaikki on kunnossa rakennusvalvonnan suuntaan kiinteistön osalta.
- Käyttöönottovuosi
- 1980
- Kohde myydään vuokrattuna
- Ei
- Vapautuminen
- Heti
Hinta ja kustannukset
- Myyntihinta
- 84 000 €
- Kiinteistövero (€/vuosi)
- 247,12 €
- Sähköliittymä siirtyy
- Kyllä
- Neliöhinta
- 702,93 € / m²
- Lisätietoja maksusta
- Hulevesimaksu 45 €/vuosi, Jätehuollon perusmaksu 36 €/vuosi. Kiinteistössä ei ole asuttu vuoden 2022 kevään jälkeen ja lämmityskulut eivät ole vertailukelpoisia tästä johtuen. Varainsiirtovero 3 % kauppahinnasta.
Tilat ja materiaalit
- Keittiön lattiat
- Laatta
- Keittiön seinät
- Maali ja osalaatoitus
- Keittiön varusteet
- Astianpesukone, jääkaappi, liesi, kiinteät valaisimet, ja liesituuletin (Hormiin)
- Liesi
- Sähköhella
- Kylpyhuoneen seinät
- Puu ja kaakeli
- Kylpyhuoneen lattiat
- Laatta
- Kylpyhuoneen varusteet
- Pesukoneliitäntä, suihku, ja kiinteät valaisimet
- WC Lukumäärä
- 2
- WC:n lattiat
- Laatta
- WC:n seinät
- Kaakeli
- Makuuhuoneiden lukumäärä
- 4
- Makuuhuoneiden seinät
- Tapetti ja maali
- Makuuhuoneiden lattiat
- Lauta ja parketti
- Olohuone
- Olohuoneen parketista irrotettu pala kuntotarkastuksen yhteydessä tarkastusta varten.
- Olohuoneen seinät
- Puu
- Olohuoneen lattiat
- Parketti
- Kohteen säilytystilat
- Vaatehuone, ulkovarasto ja ullakko
- Sauna
- Kyllä
- Kiuas
- Puukiuas
- Takka
- Takka
Lisätiedot
- Asunnon kunto
- Tyydyttävä
- Muuta kauppaan kuuluvaa
- Lisätietoja sisältyvistä varusteista: ilmalämpöpumppu, istutukset, jätesäiliö, kiinteät valaisimet, pihavarusteet, sälekaihtimet/rullaverhot
Taloyhtiö ja kiinteistö
- Tontin pinta-ala
- 990 m²
- Tontin omistus
- Oma
- Tontin tyyppi
- Tasamaatontti
- Tontin myyntityyppi
- Koko tontti
- Rakennusmateriaali
- Puu ja tiili
- Lämmitysjärjestelmä
- Öljy Ilmalämpöpumppu ilmalämmitys
- Kattotyyppi
- Harjakatto
- Katon kunto
- tyydyttävä
- Katemateriaali
- Tiili
- Rakennusoikeus
- 250
- Lisätietoa rakennusoikeudesta
- Rakennusoikeus on tyhjän tontin rakennusoikeuden pinta-ala enintään.
- Kohteesta on energiatodistus
- Kyllä
- Energialuokka
- D2018
- Energiatodistuksen voimassaolo
- 4.8.2033
- Lisätietoja energiatodistuksesta
- E-luku:203
- Lisätietoja liikenneyhteyksistä
- hyvät
- Tie perille
- Kyllä
- Palvelut
- Tervakosken keskustassa.
- Koulut
- Tervakosken keskustassa yläkoulu ja lukio. Alakoulu on Lähdekorven alueella.
- Kaavatilanne
- Asemakaava
- Kaavoitustiedot
- (ohjeellinen tonttijako). Janakkalan kunta.
- Kuntotutkimus tehty
- 01.01.2023
- Asbestikartoitus
- Ei
- Lisätietoa asbestikartoituksesta
- Rakennus on valmistunut ennen vuotta 1994 eikä asbestikartoitusta ole tehty.
- Muut rakennukset
- Autotalli, leikkimökki ja varasto
- Lisätietoa muista rakennuksista
- Erillinen sähköistetty autotalli/varastorakennus 39 k-m²
