Mustanlahdenkatu 21 A
33210, Keskusta, Tampere
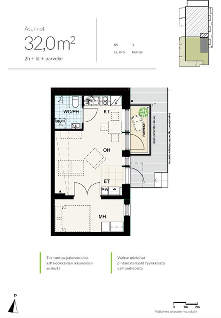
2h + kt + parveke
249 000 € (7 781,25 € / m²)
32 m²

Tätä asuntoa myy Emmi Hyvärinen, Asunnon myynti
Neliöt Liikkuu LKV Oy Ab

Sijainti
Asuntoesittely
Valoisa ja tehokas 2H+KT+PARVEKE – Mustalahdenkatu 21, 32,0 m²
Tarjolla moderni ja tehokaspohjainen kaksio Tampereen halutulta metson vierestä alueelta! Tämä 37 m²:n kokoinen asunto koostuu olohuone-keittiöyhdistelmästä, makuuhuoneesta, kylpyhuoneesta sekä tilavasta lasitetusta parvekkeesta. Asunto sijaitsee hyvin hoidetussa taloyhtiössä.
Asunto myydään valmiiksi vuokrattuna. Vuokra on 890 €/kk + vesimaksu 25 €/hlö/kk. – erinomainen kohde sijoittajalle, joka etsii valmista ja vakaata kassavirtaa.
Asunnon tiedot:
Osoite: Mustalahdenkatu 21, Tampere
Huoneistotyyppi: 2H+KT+Parveke
Pinta-ala: 37,0 m²
Vuokra: 890 €/kk + 25 € vesi/hlö
Kiinnostuitko? Lisätiedot ja esittelyt:
Emmi Hyvärinen
📧 [email protected]
📞 040 154 0889
Neliöt Liikku LKVPerustiedot
- Sijainti
- Mustanlahdenkatu 21 A, 33210, Keskusta, Tampere
- Omistusmuoto
- Omistusasunto
- Huoneluku
- 2
- Asuinpinta-ala
- 32 m²
- Kokonaispinta-ala
- 32 m²
- Pinta-alan peruste
- Yhtiöjärjestyksen mukainen, Isännöitsijäntodistuksen mukainen, (Pinta-ala ei ole tarkistusmitattu ja todellinen pinta-ala voi olla suurempi tai pienempi, kuin ilmoitettu)
- Lisätiedot pinta-alasta
- Ei tarkistusmitattu. Pinta-ala voi siis olla edellä mainittua pienempi tai suurempi.
- Kohteen tyyppi
- Kerrostalo
- Kerros
- 1 / 9
- Rakennusvuosi
- 2023
- Kohde myydään vuokrattuna
- Kyllä
- Vapautuminen
- Sopimuksen mukaan
Hinta ja kustannukset
- Velaton hinta
- 249 000 €
- Myyntihinta
- 88 140 €
- Velkaosuus
- 160 860 €
- Yhtiövastike
- Hoitovastike 285,40 € / kk, Rahoitusvastike 519,60 € / kk, Yhtiövastike yhteensä 805 € / kk
- Vesimaksu
- 25 € / hlö / kk
- Neliöhinta
- 7 781,25 € / m²
- Lisätietoja maksusta
- Vesimaksuennakko on tasauslasku tehdään kerran vuodessa, joulukuun lopun lukemilla
Tilat ja materiaalit
- Keittiön lattiat
- Laminaatti
- Keittiön seinät
- Maali
- Keittiön varusteet
- Jääkaappi ja erillisuuni
- Liesi
- Induktioliesi
- Kylpyhuoneen seinät
- Kaakeli
- Kylpyhuoneen lattiat
- Laatta
- Kylpyhuoneen varusteet
- Suihku, wc-istuin, suihkuseinä, lattialämmitys, ja allaskaappi
- Makuuhuoneiden lukumäärä
- 1
- Makuuhuoneiden seinät
- Maali
- Makuuhuoneiden lattiat
- Laminaatti
- Olohuoneen seinät
- Maali
- Olohuoneen lattiat
- Laminaatti
Lisätiedot
- Asunnon kunto
- Erinomainen
- Näkymät
- sisäpihalle
- Ranta
- Ei rantaa
Taloyhtiö ja kiinteistö
- Taloyhtiön nimi
- Asunto Oy Tampereen Sonetti
- Isännöitsijätoimisto
- Asuntopehtoori Isännöinti Oy
- Tontin pinta-ala
- 878 m²
- Rakennusmateriaali
- Puu
- Lisätietoja kiinteistönhoidosta
- Huoltoyhtiö
- Lunastusoikeus yhtiöllä
- Ei
- Lunastusoikeus osakkaille
- Ei
- Liikenneyhteydet
- Bussipysäkki lähellä, juna-asema lähellä, sujuvat yhteydet omalla autolla, taksitolppa lähellä, raitiovaunupysäkki lähellä, hyvät pyöräilytiet, hyvä kulkuyhteys ja kaupunkiliikenneyhteys
- Paikallistiedot
- Sale Amuri – n. 200 m Aleksanterin koulu – n. 400 m Amurin päiväkoti – n. 400 m EasyFit Tampere (kuntosali) – n. 200 m Koskikeskus (kauppakeskus) – n. 1,3 km Tampereen rautatieasema – n. 1,5 km TAYS (Tampereen yliopistollinen sairaala) – n. 3,7 km Bussipysäkki Mustanlahdenkatu – n. 200 m Raitiovaunupysäkki Pyynikintori – n. 400 m
- Lisätietoja huoneiston autopaikasta
- Asukkailla on mahdollisuus ostaa autopaikkoja samalla tontilla sijaitsevasta pysäköintiyhtiöstä. Lisäksi yhtiöllä on 3 kpl autopaikkoja yhtiön vuokra-alueella. Pihan autopaikat ovat varustettu lämmitystolpilla. Autopaikat myydään osakkeina.
- Taloyhtiöllä sauna
- Ei