Näkintie 28
45700, Väkkärä, Kuusankoski, Kuusankoski, Kouvola
4mh+rh+k+khh+s+ph
56 000 €
100 m²

Tätä asuntoa myy Niina Mäki, Asuntomyyjä
Huoneistokeskus Oy | Kouvola

Sijainti
Asuntoesittely
Tilava neljän makuuhuoneen viihtyisä koti rauhallisella alueella Kuusankosken Väkkärässä.
Toimiva pohjaratkaisu, paljon varastotilaa ja lämmin autotalli tuovat arkeen mukavuutta. Pintaremontilla teet kodista helposti oman näköisesi. Sijainti on oivallinen: luonto ja palvelutkin lähellä. Erinomainen mahdollisuus – tule tutustumaan!
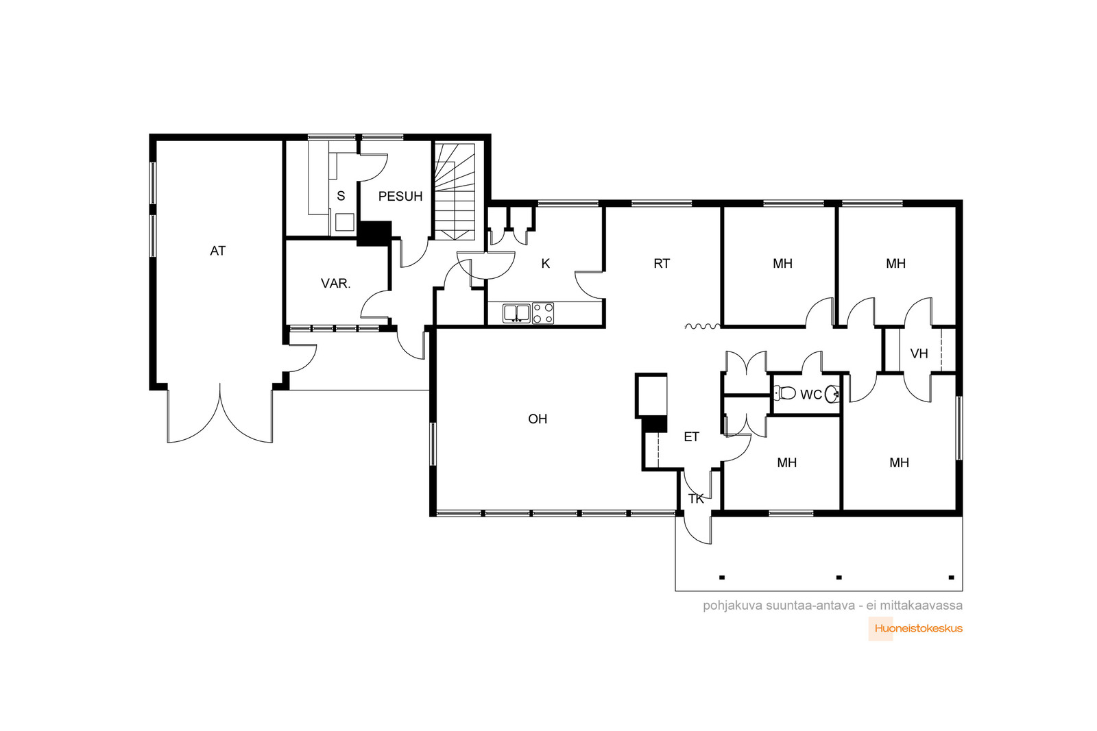
Pohjakuva

Perustiedot
- Sijainti
- Näkintie 28, 45700, Väkkärä, Kuusankoski, Kuusankoski, Kouvola
- Huoneluku
- 4
- Asuinpinta-ala
- 100 m²
- Muu pinta-ala
- 50 m²
- Kokonaispinta-ala
- 150 m²
- Lisätiedot pinta-alasta
- Pinta-alatiedot on saatu kaupungin rakennusviranomaisilta ja ne saattavat olennaisestikin poiketa nykymääräysten mukaisista standardeista.
- Kohteen tyyppi
- Omakotitalo
- Kerros
- 1
- Käyttöönottovuosi
- 1966
- Kohde myydään vuokrattuna
- Ei
- Vapautuminen
- 1-2 kuukautta
Tilat ja materiaalit
- Keittiön lattiat
- Muovimatto
- Keittiön seinät
- Maali ja osalaatoitus
- Keittiön varusteet
- Mikroaaltouuni, liesituuletin, jääkaappi, ja kiinteät valaisimet
- Liesi
- Keraaminen liesi
- Kylpyhuone
- pesutorni
- Kylpyhuoneen seinät
- Kaakeli
- Kylpyhuoneen lattiat
- Laatta
- Kylpyhuoneen varusteet
- Lattialämmitys, pesukone, kuivausrumpu, suihku, pesukoneliitäntä, ja kiinteät valaisimet
- WC Lukumäärä
- 1
- WC:n lattiat
- Muovimatto
- WC:n seinät
- Kaakeli
- Makuuhuoneiden lukumäärä
- 4
- Makuuhuoneiden seinät
- Tapetti
- Makuuhuoneiden lattiat
- Muovimatto
- Olohuoneen seinät
- Tapetti
- Olohuoneen lattiat
- Muovimatto
- Kodinhoitohuoneen seinät
- Maali ja puu
- Kodinhoitohuoneen lattiat
- Muovimatto
- Sauna
- Kyllä
- Kiuas
- Sähkökiuas
Lisätiedot
- Asunnon kunto
- Tyydyttävä
- Ranta
- Ei rantaa
Taloyhtiö ja kiinteistö
- Tontin pinta-ala
- 894 m²
- Tontin omistus
- Oma
- Tontin tyyppi
- Tasamaatontti
- Tontin myyntityyppi
- Koko tontti
- Rakennusmateriaali
- Puu
- Lämmitysjärjestelmä
- Öljy vesikiertoinen patterilämmitys
- Kattotyyppi
- harjakatto
- Katon kunto
- tyydyttävä
- Katemateriaali
- peltikate
- Rakennusoikeus
- 223.5
- Rakennusoikeus e-luku
- 0.25
- Lisätietoja liikenneyhteyksistä
- Paikallisbussi liikennöi
- Tie perille
- Kyllä
- Palvelut
- lähikauppa 1 km, keskustan kaikki palvelut 2,5 km
- Kaavatilanne
- Asemakaava
- Kaavoitustiedot
- kouvolan kaupunki p. 020
- Asbestikartoitus
- Ei
- Lisätietoa muista rakennuksista
- lämmin autotalli talon yhteydessä, kellarissa säilytystilaa yht noin 50 m2.
