Näsintie 6
95530, Karunki, Tornio
3mh+oh+k+kph+s+at
35 000 €
127 m²

Tätä asuntoa myy Hanna Pölkky, kiinteistönvälittäjä LKV, LVV, KiLAT
kaupanvahvistaja
Pilvilinna LKV Oy

Sijainti
Asuntoesittely
Kodikas omakotitalo, jossa iso keittiö ja reilun kokoiset huoneet. Taloon on uusittu mm. ikkunat ja peltikatto, kuntotarkastus on tehty -24. Tallissa reippaasti puuhastelutilaa ja erillinen lämmin varasto. Reilun kokoinen, suojaisa tontti rajoittuu puistoon sekä metsäalueeseen ja autotallirakennus antaa kivasti näkösuojaa tielle.
Eloisalla Karungin kylällä mm. kauppa, ala-aste sekä mainiot kalastusmahdollisuudet Tornionjoen varrella. Tornion keskustaan ajomatkaa alle puoli tuntia ja Ylitorniolle matkaa on noin 40 km.
Kohde vapautuu sopimuksen mukaan. Soita ja sovi oma näyttöaikasi!
~ Iloa ja onnistumista asuntokauppaan ~
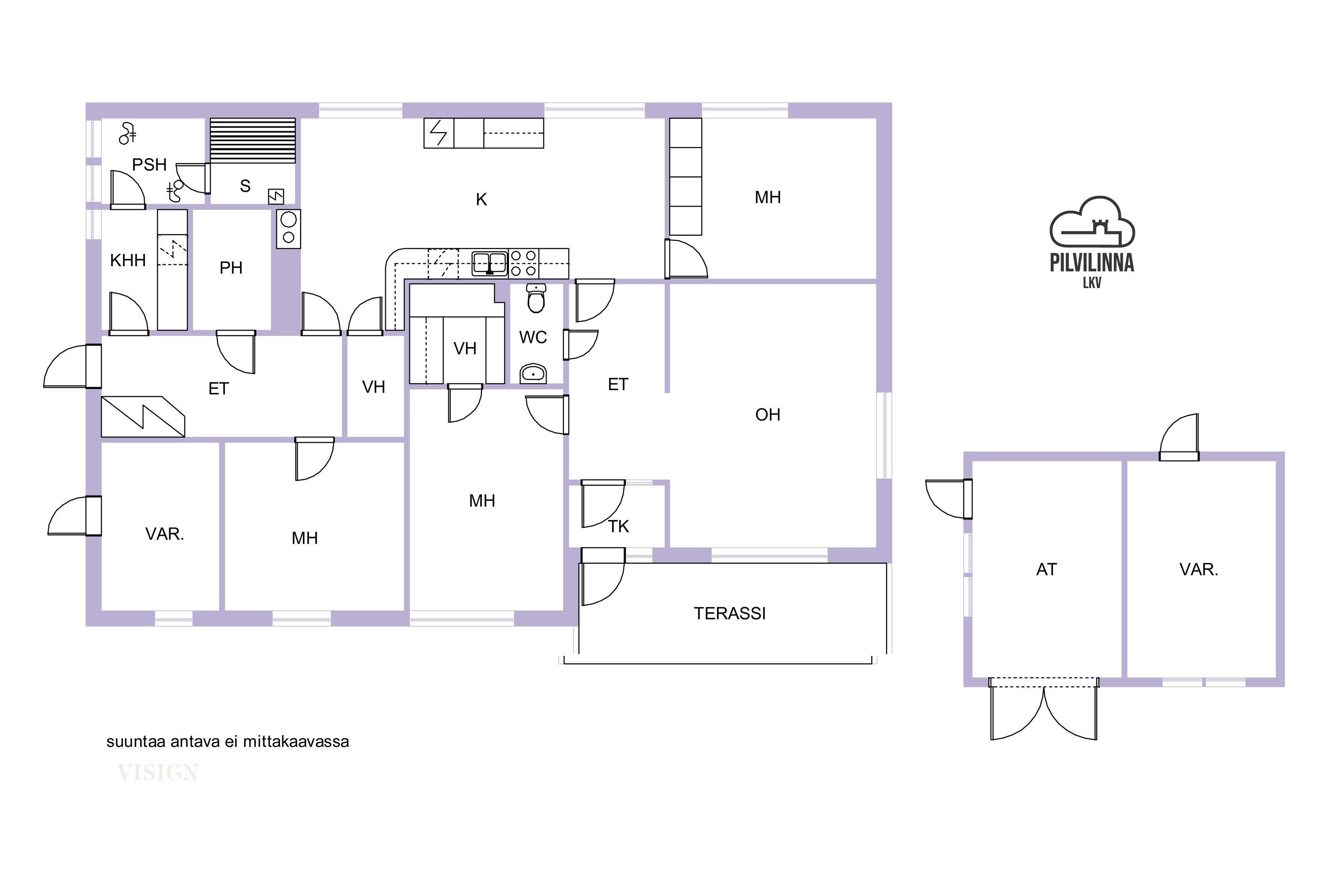
Pohjakuva

Perustiedot
- Sijainti
- Näsintie 6, 95530, Karunki, Tornio
- Huoneluku
- 4
- Asuinpinta-ala
- 127 m²
- Muu pinta-ala
- 12 m²
- Kokonaispinta-ala
- 139 m²
- Pinta-alan peruste
- Pinta-ala ei ole tarkistusmitattu ja todellinen pinta-ala voi olla suurempi tai pienempi, kuin ilmoitettu
- Lisätiedot pinta-alasta
- Huoneistoala käsittää huoneisto-osan (78 m²) + lämpimän talousosan (49 m²). Muut tilat käsittävät kylmän talousosan (7 m²) + kylmiön (3 m²). Erillinen autotalli-varasto noin 34 m²
- Kohteen tyyppi
- Omakotitalo
- Kerros
- 1
- Rakennusvuosi
- 1972
- Käyttöönottovuosi
- 1972
- Kohde myydään vuokrattuna
- Ei
- Vapautuminen
- Sopimuksen mukaan
Tilat ja materiaalit
- Keittiön lattiat
- Muovimatto
- Keittiön seinät
- Tapetti, puolipaneeli ja laatta
- Keittiön varusteet
- Jääkaappi, liesituuletin, ja astianpesukone
- Liesi
- Keraaminen liesi
- Kylpyhuoneen seinät
- Kaakeli
- Kylpyhuoneen lattiat
- Laatta
- Kylpyhuoneen varusteet
- Suihku
- WC Lukumäärä
- 1
- WC:n lattiat
- Muovimatto
- WC:n seinät
- Osalaatoitus ja maali
- Makuuhuoneiden lukumäärä
- 2
- Makuuhuoneiden seinät
- Tapetti
- Makuuhuoneiden lattiat
- Laminaatti ja muovimatto
- Olohuoneen seinät
- Tapetti
- Olohuoneen lattiat
- Laminaatti
- Kodinhoitohuoneen varusteet
- Lattiakaivo ja pesukoneliitäntä
- Kodinhoitohuoneen seinät
- Puu
- Kodinhoitohuoneen lattiat
- Laatta
- Kohteen säilytystilat
- Vaatehuone, lämmin ulkovarasto ja kylmä ulkovarasto autotallissa
- Sauna
- Kyllä
- Kiuas
- Sähkökiuas
- Takka
- Hormi olemassa ja puuliesi keittiössä
Lisätiedot
- Asunnon kunto
- Tyydyttävä
Taloyhtiö ja kiinteistö
- Tontin pinta-ala
- 2 084 m²
- Tontin omistus
- Vuokra
- Tontin tyyppi
- Tasamaatontti
- Tontin myyntityyppi
- Koko tontti
- Maanvuokraaja
- Tornion kaupunki
- Tontin vuosivuokra
- 900 €
- Vuokra-aika päättyy
- 04.10.2072
- Rakennusmateriaali
- Tiili ja puu
- Lämmitysjärjestelmä
- Puu Sähkö Vesikiertoinen patterilämmitys Uuni
- Ilmanvaihto
- Painovoimainen ilmanvaihto
- Vesijohto
- Kunnallisvesi
- Viemäröinti
- Saostussäiliö
- Kattotyyppi
- Harjakatto
- Katon kunto
- Vesikatto uusittu 2005
- Katemateriaali
- Pelti
- Rakennusoikeus
- 625.2
- Rakennusoikeus e-luku
- 0.3
- Kohteesta on energiatodistus
- Ei lain edellyttämää energiatodistusta
- Kaavatilanne
- Asemakaava
- Kuntotarkastus tehty
- 24.07.2024
- Rakennusvaihe
- Valmis
- Asbestikartoitus
- Ei
- Muut rakennukset
- Autotalli
- Lisätietoa muista rakennuksista
- Autotalli-varasto (17,5 m²+17,5 m²) rakennettu noin vuonna 1989. Nosto-ovi + kaksi käyntiovea. Sähköt.
Tehdyt remontit
2025: Maanalainen öljysäiliö poistettu
2008: Ikkunat
2005: Peltikatto (huovan päälle)
2000: Kv-putket pinta-asennuksena, lämminvesivaraaja uusittu
1997: Kylpyhuoneremontti + sauna
1990: Ulko-ovet uusittu, autotallista muokattu huone + varastohuone
1986: Keittiöremontti (laajennus)
