Näyttelijäntie 20 B
00400, Pohjois-Haaga, Haaga, Helsinki
2h+kk+rt+kph+et
209 000 € (4 804,60 € / m²)
43,5 m²

Tätä asuntoa myy Duarte Tammilehto, Myyntineuvottelija
Roof Helsinki | ROOF Group Oy

Sijainti
Asuntoesittely
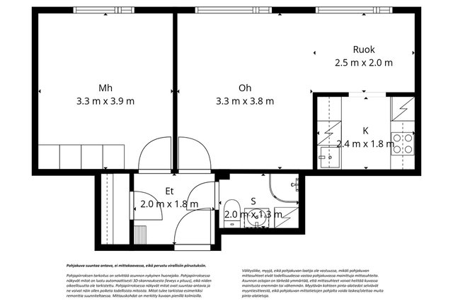
Tässä kodissa arki toimii sujuvasti: selkeä ja käytännöllinen pohjaratkaisu jakaa tilat luontevasti, ja vesikiertoinen lattialämmitys tuo tasaisen mukavuuden sekä mahdollistaa monipuoliset sisustusratkaisut ilman pattereita.
Olohuone muodostaa kodin keskuksen ja tarjoaa hyvin tilaa sekä sohvaryhmälle että oleskelulle. Tilaan yhdistyy ruokailutila, jonka äärellä on mukava viettää aikaa niin arkena kuin viikonloppuisin. Keittokomero on omana, selkeästi rajattuna tilanaan, ja siinä on hyvin kaappi- ja laskutilaa. Vaalea yleisilme tekee keittiöstä raikkaan ja ajattoman.
Makuuhuone on rauhallinen ja helposti kalustettava - tilaan mahtuu hyvin parisänky, ja säilytystilat tukevat arjen toimivuutta. Kylpyhuone on siisti ja käytännöllinen, ja siellä on myös paikka pyykkihuollolle.
Asunto sijaitsee omalla tontilla olevassa yhtiössä. Yhtiössä on toteutettu mm. linjasaneeraus vuonna 2008, ikkunat ja parvekeovet on uusittu 2016 ja vesikate 2021.
Yhtiön yhteiset tilat ovat monipuoliset: asukkaiden käytössä ovat saunat, pyykkitupa, kaksi kuivaushuonetta, mankelihuone, pyöräkellarit, lastenvaunuvarasto sekä askarteluhuone. Asunnolle kuuluu lisäksi sekä vintti- että kellarikomero. Piha-alue on rauhallinen ja viihtyisä, ja asukkaiden varattavissa olevat viljelylaatikot tuovat mukavaa lisäarvoa erityisesti keväästä syksyyn.
Pohjois-Haaga on puistomainen ja kodikas alue, jonka ympäristö on viihtyisä. Liikkuminen onnistuu sujuvasti niin junalla, busseilla kuin Raide-Jokerillakin, ja yhteydet eri puolille pääkaupunkiseutua ovat monipuoliset. Läheltä löytyvät mm. terveyskeskus, koulut ja päivittäispalvelut sekä kauppakeskus Kaaren kattava palvelutarjonta. Keskuspuiston ulkoilureitit ja Pirkkolan liikuntapaikat ovat myös kätevästi saavutettavissa.
TIEDUSTELUT JA YKSITYISESITTELYVARAUKSET:
Duarte Tammilehto / 050 341 1676 tai [email protected]
OTATHAN YHTEYTTÄ JA VARAAT OMAN ESITTELYAJAN!
I can provide services also in English.
Get a roof.
www.roof.fi
Perustiedot
- Sijainti
- Näyttelijäntie 20 B, 00400, Pohjois-Haaga, Haaga, Helsinki
- Omistusmuoto
- Omistusasunto
- Huoneluku
- 2
- Asuinpinta-ala
- 43,5 m²
- Kokonaispinta-ala
- 43,5 m²
- Pinta-alan peruste
- Yhtiöjärjestyksen mukainen, Isännöitsijäntodistuksen mukainen, (Pinta-ala ei ole tarkistusmitattu ja todellinen pinta-ala voi olla suurempi tai pienempi, kuin ilmoitettu)
- Lisätiedot pinta-alasta
- Huoneiston pinta-ala on yhtiöjärjestyksen, isännöitsijäntodistuksen ja myyjän ilmoituksen mukaan 43,5 m2. Pinta-alaa ei ole tarkistusmitattu. Edellä mainittu pinta-ala saattaa tämän ikäisessä kohteessa poiketa olennaisestikin huoneiston nykyisen ja rakentamisaikaisen mittaustapojen ja standardien mukaan laskettavasta pinta-alasta. Huoneiston todellinen pinta-ala voi siis olla yhtiöjärjestyksessä, isännöitsijäntodistuksessa ja esitteessä mainittua pienempi tai suurempi.
- Kohteen tyyppi
- Kerrostalo
- Kerros
- 2 / 4
- Rakennusvuosi
- 1957
- Käyttöönottovuosi
- 1957
- Kohde myydään vuokrattuna
- Ei
- Vapautuminen
- Sopimuksen mukaan
Hinta ja kustannukset
- Velaton hinta
- 209 000 €
- Myyntihinta
- 203 144,83 €
- Velkaosuus
- 5 855,17 €
- Yhtiövastike
- Hoitovastike 252 € / kk (5,60 €/jm2/kk), Rahoitusvastike 78,75 € / kk (Ikkuna 1,15 €/m2/kk, Kattoremontti 0,60 €/m2/kk), Yhtiövastike yhteensä 330,75 € / kk
- Lisätietoja vastikkeista
- Huoneiston vastikeperuste (jyvitetty pinta-ala) on 45 m².
- Neliöhinta
- 4 804,60 € / m²
- Lisätietoja maksusta
- Autotalli 55,00 €/kk Autotalli 70,00 €/kk Autotalli 60,00 €/kk Autopaikkavuokra, lämmin 18,00 €/kk Autopaikkavuokra, kylmä 14,00 €/kk Saunamaksu, tunnin vuoro 15,00 €/kk Saunamaksu, puolen tunnin vuoro 8,00 €/kk Varastovuokra 75,00 €/kk tai 150,00 €/kk Yhtiökokous 2025: - Valtuus periä ylimääräisiä hoitovastikkeita tai nostaa hoitolaina: Päätettiin yksimielisesti myöntää hallitukselle valtuudet periä tarvittaessa kaksi ylimääräistä hoitovasti-ketta, tai jättää vastaava määrä hoitovastikkeita perimättä. Päätettiin yksimielisesti myöntää hallitukselle valtuudet nostaa tarvittaessa hoitolaina yhtiön maksuvalmiuden niin vaatiessa, äkillisen ja ennalta arvaa-mattoman vahingon tai taloudellisesti ylipääsemättömän tilanteen aiheuttamien kulujen kattamiseksi. Päätettiin yksimielisesti myöntää hallitukselle valtuudet hoitolainan takaisinmaksuajan ja lyhennyksen suuruuden päättämiseen. Päätettiin yksimielisesti myöntää hallitukselle valtuudet hakea tarvittaessa lisää vakuuksia sekä valtuudet pantata ne haettavan lainan vakuudeksi ja allekirjoittaa hoitolainan nostoon liit-tyvät asiakirjat. Valtuutukset ovat voimassa seuraavaan varsinaiseen yhtiökokoukseen asti. - Lainanlyhennysten, rahoitusvastikkeiden ja hankeosuuksien käsittely: Päätettiin hallituksen esityksen mukaisesti, että pääosin tuloutetaan lainanlyhennykset, rahoitusvastik-keet ja hankeosuudet. Rahastoidaan lainanlyhennysrahastoon siltä osin, jos se on taloyhtiön tuloksen ta-saamiseksi välttämätöntä. - Vuoden 2025 korjaukset ja niiden rahoittaminen: Päätettiin, että vuonna että vuonna 2025 tehdään kunnossapitotarveselvityksen mukaisia korjauksia, mu-kaan lukien julkisivun, parvekkeiden ja ulkoportaiden korjausten suunnittelu. Päätettiin, että vuoden 2025 korjaukset toteutetaan kassavaroin. Taloyhtiön hallitukselle on annettu valtuutus periä (tai olla perimättä) ylimääräistä vastiketta yhtiön taloudellisen aseman tai maksuvalmiuden sitä vaatiessa
Tilat ja materiaalit
- Keittiön kuvaus
- Varustus: Induktioliesi, Liesituuletin, Uuni, Hana, Kaapisto, Allas, Astianpesukone, Jääkaappipakastin Seinämateriaali: Laatta, Maali Lattiamateriaali: Vinyylilankku
- Kylpyhuone
- Varustus: Suihku, Suihkuseinä, Wc istuin, Pesukoneliitäntä, Hana, Allas, Peilikaappi, Lattialämmitys Seinämateriaali: Laatta Lattiamateriaali: Laatta
- Makuuhuoneet
- Seinämateriaali: Maali Lattiamateriaali: Vinyylilankku
- Olohuone
- Seinämateriaali: Maali Lattiamateriaali: Vinyylilankku
- Sauna
- Ei
Lisätiedot
- Asunnon kunto
- Hyvä
- Parveke
- Ei parveketta
- Hissi
- Ei
Taloyhtiö ja kiinteistö
- Taloyhtiön nimi
- Asunto Oy Näyttelijäntie 20
- Isännöitsijätoimisto
- Ehta Isännöinti
- Isännöitsijän nimi
- Pietari Ylinen
- Isännöitsijän sähköposti
- [email protected]
- Isännöitsijän puhelin
- 0925006250
- Tontin pinta-ala
- 9 700 m²
- Tontin omistus
- Oma
- Rakennusmateriaali
- Tiili
- Lämmitysjärjestelmä
- Kaukolämpö
- Ilmanvaihto
- Koneellinen poisto
- Vesijohto
- Kunnallisvesi
- Viemäröinti
- Kunnallinen viemäriverkosto
- Kattotyyppi
- Harjakatto
- Katemateriaali
- Pelti
- Lisätietoja kiinteistönhoidosta
- Huoltoyhtiö
- Kiinteistönhoidon lisätiedot
- Kiinteistöpalvelu KinPal Oy
- Taloyhtiössä on
- Pesutupa, mankeli, ja ulkoiluvälinevarasto, säilytysullakko
- Lunastusoikeus yhtiöllä
- Ei
- Lunastusoikeus osakkaille
- Ei
- Kohteesta on energiatodistus
- Kyllä
- Energialuokka
- E2018
- Energiatodistuksen voimassaolo
- 19.11.2034
- Lisätietoja liikenneyhteyksistä
- Bussipysäkki Näyttelijäntie 22 n. 170 m. Pohjois-Haagan rautatieasema n. 800 m. Raide-Jokerin pysäkille n. 800- 1 000 m.
- Palvelut
- Alepa Pohjois-Haaga n. 210 m. K-Market Kasari n. 700 m. K-Supermarket Pohjois-Haaga n. 900 m. Kauppakeskus Kaari n. 1 km.
- Koulut
- Pohjois-Haagan yhteiskoulu n. 700 m. Pohjois-Haagan ala-aste n. 800 m. Haaga-Helian Haagan kampukselle n. 2 km. Suomalais-Venäläinen koulu n. 1,3 km.
- Taloyhtiön autopaikat
- Hallipaikat: 15 kpl Autopaikat: 44 kpl
- Taloyhtiöllä sauna
- Kyllä
- Kaavatilanne
- Asemakaava
- Lisätiedot kaavoituksesta
- Lisätietoa kaavoituksesta Helsingin kaupungilta 09 310 1691 Lukijan tulee tutustua lähialueen kaavoitushankkeisiin ja muihin alueen tietoihin ja palveluihin huolellisesti Helsingin kaupungin karttapalvelun kautta: kartta.hel.fi Lähistöllä valmisteilla olevat asemakaavat per. 14.01.2026: 1. Haaga, Näyttelijäntie 15-17 Nykyiselle päiväkotitontille osoitteessa Näyttelijäntie 17 ja sen lähellä oleville viheralueille suunnitellaan uusia asuinkerrostaloja. 2. Haaga, Kaupintie 3 Osoitteeseen Kaupintie 3 suunnitellaan uusia asuinkerrostaloja. Olemassa olevien toimistorakennusten purkamisen laajuutta selvitetään osana suunnittelua. 3. Kannelmäki, Halsuantien ja Vetelintien alue Pelimannintien ja Kantelettarentien varsille sekä Evijärvenpolun ja Vetelinpolun ja radan väliin on suunnitteilla uutta asuinrakentamista. 4. Kannelmäki, Laulukujan alue Laulukujan varteen suunnitellaan uusia asuinkerrostaloja ja uutta pysäköintilaitosta. Pysäköintilaitoksen maantasokerrokseen on alustavissa suunnitelmissa sijoitettu liiketilaa. 5. Lassila, Hopeatie 2 Osoitteeseen Hopeatie 2 suunnitellaan uutta asuinkorttelia. Olemassa oleva liike- ja toimistorakennus puretaan. Uusi rakentaminen on suunnitelmissa 5–16-kerroksista. Lisätietoa liitteenä. Myyntiesitteessä on esitetty vain tiivistetty versio tiedoista. Lukijan on hyvä huomioida, että tässä ilmoitetut lähialueen merkittävimmät valmisteilla olevat asemakaavat perustuvat tilanteeseen 14.01.2026. Valmisteilla olevat asemakaavat voivat päivittyä, eikä välitysliike vastaa mahdollisista muutoksista. Lukijan tulee tutustua vireillä oleviin asemakaavoihin ja muihin suunnitelmiin ennen ostotarjouksen jättämistä. Tarvittaessa välittäjä antaa lisätietoa ajankohtaisista kaavamuutoksista.
- Asbestikartoitus
- Ei
- Lisätietoa asbestikartoituksesta
- Kohde on valmistunut ennen vuotta 1994. Asunnossa ei ole tehty asbestikartoitusta. Lain mukaan purettavien materiaalien asbesti pitää kartoittaa ennen purkutyötä, jos rakennus on rakennettu ennen vuotta 1994. Jos osakas aikoo remontoida tällaisessa talossa olevaa huoneistoaan, hänen tulee tietyissä tapauksissa teettää asbestikartoitus purettaviin materiaaleihin. Asbestikartoitusvelvollisuus ei koske huoneistossa tehtäviä vähäisiä töitä, kuten reikien poraamista seiniin tai kattoon.
- Taloyhtiön kiinnitykset
- 3 644 000 €
Tehdyt remontit
2024 Julkisivun ja parvekkeiden kuntotutkimus (Kiinteistötakuu Oy)
2023 Lämpöjohtoverkoston tasapainotus
2021 Vesikatteen uusiminen
2021 Laajakaista korotus 2M-10M
2019 Tontin sisääntuloväylän pohjan tasaaminen ja uudelleen asfaltointi
2016 Ikkunoiden ja parvekeovien uusiminen
2012 B-talon länsipuolen sadevesikourujen ja syöksytorvien uusiminen. Kattopollarit
2011 Ovikoodilaitteiden asentaminen
2011 Autotallien ovenpielikorjauksia
2011 Pysäköintipaikkojen sähköistyksien uusimista
2010 Länsi- ja pohjoispuolisten salaojien asentaminen ja sokkeleiden vesieristys
2010 Porrashuoneiden ulko-ovien lakkaus ja autotallin ovien huoltomaalaus
2010 Tuuletusparvekkeiden ikkunoiden ja ovien kunnostaminen
2010 Kattoluukkujen uusiminen ja kellarikäytävien lattioiden maalauskunnostus
2009 Taloyhtiölaajakaista verkon asennus (Welho 2 M nettiliittymä)
2008 Linjasaneerauksen / putkiremontin toteutus
2007 Lukitutuksen uusiminen, exec
2007 Linjasaneerauksen suunnittelu
2005 Kaukolämmön alajakokeskuksen uusiminen
2002 Parvekkeiden korjaus ja julkisivujen maalaus
1995 Ulko-ovet
1993 Kaukolämpöliitäntä
Laajakaistan korotus 10M-25M
Tulevat remontit
2025-2029
Julkisivun paikkakorjauksen ja huoltomaalauksen suunnittelu ja toteutus
Parvekkeiden huoltokorjauksen suunnittelu ja toteutus
Ulkoportaiden uusimisen suunnittelu ja toteutus
Ulko-ovien kunnostus/uusiminen suunnitelman mukaan
Kaukolämpölaitteiden uusiminen/energiaremontin hankeselvitys
Taloautomaatiojärjestelmä (lämmitys+valo-ohjaus)
Sähköautojen latauspisteiden rakentaminen
Syväkeräyssäiliöiden rakentaminen
Viemäreiden huuhtelu ja kuvaus
Lukitusjärjestelmän uusiminen
Saunan paneloinnin uusiminen
Lisätietoa: Parvekkeiden korjaus ja julkisivujen paikkarappaus ja huoltomaalaustyöt sekä sisäänkäyntiportaikkojen uusiminen tehdään alustavasti kesällä 2026.
Lukijan on huomattava, että kunnossapitotarveselvitys on hallituksen näkemys kunnossapitotarpeista viiden vuoden aikana. Päätökset mahdollisesti käynnistettävien kunnossapitotöiden ja muutostöiden suunnittelusta, toteutuksesta sekä rahoituksesta tehdään yhtiökokouksessa erikseen. Kunnossapitotarveselvityksessä mainitut toimenpiteet saattavat aikaistua tai myöhentyä. Myyjä ei vastaa taloyhtiön myöhemmin päättämistä kunnossapitotoimenpiteistä ja niistä aiheutuvista huoneistolle tulevista kustannuksista.
