Naavakuja 6
86300, Puistola, Oulainen
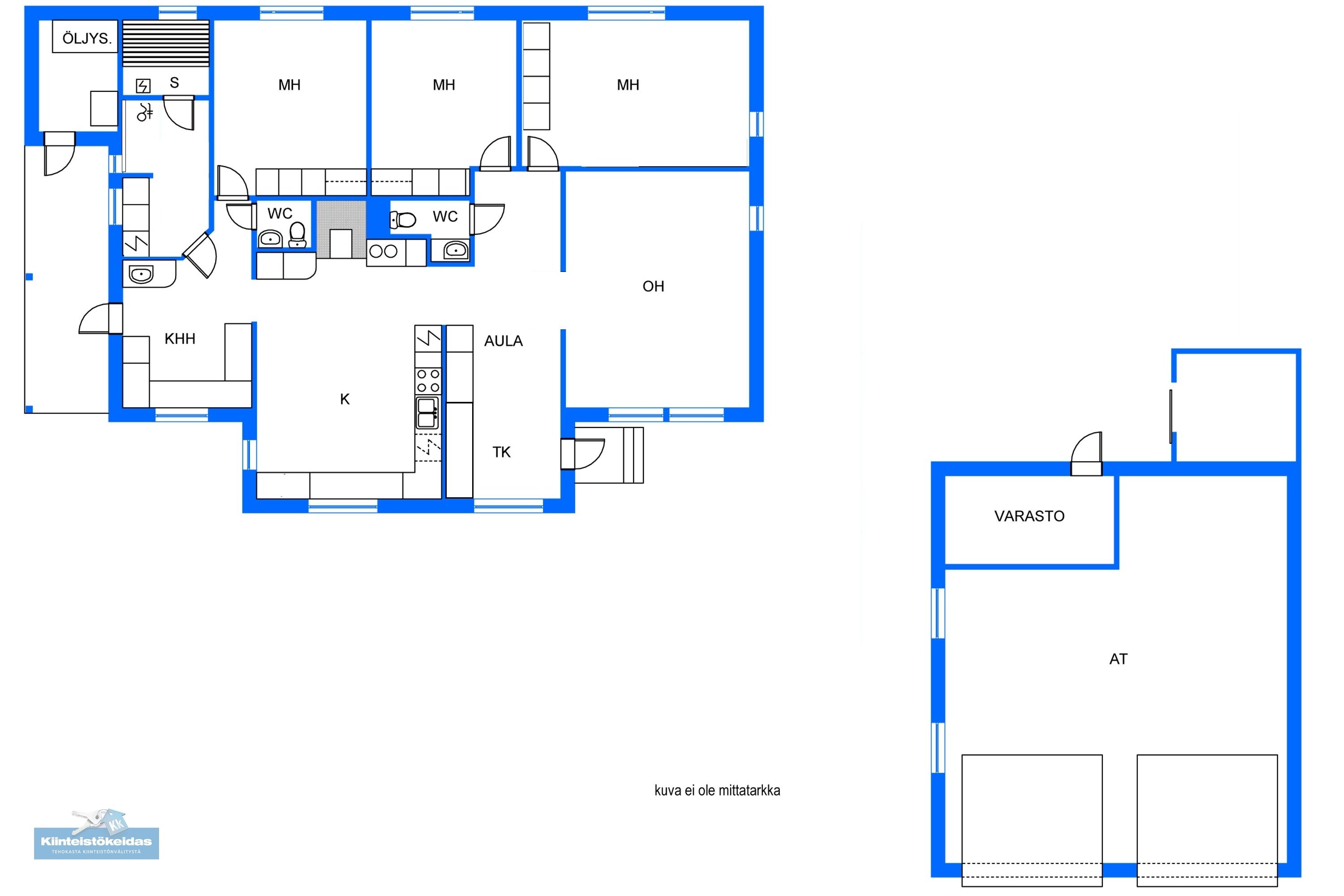
3mh+oh+k+et+khh+2xwc+ph+s
159 000 €
139,3 m²

Tätä asuntoa myy Juha Saartoala, Toimitusjohtaja, LKV, KiAt, Kaupanvahvistaja
Kiinteistönvälitys Keidas Lkv Oy

Sijainti
Asuntoesittely
Naavakuja 6 , Oulainen
Nyt tarjolla siisti omakotitalo Puistolan kaupunginosassa lähellä keskustaa. Nykyaikaisella tekniikalla varustettu hyvä talo sopivaan hintaan! Vuonna 2001 valmistunut talo on hyvässä kunnossa ja sen 139,3 neliön asuintilat levittäytyvät yhteen kerrokseen. Iso eteinen, kolme makuuhuonetta, olohuone, iso ja käytännöllinen keittiö tekevät tästä kodista ihanteellisen niin perheille kuin pariskunnillekin.
Talossa on kaksi erillistä wc:tä, mikä helpottaa arkea suuremmankin porukan kanssa. Pesuhuone ja sauna on remontoitu tyylikkäästi noin neljä vuotta sitten, ja ne tarjoavat rentouttavat puitteet arjen kiireiden keskellä. Kodinhoitohuoneessa on oma uloskäynti, mikä tekee pyykkihuollosta ja arjen askareista sujuvampaa.
Talossa on miellyttävä vesikiertoinen lattialämmitys ja koneellinen ilmanvaihto. Leivinuuni tuottaa mukavasti lisälämpöä ja toimii leivonnassa ja ruuanlaitossa. Pihapiirissä autotallirakennus kahdelle autolle, varasto sekä pyörävarasto, joten säilytystilaa on runsaasti. Piha on asfaltoitu ja osittain laattapinnalla.
Sijainti Puistolan rauhallisella ja keskeisellä alueella tarjoaa hyvät kulkuyhteydet ja kaikki tarvittavat palvelut ovat sopivan lähellä iah kävelymatkan päässä! Tässä muutama esimerkki etäisyyksistä: Rautatieasema 600 m. Apteekki ja K-Supermarket n. 350 m. Uimahalli Lähde 1,1 km. Oulaskankaan sairaala ja terveyskeskus 1 km. Jäähalli 950 m. Urheilukenttä 650 m. Ouluntien kuntorata/hiihtolatu 1,4 km.
Tervetuloa tutustumaan!
Pyydä rohkeasti esittely soittamalla tai lähettämällä yhteydenottopyyntö niin järjestämme yksityisen esittelyn! Myyntiä hoitaa Juha Saartoala p. 0405630337 tai Mikael Saartoala p. 0443398125.Pohjakuva

Perustiedot
- Sijainti
- Naavakuja 6, 86300, Puistola, Oulainen
- Huoneluku
- 4
- Asuinpinta-ala
- 139,3 m²
- Muu pinta-ala
- 21,5 m²
- Kokonaispinta-ala
- 160,8 m²
- Pinta-alan peruste
- Pinta-ala ei ole tarkistusmitattu ja todellinen pinta-ala voi olla suurempi tai pienempi, kuin ilmoitettu
- Kohteen tyyppi
- Omakotitalo
- Kerros
- 1
- Rakennusvuosi
- 2001
- Käyttöönottovuosi
- 2001
- Kohde myydään vuokrattuna
- Ei
- Vapautuminen
- Sopimuksen mukaan
Tilat ja materiaalit
- Keittiön lattiat
- Muovimatto
- Keittiön seinät
- Tapetti
- Keittiön varusteet
- Astianpesukone, uuni, ja jää-viileäkaappi
- Liesi
- Induktioliesi, puuhella ja leivinuuni
- Kylpyhuone
- Pesuhuoneen yht. kodinhoito/pyykkäystila. Pesuhuone ja sauna remontoitu n. 4 v. sitten.
- Kylpyhuoneen seinät
- Lauta
- Kylpyhuoneen lattiat
- Muovimatto
- Kylpyhuoneen varusteet
- Suihku, lattialämmitys, ja pesukoneliitäntä
- WC Lukumäärä
- 2
- WC:n lattiat
- Muovimatto
- WC:n seinät
- Kaakeli ja tapetti
- Makuuhuoneiden lukumäärä
- 3
- Makuuhuoneiden seinät
- Tapetti
- Makuuhuoneiden lattiat
- Muovimatto
- Olohuoneen seinät
- Tapetti
- Olohuoneen lattiat
- Muovimatto
- Kodinhoitohuoneen varusteet
- Pesuallas, lattialämmitys, lattiakaivo, silityspöytä/taso, pöytätaso, ja keskuspölynimuri
- Kodinhoitohuoneen seinät
- Muovimatto
- Kodinhoitohuoneen lattiat
- Muovimatto
- Kohteen säilytystilat
- Kaapistot
- Sauna
- Kyllä
- Kiuas
- Sähkökiuas
Lisätiedot
- Asunnon kunto
- Hyvä
- Terassi
- Kyllä
- Muuta kauppaan kuuluvaa
- Polttopuut kuuluvat kauppaan
Taloyhtiö ja kiinteistö
- Tontin pinta-ala
- 1 498 m²
- Tontin omistus
- Oma
- Tontin tyyppi
- Tasamaatontti
- Tontin myyntityyppi
- Koko tontti
- Rakennusmateriaali
- Puu ja tiili
- Lämmitysjärjestelmä
- Öljy Lattialämmitys Uuni
- Ilmanvaihto
- Koneellinen ilmanvaihto
- Vesijohto
- Kunnallisvesi
- Viemäröinti
- Kunnallinen viemäriverkosto
- Kattotyyppi
- Harjakatto
- Katemateriaali
- Huopa
- Rakennusoikeus
- 300
- Kohteesta on energiatodistus
- Ei lain edellyttämää energiatodistusta
- Kaavatilanne
- Asemakaava
- Rakennusvaihe
- Valmis
- Muut rakennukset
- Autotalli ja liiteri
- Lisätietoa muista rakennuksista
- Autotalli kahdelle autolle. Autotallirakennuksen kerrosla 52,9 m2. Autotallin yhteydessä varasto. Autotallin päätyyn on rakennettu pyörävarasto.
Tehdyt remontit
Pintaremontteja vuosien varrella.
Keittiöön uusittu alakaappien ovet ja laatikostoja lisätty.
Pesuhuone- ja saunaremontti n. 4 v. sitten.
