Neulapadontie 4 E
00920, Myllypuro, Helsinki
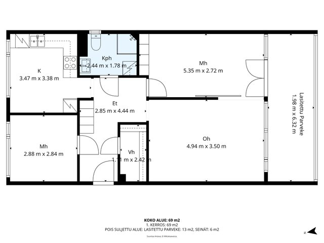
3h + k + kph + vh + lasitettu parveke
192 000 € (2 711,86 € / m²)
70,8 m²

Tätä asuntoa myy Martti Jaako, Asunnonmyyjä
Roof Helsinki | ROOF Group Oy

Sijainti
Asuntoesittely
Hyväkuntoinen ja avara kolmio Myllypurossa.
Asunto sijaitsee vuonna 1966 rakennetun talon kolmannessa kerroksessa, ja siinä on lasitettu parveke etelään. Asunto on siisti ja muuttovalmis. Keittiö on hyvin varusteltu, ja sieltä löytyy muun muassa induktioliesi ja astianpesukone. Asunnon makuuhuoneet ovat tilavia ja asunnossa on hyvin säilytystilaa, kuten erillinen vaatehuone.
Myllypuro on tällä hetkellä yksi nousevista ja halutuista asuinalueista. Liikenneyhteydet ovat loistavat, metroasema ja bussipysäkit ovat kävelymatkan päässä. Läheltä löytyvät myös päiväkodit ja koulut.. Ulkoilu- ja liikuntamahdollisuudet ovat hyvät, lähellä esim. Liikuntamylly, jossa laaja valikoima harrastusmahdollisuuksia. Palvelutarjonta on myös erinomainen.
Taloyhtiössä on monipuoliset yhteistilat, kuten sauna, pesutupa ja pyörävarasto. Asunto Oy Neulapadontie 4 on hyvin hoidettu, ja viime vuosina on tehty useita kunnostuksia.
Tässäkö olisi tuleva kotisi? Ota yhteyttä, niin mennään tutustumaan!
Asunnon myy:
Martti Jaako
p. 050 304 1440
[email protected]
*****************************************************************************************************************
Mikäli olet ostamassa tai myymässä asuntoa, niin ole rohkeasti yhteydessä. Tulen mielelläni arvioimaan asuntosi ja annan kilpailukykyisen välitystarjouksen. Arviokäynti on maksuton ja se ei velvoita itsessään mihinkään.
Perustiedot
- Sijainti
- Neulapadontie 4 E, 00920, Myllypuro, Helsinki
- Omistusmuoto
- Omistusasunto
- Huoneluku
- 3
- Asuinpinta-ala
- 70,8 m²
- Muu pinta-ala
- 0 m²
- Kokonaispinta-ala
- 70,8 m²
- Pinta-alan peruste
- Yhtiöjärjestyksen mukainen, Isännöitsijäntodistuksen mukainen, (Pinta-ala ei ole tarkistusmitattu ja todellinen pinta-ala voi olla suurempi tai pienempi, kuin ilmoitettu)
- Lisätiedot pinta-alasta
- Kohteen markkinoinnissa käytetään mittatiedoilla varustettua pohjapiirrosta. Pohjapiirroksen tarkoitus on helpottaa ostajan ostopäätöstä ja selvittää asunnon nykyinen huonejako. Lukija on tietoinen, että pohjakuva on suuntaa antava, ei mittakaavassa, eikä perustu virallisiin piirustuksiin.
- Kohteen tyyppi
- Kerrostalo
- Kerros
- 3 / 4
- Rakennusvuosi
- 1966
- Käyttöönottovuosi
- 1966
- Kohde myydään vuokrattuna
- Ei
- Vapautuminen
- Sopimuksen mukaan
Hinta ja kustannukset
- Velaton hinta
- 192 000 €
- Myyntihinta
- 184 818,69 €
- Velkaosuus
- 7 181,31 €
- Yhtiövastike
- Hoitovastike 313,20 € / kk, Rahoitusvastike 66,12 € / kk, Yhtiövastike yhteensä 379,32 € / kk
- Lisätietoja vastikkeista
- Hoitovastike jakautuu hoitovastike 3,99 €/jyvitetty m2 ja tontinvuokravastike 0,51 €/jyvitetty m2.
- Autopaikkamaksu
- 17 € / kk
- Vesimaksu
- 20 € / hlö / kk
- Neliöhinta
- 2 711,86 € / m²
- Lisätietoja maksusta
- Taloyhtiön hallitukselle on annettu valtuutus periä (tai olla perimättä) ylimääräistä vastiketta yhtiön taloudellisen aseman tai maksuvalmiuden sitä vaatiessa
Tilat ja materiaalit
- Keittiön lattiat
- Parketti
- Keittiön seinät
- Laatta ja maali
- Keittiön varusteet
- Liesituuletin, astianpesukone, jääkaappipakastin, liesi, ja uuni
- Liesi
- Induktioliesi
- Kylpyhuoneen seinät
- Kaakeli
- Kylpyhuoneen lattiat
- Laatta
- Kylpyhuoneen varusteet
- WC-istuin, suihku, suihkuseinä, pesukoneliitäntä, peilikaappi, allaskaappi, pesuallas, bidee-suihku, ja rättipatteri
- Makuuhuoneiden lukumäärä
- 2
- Makuuhuoneiden seinät
- Maali
- Makuuhuoneiden lattiat
- Parketti
- Olohuoneen seinät
- Maali
- Olohuoneen lattiat
- Parketti
- Kohteen säilytystilat
- Kellarikomero
Lisätiedot
- Asunnon kunto
- Hyvä
- Parveke
- Lasitettu parveke ja sisäänvedetty parveke
- Parvekkeen ilmansuunta
- Etelä
- Hissi
- Ei
Taloyhtiö ja kiinteistö
- Taloyhtiön nimi
- Asunto Oy Neulapadontie 4
- Isännöitsijätoimisto
- Fluxio Isännöinti Oy
- Isännöitsijän nimi
- Satu Salmi
- Isännöitsijän puhelin
- 0103390533
- Tuotot
- 35063.97
- Tontin pinta-ala
- 7 183,5 m²
- Tontin omistus
- Vuokra
- Maanvuokraaja
- Helsingin kaupunki
- Tontin tiedot
- Arvio uuden maanvuokran vaikutuksesta asumiskustannuksiin. Arviomme mukaan uusien vuokrasopimusten maanvuokran laskennallinen vaikutus asumiskustannuksiin olisi ensimmäisenä voimaantulovuotena (kun täysimääräisestä vuokrasta perittäisiin 50 %): Asuinkerrostalotonteilla Myllypuro noin 0,78 euroa/huoneistoneliömetri/kuukausi. Vuokran arvioidun kokonaisvaikutuksen kuukausittaisiin asumiskustannuksiin sopimuksen alkuvaiheessa voi laskea kertomalla huoneiston neliömetrit edellä ilmoitetulla euromäärällä. Huoneiston neliömetreihin ei sisällytetä esimerkiksi autotallia tai teknisiä tiloja. Esimerkki: Uuden tontinvuokran arvioitu vaikutus asumiskustannuksiin Myllypuron kerrostalotonteilla on 0,78 euroa huoneistoneliömetriä kohden kuukaudessa. Jos asunnossa on 70,5 huoneistoneliötä, uuden tontinvuokran vaikutus asumiskustannuksiin sopimuksen ensimmäisenä vuonna on 56 euroa kuukaudessa (kaavalla 0,78 euroa × 70,5 huoneistoneliömetriä). Kymmenen vuoden siirtymäajan jälkeen, kun uusi tontinvuokra olisi voimassa kokonaisuudessaan, sen vaikutus asumiskustannuksiin olisi 112 euroa kuukaudessa.
- Vuokra-aika päättyy
- 31.12.2025
- Rakennusmateriaali
- Betoni
- Lämmitysjärjestelmä
- Kaukolämpö
- Ilmanvaihto
- koneellinen poisto
- Kattotyyppi
- aumakatto
- Katemateriaali
- huopa/pelti
- Lisätietoja kiinteistönhoidosta
- Huoltoyhtiö
- Kiinteistönhoidon lisätiedot
- Helsingin Kiinteistöpalvelu Oy, Kauppakartanonkatu 8, 00930 Helsinki, p. 040 0870081
- Taloyhtiössä on
- Kellarikomero, pesutupa, kuivaushuone, mankeli, pyörävarasto, ja urheiluvälinevarasto
- Lunastusoikeus yhtiöllä
- Ei
- Lunastusoikeus osakkaille
- Ei
- Kohteesta on energiatodistus
- Kyllä
- Energialuokka
- E2018
- Energiatodistuksen voimassaolo
- 5.9.2034
- Liikenneyhteydet
- Bussipysäkki lähellä ja metroasema lähellä
- Autotallit
- 12
- Piha-autopaikkoja
- 40 kpl
- Taloyhtiöllä sauna
- Kyllä
- Kaavatilanne
- Asemakaava
- Lisätiedot kaavoituksesta
- Helsingin kaupunki; kartta.hel.fi -> aineistot ->kaavoitus ja liikennesuunnittelu. p. 09 310 1673. Alueella vireillä olevia kaavahankkeita.
- Asbestikartoitus
- Ei
- Lisätietoa asbestikartoituksesta
- Kohde on valmistunut ennen vuotta 1994. Asunnossa ei ole tehty asbestikartoitusta. Lain mukaan purettavien materiaalien asbesti pitää kartoittaa ennen purkutyötä, jos rakennus on rakennettu ennen vuotta 1994. Jos osakas aikoo remontoida tällaisessa talossa olevaa huoneistoaan, hänen tulee tietyissä tapauksissa teettää asbestikartoitus purettaviin materiaaleihin. Asbestikartoitusvelvollisuus ei koske huoneistossa tehtäviä vähäisiä töitä, kuten reikien poraamista seiniin tai kattoon.
- Taloyhtiön kiinnitykset
- 5 656 853 €
- Taloyhtiön kiinnitysten päivämäärä
- Isännöitsijäntodistuksen päivämäärän mukainen
Tehdyt remontit
2024 Energiatodistuksen laatiminen, Planera Oy, B- talon päädyn uudelleen maalaus, Presto Maalaus Oy, autotallien läpivientien palokatkoasennukset, Suomen Paloturva Center Oy,
autotallien lukituksen uudelleen sarjoitus taloyhtiön sarjaan, IHL Turva Oy
2024 C 30 kylpyhuoneen viemäriputken kallistuman korjaus
2023 Vanhojen kylmiöiden pintaremontti, leikkipaikan kunnostus
2022 Saunan lauteiden uusiminen, jäteaseman uusiminen
2021 Tuuletusparvekkeiden purku ja korjaus, tiettyjen ulko-ovien uusiminen
sekä A-talon päädyn lumilipan rakentaminen osana julkisivuhanketta
2021 Piha-aidan uusiminen, julkisivuremontin toteutus
2019-2020 Julkisivuhankkeen toteutussuunnittelu
2017 LVIS-linjasaneeraus (sis. vesikaton), lukitusjärjestelmän uusiminen, parvekekaiteiden korjaus
2016 Linjasaneerauksen toteutussuunnittelu. Vesikaton selvitystyö
2014 LVIS-hankesuunnitelman laatiminen
2012 Sadevesiviemäreiden ja pystyviemäreiden puhdistus (CD portaat)
2011 Tuuletusparvekkeiden, kunnostus, pohja- ja tonttiviemärien puhdistus, vedenkäsittelylaite Bauer
2010 Saunaosasto, kunnostus, kuntotutkimus: putket ja viemärit, vesikatto, osittainen korjaus
2009 Huoneisto, vesivahinko Ilmanvaihtokanava, puhdistus, lämmönvaihtimen s. korjaus; elinikää n 20 v
2008 Katto, turvatuotteet, uusittu, piha-alue, vihertöitä, ilmoitustaulut, uusittu, ulko-ovien, ehostus
kaukolämpölaitteet, huolto, mankeli uusittu, antennijärjestelmän kunnostus
2006 Julkisivu, kunnostus, parvekkeet, rakentaminen
2003 Lämmitysverkko, termostaattien asennus
1997 Kaukolämpölaitteet, uusiminen, lämmönvaihdin
1996 Lukoston uusiminen
1993 Julkisivu, päätyjen lämpörappaus
1990 Ikkunat, uusiminen
1988 Katto, maalaus, porrashuoneiden maalaus
Tulevat remontit
2025 Patteriverkoston tasapainotus ja säätö, poistoilman lämmöntalteenoton parannuksen suunnittelu
2026 Parvekeovien uusiminen
2027 huoneistojen ikkunoiden kuntoselvitys
Lukijan on huomattava, että kunnossapitotarveselvitys on hallituksen näkemys kunnossapitotarpeista viiden vuoden aikana. Päätökset mahdollisesti käynnistettävien kunnossapitotöiden ja muutostöiden suunnittelusta, toteutuksesta sekä rahoituksesta tehdään yhtiökokouksessa erikseen. Kunnossapitotarveselvitys mainitut toimenpiteet saattavat aikaistua tai myöhentyä. Myyjä ei vastaa taloyhtiön myöhemmin päättämistä kunnossapito toimenpiteistä ja niistä aiheutuvista huoneistolle tulevista kustannuksista. Palovaroimien kunnossapitovastuu siirtyy taloyhtiölle 1.1.2026