Neulaskuja 3 D
03100, Lankilanrinne, Vihti
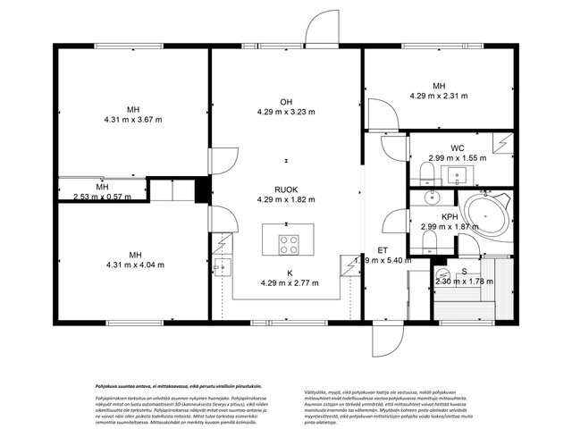
4h, avok, kph, s, khh, autotalli
149 000 € (1 490 € / m²)
100 m²

Tätä asuntoa myy Mira Järvinen, Myyntipäällikkö, Kiinteistönvälittäjä, LKV, LVV
Roof Helsinki | ROOF Group Oy

Sijainti
Asuntoesittely
Tyylikäs, sisätiloiltaan moderni ja kattavasti saneerattu yksitasoinen rivitalon päätyasunto!
Tässä kodissa on tehty enemmän kuin pintaremontti; koko huoneiston tekniikka ja rakenteet on käyty läpi huolellisesti ja päivitetty nykyaikaiselle tasolle. Toimiva pohjaratkaisu avautuu kodin sydämeen, avaraan keittiön ja olohuoneen yhdistelmään, josta on käynti suojaisalle, metsähenkiselle takapihalle ja terassille. Asunnossa on kolme tilavaa makuuhuonetta, jotka tarjoavat joustavuutta eri elämäntilanteisiin. Arjen rentoutumiseen kutsuu tyylikäs kylpyhuone poreammeineen, ja lisäksi asunnossa on uusi sauna, joka on viimeistelyä vaille valmis. Käytännöllisyyttä lisäävät kaksi wc:tä, joista toisen yhteydessä on kodinhoitohuone. Bonuksena kaupan yhteydessä myydään erillisinä osakkeina kaksi autotallia.
Asunto sijaitsee omalla tontilla seisovassa taloyhtiössä. Yhtiön talous on viimeisimmän tilinpäätöksen perusteella vakaalla pohjalla tuleviakin kunnossapitotarpeet huomioiden.
Nummelanharjun monipuoliset ulkoilumaastot alkavat lähes kotiovelta ja tarjoavat erinomaiset puitteet aktiiviseen vapaa-aikaan ympäri vuoden. Nummelan keskustan kattavat palvelut, koulut ja päiväkodit sijaitsevat vain muutaman kilometrin päässä, ja pääkaupunkiseudulle ajat autolla noin puolessa tunnissa.
Tervetuloa tutustumaan tähän huolella saneerattuun päätyasuntoon, joka tarjoaa noin 100 neliötä toimivaa, avaraa ja modernia asumista rauhallisessa ympäristössä.
TIEDUSTELUT JA YKSITYISESITTELYVARAUKSET:
Mira Järvinen, myyntipäällikkö, kiinteistönvälittäjä, LKV, LVV,
040 835 0271 tai [email protected]
OTATHAN YHTEYTTÄ JA VARAAT OMAN ESITTELYAJAN?
I can provide services also in English
Jag betjänar också på svenska.
GET A ROOF!
www.mirajärvinenlkv.fi
www.roof.fi
Perustiedot
- Sijainti
- Neulaskuja 3 D, 03100, Lankilanrinne, Vihti
- Omistusmuoto
- Omistusasunto
- Huoneluku
- 4
- Asuinpinta-ala
- 100 m²
- Kokonaispinta-ala
- 100 m²
- Pinta-alan peruste
- Yhtiöjärjestyksen mukainen, Isännöitsijäntodistuksen mukainen, (Pinta-ala ei ole tarkistusmitattu ja todellinen pinta-ala voi olla suurempi tai pienempi, kuin ilmoitettu)
- Lisätiedot pinta-alasta
- Mainittu pinta-ala saattaa tämän ikäisessä kohteessa poiketa olennaisesti nykyisten standardien mukaan laskettavasta asuinpinta-alasta. Todellinen asuinpinta-ala voi olla yhtiöjärjestyksessä, isännöitsijäntodistuksessa ja esitteessä mainittua pienempi tai suurempi.
- Kohteen tyyppi
- Rivitalo
- Kerros
- 1 / 1
- Rakennusvuosi
- 1969
- Käyttöönottovuosi
- 1969
- Kohde myydään vuokrattuna
- Ei
- Vapautuminen
- Sopimuksen mukaan
Hinta ja kustannukset
- Velaton hinta
- 149 000 €
- Myyntihinta
- 142 713,09 €
- Velkaosuus
- 6 286,91 €
- Yhtiövastike
- Hoitovastike 600 € / kk (20 € / os.), Rahoitusvastike 54 € / kk (1,80 € / os.), Yhtiövastike yhteensä 654 € / kk
- Saunamaksu
- 5 € / kk
- Vesimaksu
- 30 € / hlö
- Neliöhinta
- 1 490 € / m²
- Lisätietoja maksusta
- Autopaikka maksu yhtiön vuokrattavissa ulkopaikoissa 5 €/kk / 10 €/kk Yksittäisen autotallipaikan yhtiövastike 21,80 €/kk jakautuen hoitovastikeeseen 20 €/kk ja rahoitusvastikeeseen 1,80 €/kk. Hallitus valtuutettu perimään osakkailta tarvittaessa enintään kahden kuukauden hoitovastiketta vastaava rahamäärä yhtiön taloudellisen tilan niin vaatiessa sekä toisaalta jättämään perimättä vastaava määrä yhtiön talouden sen salliessa. Taloyhtiön hallitukselle on annettu valtuutus periä (tai olla perimättä) ylimääräistä vastiketta yhtiön taloudellisen aseman tai maksuvalmiuden sitä vaatiessa
Tilat ja materiaalit
- Keittiön lattiat
- Vinyyli
- Keittiön seinät
- Maali
- Keittiön varusteet
- Jääkaappipakastin, astianpesukone, keittiösaareke, erillisuuni, liesi, ja liesituuletin
- Liesi
- Induktioliesi
- Kylpyhuoneen seinät
- Kaakeli
- Kylpyhuoneen lattiat
- Laatta
- Kylpyhuoneen varusteet
- Poreamme, suihku, lattialämmitys, pesuallas, allaskaappi, bidee-suihku, ja peili
- Erillinen WC
- Erillisen wc:n/khh remontin osalta tasojen rakennus on kesken.
- WC:n lattiat
- Laatta
- WC:n seinät
- Maali
- Makuuhuoneet
- Päämakuuhuoneessa liukuovikaapistot. Päämakuuhuoneen viereisessä makuuhuoneessa kaapistot.
- Makuuhuoneiden lukumäärä
- 3
- Makuuhuoneiden seinät
- Maali
- Makuuhuoneiden lattiat
- Vinyyli
- Olohuone
- Käynti takapihan terassille
- Olohuoneen seinät
- Maali
- Olohuoneen lattiat
- Vinyyli
- Kohteen säilytystilat
- Kaksi ltaloyhtiöntiloissa olevaa lämmintä varastoa
- Sauna
- Kyllä
- Kiuas
- Sähkökiuas
- Saunan kuvaus
- Saunaremontista kesken on mm. saunan etuseinän ja kaiteen rakennus.
Lisätiedot
- Asunnon kunto
- Hyvä
- Terassi
- Kyllä
- Lisätietoja terassista
- Terassin kunnossapitovastuu osakkaalla.
- Piha
- Huoneistolla on käytössä piha-alue. Piha-alueen hallinnasta ei ole sovittu yhtiöjärjestyksellä.
- Muut tilat
- Eteinen: Lattia: Laatta Seinät: Maalattu
Taloyhtiö ja kiinteistö
- Taloyhtiön nimi
- Asunto Oy Kehäharju
- Isännöitsijätoimisto
- Arvo Kiinteistöhallinta Oy
- Isännöitsijän nimi
- Miika Jokiperä
- Isännöitsijän sähköposti
- [email protected]
- Isännöitsijän puhelin
- +358105080470
- Tontin pinta-ala
- 13 572 m²
- Tontin omistus
- Oma
- Käyttö/luovutusrajoitukset
- Autotalliosakkeita koskee yhtiöjärjestyksen 17 § mukainen lunastuslauseke.
- Rakennusmateriaali
- Puu
- Lämmitysjärjestelmä
- Maakaasu
- Ilmanvaihto
- Painovoimainen ilmanvaihto
- Vesijohto
- Kunnallisvesi
- Viemäröinti
- Kunnallinen viemäriverkosto
- Kattotyyppi
- Pulpettikatto
- Katemateriaali
- Pelti
- Lisätietoja kiinteistönhoidosta
- Huoltoyhtiö
- Kiinteistönhoidon lisätiedot
- Nummelan Huoltokaksikko Oy
- Taloyhtiössä on
- Huoneistokohtaiset irtaimistovarastot
- Lunastusoikeus yhtiöllä
- Ei
- Lunastusoikeus osakkaille
- Ei
- Kohteesta on energiatodistus
- Kyllä
- Energialuokka
- F2018
- Energiatodistuksen voimassaolo
- 27.6.2035
- Taloyhtiöön kuuluu
- Yhtiöllä on All Risk kiinteistövakuutus If Vahinkovakuutusyhtiö Oy:llä. Lisäksi taloyhtiöllä on ARS Asukasturvavakuutus. Kiinteistövakuutus ei kuitenkaan korvaa mm. osakkaan irtaimistolle aiheutuneita vahinkoja eikä sijaisasumiskuluja. Osakkaita muistutetaan, että oma laaja kotivakuutus on syytä olla aina voimassa.
- Huoneistoon kuuluu yhtiöjärjestyksen mukaan autopaikka
- Tallipaikka
- Lisätietoja huoneiston autopaikasta
- Asunnon yhteydessä myydään kaksi autotallia AT7 ja AT8. Osakeryhmätunnukset: OH22WS9858TEHZ49 ja OHUUQBCKMXKKPS89 Osakeet: 479 ja 480 Autotalliosakkeita koskee yhtiöjärjestyksen 17 § mukainen lunastuslauseke.
- Taloyhtiön autopaikat
- Autotallit omina osakkeinaan.
- Autotallit
- 16
- Sähköpistokepaikkoja
- 6 kpl
- Piha-autopaikkoja
- 17 kpl
- Taloyhtiöllä sauna
- Kyllä
- Kaavatilanne
- Asemakaava
- Lisätiedot kaavoituksesta
- Vihdin Kunta [email protected] / p. 044 467 5583
- Asbestikartoitus
- Kyllä
- Lisätietoa asbestikartoituksesta
- Nyt myytävän huoneiston osalta asbestikartoituksia on tehty remonttien yhteydessä ja raportit ovat saatavissa välittäjältä. Ennen vuotta 1994 valmistuneiden rakennusten korjaustöiden osalta otettava huomioon Laki eräistä asbestipurkutyötä koskevista vaatimuksista 684/2015 sekä Valtioneuvoston asetus asbestityön turvallisuudesta 798/2015. Huoneistossa tehdyt kartoitukset eivät poista kartoitusvelvollisuutta mahdollisten muiden vanhojen pintojen purkutöihin ryhdyttäessä. Lain mukaan purettavien materiaalien asbesti pitää kartoittaa ennen purkutyötä, jos rakennus on rakennettu ennen vuotta 1994. Jos osakas aikoo remontoida tällaisessa talossa olevaa huoneistoaan, hänen tulee tietyissä tapauksissa teettää asbestikartoitus purettaviin materiaaleihin. Asbestikartoitusvelvollisuus ei koske huoneistossa tehtäviä vähäisiä töitä, kuten reikien poraamista seiniin tai kattoon.
- Taloyhtiön kiinnitykset
- 195 273,83 €
- Taloyhtiön kiinnitysten päivämäärä
- Isännöitsijäntodistuksen päivämäärän mukainen
Tehdyt remontit
2023: Talojen 1 ja 2 kattojen paikkaus.
2021: Märkätilojen kosteuskartoitus.
2020: Viemäreitä uusittu.
2014: Patteriventtiilit uusittu.
2013: Öljysäiliö poistettu.
2012: Ikkunat uusittu. Lämmitys vaihdetty maakaasuksi.
2010: Jätekatos rakennettu.
2009: Pääulko-ovet sekä lukitus uusittu. Talon 1 terassiovet uusittu.
2008: Talojen 2, 3 ja 4 terassiovet uusittu.
2005: Vesikatot maalattu.
2004: Talon 2 käyttövesiputkisto uusittu.
1996: Talon 4 kaikki putkistot uusittu ja neljän asunnon vesivahingot korjattu.
1995: Talon 3 käyttövesiputkisto uusittu. Talon 4 edustalle rakennettu neljä autolämmityspaikkaa.
1992: Talon 1 käyttövesiputkisto uusittu.
1988: Puhallusvillaa asennettu yläpohjaan.
Tulevat remontit
Kunnossapitotarveselvitys 2025-2029
2025: Viemäreiden ja katon kuntotutkimus
2027: Käyttöikänsä päässä olevien kylpyhuoneiden saneeraus
2028: Autotallien uusiminen
Lukijan on huomattava, että Kunnossapitotarveselvitys 2025-2029 on hallituksen näkemys kunnossapitotarpeista viiden vuoden aikana. Päätökset mahdollisesti käynnistettävien kunnossapitotöiden ja muutostöiden suunnittelusta, toteutuksesta sekä rahoituksesta tehdään yhtiökokouksessa erikseen. Kunnossapitotarveselvityksellä mainitut toimenpiteet saattavat aikaistua tai myöhentyä. Myyjä ei vastaa taloyhtiön myöhemmin päättämistä kunnossapitotoimenpiteistä ja niistä aiheutuvista huoneistolle tulevista kustannuksista.
